Hillcrest Avenue, Chandler's Ford, Eastleigh

Offers in excess of
£400,000
SSTC
This property listing is now SSTC

3 Bedroom Detached Bungalow for sale in Chandler's Ford

2 3 2

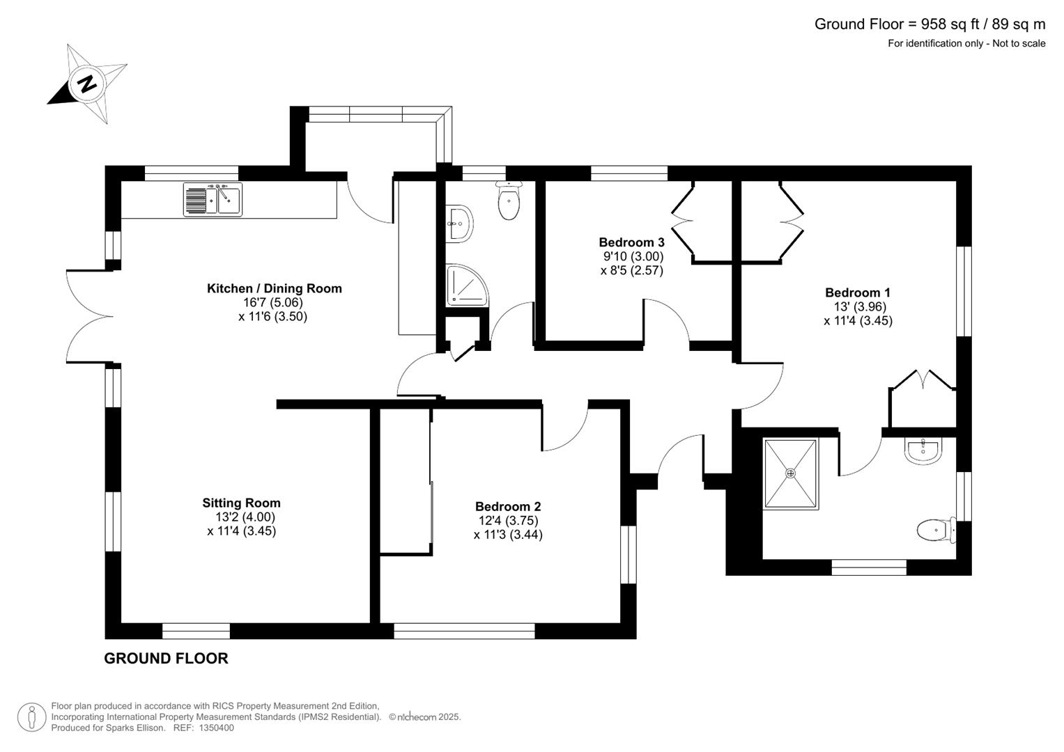
Positioned fantastically, this delightful three bedroom detached bungalow is within a short walk to central Chandler's Ford and the long list of amenities which the arcade has to offer that includes Waitrose, the doctors surgery, pubs, multiple eateries and places of worship. Internally the property enjoys a large master bedroom with en-suite to the front, two more good sized bedrooms, a shower room and modern kitchen/dining/living space overlooking the rear garden. Externally the property sits on a plot of approximately 0.10 of an acre, has a front, side and rear garden, parking for one car and a single detached garage also. The home is a short commute from the M3 motorway Junction at the bottom of Oakmount Road and therefore highly convenient for commuters whether it be for business or leisure.

Accommodation -

Entrance Porch -

Hallway - Cupboard and access to loft space.

Bedroom 1: - 13' x 11'4" (3.96m x 3.45m) Built in double wardrobe and fitted wardrobe.

En-Suite - Dual aspect with large walk in shower, wash basin, WC, heated towel rail is both on central heating and independent.

Bedroom 2: - 12'4" x 11'3" (3.75m x 3.44m) Fitted Wardrobe.

Bedroom 3: - 9'10" x 8'5" (3.00m x 2.57m) Built in wardrobe.

Shower Room: - Shower cubicle, wash basin with cupboard underneath, WC and extractor fan.

Kitchen/Dining Room: - 16'7" x 11'6" (5.06m x 3.50m) Modern kitchen consisting of a range of units with integrated electric oven & induction hob, extractor over head, space for fridge freezer, space for washing machine, space for dishwasher, dining space, open entrance into living room, double doors leading to covered decking.

Utility Area: - Space for washing machine and tumble dryer.

Sitting Room: - 13'2" x 11'4" (4.00m x 3.45m) Electric stand alone fire.

Outside -

Front And Side Gardens: - A lovely mixture of plants and small trees throughout both sections.

Rear Garden: - Measuring approximately 21' x 43'. Adjoining the property is a covered decking area with steps up to area laid to lawn, outside tap. There are two gates here with one leading to the driveway beyond the garden and the other linking back around to the front door.

Garage: - Single detached unit.

Driveway: - Parking for one car.

Other Information -

Tenure: - Freehold

Approximate Age: - 1952

Approximate Area: - 89sqm/958sqft

Sellers Position: - Have found property to purchase

Heating: - Gas central heating

Windows: - UPVC double glazed windows

Loft Space: - Partially boarded with ladder & light connected

Infant/Junior School: - Fryern Infant/Junior School

Secondary School: - Toynbee Secondary School

Council Tax: - Band D

Local Council: - Eastleigh Borough Council - 02380 688000

Agents Note: - If you have an offer accepted on a property we will need to, by law, conduct Anti Money Laundering Checks. There is a charge of £60 including vat for these checks regardless of the number of buyers involved.

Property Ref: 34173655

Share:

Similar Properties

Chilham Close, Eastleigh

3 Bedroom Link Detached House | £400,000

Located in the quiet cul-de-sac of Chilham Close, Boyatt Wood, this stunning link-detached house offers a perfect blend...

Catmint Close, Knightwood Park, Chandler's Ford

3 Bedroom Town House | Offers in excess of £400,000

A modern three bedroom, three storey townhouse situated in a popular cul de sac location within the well regarded Knight...

Heathlands Road, Chandler's Ford

3 Bedroom Semi-Detached House | £400,000

An exceptionally well presented three bedroom semi-detached home with a modern contemporary feel to the interior design....

Morgan Le Fay Drive, Knightwood Park, Chandlers Ford

3 Bedroom House | £415,000

This wonderful three bed end terrace home situated in Knightwood Park, with catchments of Knightwood Primary School, St...

Brownhill Close, Chandler's Ford

3 Bedroom Terraced House | £415,000

This wonderful three bedroom terrace home is situated in a quiet cul-de-sac within Chandler's Ford. This home is present...

Pine Crescent, Hiltingbury, Chandlers Ford

4 Bedroom Terraced House | Offers in excess of £425,000

A particularly spacious four/five bedroom three storey home situated in a quiet crescent within the heart of Hiltingbury...

Sparks Ellison (Chandler's Ford)

Chandler's Ford, Hampshire, SO53 2GJ

02380 255333

How much is your home worth?

Use our short form to request a valuation of your property.

Request a Valuation

Mortgage Calculator

Amount Borrowed: £
Total Amount Repayable: £
Total Monthly Payment: £
©2026 The Guild of Property Professionals. All rights reserved. Terms and Conditions | Privacy Policy | Cookie Policy | Complaints Policy | Members Login
The Guild of Property Professionals Trading Address: 121 Park Lane, London W1K 7AG. GPEA Limited. Registered in England & Wales.  Company No: 02819824.  Registered Office Address: 2 St. Stephen's Court, St. Stephen's Road, Bournemouth, Dorset, England, BH2 6LA.  VAT Registration No: 576 8795 61
Book a Property Valuation Update Cookies Preferences