Pine Crescent, Hiltingbury, Chandlers Ford

Offers in excess of
£425,000
SSTC
This property listing is now SSTC

4 Bedroom Terraced House for sale in Chandlers Ford

3 4 2

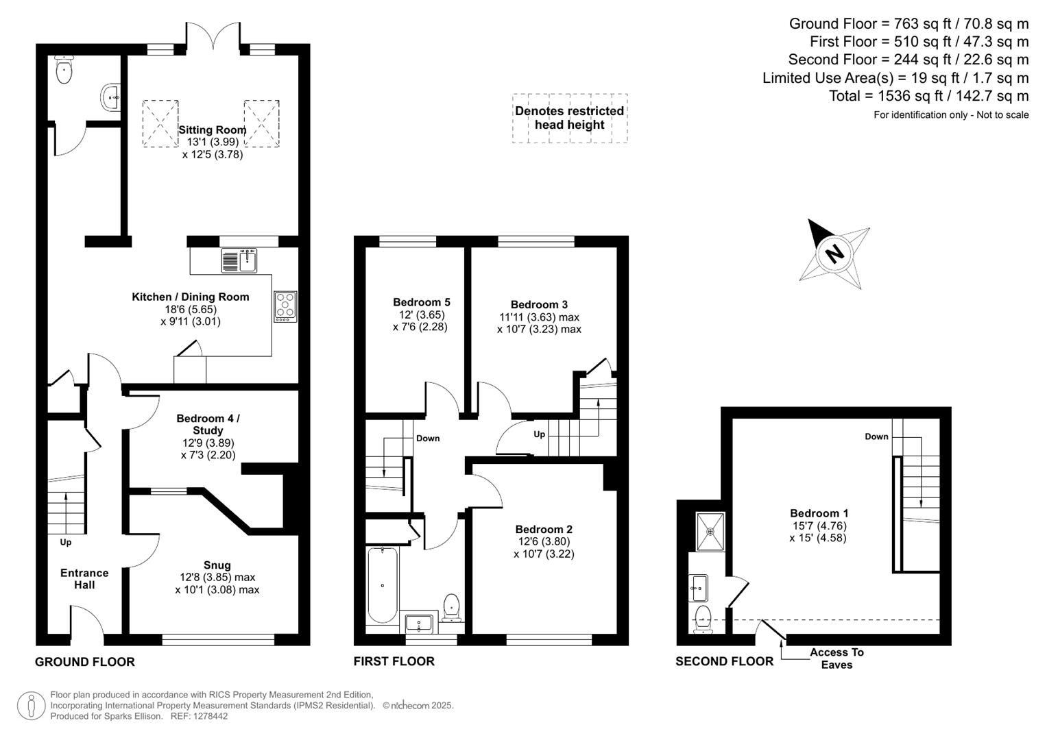
A particularly spacious four/five bedroom three storey home situated in a quiet crescent within the heart of Hiltingbury. Pine Crescent is within walking distance to a range of shops on Hiltingbury Road, Hiltingbury schools, leisure centre and recreation ground. The house itself has been extended to the rear to provide a wonderful open plan kitchen dining and living room with log burner and doors to rear garden. In addition to this on the ground floor is the utility room and cloakroom and the former sitting room has been converted into two separate rooms that could be used for a home office, snug or bedroom. On the first floor are three good sized bedrooms together with the family bathroom and on the top floor a particularly spacious main bedroom with en-suite shower room. Outside, the property benefits from generous parking to the front and to the rear a garden measuring approximately 60ft with with access to the garage.

Accommodation -

Ground Floor -

Reception Hall: - Stripped wooden floor, stairs to first floor with cupboard under.

Snug: - 12'8" x 10'1" (3.85m x 3.08m)

Bedroom 4/Study: - 12'9" x 7'3" (3.89m x 2.20m)

Kitchen/Dining Room: - 18'6" x 9'11" (5.65m x 3.01m) The kitchen area has been re-fitted with a range of white gloss units and wooden worktops, Range style electric oven and gas hob with an extractor hood over, space for further appliances, space for table and chairs, shelved cupboard.

Utility Area: - Space and plumbing for appliances, cupboards, boiler.

Cloakroom: - Modern suite comprising wash basin, WC.

Sitting Room: - 13'1" x 121'5" (3.99m x 3.78m) Vaulted ceiling with two Velux windows, log burner, double doors to rear garden.

First Floor -

Landing: - Stairs to second floor.

Bedroom 2: - 12'6" x 10'7" (380m x 3.22m)

Bedroom 3: - 11'11" X 10'7" (3.63m X 3.23m)

Bedroom 5: - 12' X 7'6" (3.65m X 2.28m)

Bathroom: - Suite comprising bath with shower unit over, wash basin with cupboard under, WC, shelved cupboard.

Second Floor -

Bedroom 1: - 15'7" x 15' (4.76m x 4.58m) Eaves access.

En-Suite Shower Room: - Suite comprising shower cubicle, wash basin with cupboard under, WC.

Outside -

Front: - A good size driveway affords parking for several vehicles.

Rear Garden: - The rear garden measures approximately 60 ft in length and adjoining the house is a deck leading onto an area of slate chippings and planted borders enclosed by fencing, greenhouse, log store, access to the garage, gate to rear access.

Garage: - Light and power.

Other Information -

Tenure: - Freehold

Approximate Age: - 1980

Approximate Area: - 1536sqft/142.7sqm (Including limited use areas)

Sellers Position: - Looking for forward purchase

Heating: - Gas central heating

Windows: - UPVC double glazing

Loft Space: - Fully boarded with light connected

Infant/Junior School: - Hiltingbury Infant/Junior School

Secondary School: - Thornden Secondary School

Council Tax: - Band C

Local Council: - Eastleigh Borough Council - 02380 688000

Agents Note: - If you have an offer accepted on a property we will need to, by law, conduct Anti Money Laundering Checks. There is a charge of £60 including vat for these checks regardless of the number of buyers involved.

Property Ref: 6224678_33820660

Share:

Similar Properties

Pantheon Road, Scantabout, Chandler's Ford

3 Bedroom Detached House | £425,000

A well presented three bedroom family home situated on the popular Scantabout development and within walking distance an...

Ashton Gardens, Eastleigh

4 Bedroom Detached House | Offers in excess of £425,000

Built in 2016, this delightful four-bedroom detached house presents an excellent opportunity for families and individual...

Ionic Close, Scantabout, Chandler's Ford

3 Bedroom Detached House | Offers in excess of £425,000

A three bedroom detached home situated in the popular Scantabout area which is conveniently placed for access to the loc...

Tomkyns Close, Knightwood Park, Chandler's Ford

3 Bedroom House | £435,000

A delightful three-bedroom detached home nestled in a quiet cul-de-sac location in the ever-popular Knightwood Park. On...

Chestnut Rise, Chandler's Ford

3 Bedroom Semi-Detached House | £440,000

Nestled in the corner of this idyllic Georgian style cul de sac location, this immaculate three bedroom semi detached ho...

Brownhill Road, Chandler's Ford

3 Bedroom Semi-Detached House | Offers in excess of £450,000

A stunning three bedroom semi-detached house presented in excellent condition throughout and pleasantly situated in an e...

Sparks Ellison (Chandler's Ford)

Chandler's Ford, Hampshire, SO53 2GJ

02380 255333

How much is your home worth?

Use our short form to request a valuation of your property.

Request a Valuation

Mortgage Calculator

Amount Borrowed: £
Total Amount Repayable: £
Total Monthly Payment: £
©2025 The Guild of Property Professionals. All rights reserved. Terms and Conditions | Privacy Policy | Cookie Policy | Complaints Policy | Members Login
The Guild of Property Professionals Trading Address: 121 Park Lane, London W1K 7AG. GPEA Limited. Registered in England & Wales.  Company No: 02819824.  Registered Office Address: 2 St. Stephen's Court, St. Stephen's Road, Bournemouth, Dorset, England, BH2 6LA.  VAT Registration No: 576 8795 61
Book a Property Valuation Update Cookies Preferences