Osborne Drive, Chandler's Ford

£325,000
SSTC
This property listing is now SSTC

3 Bedroom End of Terrace House for sale in Chandler's Ford

1 3 1

Situated in the popular cul de sac of Osborne Drive, this end terraced house offers a delightful blend of comfort and convenience. Built in 1973, the property boasts three well-proportioned bedrooms, making it an ideal home for families or those seeking extra space. The house features a well-appointed bathroom and a practical kitchen, ensuring all your daily needs are met. There is a driveway providing off road parking, along with a garage for additional storage or parking options. The property is conveniently located with access to the town centre, as well as the M3 and M27 motorways. Importantly, this property is offered with no forward chain, allowing for a smooth and efficient purchase process. Whether you are a first-time buyer or looking to downsize, this terraced house presents an excellent opportunity to secure a lovely home in a sought-after area.

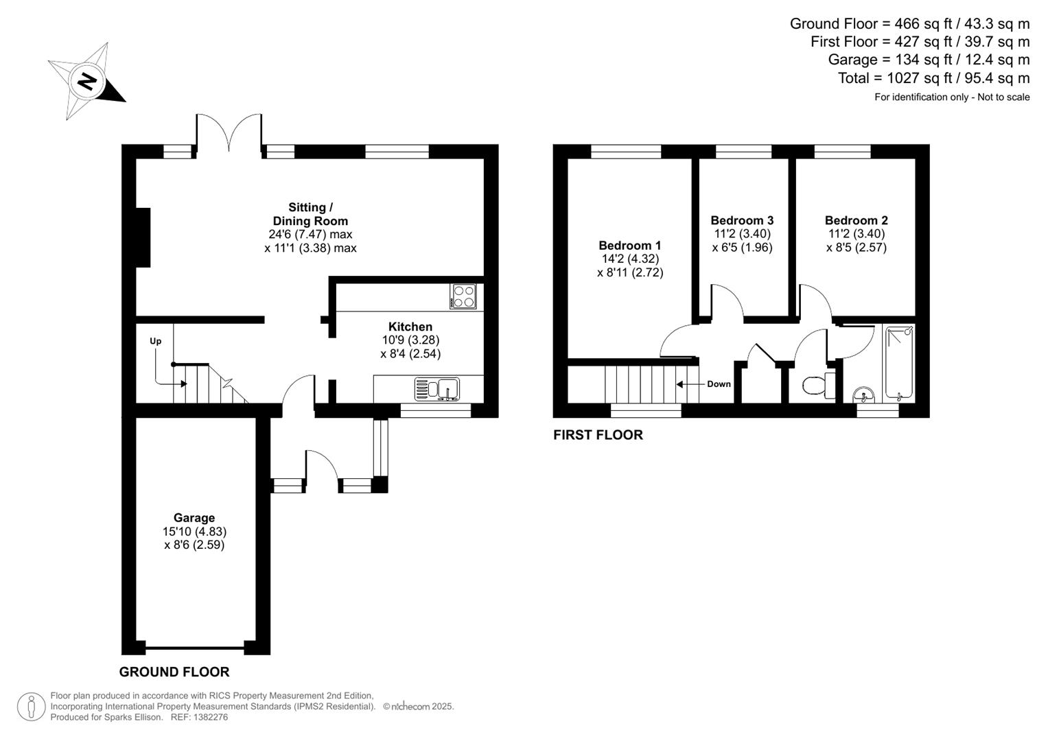
Accommodation -

Ground Floor -

Entrance Porch: -

Entrance Hall: - Stairs to first floor.

Kitchen: - 10'9" x 4'4" (3.28m x 2.54m) Comprising space for cooker, space for fridge freezer, space and plumbing for washing machine, space and plumbing for dishwasher,.

Sitting/Dining Room: - 24'6" x 11'1" (7.47m x 3.38) Fireplace surround and hearth, space for table and chairs.

First Floor -

Landing: - Access to loft space, cupboard housing boiler.

Bedroom 1: - 14'2" x 8'11" (4.32m x 2.72m)

Bedroom 2: - 11'2" x 8'5" (3.40m x 2.57m)

Bedroom 3: - 11'2" x 6'5" (3.40m x 1.96m)

Bathroom: - Comprising bath with shower over, wash hand basin.

Cloakroom: - Comprising WC.

Outside -

Front: - Comprising area laid to shingle, mature bushes and plants, driveway providing off road parking.

Rear Garden: - Measures approximately 32' x 26' and comprises block paved patio area, area laid to shingle, mature plants and bushes.

Garage: - 15'10" x 8'6" (4.83m x 2.59m) With up an dover door.

Other Information -

Tenure: - Leasehold - Please note the property is currently leasehold shared ownership but will revert to Freehold once a purchase is completed via the staircasing process.

Approximate Age: - 1969

Approximate Area: - 1027sqft/95.4sqm (Including garage)

Sellers Position: - No forward chain

Heating: - Gas central heating

Windows: - UPVC double glazing

Loft Space: - Light connected

Infant/Junior School: - Fryern Infant/Junior School

Secondary School: - Toynbee Secondary School

Council Tax: - Band C

Local Council: - Eastleigh Borough Council - 02380 688000

Agents Note: - If you have an offer accepted on a property we will need to, by law, conduct Anti Money Laundering Checks. There is a charge of £60 including vat for these checks regardless of the number of buyers involved.

Property Ref: 34312097

Share:

Similar Properties

Oakmount Road, Chandler's Ford

3 Bedroom Semi-Detached House | £325,000

A conveniently situated three bedroom semi-detached home offered for sale with no forward chain, that would also benefit...

Church Lane, Colden Common

2 Bedroom Terraced House | £325,000

Situated within the sought-after village of Colden Common, this well presented terraced home on Church Lane offers a sup...

Mead Road, Chandler's Ford, Eastleigh

2 Bedroom Semi-Detached Bungalow | £325,000

This delightful two-bedroom semi-detached bungalow presents an excellent opportunity for those seeking a comfortable and...

Monmouth Close, Valley Park, Chandler's Ford

2 Bedroom Semi-Detached Bungalow | Offers in excess of £335,000

A modern two bedroom semi detached bungalow situated in a sought-after cul-de-sac within the Valley Park development. Th...

Hamble Court, Chandler's Ford

3 Bedroom Terraced House | £335,000

Welcome to this wonderful terraced house located in the peaceful cul-de-sac of Hamble Court, Chandler's Ford. This delig...

Westmorland Way, Chandlers Ford

3 Bedroom Terraced House | £335,000

Located on Westmorland Way, Chandlers Ford, and built around 1970, the property has been beautifully presented and thoug...

Sparks Ellison (Chandler's Ford)

Chandler's Ford, Hampshire, SO53 2GJ

02380 255333

How much is your home worth?

Use our short form to request a valuation of your property.

Request a Valuation

Mortgage Calculator

Amount Borrowed: £
Total Amount Repayable: £
Total Monthly Payment: £
©2026 The Guild of Property Professionals. All rights reserved. Terms and Conditions | Privacy Policy | Cookie Policy | Complaints Policy | Members Login
The Guild of Property Professionals Trading Address: 121 Park Lane, London W1K 7AG. GPEA Limited. Registered in England & Wales.  Company No: 02819824.  Registered Office Address: 2 St. Stephen's Court, St. Stephen's Road, Bournemouth, Dorset, England, BH2 6LA.  VAT Registration No: 576 8795 61
Book a Property Valuation Update Cookies Preferences