Bournemouth Road, Chandler's Ford

£299,950
SSTC
This property listing is now SSTC

2 Bedroom Semi-Detached House for sale in Chandler's Ford

1 2 2

This charming semi detached house on Bournemouth Road offers a delightful blend of modern living and classic character. Originally built c.1930, the property has been thoughtfully refurbished in 2025, ensuring a fresh and contemporary feel throughout. Boasting two bedrooms and two stylish bathrooms, this home is perfect for small families or professionals seeking a comfortable and convenient lifestyle. The bright sitting room provides a welcoming atmosphere, ideal for relaxation or entertaining guests. The large kitchen/dining room is a standout feature, equipped with built in appliances and ample space for dining, making it the perfect hub for family gatherings. Additionally, a utility room adds practicality to daily living. The property benefits from off road parking, a valuable asset in this central location. The enclosed garden offers a private outdoor space, perfect for enjoying the fresh air or hosting summer barbecues. With its proximity to the train station, commuting is made easy, allowing for quick access to nearby cities. Furthermore, the absence of a forward chain simplifies the buying process, making this property an attractive option for those looking to move swiftly.

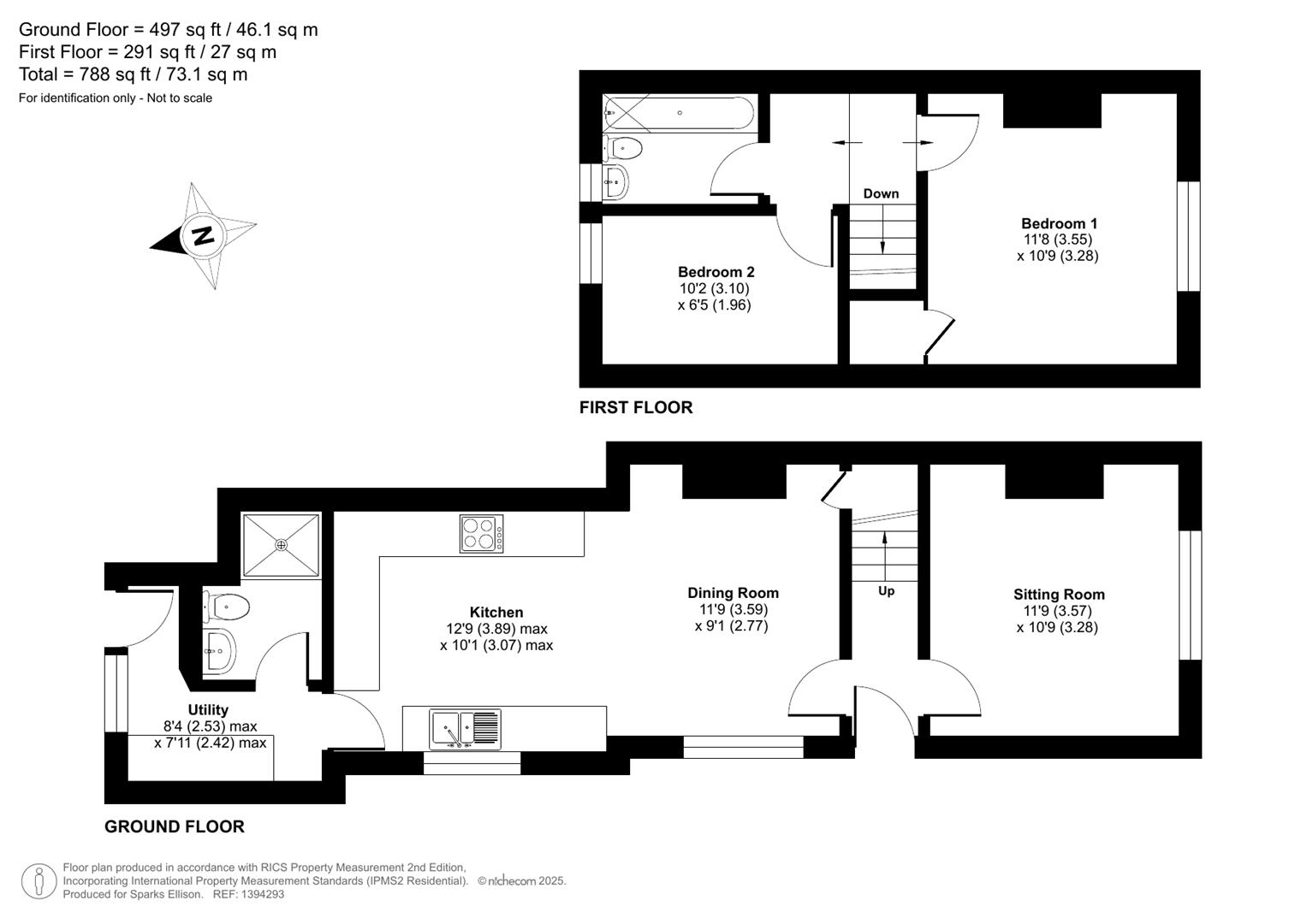
Accommodation -

Ground Floor -

Entrance Hall: - Stairs to first floor.

Sitting Room: - 11'9" x 10'9" (3.57m x 3.28m)

Kitchen/Dining Room: - Kitchen area: 12'9" x 10'1" (3.89m x 3.07m) Dining area: 11'9" x 9'1" (3.59m x 2.77m) Built in oven, built in microwave, built in electric hob, fitted extractor hood, integrated fridge freezer, integrated dishwasher, integrated wine cooler, under stairs storage cupboard.

Utility Room: - 8'4" x 7'11" (2.53m x 2.42m) Space and plumbing for washing machine, space for tumble dryer, wall mounted boiler, door to rear.

Shower Room: - Comprising shower in cubicle, wash hand basin, WC.

First Floor -

Landing: -

Bedroom 1: - 11'8" x 10'9" (3.55m x 3.28m) Built in storage cupboard.

Bedroom 2: - 10'2" x 6'5" (3.10m x 1.96m)

Bathroom: - Comprising bath with shower over, wash hand basin, WC.

Outside -

Front: - Area laid to shingle, area laid to lawn.

Rear Garden: - Measures approximately 42' x 14' and comprises area laid to lawn, area laid to shingle, outside tap, gate to driveway.

Parking: - There is a driveway at the rear of the property providing off road parking.

Other Information -

Tenure: - Freehold

Approximate Age: - 1930's

Approximate Area: - 73.1sqm/788sqft

Sellers Position: - No forward chain

Heating: - Gas central heating

Windows: - UPVC double glazed windows

Infant/Junior School: - Chandler's Ford Infant/Merdon Junior School

Secondary School: - Toynbee Secondary School

Council Tax: - Band B

Local Council: - Eastleigh Borough Council - 02380 688000

Agents Note: - If you have an offer accepted on a property we will need to, by law, conduct Anti Money Laundering Checks. There is a charge of £60 including vat for these checks regardless of the number of buyers involved.

Property Ref: 34380181

Share:

Similar Properties

Westmorland Way, Chandler's Ford

3 Bedroom Terraced House | £290,000

A three bedroom terraced house on Westmorland Way presenting an excellent opportunity for those looking to create their...

Porteous Crescent, Peverells Wood, Chandler's Ford

3 Bedroom End of Terrace House | £280,000

Situated in the popular Peverells Wood area of Chandler's Ford, this three-bedroom terraced home offers excellent potent...

Ashdown Close, Hiltingbury, Chandler's Ford

3 Bedroom Maisonette | £269,000

Situated in the popular cul-de-sac of Ashdown Close, this charming three-bedroom duplex maisonette boasts well-proportio...

Dean Place, 24 Hursley Road, Hursley Road, Chandler's Ford, Eastleigh

2 Bedroom Flat | £300,000

Located on Hursley Road, this spacious first-floor apartment forming part of a prestigious and highly desirable developm...

Drum Road, Eastleigh

3 Bedroom Terraced House | Offers in excess of £300,000

This wonderful three-bedroom terraced house located on Drum Road in the heart of Eastleigh. This delightful property boa...

Peverells Wood Close, Peverells Wood, Chandler's Ford

3 Bedroom Terraced House | Offers in excess of £300,000

A three bedroom home situated in a cul-de-sac within the popular Peverells Wood area. The convenient location is within...

Sparks Ellison (Chandler's Ford)

Chandler's Ford, Hampshire, SO53 2GJ

02380 255333

How much is your home worth?

Use our short form to request a valuation of your property.

Request a Valuation

Mortgage Calculator

Amount Borrowed: £
Total Amount Repayable: £
Total Monthly Payment: £
©2026 The Guild of Property Professionals. All rights reserved. Terms and Conditions | Privacy Policy | Cookie Policy | Complaints Policy | Members Login
The Guild of Property Professionals Trading Address: 121 Park Lane, London W1K 7AG. GPEA Limited. Registered in England & Wales.  Company No: 02819824.  Registered Office Address: 2 St. Stephen's Court, St. Stephen's Road, Bournemouth, Dorset, England, BH2 6LA.  VAT Registration No: 576 8795 61
Book a Property Valuation Update Cookies Preferences