Stonechurch Court, Combe Street, Chard, Somerset, TA20

Guide Price
£147,500
SSTC
This property listing is now SSTC

2 Bedroom Apartment for sale in Chard

1 2 1

Offered to the market this bright and spacious two bedroom first floor apartment, ideally situated just a short walk from the town centre. Benefitting from its own private entrance, this well maintained property combines modern features with excellent convenience.

The apartment features two double bedrooms, fully fitted kitchen with integrated appliances, a modern fitted shower room, living and dining room with double aspect windows. It benefits from modern LED lighting for energy efficiency, motion sensitive lights through stairway and landing and a secure video entry system with intercom. Within easy access to shops, amenities and public transport it is an excellent choice for comfortable town living.

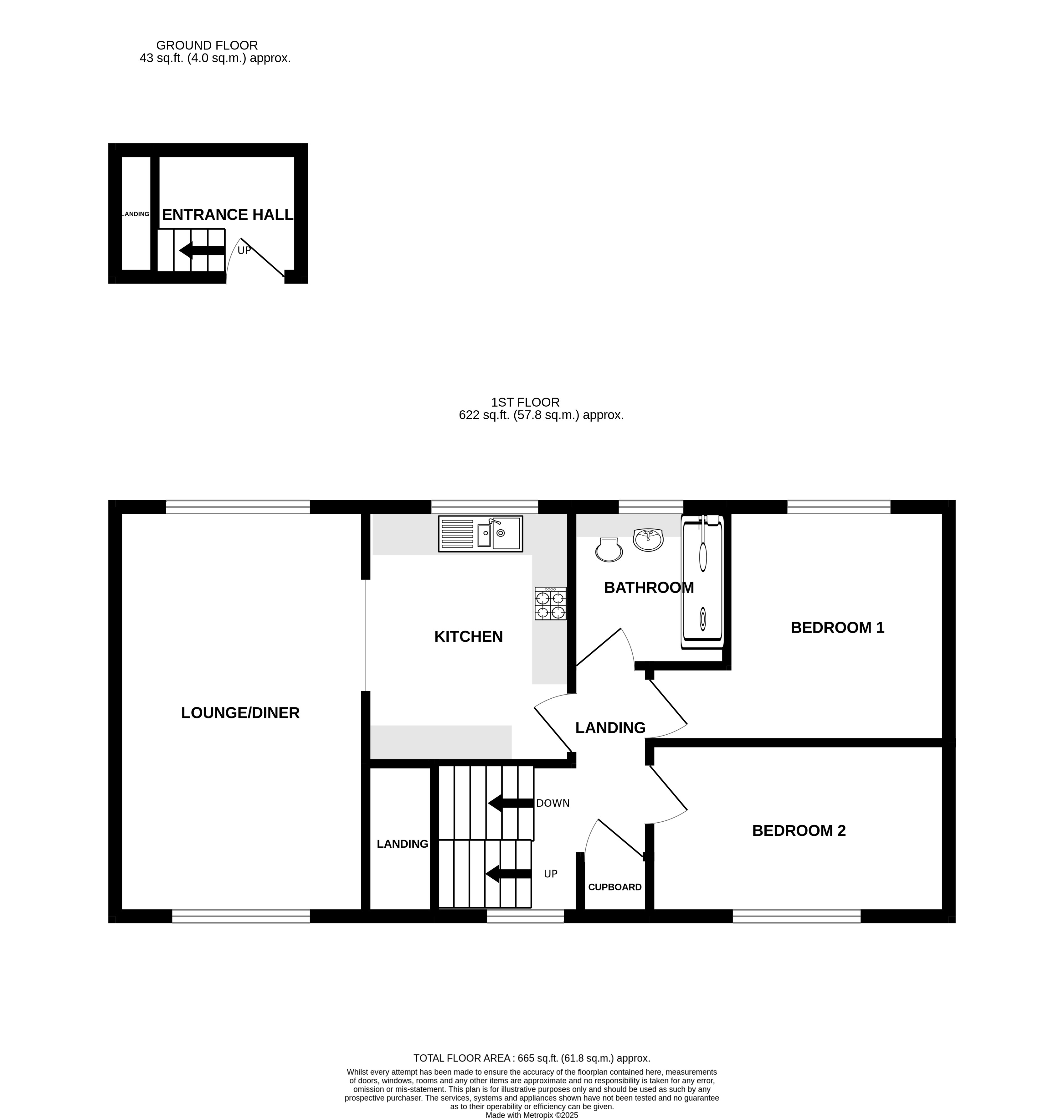
Accommodation comprises, entrance hall, stairway and landing, two double bedrooms, kitchen, living - dining room, shower room. Double glazing throughout and gas central heating.

Tenure: Share of Freehold
Council Tax Band: A
EPC Rating: B

Entrance Hall    Via a double glazed door to entrance hall with understairs storage area, radiator and stairs to first floor.

Landing    Front aspect double glazed window, storage cupboard with shelves, loft hatch access, doors to:

Kitchen 10'10" x 8'10" (3.3m x 2.7m). Rear aspect double glazed window, a range of base and wall mounted units with roll edge work top and tiled splash back, inset 1? bowl ceramic sink with mixer tap, integrated appliances include Montpellier oven with 4 ring induction hob and extractor hood over, fridge freezer and washer/dryer, radiator. Open arch leading to:

Living / Dining Room 17'11" x 10'9" (5.46m x 3.28m). Double aspect room to the front and rear elevation with double glazed windows, x2 radiators.

Shower Room 6'6" x 6'1" (1.98m x 1.85m). Rear aspect double glazed window, built in vanity unit with wash hand basin and WC, vanity light with shaver socket, walk in shower with screen and tiled surround, heated towel rail.

Bedroom 1 12'9" x 10'1" (3.89m x 3.07m). Rear aspect double glazed window, radiator.

Bedroom 2 12'9" x 7'6" (3.89m x 2.29m). Front aspect double glazed window, radiator.

Property Information    Please note the 4 flats each own a ? share of the freehold. Each owner is a director of the Combe Street Flats (Chard) Limited and together set an annual service payment (currently ?35pcm) to cover communal expenses including buildings insurance and external painting.

Services
Mains gas, water, electricity and drainage

Important Information

  • This is a Share of Freehold property.

Property Ref: PFE250056

Share:

Similar Properties

The Maltings, Chard, Somerset, TA20

2 Bedroom Apartment | £145,000

This well-presented two-bedroom first floor apartment is available exclusively for those aged 55 and over, and enjoys an...

Campion Gardens, Chard, Somerset, TA20

1 Bedroom Terraced House | £140,000

A well-presented one-bedroom mid-terrace home, offered to the market with no onward chain, benefiting from allocated par...

Bath Street, Chard, Somerset, TA20

1 Bedroom End of Terrace House | £130,000

Charming and full of character, this attractive Grade II listed one bedroom cottage offers a wonderful opportunity to en...

Bubwith Close, Chard, Somerset, TA20

1 Bedroom Terraced House | £148,000

Offered to the market with NO ONWARD CHAIN. A One Bedroom Home perfect for a first time buyer or Investment property ben...

Bryer Close, Chard, Somerset, TA20

1 Bedroom Semi-Detached House | £150,000

This well-presented one bedroom home, offered for sale with the added advantage of no onward chain, represents an ideal...

Stringfellow Close, Chard, Somerset, TA20

2 Bedroom Terraced House | £165,000

A beautifully refurbished two double bedroom ex-local authority home, offered to the market with no onward chain.

Paul Fenton Estate Agents (Chard)

34 Fore Street, Chard, Somerset, TA20 1PT

01460 68222

How much is your home worth?

Use our short form to request a valuation of your property.

Request a Valuation

Mortgage Calculator

Amount Borrowed: £
Total Amount Repayable: £
Total Monthly Payment: £
©2026 The Guild of Property Professionals. All rights reserved. Terms and Conditions | Privacy Policy | Cookie Policy | Complaints Policy | Members Login
The Guild of Property Professionals Trading Address: 121 Park Lane, London W1K 7AG. GPEA Limited. Registered in England & Wales.  Company No: 02819824.  Registered Office Address: 2 St. Stephen's Court, St. Stephen's Road, Bournemouth, Dorset, England, BH2 6LA.  VAT Registration No: 576 8795 61
Book a Property Valuation Update Cookies Preferences