Campion Gardens, Chard, Somerset, TA20

£140,000

1 Bedroom Terraced House for sale in Somerset

1 1 1

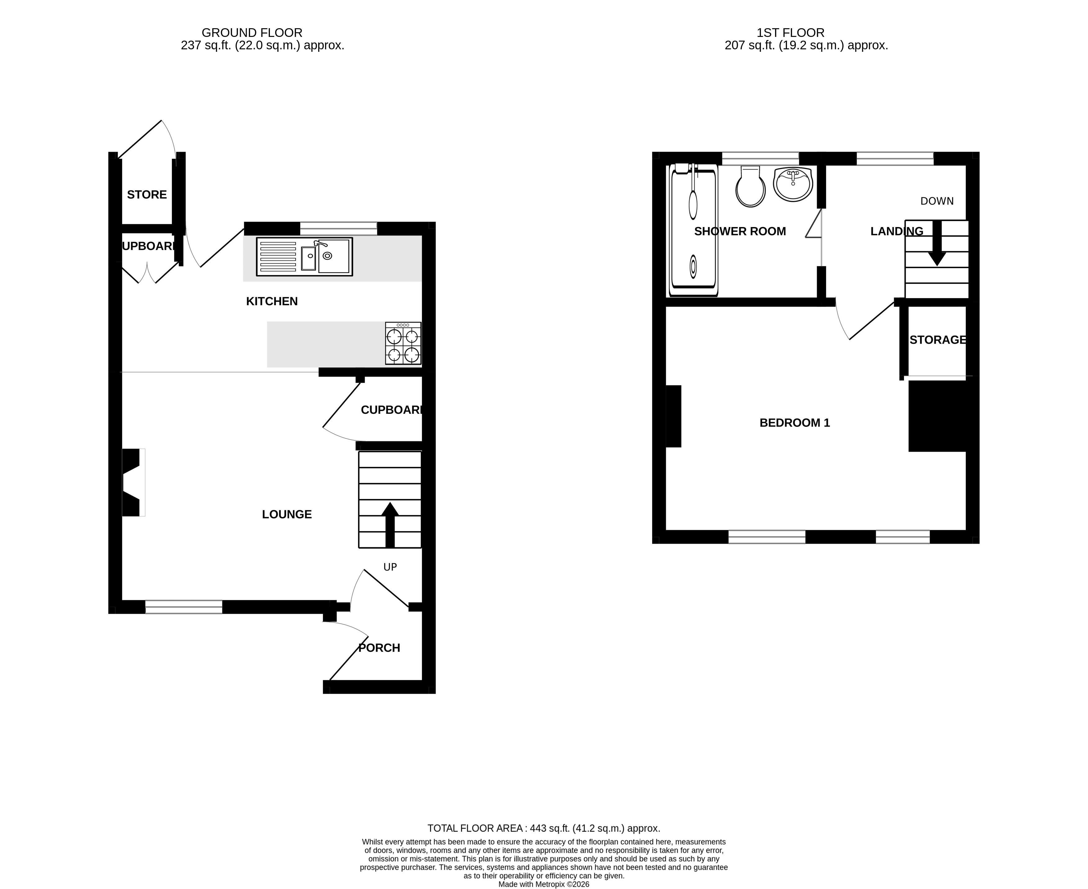
A well-presented one-bedroom mid-terrace home, offered to the market with no onward chain, benefiting from allocated parking and an enclosed rear garden.The ground floor features a bright open-plan living space, with the lounge flowing seamlessly into a fitted kitchen. To the first floor, there is a generous double bedroom, along with a modern shower room.Externally, the property offers a parking space to the front and a private, enclosed garden to the rear, ideal for low-maintenance outdoor living.Further benefits include double glazing and gas central heating.Accommodation comprises: entrance porch, lounge, kitchen, double bedroom, shower room, and outside store.

Entrance Porch    uPVC main entrance door into entrance porch. Coat hanging space and door into lounge.

Lounge 13'5" (4.09m) narrowing to 10'7" (3.23m) x 10' (3.06m) excluding stairs.. Double glazed window to the front aspect, radiator, television point, stairs rising to first floor and understairs storage cupboard. Opening through to Kitchen.

Kitchen 13'4" x 6'1" (4.06m x 1.85m). Fitted with a selection of modern upgraded wall and base units set beneath worktops with tiled splash backs, inset one and a half bowl sink and drainer. Space for cooker, space for fridge, space for slimline dishwasher. Radiator. Boiler cupboard housing wall mounted Worcester boiler. Double glazed window and door out to the rear aspect.

First Floor Landing    Double glazed window to the rear aspect and doors to all principle rooms.

Bedroom One 13'5" (4.08m) narrowing to 10'2" (3.10m) x 10' (3.05m) including wardrobes. Two front aspect double glazed windows, over stairs storage cupboard, radiator and telephone point.

Shower Room    Modern fitted with a three piece suite consisting of open shower with glass screen, pedestal wash hand basin and low level W.C. and opaque double glazed window to the rear aspect.

Front    The front is laid to concrete providing off street parking.

Rear    A paved patio area provides the perfect space for outdoor dining, leading to a neatly arranged decorative stone garden. The garden is fully enclosed by timber fencing, offering a good degree of privacy, with mature trees beyond creating a pleasant, leafy backdrop. A charming curved retaining wall adds character, while the tiered layout enhances the sense of space. There is an additional store room with power and plumbing for washing machine.

Property Information    Services
Mains gas, water, electric and drainage.

Broadband and mobile coverage
Ultrafast Broadband is available in this area and mobile signal should be available from all four major providers outdoors and two major providers indoors. Information supplied by ofcom.org.uk

Important Information

  • This is a Freehold property.

Property Ref: PFE260075

Share:

Similar Properties

Bath Street, Chard, Somerset, TA20

2 Bedroom End of Terrace House | £125,000

A two bedroom Cottage requiring full refurbishment throughout, the property offers fantastic potential for investors, de...

Bath Street, Chard, Somerset, TA20

2 Bedroom Terraced House | £115,000

A two bedroom Cottage requiring full refurbishment throughout, the property offers fantastic potential for investors, de...

Henson Park, Chard, Somerset, TA20

2 Bedroom Apartment | £105,000

A good-sized, refurbished two-bedroom second floor apartment overlooking the park with NO ONWARD CHAIN.Accommodation com...

Stonechurch Court, Combe Street, Chard, Somerset, TA20

2 Bedroom Apartment | Guide Price £147,500

Offered to the market this bright and spacious two bedroom first floor apartment, ideally situated just a short walk fro...

Bubwith Close, Chard, Somerset, TA20

1 Bedroom Terraced House | £148,000

Offered to the market with NO ONWARD CHAIN. A One Bedroom Home perfect for a first time buyer or Investment property ben...

Helmstedt Way, Chard, Somerset, TA20

1 Bedroom Terraced House | £150,000

This well-presented 1-bedroom house offers comfortable, modern living in a popular location. The property features an op...

Paul Fenton Estate Agents (Chard)

34 Fore Street, Chard, Somerset, TA20 1PT

01460 68222

How much is your home worth?

Use our short form to request a valuation of your property.

Request a Valuation

Mortgage Calculator

Amount Borrowed: £
Total Amount Repayable: £
Total Monthly Payment: £
©2026 The Guild of Property Professionals. All rights reserved. Terms and Conditions | Privacy Policy | Cookie Policy | Complaints Policy | Members Login
The Guild of Property Professionals Trading Address: 121 Park Lane, London W1K 7AG. GPEA Limited. Registered in England & Wales.  Company No: 02819824.  Registered Office Address: 2 St. Stephen's Court, St. Stephen's Road, Bournemouth, Dorset, England, BH2 6LA.  VAT Registration No: 576 8795 61
Book a Property Valuation Update Cookies Preferences