Bilston Villas, Crimchard, Chard, Somerset, TA20

£250,000

3 Bedroom Terraced House for sale in Chard

2 3 2

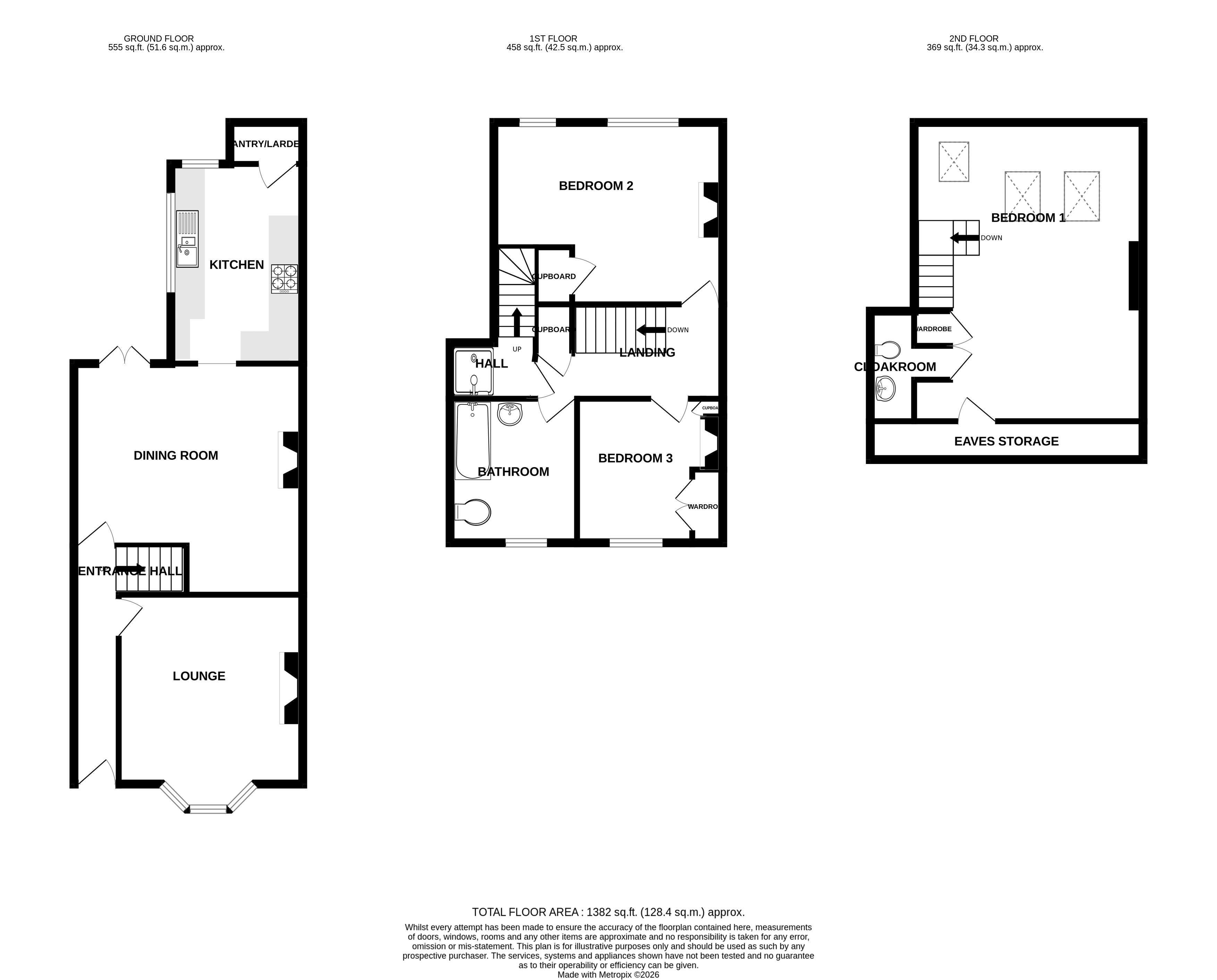
This exceptionally well presented three-bedroom terraced Period property effortlessly combines character and charm with modern convenience, offering spacious and versatile accommodation arranged over three floors.Rich in original features, the home boasts an array of attractive period details including ornate ceiling roses, picture rails, decorative cornicing, exposed wooden floorboards and beautifully preserved tiled fireplaces, all of which enhance the property?s timeless appeal. The ground floor provides two generous reception rooms, ideal for both relaxing and entertaining.The kitchen has been thoughtfully designed and fitted with an extensive range of stylish shaker-style wall and base units, complemented by integrated appliances including a dishwasher, washing machine, fridge freezer and cooker. This impressive space is further enhanced by the addition of a large larder/pantry, providing excellent storage.To the first floor, the property continues to impress with a spacious second bedroom featuring a striking antique-style fireplace and two double glazed windows overlooking the rear aspect, allowing for plenty of natural light. A third bedroom and a well-appointed bathroom complete this level. From the landing, a door opens into an enclosed shower cubicle with mains shower, alongside a staircase rising to the second floor.Occupying the entire top floor, the main bedroom is a superb and expansive space, filled with natural light from three skylights fitted with blinds. This impressive room is complemented by an adjoining cloakroom, creating a private and peaceful retreat.Externally, the property benefits from a long-established rear garden, offering a delightful outdoor space to enjoy throughout the seasons. This charming home presents a rare opportunity to acquire a characterful period property finished to a high standard throughout.

Tenure: Freehold
Council Tax Band: B
EPC Rating: TBC

Accommodation comprises: Entrance hall, lounge, dining room, kitchen, two first floor bedrooms and bathroom with seperate shower cubicle, second floor main bedroom with adjoining W.C.

Entrance Hall    Covered porch with wooden main entrance door into entrance hall. Decorative wall panelling, stairs to first floor, radiator and doors to lounge and dining room.

Lounge 14'2" x 11'10" (4.32m x 3.6m). Feature fire place, radiator, uPVC double glazed Sash bay window to the front aspect. Attractive character features such as plaster moulded ceiling rose, cornices and picture rail.

Dining Room 15'3" x 15'3" (4.65m x 4.65m). Attractive fireplace with wooden mantle, tiled surround and hearth with inset wood burner. Exposed wooden floorboards. Television point. uPVC double glazed French doors leading to the rear garden. Opening through to kitchen.

Kitchen 13'4" x 8'10" (4.06m x 2.7m). Beautiful fitted kitchen with a vast selection of wall and base units set beneath worktops with inset one and half bowl ceramic sink. Inset electric oven with gas hob and hood over. Integrated fridge freezer, integrated dishwasher and integrated washing machine. Concealed wall mounted central heating boiler. Two double glazed window to the side and rear aspects. Door to large larder/ pantry.

First Floor Landing    Built-in storage cupboard. Door with stairs leading to second floor and access to a walk-in shower cubicle housing mains shower with rainfall shower head and additional shower attachment, spotlights and extractor. Doors to all principal rooms.

Bedroom Two 15'3" (4.65m) narrowing to 10'11" (3.33m). Antique style feature fireplace. Two uPVC double glazed windows to the rear aspect with views over the garden and town beyond, radiator, fitted wardrobe.

Bedroom Three 9'3" x 9'2" (2.82m x 2.8m). uPVC double glazed sash window to the front aspect, radiator, fitted storage cupboards and feature antique style fireplace.

Bathroom    Benefiting a three piece suite consisting of tiled bath with mixer shower attachment over, pedestal wash hand basin, low level W.C. Heated towel rail, radiator and uPVC double glazed sash window to the front aspect.

.    Stairs up to second floor.

Bedroom One 13'7" x 15'1" (4.14m x 4.6m). A lovely spacious attic bedroom converted many years ago creating a light and spacious bedroom area with fitted wardrobe and adjoining W.C. Thee skylights to the rear aspect with fitted blinds. Television point and access to eaves storage.

Cloakroom    Fitted with a two-piece suite comprising low-level W.C. and pedestal wash hand basin.

Outside    To the front of the property there is a pathway leading to the front entrance door and an enclosed small garden.
To the side of the property there is a shared alley way for numbers 20 and 22 which gives access to the rear garden. The good size rear garden is predominantly laid to lawn at the rear enclosed by a mixture of mature planting.
A paved seating area gives access to the double doors into the dining room. Wooden steps lead down to a useful brick-built store room and a wooden storage shed with a path leading to the lawn area. Outside tap.

Property Information    Services
Mains water, drainage, gas and electric.

Broadband and Mobile Coverage
Superfast Broadband is available in this area and mobile signal should be available indoors from all four major providers and outdoors from all four major providers. Information supplied by ofcom.org.uk

Important Information

  • This is a Freehold property.

Property Ref: PFE260050

Share:

Similar Properties

Marlpit Cottages, South Chard, Chard, TA20

3 Bedroom Semi-Detached House | Offers in excess of £250,000

Positioned in a rural setting, this charming three-bedroom semi-detached stone cottage sits within generous gardens that...

Glynswood, Chard, Somerset, TA20

3 Bedroom Semi-Detached House | £250,000

A well-presented three-bedroom semi-detached home with gardens to three sides, offering excellent outdoor space with a d...

Thatch Cottages, Western Way, Winsham, Somerset, TA20

2 Bedroom Terraced House | £250,000

NO ONWARD CHAIN.A delightful Grade II listed, two double bedroom thatched cottage, rich in character and ideally positio...

Park Terrace, Chard, Somerset, TA20

3 Bedroom Terraced House | £260,000

Charming Three-Bedroom Period Terraced Home with Elevated Position, Long Garden & Detached GarageOccupying a delightful...

King Cuthred Close, Chard, Somerset, TA20

3 Bedroom Semi-Detached House | £260,000

A three bedroom semi detached family home located in a cul de sac location with good size enclosed rear garden. The entr...

Bampton Avenue, Chard, Somerset, TA20

3 Bedroom Semi-Detached House | £260,000

This beautifully presented three-bedroom semi-detached home has been cosmetically updated by the current owners to creat...

Paul Fenton Estate Agents (Chard)

34 Fore Street, Chard, Somerset, TA20 1PT

01460 68222

How much is your home worth?

Use our short form to request a valuation of your property.

Request a Valuation

Mortgage Calculator

Amount Borrowed: £
Total Amount Repayable: £
Total Monthly Payment: £
©2026 The Guild of Property Professionals. All rights reserved. Terms and Conditions | Privacy Policy | Cookie Policy | Complaints Policy | Members Login
The Guild of Property Professionals Trading Address: 121 Park Lane, London W1K 7AG. GPEA Limited. Registered in England & Wales.  Company No: 02819824.  Registered Office Address: 2 St. Stephen's Court, St. Stephen's Road, Bournemouth, Dorset, England, BH2 6LA.  VAT Registration No: 576 8795 61
Book a Property Valuation Update Cookies Preferences