Elm Avenue, Chatham, ME4

Offers in excess of
£395,000
SSTC
This property listing is now SSTC

4 Bedroom Terraced House for sale in Chatham

1 4 1
  • Must Be Seen
  • Stunning Four Bedroom Terraced
  • Beautifully Presented Throughout
  • Contemporary Bathroom
  • Integrated Appliances/Utility Room
  • Walking Distance to Chatham Station
  • Landscaped Spacious Rear Garden
  • Block Paved Driveway
  • Finished to a High Standard

If you are looking for a beautifully presented family home then you need not look any further. The current owners have placed a lot of love and tender care which has been designed with a contemporary style and comfort in mind.

On entering you are welcomed to a spacious entrance hallway which gives plenty of room for the family shoes and coats with stairs leading to the first floor. Continuing through to the lounge, this is a great room to chill and unwind with a feature bay window and shutters. The heart of this home is the contemporary open plan kitchen/diner which is well equipped with a host of integrated appliances, this to include double oven, induction hob, dishwasher and wine cooler. 

It is very noticeable how bright and spacious the property is with natural light and French doors lead out onto the terrace. Continuing on the ground floor you have the benefit of the utility room with further fitted units. The family bathroom is finished to a high standard with a separate shower cubicle with modern fitted accessories.

Moving upstairs you are welcomed to the spacious landing and it is noticeable again the owners have presented with new feature doors. There are four bedrooms, the premium is offered with fitted wardrobes, all tastefully decorated throughout.

The exterior of the property has been landscaped with low maintenance in mind. Stylish decking area, perfect for for outdoor entertaining and relaxing. Also with the benefit of artificial grass, enclosed with fence surround including outdoor power. The block paved driveway provides ample off road parking.

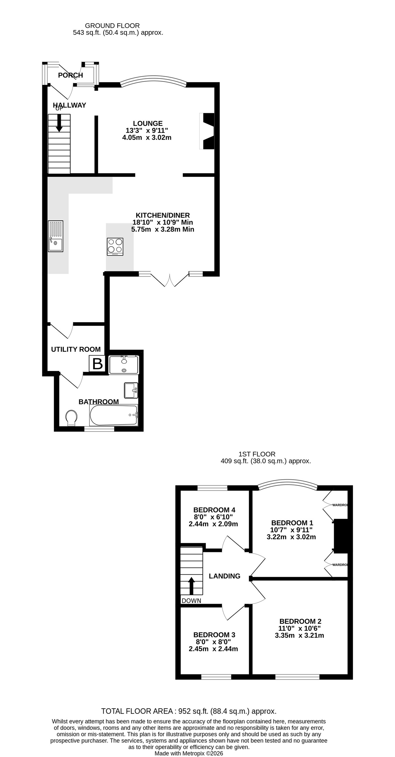
The additional highlight includes new carpets throughout the bedrooms for extra comfort. With its open plan living and substantial outdoor space this truly is an outstanding family or professional home for those seeking to move straight in.Ground Floor

Entrance Hallway

Lounge
13' 3" x 9' 11" (4.04m x 3.02m)

Kitchen/Diner
18' 10" x 10' 9" (5.74m x 3.28m)

Utility Room

Bathroom

First Floor

Bedroom 1
10' 7" x 9' 11" (3.23m x 3.02m)

Bedroom 2
11' 0" x 10' 6" (3.35m x 3.20m)

Bedroom 3
8' 0" x 8' 0" (2.44m x 2.44m)

Bedroom 4
8' 0" x 6' 10" (2.44m x 2.08m)

Important Information

  • This is a Freehold property.

Property Ref: 29894951

Share:

Similar Properties

Gerrard Avenue, Rochester, ME1

2 Bedroom Bungalow | Guide Price £395,000

Guide Price £395,000 - £425,000We are pleased to offer this two double bedroom detached bungalow situated in one of the...

Papion Grove, Walderslade Woods, ME5

2 Bedroom Detached Bungalow | £395,000

Being offered with no onward chain is this well presented two bedroom detached bungalow. This lovely home has been very...

Bronington Close, Princes Park, Chatham, ME5

3 Bedroom Detached House | £385,000

Exceptional detached house in the ever popular Princes Park, suburb of Chatham. Local schools, supermarket and amenities...

Golve Drive, Chatham, ME5

3 Bedroom Detached House | Guide Price £400,000

Guide Price £400,000 - £425,000 Immaculately presented, this beautiful detached house is less than 10 years old so has a...

Romney Road, Walderslade, Chatham, ME5

3 Bedroom Detached House | Offers Over £400,000

We are pleased to offer this three bedroom detached home offering generous living space and family friendly practicality...

Princes Avenue, Walderslade, Chatham, ME5

3 Bedroom Detached Bungalow | Guide Price £425,000

Guide Price £425,000 - £450,000 We are pleased to offer to the market this individually built Detached Bungalow situated...

Greyfox Sales & Lettings (Walderslade)

Walderslade Village Centre, Walderslade, Walderslade, Kent, ME5 9LR

01634 672227

How much is your home worth?

Use our short form to request a valuation of your property.

Request a Valuation

Mortgage Calculator

Amount Borrowed: £
Total Amount Repayable: £
Total Monthly Payment: £
©2026 The Guild of Property Professionals. All rights reserved. Terms and Conditions | Privacy Policy | Cookie Policy | Complaints Policy | Members Login
The Guild of Property Professionals Trading Address: 121 Park Lane, London W1K 7AG. GPEA Limited. Registered in England & Wales.  Company No: 02819824.  Registered Office Address: 2 St. Stephen's Court, St. Stephen's Road, Bournemouth, Dorset, England, BH2 6LA.  VAT Registration No: 576 8795 61
Book a Property Valuation Update Cookies Preferences