Golve Drive, Chatham, ME5

Guide Price
£400,000
SSTC
This property listing is now SSTC

3 Bedroom Detached House for sale in Chatham

2 3 2
  • Three Bedroom Detached House
  • Immaculate Condition
  • Remainder of NHBC Guarantee
  • Ensuite
  • Downstairs Cloakroom
  • Modern Development in Chatham
  • Carport for 2+ Vehicles & EV Charge Point
  • Convenient Access for Town Centre

Guide Price £400,000 - £425,000

Immaculately presented, this beautiful detached house is less than 10 years old so has all the benefits of contemporary living and low maintenance. Situated on a popular development in close proximity to Chatham town centre with its array of shops and mainline station. From the moment you step into the entrance hall you get the feeling of space and light. There is a handy downstairs cloakroom. The kitchen/dining room is well appointed with marble effect worksurfaces and a range of integral appliances. The lounge is a lovely space in which to relax with square bay to the front, and patio doors leading out to the rear garden.

Upstairs are three bedrooms, all tastefully decorated, the main bedroom benefitting from a range of built in wardrobes and door to ensuite. The ensuite has a large shower cubicle, WC and wash hand basin. The other two bedrooms are of good proportions, ideal for a growing family or professional couples looking for home office space.

The rear garden has a patio area and is also laid to lawn with side gate access to the covered car port that can accommodate 2 or more vehicles. There is also an EV charging point.

This lovely freehold property must be viewed.

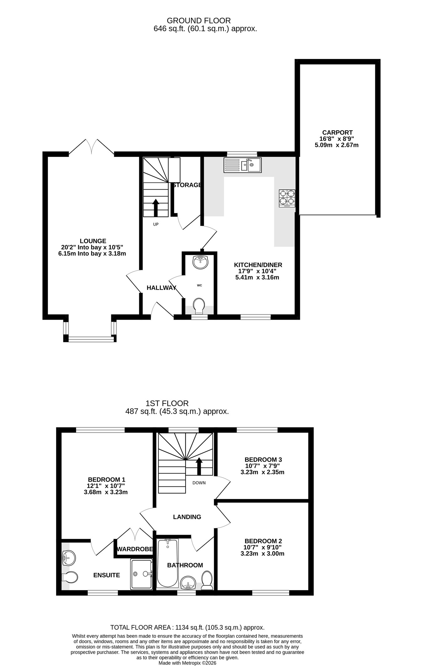
As with many new developments there is an annual charge for upkeep of grounds and streetlights - currently £415.03 per annum.Ground Floor

Entrance Hall

Downstairs Cloakroom
6' 4" x 3' 4" (1.93m x 1.02m)

Lounge
20' 2" x 10' 5" (6.15m x 3.17m)

Kitchen/Diner
17' 9" x 10' 4" (5.41m x 3.15m)

First Floor

Bedroom 1
12' 1" x 10' 7" (3.68m x 3.23m)

Ensuite
9' 3" x 5' 5" (2.82m x 1.65m)

Bedroom 2
10' 7" x 9' 10" (3.23m x 3.00m)

Bedroom 3
10' 7" x 7' 9" (3.23m x 2.36m)

Bathroom
7' 3" x 5' 6" (2.21m x 1.68m)

External

Carport
16' 8" x 8' 9" (5.08m x 2.67m)

Important Information

  • This is a Freehold property.

Property Ref: 29726823

Share:

Similar Properties

Ashtree Court, Hopewell Drive, Chatham, ME5

4 Bedroom Town House | Guide Price £400,000

Guide Price £400,000 - £435,000A great four bedroom terraced town house with integrated garage, set over three floors in...

Bronington Close, Princes Park, Chatham, ME5

3 Bedroom Detached House | Guide Price £400,000

Guide Price £400,000 - £425,000Exceptional detached house in the ever popular Princes Park, suburb of Chatham. Local sch...

Papion Grove, Walderslade Woods, ME5

2 Bedroom Detached Bungalow | £395,000

Being offered with no onward chain is this well presented two bedroom detached bungalow. This lovely home has been very...

Princes Avenue, Walderslade, Chatham, ME5

3 Bedroom Detached Bungalow | Guide Price £425,000

Guide Price £425,000 - £450,000 We are pleased to offer to the market this individually built Detached Bungalow situated...

Hathaway Court, Esplanade, Rochester, ME1

3 Bedroom Town House | Guide Price £425,000

Guide Price £425,000 - £450,000Being offered with no forward chain is this three double bedroom townhouse with versatile...

Romney Road, Walderslade, Chatham, ME5

3 Bedroom Detached House | Offers in region of £425,000

We are pleased to offer this three bedroom detached home offering generous living space and family friendly practicality...

Greyfox Sales & Lettings (Walderslade)

Walderslade Village Centre, Walderslade, Walderslade, Kent, ME5 9LR

01634 672227

How much is your home worth?

Use our short form to request a valuation of your property.

Request a Valuation

Mortgage Calculator

Amount Borrowed: £
Total Amount Repayable: £
Total Monthly Payment: £
©2026 The Guild of Property Professionals. All rights reserved. Terms and Conditions | Privacy Policy | Cookie Policy | Complaints Policy | Members Login
The Guild of Property Professionals Trading Address: 121 Park Lane, London W1K 7AG. GPEA Limited. Registered in England & Wales.  Company No: 02819824.  Registered Office Address: 2 St. Stephen's Court, St. Stephen's Road, Bournemouth, Dorset, England, BH2 6LA.  VAT Registration No: 576 8795 61
Book a Property Valuation Update Cookies Preferences