Regiment Gate, Springfield, Chelmsford

Shared Ownership
£81,250
SSTC
This property listing is now SSTC

2 Bedroom Maisonette for sale in Chelmsford

1 2 2
  • ***25% Share Of Ownership***
  • TWO DOUBLE Bedroom Coach House
  • IMPRESSIVE 20' Open Plan Living Space
  • EN-SUITE To Master Bedroom
  • 100% Share Available to Purchase*
  • IMMACULATELY PRESENTED THROUGHOUT
  • Allocated Parking For Two Vehicles With Further Visitor Bays
  • Walking Distance To Local School & Shops
  • Close Proximity To Beaulieu Station & Direct Access to A12
  • Additional Large Loft Space - Ideal For Storage

Offering ***25% SHARE OF OWNERSHIP*** and boasting a 20' OPEN PLAN living space with JULIETTE BALCONY plus EN-SUITE to master bedroom and large additional LOFT SPACE is this IMMACULATELY PRESENTED two double bedroom COACH HOUSE. Benefiting from well-kept communal areas, located on the desirable Beaulieu development and offered with TWO ALLOCATED parking spaces with visitors parking available. Ideally set within walking distance to local shops, schools & the new Beaulieu Train Station.

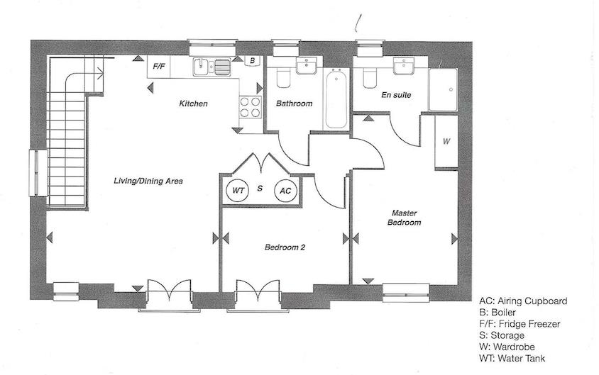
Entrance: - Secure composite entrance door onto small porch with stairs to first floor.

First Floor: -

Open Plan Living Space: - 6.30m x 5.69m (20'08" x 18'08") - Triple aspect double glazed windows to side over stairs, french doors with julliette balcony to front, window to front and window to rear, x2 radiators, wood effect flooring.

Kitchen Area: - Double glazed window to rear, roll edge work tops with stainless drainer sink inset, gas hob with extractor over, matching wall and base units with boiler housed, integrated dishwasher, fridge freezer, washing machine, oven, wood effect flooring.

Utility Cupboard: - Double cupboard housing water tank, with ample storage.

Master Bedroom: - 4.50m x 2.79m (14'09" x 9'02") - Double glazed window to front, built in wardrobes with sliding door, radiator, door to en-suite, carpet flooring.

Ensuite: - 2.77m x 1.47m (9'01" x 4'10") - Double glazed window to rear, double walk in shower, low level W/C, inset sink with tiled splashback, chrome towel rail, fully tiled.

Bedroom Two: - 3.38m x 2.24m (11'01" x 7'04" ) - Double glazed french doors with julliette balcony to front, radiator, carpet flooring.

Bathroom: - 2.16m x 2.01m (7'01" x 6'07") - Double glazed window to rear, bath with shower over, inset sink with tiled splashback, low level W/C, chrome towel rail, fully tiled.

Parking: - Two allocated parking spaces under the building, with further visitor bays.

Shared Ownership & Leasehold Information: - Years remiaing on lease- 125 years
Rent on Remaing amount- £526.37 pcm
Block miscellaneous- £14.75 pcm
Buildings Insurance- £42.92 pcm
Management fee- £23.25 pcm
Grounds maintenance- £5.73 pcm
Sinking fund contribution- £28.84
Total- £641.86 pcm (inclusive of service charge)
100% share of this property is available at the price of £325,000.

Property Ref: 42829_34213431

Share:

Similar Properties

Constable View, Springfield, Chelmsford

1 Bedroom Retirement Property | £80,500

For sale with NO ONWARD CHAIN and located in North Springfield's sought-after RETIREMENT DEVELOPMENT is this spacious ma...

Dunn Side, City Centre, Chelmsford

2 Bedroom Apartment | £71,250

Within a stone's throw to Chelmsford's high street and mainline train station and being sold with NO ONWARD CHAIN is thi...

Springfield Road, Chelmsford

1 Bedroom Retirement Property | £70,000

Located within a stone's throw to the city centre is this first floor RETIREMENT APARTMENT (for the over 55s) that offer...

Wharf Road, City Centre, Chelmsford

1 Bedroom Apartment | Shared Ownership £84,000

Being sold with a 40% share of ownership and NO ONWARD CHAIN is this well presented CITY CENTRE second floor apartment,...

Constable View, Springfield, Chelmsford, CM1

1 Bedroom Retirement Property | £90,000

Located in North Springfield's sought-after RETIREMENT DEVELOPMENT is this spacious maisonette that offers a SPACIOUS LO...

Constable View, Springfield, Chelmsford

1 Bedroom Retirement Property | Fixed Price £105,000

Located in North Springfield's sought-after RETIREMENT DEVELOPMENT is this spacious modern GROUND FLOOR maisonette that...

Hamilton Piers - Chelmsford (Chelmsford)

4 Torquay Road, Springfield, Chelmsford, Essex, CM1 6NF

01245 269777

How much is your home worth?

Use our short form to request a valuation of your property.

Request a Valuation

Mortgage Calculator

Amount Borrowed: £
Total Amount Repayable: £
Total Monthly Payment: £
©2025 The Guild of Property Professionals. All rights reserved. Terms and Conditions | Privacy Policy | Cookie Policy | Complaints Policy | Members Login
The Guild of Property Professionals Trading Address: 121 Park Lane, London W1K 7AG. GPEA Limited. Registered in England & Wales.  Company No: 02819824.  Registered Office Address: 2 St. Stephen's Court, St. Stephen's Road, Bournemouth, Dorset, England, BH2 6LA.  VAT Registration No: 576 8795 61
Book a Property Valuation Update Cookies Preferences