Front Street Pelton

Offers Over
£975,000

4 Bedroom Detached House for sale in Chester Le Street

4 4 4
  • A superb, GII-listed Georgian residence
  • Boasting five double bedrooms and four bathrooms
  • Possibility to create annexed accommodation to second floor
  • A generous plot which extends to 1.97 acres
  • Ample parking and mature gardens
  • Lovingly restored to a high standard

Pelton House is a superb, GII-listed Georgian residence, which offers all of the benefits of modern living, within a spacious and traditional family home. Set back from the front street and boasting a plot which extends to 1.97 acres with ample parking and mature gardens, the property offers slide and sash windows throughout alongside high ceilings and has been lovingly restored and refurbished by the current owners, it benefits from five double bedrooms and has a flexible floorplan, it would suit a range of buyers due to the aspirational nature of this fine home.

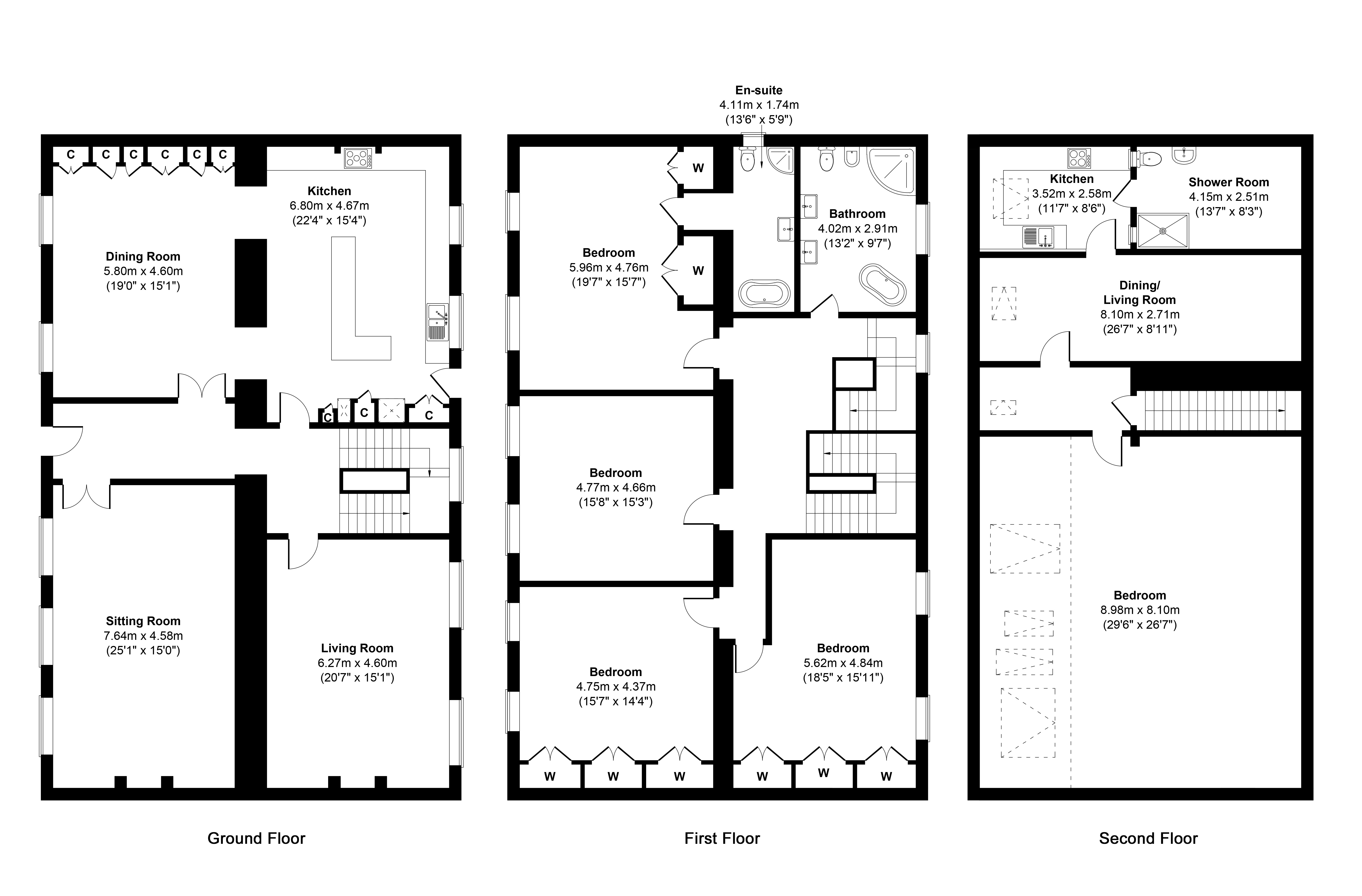
The main entrance is to the rear of the property, which leads into a spacious hallway, with wood effect tiled flooring, which extends the length of the ground floor and wood panelling to the walls, ahead stairs rise to the first floor, while a picture window overlooks the front garden and offers an abundance of light to fill the hallway.

To the right hand side of the hall lies the sitting room, enjoying a rear aspect view, with two wooden sash windows overlooking the garden and patio area. The room is heated by a 30kw multifuel stove which is linked to a back boiler for a secondary source of heat for the home. This is sat upon a tiled hearth and is surrounded by a bespoke, plastered fire surround, making this the focal point of the room.

Returning to the hall, also on the right hand side lies the living room, which offers a pleasant view to the front via two sash windows, this spacious reception room offers ample space for furniture, high ceilings and again, the focal point of the room is the multifuel stove which is seated upon a tiled hearth and is surrounded by a bespoke, plastered fire surround.

To the right hand side lies the impressive, open plan kitchen and dining room. The kitchen is fitted with a vast range of bespoke painted, solid beech wall, base and larder units, which are topped with granite working surfaces which extend to an upstep splash back. Built in appliances include a double eye level oven, microwave, dishwasher, washing machine and tumble dryer. Recessed into an inglenook there, is a freestanding range style cooker with a gas hob, there is also a double Belfast sink, which enjoys a pleasant outlook over the front garden. The centre point of the kitchen is an impressive island unit, which is topped with the same high quality granite work surfaces and offers ample space for informal dining at the breakfast bar, with ample storage below. The kitchen is finished with traditional wood panelling to the walls and two feature long radiators to the wall, while access to the front garden is through a modern, composite door.

The dining room leads from the kitchen and is open plan, this flexible room offers bespoke built in entertainment storage, which surrounds bracketing for a wall mounted TV and has a pleasant front view aspect, overlooking the formal garden and pond. This is a versatile room, which could lend itself to many purposes, including a snug, playroom or entertainment suite.  

From the dining room, double wooden doors lead back into the hallway, where stairs lead down to the cloakroom, which comprises of WC and vanity wash hand basin. There is also a cupboard which houses the boiler.

Returning to the hallway, a return staircase rises to the first floor, with a solid oak banister and balustrade alongside wrought iron spindles. A half landing enjoys a large, arched picture window, which allows the landing to the flooded with natural light, while the stairs continue up towards the spacious landing area, which allows space for a small seating area.

There are four double bedrooms on the first floor, the main bedroom is an incredibly spacious double which enjoys a pleasant front aspect view and is well lit by two slide and sash windows. There are double and single built in wardrobes which have solid oak doors, which provides ample storage, while the main suite is also serviced by an en-suite bathroom. The en-suite is fully tiled throughout and comprises a rolltop, clawfoot bath with useful handheld mixer tap, vanity wash hand basin, low level WC and walk-in shower cubicle with mains fed rainfall and hand held showers. There are two traditional radiators, one of which is heated by the multifuel stove, thus providing a secondary heating source and is well lit by spotlights to the ceiling and also a slide and sash window.

The three remaining bedrooms are all generous doubles of a similar size, making the space ideal for family living, or multi-generational living. All of the bedrooms have high ceilings and two of these lovely rooms boast built in storage with oak front wardrobes, while the third bedroom has ample space for free standing furniture.

The accommodation on the first floor is completed by the high quality family bathroom, which is fully tiled throughout and boasts a Victorian style suite which complements the age and grandeur of the property, this comprises a rolltop, clawfoot bath with useful mixer tap, his and her porcelain sinks, low level WC with matching bidet, alongside a walk-in shower cubicle with mains fed rainfall and handheld showers. There are two traditional radiators which ensures that this large house bathroom is well heated, it is well lit by spotlights to the ceiling and also a slide and sash window to the front.

To the second floor, the nature and flexible layout of accommodation has the potential for annexed accommodation, ideal for multi-generational living.

Stairs rise from the first floor landing to the left hand side, lies a large open plan living room and bedroom, having roof lights to the ceiling, exposed beams and an exposed brick chimney breast, the room allows ample space for living and sleeping accommodation. From here, there is a separate dining room, which could be used as a study or play room if desired, being well lit by a roof light. The second floor also boasts a small kitchen, which is fitted with a decent range of white wall and base units, with sink and drainer unit, integral oven and hob and space for further white goods, the kitchen is lit via a roof light, allowing the space to be filled with natural light. Steps lead down from the kitchen into the bathroom, which comprises of WC, panel enclosed bath and wash hand basin.

Externally, the property is set back from the roadside and is approached via a sweeping gravelled driveway which leads to an impressive turning circle. There is ample space for parking, along with a detached double garage, ideal for storing a classic car or motorbikes. Pelton House features a walled garden and the property in its entirety extends to just under 2 acres of excellent garden, the majority of which is laid to lawn and is filled with mature trees, including Sycamore, Yew, Holly, Oak and Horse Chestnut, it also used to boast a tennis court, which could easily be reinstated. Alongside the garage, there are also two smaller stone buildings, ideal as a potting shed or wood store. The rear of the garage offers a large, multi-use space, ideal for tending to the properties, impressive market garden, there is also a useful office space and a WC.

The garden extends to the front and rear of the property, the front garden enjoys a lovely patio area, an ideal spot for a hot tub, which is covered by a wooden pagoda and enclosed with stone walls and windows which are reclaimed from a church. There is also a market garden where the current owners grow a variety of vegetables and an orchard filled with a variety of fruit trees, including pear, apple and Cherry. There is also space for polytunnels, ideal for the keen gardener. The external space is completed by the large circular pond, which is currently filled with koi carp and is very much the centrepiece of this impressive outside space.

Tenure & Possession
Freehold with Vacant possession

EPC Rating
This property has been certified with an EPC Rating of C|71

Local Authority
Durham County Council
Banded F

Utilities
The property benefits from mains electricity, water and drainage. The central heating system is powered by gas, alongside a secondary heating source of a solid fuel stove, which is located in the living room.

Parking
Ample off street parking plus double garage

Characteristics
Broadband is currently connected with average speed of approximately 74 mbps. Mobile coverage is available, interested parties are advised to perform their own due diligence in respect of availability.

what3words
Every three metre square of the world has been given a unique combination of three words.

///takes.mull.natively

Viewings
Viewings are strictly by prior appointment with GFW.

Important Notice
Every care has been taken with the preparation of these particulars, but they are for general guidance only and complete accuracy cannot be guaranteed. If there is any point, which is of particular importance  professional verification should be sought.  All dimensions/boundaries are approximate. The mention of fixtures, fittings &/or appliances does not imply they are in full efficient working order. Photographs are provided for general information and you may not republish, retransmit, redistribute or otherwise make the material available to any party or make the same available on any website. These particulars do not constitute a contract or part of a contract.

Pelton House is a superb, GII-listed Georgian residence, which offers all of the benefits of modern living, within a spacious and traditional family home. Boasting five double bedrooms, the possibility to create annexed accommodation, alongside a generous plot which is set back from road extends to 1.97 acres with ample parking and mature gardens. This home has been lovingly restored and refurbished by the current owners, and is finished to an incredibly high standard throughout. The flexible nature of the floorplan means it is suited to a wide range of buyers.

Important Information

  • This is a Freehold property.
  • This Council Tax band for this property is: F
  • EPC Rating is C

Property Ref: DUR_BAC250060

Share:

Similar Properties

Satley Bishop Auckland

5 Bedroom House | Guide Price £790,000

A substantial, Grade II listed Georgian family home with spacious and flexible accommodation set over three floors, boas...

Witton-Le-Wear Bishop Auckland

4 Bedroom Detached House | Guide Price £750,000

An imposing and unique Grade II Listed property, steeped in charm and historic character throughout, benefitting from th...

Fillpoke Lane Blackhall Colliery

3 Bedroom Detached House | Guide Price £595,000

Rarely available in such an enviable position, enjoying sea views, this spacious three bedroom detached family home, boa...

Mount Lane Springwell

7 Bedroom Not Specified | Guide Price £1,200,000

An exciting and rare to the market opportunity to acquire a substantial, four bedroom detached family home, alongside a...

Winston Richmond

7 Bedroom Detached House | Offers Over £1,300,000

Lot One offers an exciting opportunity to purchase a portion of a landed estate. Comprising of beautiful, GII* Listed Ba...

Winston Richmond

8 Bedroom Detached House | Offers Over £2,300,000

Lot 2 - A rare opportunity to acquire four stone fronted cottages, comprising of two, three bedroom semi detached bungal...

George F White (Durham)

Durham, County Durham, DH1 3AQ

0333 920 2220

How much is your home worth?

Use our short form to request a valuation of your property.

Request a Valuation

Mortgage Calculator

Amount Borrowed: £
Total Amount Repayable: £
Total Monthly Payment: £
©2025 The Guild of Property Professionals. All rights reserved. Terms and Conditions | Privacy Policy | Cookie Policy | Complaints Policy | Members Login
The Guild of Property Professionals Trading Address: 121 Park Lane, London W1K 7AG. GPEA Limited. Registered in England & Wales.  Company No: 02819824.  Registered Office Address: 2 St. Stephen's Court, St. Stephen's Road, Bournemouth, Dorset, England, BH2 6LA.  VAT Registration No: 576 8795 61
Book a Property Valuation Update Cookies Preferences