Laurel House, Hard Meadow Lane, Ashover, Chesterfield, S45 0ES

£625,000

4 Bedroom Detached House for sale in Chesterfield

1 4 2
  • 4 bedroom detached property
  • Private, landscaped garden and ample off road parking with large driveway and detached double garage
  • Picturesque location with stunning countryside right on the doorstep
  • Triple aspect family lounge with feature fireplace and stunning open field views
  • Open plan dining kitchen with quartz worktops, a range of integrated appliances and a breakfast bar
  • 2 bathrooms including family bathroom with bath and shower, plus master en-suite shower room
  • Close proximity to village amenities such as a cafe, pubs, farm shop and schools
  • Located in an exclusive development of 4 detached homes
  • EPC rating - D. Council tax band - F
  • Tenure - Freehold

Situated in the picturesque Derbyshire village of Ashover, this stunning detached home on offers a perfect blend of modern living and natural beauty. With four spacious bedrooms, this practical family home is beautifully styled throughout, providing a warm and inviting atmosphere for both relaxation and entertaining. Set within an exclusive development, this stone-built home is surrounded by breathtaking open field views, allowing you to enjoy the serene landscape right from your doorstep.

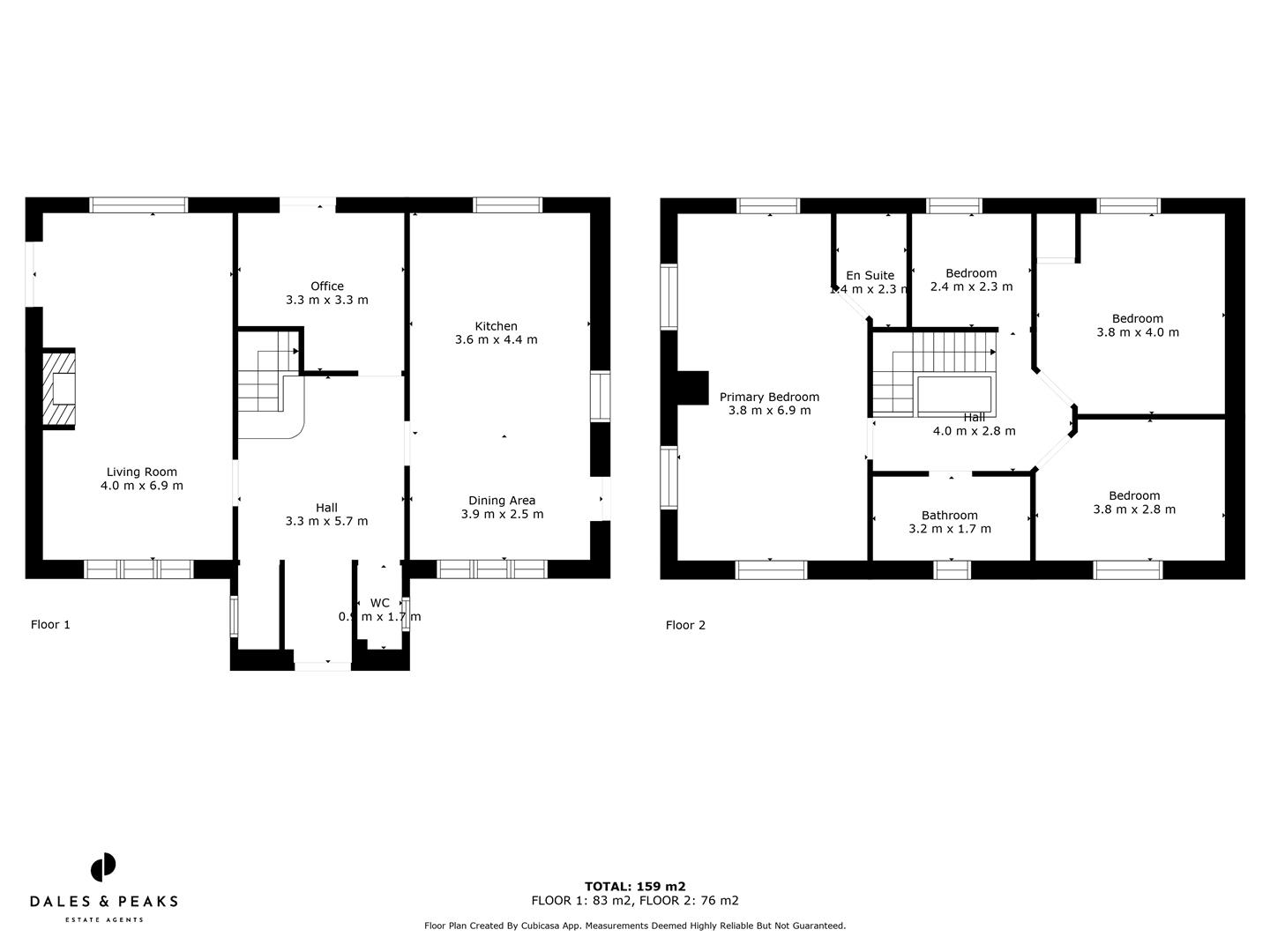
Offering a spacious 1711 sqft of accommodation over 2 storeys, the property features an open plan dining kitchen with quartz worktops, a triple aspect family lounge with stunning countryside views, a dedicated ground floor office, 4 generously sized bedrooms, 2 bathrooms including the master en-suite shower room, a low maintenance garden and ample off road parking including a driveway for multiple vehicles and a detached double garage.

The ground floor comprises; bright and spacious entrance hallway, triple aspect family lounge with feature fireplace and stunning countryside views, open plan dining kitchen with quartz worktops, a range of integrated appliances and a breakfast bar, as well as a ground floor office / formal dining room.

The first floor comprises; family bathroom with separate bath and shower, 4 generously sized bedrooms including the master bedroom with en-suite shower room.

Property Ref: 7689458_33929802

Share:

Similar Properties

Stretton Service Station and Bungalow, Main Road, Stretton, Alfreton, DE55 6EW

2 Bedroom Commercial Property | £625,000

A fantastic opportunity to acquire a residential 2 bedroom detached bungalow with adjoining showroom. Aidensfield (2 bed...

The Dell, Ashgate, Chesterfield, S40 4DL

3 Bedroom Detached House | Offers Over £600,000

Situated in one of the most sought after addresses locally, a street known for its individual art-deco inspired homes se...

Vale House & Vale House Cottage, Main Street, Scarcliffe, Chesterfield, S44 6TD

5 Bedroom Detached House | Guide Price £600,000

£600,000 - £650,000 (Guide price) Welcome to Vale House, an outstanding 4 bedroom turn-of-the-century Victorian residenc...

Lutyens Court, Brookside, Chesterfield, S40 3BF

5 Bedroom Detached House | £675,000

An exclusive development of 5 individually designed detached home, situated in one of the most desirable postcode in the...

Plot 8, Upper Croft, Lower Pilsley, Chesterfield, S45 8FF

4 Bedroom Detached House | Guide Price £675,000

£675,000 - £700,000 (Guide price)Welcome to Upper Croft, a selection of 9 executive detached homes, practically designed...

Smithy House, Mansfield Road, Heath, Chesterfield, S44 5SB

4 Bedroom Detached House | £675,000

Welcome to the truly beautiful Smithy House; a charming stone-built countryside home, full of characterful features syno...

Dales and Peaks (Chesterfield)

Brampton, Chesterfield, S40 2AP

01246 567540

How much is your home worth?

Use our short form to request a valuation of your property.

Request a Valuation

Mortgage Calculator

Amount Borrowed: £
Total Amount Repayable: £
Total Monthly Payment: £
©2025 The Guild of Property Professionals. All rights reserved. Terms and Conditions | Privacy Policy | Cookie Policy | Complaints Policy | Members Login
The Guild of Property Professionals Trading Address: 121 Park Lane, London W1K 7AG. GPEA Limited. Registered in England & Wales.  Company No: 02819824.  Registered Office Address: 2 St. Stephen's Court, St. Stephen's Road, Bournemouth, Dorset, England, BH2 6LA.  VAT Registration No: 576 8795 61
Book a Property Valuation Update Cookies Preferences