Mill Lane, Old Tupton, Chesterfield.

Guide Price
£625,000

4 Bedroom Cottage for sale in Chesterfield

2 4 2
  • Commuting distance of Sheffield Nottingham and Derby.
  • Easy reach of excellent amenities.
  • Ample parking double garage and workshop.
  • Large garden (0.4 acres) with brook and barbecue hut.
  • Light and spacious dining kitchen with floor to ceiling windows.
  • Two generous reception rooms with log burning stoves.
  • Family bathroom and ground floor shower room.
  • Four large double bedrooms.
  • Delightful rural setting.
  • Well presented spacious accommodation.

Guide Price £625,000 - £650,000. A stone built characterful spacious, period family home with countryside views, 4 double bedrooms, family bathroom, ground floor shower room, 2 large reception rooms, generous dining kitchen & utility room. Delightful gardens with meandering brook, barbeque hut, potting shed, detached double garage and workshop, ample driveway parking.


BROOK COTTAGE, Mill Lane, Old Tupton


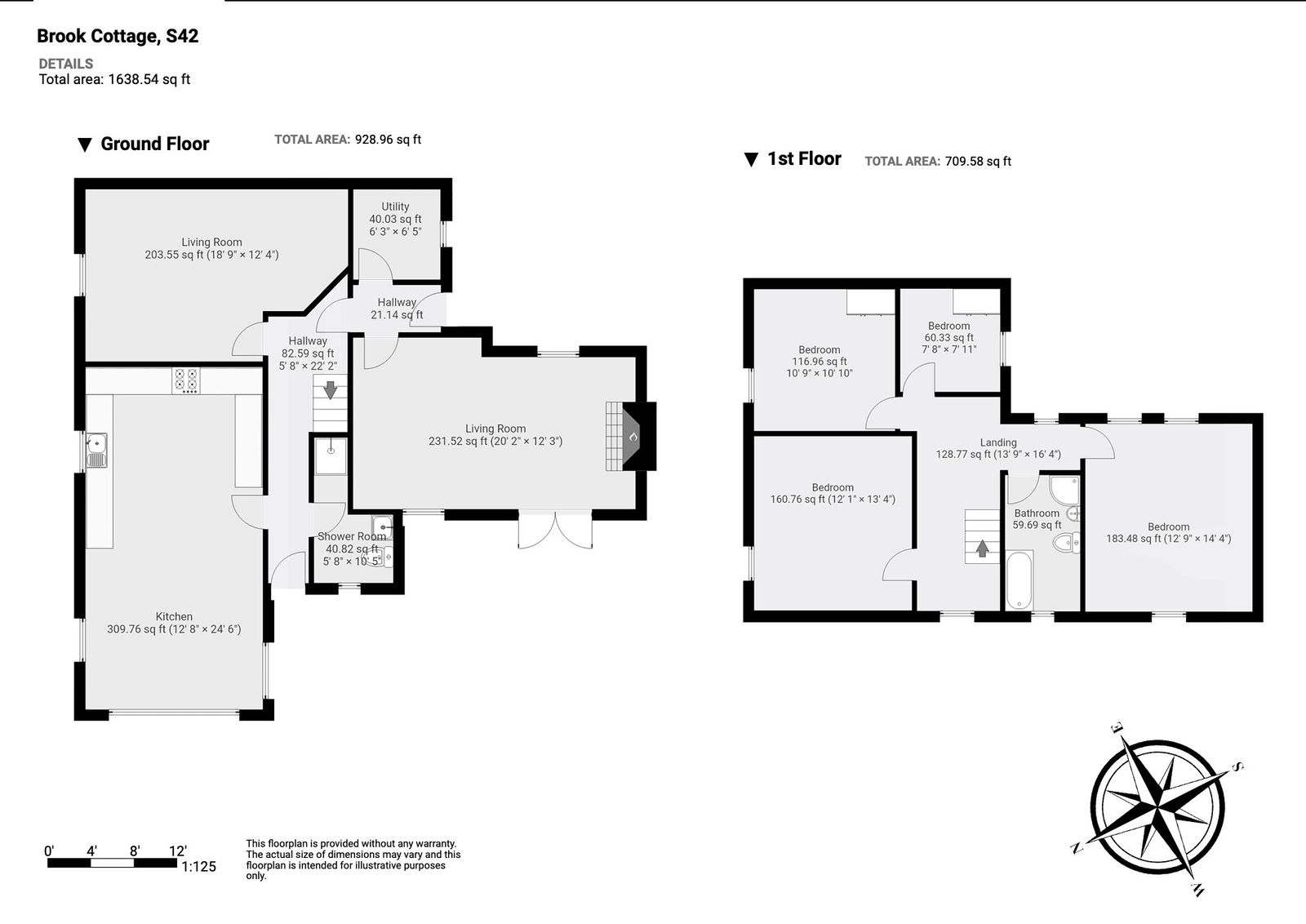
 A superbly spacious and immaculately presented stone-built family home surrounded by delightful gardens with a stream meandering through, and an octagonal barbeque hut. Backing onto open fields yet within easy reach of local amenities.  The well presented accommodation offers: four double bedrooms; family bathroom; two large reception rooms; farmhouse-style dining kitchen; utility room; and ground-floor WC. There is ample off-road parking, along with a detached double garage, and a workshop. 


Entering the property via an oak entrance door with double-glazed panel, which opens to:


RECEPTION HALLWAY  


Having a Velux roof light window and staircase rising to the upper floor accommodation with a useful under-stair storage cupboard. The hallway has a cast iron column central heating radiator, coat hanging space, and a contemporary oak panelled door opening to:


DINING KITCHEN


An exceptionally spacious dining kitchen with dual-aspect double-glazed windows, the dining area with floor-to-apex windows enjoying far-reaching views over the surrounding open countryside and the gardens. The room has ceramic tiles to the floor with under-floor heating. The kitchen area of the room is fitted with a good range of units in an oak finish, with cupboards and drawers set beneath a polished granite worksurface with a matching upstand. There are wall-mounted storage cupboards with under-cabinet lighting, illuminated glass-fronted display cabinets, and open plate racks. Set within the worksurface is an under-mounted Belfast-style sink with mixer tap. Fitted within the kitchen is a Rangemaster Elan dual-fuel stove with double ovens, grill, and six-burner gas hob, over which is an extractor canopy vented to the outside. Integral appliances include a 12-place setting dishwasher, a wine cooler, Whirlpool microwave, and integrated fridge and freezer. The dining area of the room is open to the apex of the ceiling, with double-glazed panels flooding the room with natural light. There is a further Velux rooflight window. The room is illuminated by downlight spotlights, and there is a chrome-finished electric towel radiator.


SITTING ROOM  


Having side-aspect double-glazed sliding slash windows overlooking the brook to the orchard, garden, and driveway. The room has a fine feature fire opening, housing a Clearview multi-fuel stove. There is an illuminated display niche, television aerial point with satellite facility, and Open Reach telephone socket with broadband facility. The room has wall and centre light points.


GROUND FLOOR SHOWER ROOM


Having a UPVC double-glazed window with obscured glass, and ceramic tiles to the floor following through from the reception hallway. Suite with: tiled shower cubicle with mixer shower; pedestal wash hand basin; and close-coupled WC. The room is illuminated by downlight spotlights, and there is an extractor fan, and a column radiator with towel rail.


From the hallway, an oak panelled door opens to:


REAR ENTRANCE LOBBY


Where a half-glazed door opens onto the flagged terrace to the rear of the property. Further doors open to:


UTILITY ROOM  


Having a UPVC double-glazed window, ceramic tile floor, and a range of shaker-style units, with cupboards beneath a granite-effect worksurface with a matching upstand and tile splashback. There are wall-mounted storage cupboards. Set within the worksurface is a circular sink with a mixer tap. Beneath the worksurface is space and connection for an automatic washing machine, and space for a tumble dryer. The room has a central heating radiator, and sited in the room is the Worcester gas-fired boiler, which provides hot water and central heating to the property.


 From the rear lobby, a further ledged and braced pine batten door opens to:


DRAWING ROOM


Having rear-aspect double-glazed patio doors with side-light windows, opening onto the gardens and enjoying fine far-reaching views over the open fields. There is a further arch-topped double-glazed window overlooking the rear of the property. The room has wall lamp points and a raised hearth, housing a Clearview multi-fuel stove. There is a television aerial point with satellite facility.


 From the hallway, a staircase with turned spindles rises to:


FIRST FLOOR GALLERY LANDING  


With a UPVC double-glazed window enjoying views over the gardens and the open fields beyond, and a further rear view landing window. Oak panelled doors open to:


BEDROOM ONE  


Having dual-aspect UPVC double-glazed windows, taking advantage of the fine far reaching view. The room has a central heating radiator, loft access hatch, and wall lamp points. The limed oak wardrobes are included in the sale.


FAMILY BATHROOM


Being half-tiled and having a front-aspect window, and suite with: standalone slipper shaped bath set upon a ball-and-claw feet, and having a Victorian-style mixer tap, and handheld shower spray; quadrant shower cubicle with Triton T80 electric shower; pedestal wash hand basin; and close-coupled WC. There is an extractor fan and central heating radiator with towel rail. The room is illuminated by downlight spotlights.


BEDROOM TWO  


Having a side-aspect UPVC double-glazed sliding sash window, overlooking the brook, orchard, and driveway. The room has a central heating radiator, wall lamp points, and a point for wall-mounted TV.


BEDROOM THREE  


With UPVC double-glazed sliding slash window, central heating radiator, and built-in airing cupboard with fitted shelving and drawers.


BEDROOM FOUR


With a side-aspect double-glazed window, having similar views to a bedroom two. There are wall lamp points, central heating radiator, and a pair of doors opening to a built-in wardrobe with hanging rail and fitted shelving.


OUTSIDE


The property is approached via a driveway providing turning space and ample off-road parking. Accessed from the driveway is a timber-constructed double garage and workshop, with power and lighting. 


To the side of the driveway is an orchard area with mature apple trees, lawns, and borders stocked with ornamental shrubs.  


From the driveway, a flagged pathway leads over a bridge, crossing the stream to a further area of garden with a flagged terrace, and pathway giving access to the entrance door. The garden is mainly laid to lawn with sculpted borders stocked with a good variety of ornamental shrubs and flowering plants.


Immediately to the front of the property is a flagged terrace, where the double doors open from the drawing room. Within the garden, there is an octagonal summer house with a central barbecue. There is a potting shed. The property has outside lighting. To the corner of the garden is a gravelled seating area with a stone-built log store.  


To the rear of the property is a flagged courtyard, providing an off-road parking space and giving access to the rear entrance door. An arched former carriage opening frames the window to the drawing room.


SERVICES AND GENERAL INFORMATION


Mains electricity, water, and drainage are connected to the property. Heating and hot water are provided by an LPG gas boiler, log-burning stoves, and solar panels supplementing the hot water.


For Broadband speed, please go to checker.ofcom.org.uk/en-gb/broadband-coverage For Mobile Phone coverage, please go to checker.ofcom.org.uk/en-gb/mobile-coverage


TENURE Freehold


COUNCIL TAX BAND (Correct at time of publication) ‘E’


DIRECTIONS


Leave the A61 in the centre of Clay Cross (opposite the Flower Shoppe and Charcoal Grill) along Holmegate Road: after approximately 1.6km (shortly after Bateman’s Mill), turn left into Ponderosa Park and immediately left into the drive to Brook Cottage.


ANTI-MONEY LAUNDERING  


We are required by law to conduct anti-money laundering checks on all those selling or buying a property. Whilst we retain responsibility for ensuring checks and any ongoing monitoring are carried out correctly, the initial checks are carried out on our behalf by Lifetime Legal who will contact you once you have agreed to instruct us in your sale or had an offer accepted on a property you wish to buy. The cost of these checks is £45 (incl. VAT), which covers the cost of obtaining relevant data and any manual checks and monitoring which might be required. This fee will need to be paid by you in advance of us publishing your property (in the case of a vendor) or issuing a memorandum of sale (in the case of a buyer), directly to Lifetime Legal, and is non-refundable. 


Disclaimer


All measurements in these details are approximate.  None of the fixed appliances or services have been tested and no warranty can be given to their condition. The deeds have not been inspected by the writers of these details. These particulars are produced in good faith with the approval of the vendor but they should not be relied upon as statements or representations of fact and they do not constitute any part of an offer or contract.  

Important Information

  • This is a Freehold property.
  • This Council Tax band for this property is: E

Property Ref: 891_1193632

Share:

Similar Properties

Jackson Road, Matlock

5 Bedroom Semi-Detached House | £595,000

An exceptionally spacious and versatile character property set over 5 floors with superb views. The property could be co...

Hockley Lane, Ashover. S45 0EP

3 Bedroom Detached House | Offers in region of £570,000

Attractive grade II listed detached family home, at the centre of popular village with excellent amenities. Ample parkin...

New Street, Matlock. DE4 3FH

6 Bedroom Townhouse | £520,000

An elegant late Victorian family home within walking distance of the town centre. Set over four floors with 6 bedrooms,...

Main Road Higham

3 Bedroom Detached House | Offers in region of £630,000

A beautiful, detached stone built property with double garage. This 3 bed detached property has a fitted kitchen, two ba...

Hayfield Close, Wingerworth, Chesterfield, S42 6QF

4 Bedroom Bungalow | Offers Over £650,000

Offers Over £650,000. A superbly presented, exceptionally spacious detached family property on a quiet cul-de-sac, close...

West Crescent, Matlock, DE4 3LB

4 Bedroom Bungalow | £650,000

A spacious and versatile detached extended dormer bungalow in a large plot with outline planning for a separate 3 bed dw...

Sally Botham Estates (Matlock)

27 Bank Road, Matlock, Derbyshire, DE4 3NF

01629 760899

How much is your home worth?

Use our short form to request a valuation of your property.

Request a Valuation

Mortgage Calculator

Amount Borrowed: £
Total Amount Repayable: £
Total Monthly Payment: £
©2026 The Guild of Property Professionals. All rights reserved. Terms and Conditions | Privacy Policy | Cookie Policy | Complaints Policy | Members Login
The Guild of Property Professionals Trading Address: 121 Park Lane, London W1K 7AG. GPEA Limited. Registered in England & Wales.  Company No: 02819824.  Registered Office Address: 2 St. Stephen's Court, St. Stephen's Road, Bournemouth, Dorset, England, BH2 6LA.  VAT Registration No: 576 8795 61
Book a Property Valuation Update Cookies Preferences