Burbank House, Westbrook Close, Brookside, Chesterfield, S40 3PH

Guide Price
£1,100,000

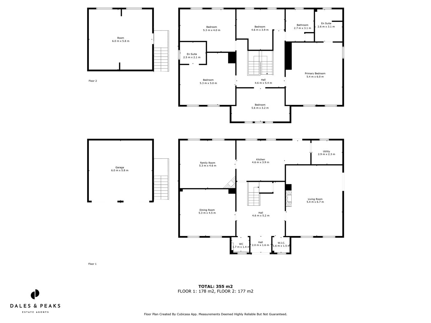
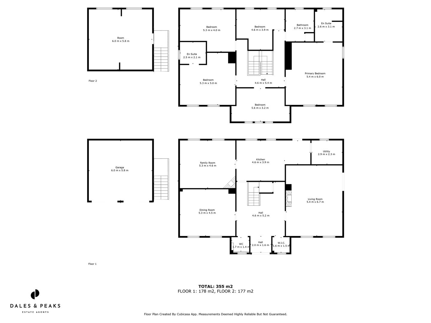
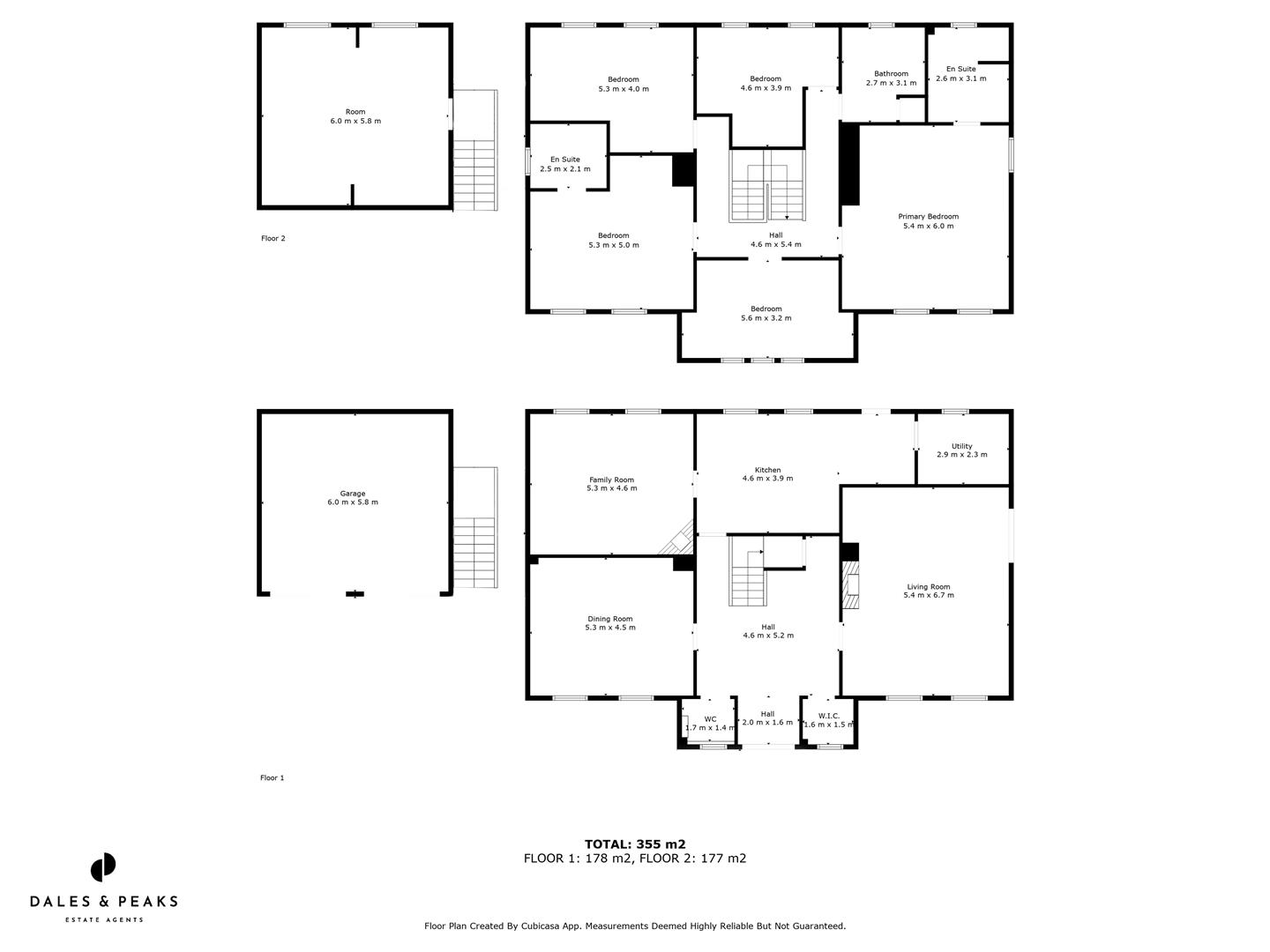
5 Bedroom Detached House for sale in Chesterfield

3 5 3
  • 5 bedroom detached property
  • Occupying a private gated plot measuring approximately 0.4 acres with stunning matured gardens surrounding the home
  • Peaceful location surrounded by countryside whilst being within close proximity to local amenities
  • 3 reception rooms
  • 3 bathrooms including 2 en-suites
  • Detached double garage with accommodation above, ideal for a home office
  • Modern island kitchen with a range of integrated appliances
  • A truly special, bespoke family home in one of the region's most desirable location
  • EPC rating - C
  • Council tax band - G. Tenure - Freehold

£1,100,000 - £1,200,000 (Guide price) Tucked away in a prestigious, private gated development of just three executive homes, Burbank House is a striking five-bedroom detached residence offering space, elegance and exclusivity in equal measure. Set on the sought-after Westbrook Close, just off Westbrook Drive in Brookside, this remarkable home was crafted by renowned local developer Don Clapham, whose name has become synonymous with quality, attention to detail and timeless design.

From the moment you arrive through the electric gates, Burbank House impresses - its grand façade, landscaped frontage and sweeping driveway offer a sense of arrival befitting a home of this stature.

Inside, the property has been thoughtfully designed across two expansive floors, blending classic architectural elements with modern luxuries. The heart of the home is a stunning open-plan kitchen and living space, ideal for entertaining, complemented by multiple reception rooms, a dedicated home office and generous utility areas - all finished to a truly impeccable standard.

Upstairs, five double bedrooms await - including a luxurious principal suite with en-suite - alongside beautifully appointed bathrooms and plenty of storage throughout. Every inch of this home has been designed with family living and refined entertaining in mind.

Outside, the property enjoys a substantial private garden measuring approximately 0.4 acres bordered by mature trees, creating a tranquil and secure environment for relaxing or entertaining. With countryside walks quite literally on your doorstep, this is a home that connects effortlessly with nature.

Despite its tucked-away location, Burbank House is within easy walking distance of the vibrant and ever-popular Chatsworth Road, with its independent cafés, restaurants and boutiques. The Peak District National Park is also just a short drive away, offering endless opportunities for adventure and exploration.

Life In The Area - Living in Brookside offers a lifestyle that's hard to match - peaceful, leafy surroundings with a real sense of community, yet just moments from the bustle and charm of Chatsworth Road. Whether it's brunch at a local café, a weekend browse around independent shops, or a countryside hike in the Peak District, everything you need is within easy reach. Excellent schools, convenient commuter links and a thriving local scene make this one of Chesterfield's most coveted addresses for families and professionals alike.

With open countryside quite literally on your doorstep, Burbank House offers immediate access to some of the area's most peaceful and picturesque walks. From quiet country lanes to hidden bridleways and rolling green fields, the surrounding area is perfect for morning strolls, dog walks or simply soaking in the tranquillity of rural life. Despite being just minutes from town, the setting feels beautifully secluded - a rare opportunity to enjoy true countryside living without compromising on convenience.

Dales & Peaks Forwardmove Please Read - Dales & Peaks is marketing this Property with the benefit of ForwardMove. Dales & Peaks has introduced ForwardMove to help speed up the sales process, minimise sale fall-throughs and give more certainty to both the Seller and the Buyer.

Purchasers will benefit from the Buyer Information Pack (BIP), which we have created with our legal partners, to give buyers more information before they agree to purchase.

The pack includes:

Property information form (TA6)
Fixtures and contents form (TA10)
Official Copy of the Register (OC1)
Title Plan (OC2)
Local Search*
Water and Drainage Search*
Coal and Mining Search*
Homescreen / Environmental Search*

(Dales & Peaks has ordered the local, drainage, coal and homescreen / environmental searches; we will add these to the BIP as they become available)

ForwardMove allows the sale process to be completed significantly quicker than a 'normal sale'. This is because the legal work, usually done in the first four to eight weeks after the sale is agreed, has already been completed. The searches, which can take up to five weeks, are ordered on the day the listing goes live and are transferable to the successful Buyer as part of their legal due diligence.

Additionally, and on behalf of the Seller, Dales & Peaks requests that the successful Buyer enters into a Reservation Agreement and pays the Reservation Agreement Fee of £595 (including VAT). This includes payment for the Buyer Information Pack and all the searches (which a buyer typically purchases separately after the sale is agreed).

Upon receipt of the signed Reservation Agreement, payment of the Reservation Agreement Fee, completion of ID and AML checks and the issuing of the Memorandum of Sale, the Seller will agree to take the Property off the market and market it as Sold Subject To Contract (SSTC).

During the Reservation Agreement period, the Seller will reject all offers and not enter into another agreement with any other buyer. The reservation period is agreed upon at the time of sale but is usually between 60 and 120 days.

The Reservation Fee is non-refundable except where the Seller withdraws from the sale. A copy of the Reservation Agreement is available on request, and Dales & Peaks advises potential buyers to seek legal advice before entering into the Reservation Agreement.

If you have any questions about the process or want to know how selling or buying with Dales & Peaks ForwardMove could benefit you, please speak to a member of the Dales & Peaks team.

Property Ref: 34088277

Share:

Similar Properties

Holmelea Croft, Main Street, Calver, S32 3XR

6 Bedroom Detached House | £1,100,000

An exceptionally well presented 6 bedroom detached property, offering 2820 sqft of living accommodation over 3 storeys....

Hawthorne Barns, Walton Back Lane, Somersall, Chesterfield, S42

4 Bedroom House | Guide Price £1,000,000

£1,000,000 - £1,100,000 (Guide price) Welcome to Hawthorne Barns, a truly individual Grade II listed barn conversion, se...

Orchard Barn, Walnut Barn & Meadow Barn, Spanker Lane, Nether Heage, Belper, DE56 2AT

7 Bedroom Detached House | £995,000

Characterful, contemporary, industrial; a truly unique, architecturally designed one-off / three-part home, situated in...

Hilltop, Handley Lane, Handley, Derbyshire, S45 9AT

4 Bedroom Detached House | £1,150,000

A truly once-in-a-lifetime home; secluded, peaceful, and enjoying views to quite literally every angle. Welcome to Hillt...

Rutland Avenue, Matlock, DE4 3GQ

6 Bedroom Detached House | Offers in region of £1,150,000

This impressive four bedroom Georgian detached family home, which was formally a Hydropathic Establishment, is accompani...

Hill Cottage, Hill Road, Ashover, Derbyshire, S45

6 Bedroom Detached House | Guide Price £1,250,000

£1,250,000 - £1,295,000 (Guide price) Welcome the spectacular Hill Cottage to the market. A truly special family residen...

Dales and Peaks (Chesterfield)

Brampton, Chesterfield, S40 2AP

01246 567540

How much is your home worth?

Use our short form to request a valuation of your property.

Request a Valuation

Mortgage Calculator

Amount Borrowed: £
Total Amount Repayable: £
Total Monthly Payment: £
©2026 The Guild of Property Professionals. All rights reserved. Terms and Conditions | Privacy Policy | Cookie Policy | Complaints Policy | Members Login
The Guild of Property Professionals Trading Address: 121 Park Lane, London W1K 7AG. GPEA Limited. Registered in England & Wales.  Company No: 02819824.  Registered Office Address: 2 St. Stephen's Court, St. Stephen's Road, Bournemouth, Dorset, England, BH2 6LA.  VAT Registration No: 576 8795 61
Book a Property Valuation Update Cookies Preferences