Scafell Avenue, Chesterfield, S41 8BQ

Guide Price
£300,000

3 Bedroom Detached House for sale in Chesterfield

1 3 2
  • 3 bedroom detached property
  • Deceptively spacious accommodation
  • Open plan dining kitchen with patio doors to the rear garden and a range of integrated appliances
  • Large family lounge
  • Located in a quiet position towards the back of this sought after development close to open green space
  • 2 bathrooms including master en-suite shower room
  • Landscaped rear garden. Driveway providing off road parking for multiple vehicles
  • Remainder of 10 year NHBC warranty. (originally built in Feb 2019)
  • Sought after location close to neighbouring countryside on the outskirts of Chesterfield with easy access to Sheffield
  • EPC rating - B. Council tax band - D. Tenure - Freehold (estate charges may apply)

£300,000 - £325,000 (Guide Price) Located in this sought after development, close to neighbouring countryside on the outskirts of Chesterfield and with easy access to Sheffield, is this deceptively spacious and practically designed 3 bedroom detached home.

A stand out feature of this home is its position within the development. located towards the back of the estate, the home is close to green space in a quiet position.

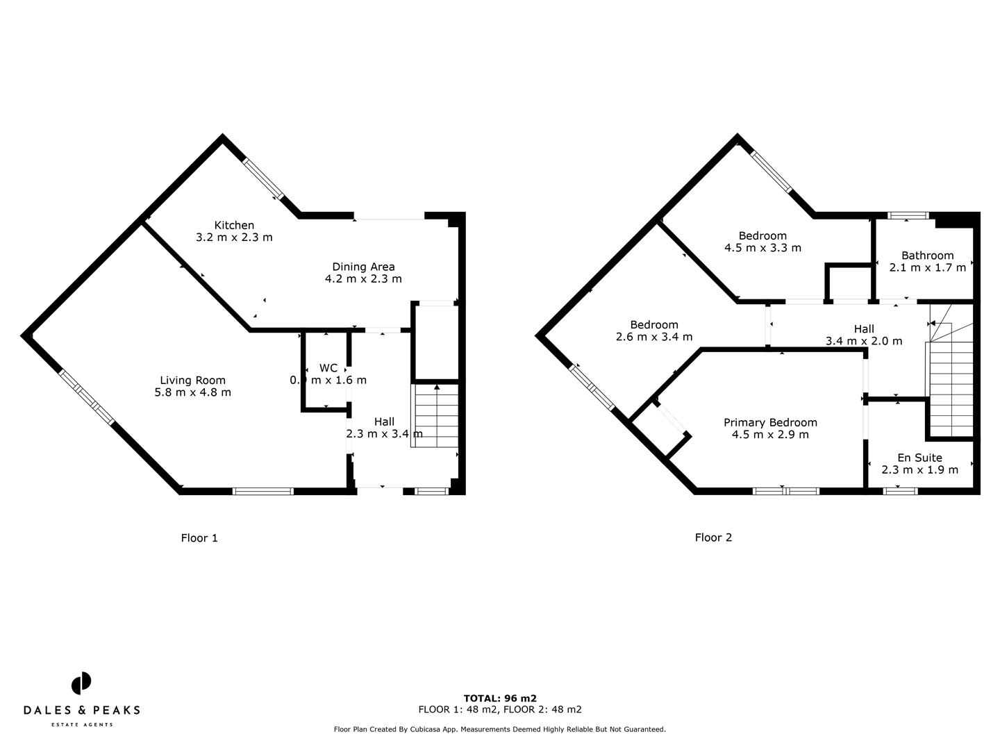
Offering 1033 sqft of accommodation over 2 storeys, the property features an open plan dining kitchen with a range of integrated appliances, a large lounge, generously sized and individually decorated bedrooms and 2 bathrooms including the master en-suite shower room.

Externally; to the rear of the property is a private, landscaped garden. To the front is a driveway providing off road parking for multiple vehicles.

The ground floor comprises; entrance hallway, ground floor WC, large family lounge, open plan dining kitchen with patio doors to the rear garden and a range of integrated appliances.

The first floor comprises; family bathroom, 3 generously sized bedrooms including the master bedroom with en-suite shower room.

Dales & Peaks Forwardmove Please Read - Dales & Peaks is marketing this Property with the benefit of ForwardMove. Dales & Peaks has introduced ForwardMove to help speed up the sales process, minimise sale fall-throughs and give more certainty to both the Seller and the Buyer.

Purchasers will benefit from the Buyer Information Pack (BIP), which we have created with our legal partners, to give buyers more information before they agree to purchase.

The pack includes:

Property information form (TA6)
Fixtures and contents form (TA10)
Official Copy of the Register (OC1)
Title Plan (OC2)
Local Search*
Water and Drainage Search*
Coal and Mining Search*
Homescreen / Environmental Search*

(Dales & Peaks has ordered the local, drainage, coal and homescreen / environmental searches; we will add these to the BIP as they become available)


ForwardMove allows the sale process to be completed significantly quicker than a 'normal sale'. This is because the legal work, usually done in the first four to eight weeks after the sale is agreed, has already been completed. The searches, which can take up to five weeks, are ordered on the day the listing goes live and are transferable to the successful Buyer as part of their legal due diligence.

Additionally, and on behalf of the Seller, Dales & Peaks requests that the successful Buyer enters into a Reservation Agreement and pays the Reservation Agreement Fee of £595 (including VAT). This includes payment for the Buyer Information Pack and all the searches (which a buyer typically purchases separately after the sale is agreed).

Upon receipt of the signed Reservation Agreement, payment of the Reservation Agreement Fee, completion of ID and AML checks and the issuing of the Memorandum of Sale, the Seller will agree to take the Property off the market and market it as Sold Subject To Contract (SSTC).

During the Reservation Agreement period, the Seller will reject all offers and not enter into another agreement with any other buyer. The reservation period is agreed upon at the time of sale but is usually between 60 and 120 days.

The Reservation Fee is non-refundable except where the Seller withdraws from the sale. A copy of the Reservation Agreement is available on request, and Dales & Peaks advises potential buyers to seek legal advice before entering into the Reservation Agreement.

If you have any questions about the process or want to know how selling or buying with Dales & Peaks ForwardMove could benefit you, please speak to a member of the Dales & Peaks team.

Property Ref: 7689458_33717693

Share:

Similar Properties

Starkholmes Road, Matlock, DE4 3DD

3 Bedroom House | Guide Price £300,000

.. 3D TOUR .. £300,000 - £315,000 (Guide price) Situated in the highly desirable and picturesque village of Starkholmes,...

New Road, Holymoorside, Chesterfield, S42

2 Bedroom End of Terrace House | Offers Over £300,000

Offers over £300,000. Situated in the heart of the pretty village of Holymoorside, surrounded by stunning Derbyshire cou...

Cromford Drive, Staveley, Chesterfield, S43 3TB

4 Bedroom Detached House | Guide Price £300,000

£300,000 - £325,000 (Guide price) Situated on a quiet cul-de-sac, close to Ringwood Park and conveniently located near c...

Strathfield Cottage, Stretton, Alfreton, DE55 6FE

2 Bedroom Barn Conversion | £310,000

Welcome to Strathfield Cottage; a simply stunning two-bedroom barn conversion nestled in the heart of idyllic Stretton,...

Hilltop Road, Wingerworth, Chesterfield, S42 6RX

3 Bedroom Detached Bungalow | Guide Price £310,000

Situated in the pretty village of Wingerworth, close to local amenities and on the door step to a selection of stunning...

New Road, Wingerworth, Chesterfield, S42 6TD

3 Bedroom Detached House | £315,000

Dating back to the late 1700's, this grade II listed former gate house to central drive, located in the sought after vil...

Dales and Peaks (Chesterfield)

Brampton, Chesterfield, S40 2AP

01246 567540

How much is your home worth?

Use our short form to request a valuation of your property.

Request a Valuation

Mortgage Calculator

Amount Borrowed: £
Total Amount Repayable: £
Total Monthly Payment: £
©2025 The Guild of Property Professionals. All rights reserved. Terms and Conditions | Privacy Policy | Cookie Policy | Complaints Policy | Members Login
The Guild of Property Professionals Trading Address: 121 Park Lane, London W1K 7AG. GPEA Limited. Registered in England & Wales.  Company No: 02819824.  Registered Office Address: 2 St. Stephen's Court, St. Stephen's Road, Bournemouth, Dorset, England, BH2 6LA.  VAT Registration No: 576 8795 61
Book a Property Valuation Update Cookies Preferences