Kington St. Michael

Offers Over
£600,000

3 Bedroom Semi-Detached House for sale in Chippenham

2 3 1
  • Semi-detached period cottage and building plot
  • Planning permission to build a second dwelling
  • Heart of the village setting
  • Large sunny plot
  • Refurbished interior
  • 3 bedrooms
  • Kitchen open plan to the dining room
  • Living room
  • Private off-street parking
  • No chain

Description

20 Kington St Michael is a pretty, traditional semi-detached period cottage located in the centre of the sought-after village of Kington St Michael within close proximity of the village amenities. The property was refurbished in 2022 to a very good standard and sits comfortably within a large plot.

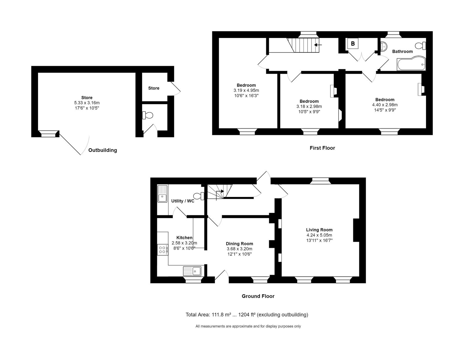
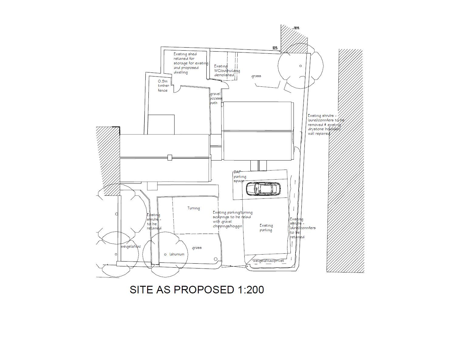
The accommodation, which extends to around 1,204 sq.ft, is arranged over two floors and comprises a living room, a kitchen open plan to a dining room and a separate utility/wc off.  On the first floor there are three double bedrooms and a bathroom. Outside, there is a front garden and low maintenance garden to the rear. Behind the cottage there is a substantial outbuilding with WC which currently provides ample storage and has potential to be converted for a range of uses including a home office. The plot boasts extensive off-road parking which is a rarity for the location and property type.

Planning permission, which is extant (ref: 16/11849/FUL), allows for the creation of a new adjoining dwelling which is understood to extend to around 1,248 sq.ft. The plans include a hall, kitchen/living room plus a ground floor double bedroom with en suite. On the first floor, there are two further double bedrooms, one en suite and a family bathroom. In addition, there will be a study/bedroom 4.  Outside space includes garden, parking for both properties and a turning area.

Situation
The desirable village of Kington St. Michael is located in North Wiltshire and has a thriving community with an Ofsted rated Outstanding Primary School, a community run village shop, traditional cafe, village hall, and church. The property sits within close proximity of a range of footpaths and bridlepaths for delightful countryside walking routes. There is also a bus stop situated only a moment's walk away with services to local secondary schools and the towns. A more comprehensive range of facilities can be found in the nearby town of Chippenham. A large Morrisons supermarket is approximately one and a half miles away as is Junction 17 of the M4 motorway offering excellent motor commuting to the larger centres of Bath, Bristol, London and Swindon. Main line rail services are located in Chippenham (London Paddington).
Additional Information
The property is Freehold with gas-fired central heating, mains drainage, water and electricity. The property is located within a conservation area. Ultrafast broadband is available. Information taken from the Ofcom mobile and broadband checker, please see the website for more information and mobile coverage. Wiltshire Council Tax Band E. 

Important Information

  • This is a Freehold property.
  • This Council Tax band for this property is: E

Property Ref: 1135816

Share:

Similar Properties

Pump Lane, Long Newnton

3 Bedroom Detached House | Offers Over £600,000

Positioned down a quiet country lane in the Cotswold village of Long Newnton, just 1 mile outside of Tetbury, a charming...

The Berrells, Tetbury

3 Bedroom Detached House | £595,000

Situated within this highly desirable private no-through lane beside the Cutwell valley, this detached chalet home enjoy...

Hollis Gardens, Luckington

3 Bedroom Detached House | £595,000

Situated within a desirable mature close, this detached modern house has extended accommodation with further potential t...

Bath Road, Tetbury

3 Bedroom Detached House | £615,000

Occupying an excellent position close to the town centre and lovely countryside walks, an individual detached house whic...

Sawyers Close, Minety

4 Bedroom Detached House | £625,000

With front and back gardens, this detached house has been extended over the years offering substantial and versatile liv...

The Street, Alderton

4 Bedroom Semi-Detached House | £625,000

Situated in the rural village of Alderton, this attractive double gable fronted semi-detached Cotswold stone cottage off...

James Pyle & Co (Sherston)

Swan Barton, Sherston, Wiltshire, SN16 0LJ

01666 840886

How much is your home worth?

Use our short form to request a valuation of your property.

Request a Valuation

Mortgage Calculator

Amount Borrowed: £
Total Amount Repayable: £
Total Monthly Payment: £
©2026 The Guild of Property Professionals. All rights reserved. Terms and Conditions | Privacy Policy | Cookie Policy | Complaints Policy | Members Login
The Guild of Property Professionals Trading Address: 121 Park Lane, London W1K 7AG. GPEA Limited. Registered in England & Wales.  Company No: 02819824.  Registered Office Address: 2 St. Stephen's Court, St. Stephen's Road, Bournemouth, Dorset, England, BH2 6LA.  VAT Registration No: 576 8795 61
Book a Property Valuation Update Cookies Preferences