Langley Burrell

Guide Price
£800,000
SSTC
This property listing is now SSTC

5 Bedroom Detached House for sale in Chippenham

2 5 2
  • Timber-framed detached farmhouse
  • Historically important Grade II listed
  • Large grounds of 0.92 acres
  • Hidden down a private lane
  • 5 bedrooms, 2 bathrooms
  • 2 reception rooms
  • Traditional kitchen/breakfast room
  • Extensive range of outbuildings
  • Scope for updating
  • Sought after location

Description

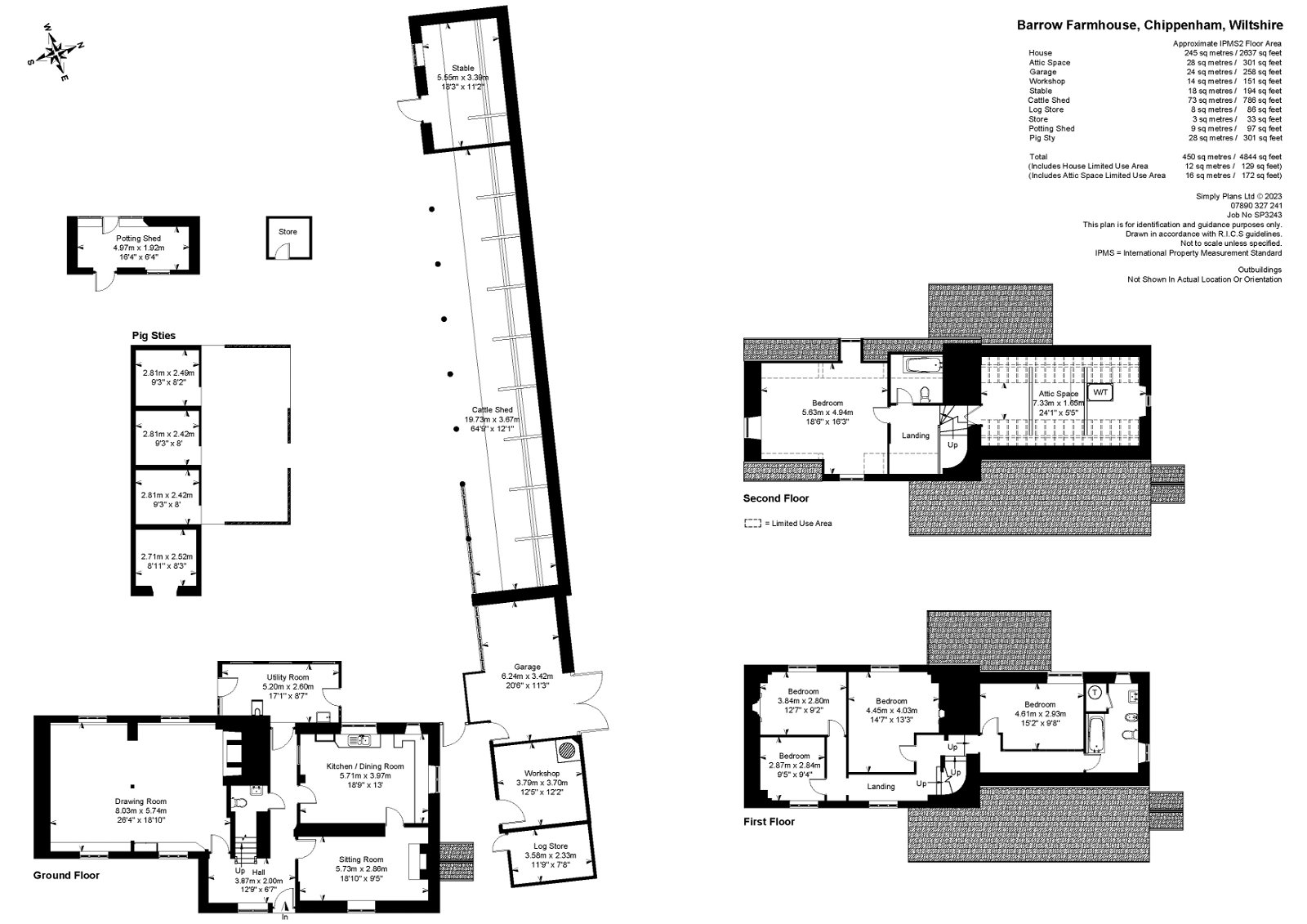
Barrow Farmhouse is a historical Grade II listed timber-framed farmhouse boasting a plethora of well-preserved character and charm. Dating back to the 16th Century, the farmhouse is a notable property of importance within the North Wiltshire area featured in Chippenham Museum and frequently mentioned in the diaries of Francis Kilvert. The farmhouse was thoroughly renovated in the 1980s and is available to the market for the first time in over 40 years. The farmhouse is situated on the outskirts of the village of Langley Burrell located on the very edge of Chippenham and is easily accessible to a broad range of amenities. 

Rurally located and accessed by a private no-through lane, the property is accompanied by an extensive range of outbuildings with residual features from the former working dairy farm. The outbuildings have ample scope for conversion into offices or ancillary accommodation.  

The farmhouse’s grounds extend to 0.92 acres comprising a large, mature wraparound garden and additional small paddock (0.35 acre) situated across the drive in front of the house providing a lovely outlook.

The principal house accommodation is arranged over three floors extending in all to 2,637 sq.ft. The ground floor layout comprises two reception rooms, a traditional farmhouse style kitchen and utility room. The drawing room is a notable feature filled with natural light through a dual-aspect, with a large brick fireplace and exposed timber beams. On the first floor there are four bedrooms all enjoying countryside views and the main bathroom. The top floor includes a further bedroom accompanied by an additional bathroom. There is also a sizable attic on the top floor providing storage. 

Situation
The property is situated on the rural edge of Langley Burrell in a very convenient location close to Chippenham town. The village is also convenient for the M4 corridor offering the advantage of country life with the ease of quick commuter access. Langley Burrell has a church, village hall and the popular ‘The Langley Tap’ pub which is very well regarded for its cuisine. The village is surrounded by beautiful Wiltshire countryside with ample walking routes to explore including the 15th Century Maud Heath’s Causeway. Chippenham town has a large range of facilities and schooling options plus a mainline station to London. Junction 17 of the M4 motorway is only 4 miles away providing fast networks to Bristol, Bath, the M5, Swindon and London.
Tenure & Services
We understand the property is Freehold with oil fired central heating, private drainage, mains water and electricity. The boiler was replaced in 2018, a new oil tank was installed in 2023 and a brand new compliant sewage treatment plant was also upgraded in 2023. Superfast broadband is available and there is good mobile phone coverage. Information taken from the Ofcom mobile and broadband checker, please see the website for more information. Wiltshire Council Tax Band G.
 
Agents Note 
 
This property is occupied and therefore, all viewings strictly by appointment only.

Important Information

  • This is a Freehold property.
  • This Council Tax band for this property is: G

Property Ref: 680499

Share:

Similar Properties

Thompsons Hill, Sherston

3 Bedroom Detached House | Offers Over £800,000

Situated on the peaceful edge of the village, this very attractive detached period cottage occupies a generous 0.65 acre...

West Street, Great Somerford

3 Bedroom Detached House | £795,000

Tucked up a private drive with a lovely view across a paddock opposite, this individual detached house is surprisingly s...

Bath Road, Tetbury

4 Bedroom Detached House | £795,000

Positioned just half a mile and a short walk from the town centre, an individual designed and built detached house offer...

Tetbury Lane, Crudwell

4 Bedroom Detached House | £825,000

An excellent, well-appointed detached modern house occupying a southerly position overlooking fields within the highly s...

Lea, near Malmesbury

4 Bedroom Detached House | £849,000

Nearing completion and available to view now! An exceptional brand-new detached house, individually constructed on the e...

Biddestone

3 Bedroom Bungalow | £850,000

Tucked away in a private 0.33 acre plot backing onto fields close to the heart of the village, an individual detached bu...

James Pyle & Co (Sherston)

Swan Barton, Sherston, Wiltshire, SN16 0LJ

01666 840886

How much is your home worth?

Use our short form to request a valuation of your property.

Request a Valuation

Mortgage Calculator

Amount Borrowed: £
Total Amount Repayable: £
Total Monthly Payment: £
©2026 The Guild of Property Professionals. All rights reserved. Terms and Conditions | Privacy Policy | Cookie Policy | Complaints Policy | Members Login
The Guild of Property Professionals Trading Address: 121 Park Lane, London W1K 7AG. GPEA Limited. Registered in England & Wales.  Company No: 02819824.  Registered Office Address: 2 St. Stephen's Court, St. Stephen's Road, Bournemouth, Dorset, England, BH2 6LA.  VAT Registration No: 576 8795 61
Book a Property Valuation Update Cookies Preferences