Lanhill, Chippenham

£1,450,000

6 Bedroom Barn Conversion for sale in Chippenham

4 6 3
  • Grade II Listed period home
  • Outstanding equestrian/smallholding facilities
  • Southerly views across its own private grounds
  • 2 bedroom self-contained annexe
  • 4 bedrooms, 3 bathrooms in the main house
  • 3 light-filled reception rooms
  • Stabling and fenced paddocks
  • Stunning landscaped garden
  • Tucked away location 2 miles from Chippenham

Description
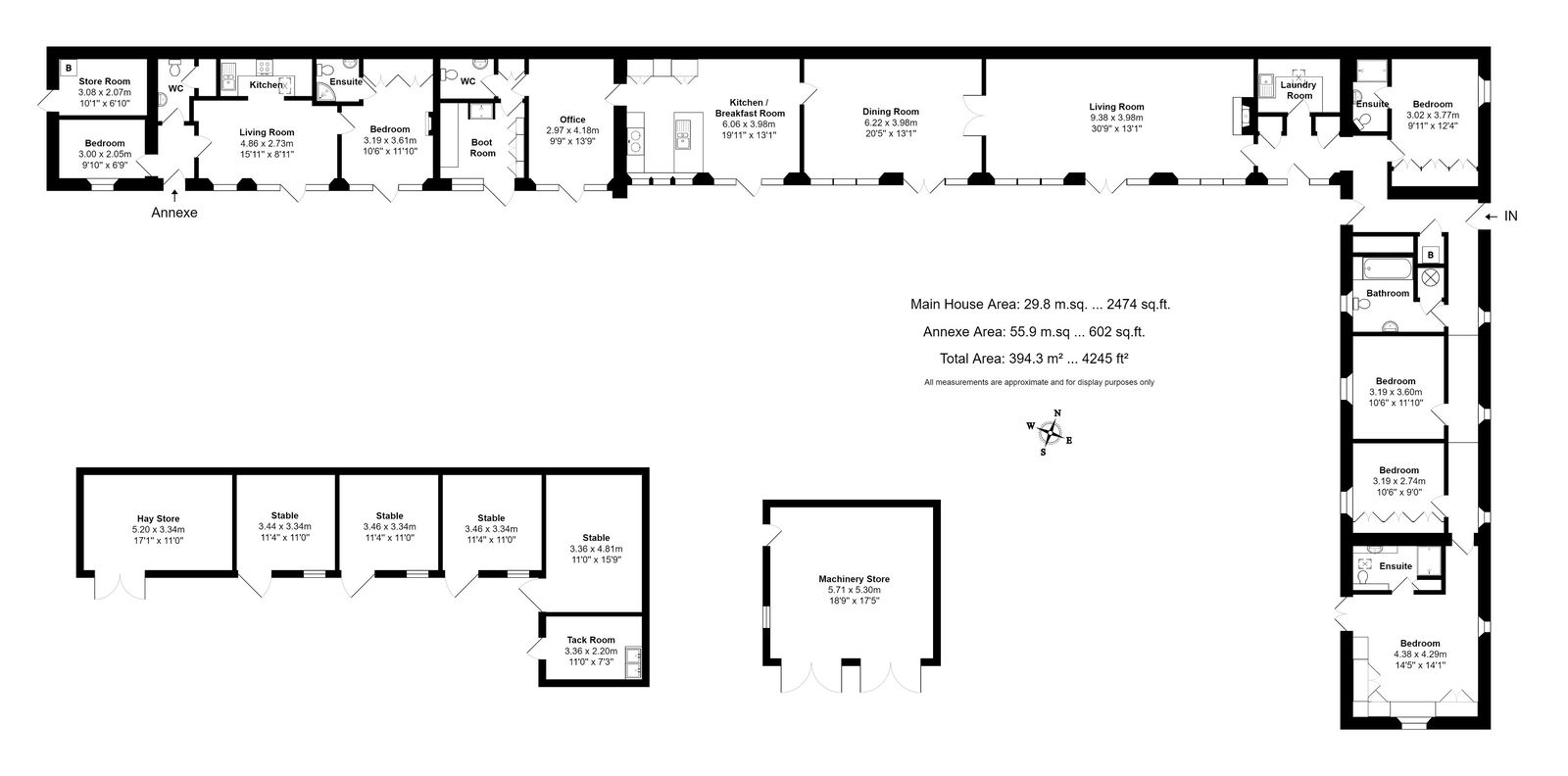
Lanhill Stables is a magnificent period home located within a rural, tucked away setting overlooking its beautifully manicured southerly gardens and land. Dating back to 1845 and Grade II Listed, the property was constructed as stables to the neighbouring Lanhill House by J.Thompson as part of the Neeld Estate. Lanhill Stables is an impressive equestrian/smallholding property set within 9.5 acres complete with stabling. In addition, the property has the fantastic attachment of a wholly self-contained annexe. Both the main house and the annexe benefit from underfloor heating throughout.
 
Within the principal house, the excellent family sized accommodation with a great deal of its original character spanning across one floor and extending to around 2,474 sq.ft. Enjoying a south-east facing aspect, the accommodation is filled with natural light through ceiling to floor windows and glazed doors accentuated by vaulted ceilings. The generous living spaces flow from one to another comprising three reception rooms and a kitchen/breakfast room. The living room of which reaches 30ft across with a cosy fireplace. The bedroom accommodation comprises four bedrooms, two with en-suites, and a family bathroom. The property has been thoughtfully designed with country living in mind boasting a very useful boot room complete with a dog shower, and a separate fitted laundry room.
 
The annexe offers some 600 sq.ft of accommodation and benefits from its own private entrance and garden area in front. The accommodation comprises two bedrooms, an en-suite, separate WC, and living room open plan to the kitchen. 
 
The equestrian angle is excellent with well-maintained turn out paddocks plus a yard and a range of stables as well as easy access for vehicles and ample parking. The stabling comprises four loose-boxes, a tack room with dual-sink and large hay store. The yard has flood lighting and both a hot and cold water supply. Behind the stable block, there is a timber constructed machinery store with power connected. A sweeping driveway enters the property to the rear approaching an oval turning circle. 
 
In addition to the surrounding land, the gardens are a stunning feature of the property having been beautifully landscaped with lawns framed by box hedging and vibrant flower beds. Arranged within the L-shape privacy of the house, the gardens have been designed with avenues of views over the land to be enjoyed and appreciated all year round from the principal accommodation. 
Situation
Located just 2 miles north-east of Chippenham, Lanhill is a rural hamlet remnant of ancient history with the Lanhill Long Barrow chamber. 1.5 mile away is the popular village of Yatton Keynell which has excellent facilities including a village shop, doctors surgery, pub and primary school. The property is conveniently accessible to town amenities whilst occupying a countryside setting. The A420 provides fast access to the city centres of Bath and Bristol both achievable within 35 minutes. Nearby Chippenham provides an excellent range of facilities plus mainline train services to London (Paddington) in as little as 69 minutes. Junction 17 of the M4 is situated 5 miles away for fast vehicular access to London and the M5. There is a superb choice of both state and private schooling at Chippenham and Bath. Horse racing can be found at Bath and the nearby famous Cotswold village of Castle Combe has a Peter Alliss designed 18-hole golf course, circuit track racing and a Michelin star restaurant. 
Additional Information
The property is Freehold with oil-fired heating and underfloor heating, private drainage, mains water and electricity. The property is Grade II Listed. Lanhill Stables has a right of way over the neighbouring property for access. There are no public rights of ways. Ultrafast broadband is available and there are some limitations to mobile phone coverage. Information taken from the Ofcom mobile and broadband checker, please see the website for more information. Wiltshire Council Tax Band G.

Important Information

  • This is a Freehold property.
  • This Council Tax band for this property is: G

Property Ref: 942850

Share:

Similar Properties

Castle Combe

3 Bedroom Village House | £1,395,000

The epitome of the Cotswolds, this stunning Grade II listed house offers generous accommodation of over 2,700 sq.ft with...

Little Somerford

5 Bedroom Detached House | £1,395,000

A beautifully renovated 17th Century Grade II listed farmhouse, unconverted barn ripe for conversion (STPP) with 8 acres...

The Street, Grittleton

3 Bedroom Village House | Guide Price £1,350,000

A beautifully renovated Grade II listed village house with a very impressive interior and pretty gardens. 

Seagry Road, Sutton Benger

6 Bedroom Detached House | £1,475,000

An exceptional, standout family house with a most impressive interior and stunning gardens. Fantastic outbuildings inclu...

Upper Seagry

5 Bedroom Detached House | Offers Over £1,495,000

Set within approximately 3.5 acres with beautiful south-facing gardens and a paddock, a magnificent detached country hou...

Cross Hayes, Malmesbury

5 Bedroom Semi-Detached House | Offers Over £1,500,000

An exceptional Grade II Listed Georgian townhouse situated in the heart of the highly sought after market town of Malmes...

James Pyle & Co (Sherston)

Swan Barton, Sherston, Wiltshire, SN16 0LJ

01666 840886

How much is your home worth?

Use our short form to request a valuation of your property.

Request a Valuation

Mortgage Calculator

Amount Borrowed: £
Total Amount Repayable: £
Total Monthly Payment: £
©2026 The Guild of Property Professionals. All rights reserved. Terms and Conditions | Privacy Policy | Cookie Policy | Complaints Policy | Members Login
The Guild of Property Professionals Trading Address: 121 Park Lane, London W1K 7AG. GPEA Limited. Registered in England & Wales.  Company No: 02819824.  Registered Office Address: 2 St. Stephen's Court, St. Stephen's Road, Bournemouth, Dorset, England, BH2 6LA.  VAT Registration No: 576 8795 61
Book a Property Valuation Update Cookies Preferences