Wiltshire Gardens, Bransgore, Christchurch

£535,000

5 Bedroom Detached House for sale in Christchurch

2 5

The property comprises a substantial and well proportioned, detached, five bedroom, two/three reception family house situated in an established road backing onto farmland.

Entrance porch * entrance hall * cloakroom * 19' living room * study * 22' open plan kitchen/dining room * utility room * master bedroom with ensuite shower room * 4 further bedrooms * shower room * gas central heating * double glazing * solar panels * ample parking * rear garden *potential caravan/boat parking.

A well presented detached family house previously extended to provide additional living space together with a fifth bedroom and the conversion of the garage into a study and utility room. The property enjoys a good sized garden and is situated in an established road of similar properties within easy reach of the village center, and benefits from double glazing, gas central heating and a solar panel installation. There is ample parking for a number of vehicles and there is the potential to provide additional parking alongside the house for a caravan, motorhome or similar. Bransgore village centre offering all the amenities for daily life, including a Co-operative local supermarket, two medical centres, hairdresser, vets and a post office. There are three pubs close by, including the ward-winning Three Tuns which dates back to the 17th Century and there are a number of community clubs. The New Forest National Park is also close at hand and the renowned local beaches of Poole, Bournemouth and Mudeford are within easy reach.           


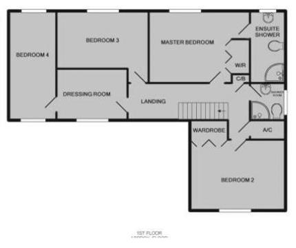
ACCOMMODATION IN FULL DETAILS.

Glazed front door and side screen to reception lobby. Slate styled floor, windows to the side. Multi panelled glazed door and side screen.

 

ENTRANCE HALL

Laminate style flooring. Coved and textured ceiling,radiator. Under stairs storage.

 

CLOAKROOM

With white suit comprising a low level WC, water basin with mixer tap in vanity unit with cupboard below. Part tiled walls, obscure glazed window to the side, textured ceiling.

 

LIVING ROOM 

(19'.5" X 17') (6m x 5.2m) maximum measurements

Dual aspect to front and rear with double opening patio doors onto the garden. Multi panelled glazed doors from hall. Feature brick fireplace with, marble style hearth and wooden surround and mantel with an inset Nestor Martin gas fired solid fuel style stove. Three radiators, coved and textured ceiling.

 

STUDY 

(15' X 13'.8") (4.5m x 4.2m) maximum measurements

Of L shape. Aspect to the front, two radiators, light oak style laminate flooring. Flat set ceiling.

 

KITCHEN/DINING ROOM 

(22'.3" X 10'.9") (6.7m x 3.3m) maximum measurements

Aspect over the garden. Fitted with an extensive range of work surfaces with an inset one and a half bowl single drainer stainless steel sink with mixer tap. Tiled splash backs. Range of floor storage cupboards below. Recess and plumbing for dishwasher, kick board heater. Recess for upright fridge freezer. Inset for burner stainless steel gas hob with concealed cooker hood above. Extensive range of wall storage cupboards and a glazed peninsular.¾ height unit housing Creda stainless steel oven and grill. In the dining area there is an additional dresser style unit with matching work surface, base cupboard and drawers, crockery and storage cupboards above. Ample space for a family dining table. Radiator, tile effect flooring. Flat set ceiling. Single and double opening multi panelled glazed return doors to hallway. Part glazed back door to garden

 

UTILITY ROOM 

(11'.1" x 5'.6") (3.4m x 1.7m) maximum measurements

Fitted with a range of work surfaces with space under forwashing machine and dryer together with space for additional fridge. Range ofwall storage cupboards, part tiled surround. Wall mounted Glowworm gas firedboiler. Tiled floor, part glazed door to rear garden.

 

From the hallway a straight flight staircase leads to the first floor landing. Coved and textured ceiling, access to loft space with adder. Radiator, aspect of the front. Shelved storage cupboard.

  

BEDROOM 1 

(13'.3" X 11'.1") (4m x 3.3m) maximum measurements

Aspect to rear over garden and field beyond. Extensive range of wardrobes to two sides comprising three doubles and a single with adjoining ¾height cupboard. Matching chest of drawers and bedside cupboards. Radiator.Recently fitted laminate flooring. Coved and flat set ceiling.

 

ENSUITE SHOWER ROOM

Of particularly good size, finished with fully tiled walls and floor. Complementing the white suit comprising a large corner shower cubicle with thermostatic shower with waterfall style head and hand shower attachment.Low level WC. Vanitory unit with inset basin with mixer tap cupboards and drawers below. Mirrored cupboard over. Radiator with heated towel rail. Down light,window.

 

BEDROOM 2 

(15'.3" X 11'.2") (4.6m x 3.2m) maximum measurements

Aspect to the front, range of built in wardrobes comprising two doubles. Radiator, coved and textured ceiling.

 

BEDROOM 3

(14'.2" X 8'.9") (4.3m x 2.7m) maximum measurements

Aspect to the rear overlooking the garden and field beyond. Builtin double wardrobe, radiator, coved and textured ceiling.

 

BEDROOM 4

(11'.2" X 8'.2") (3.4m x 2.4m) maximum measurements

Aspect to the front. Built in storage cupboards with glazed display cupboard above. Radiator, coved and textured ceiling. Connecting door to

 

BEDROOM 5 

(17' x 7'.5") (5.2m x 2.2m) maximum measurements

Dual aspect over looking the front and to the rear over the garden and field beyond, radiator, coved and flat set ceiling.

A pull down ladder gives access to the secondary loft area, ideal for extra storage with velux style window, down lights, textured wall and flooring.

    

SHOWER ROOM

Fitted with white suite with a corner shower cubical with thermostatic shower, low level WC, Vanitory unit with inset basin with mixer tap, storage below, mirror over. Fully tiled walls, obscure glazed window.

 

FRONT GARDEN

The property enjoys a good sized front garden, landscaped to provide a large area of paving with inset plants, shrubs and mature tree together with a waterfall feature. A part paved and gravelled parking area providing space for a number of vehicles. A Personal gate gives accesses along the side of the property to the;

 

REAR GARDEN

This has been laid mainly to lawn with a shaped slightly raised patio running the width of the house and adjoining raised beds.

Timber garden chalet (11'.7" X 9') light and power, double opening doors to the front, paved terrace.

The lower end of the garden has been paved with a circular feature ideal for barbecues. Soft fruit trees. Compost bin. Adjoining the house is 3 timber garden buildings comprising garden sheds and a garden store/chalet. Power available. Return access alongside the property to the front with an outside tap. The garden is bounded by close boarded fencing to the rear and a brick wall to the front,which if removed together with the outbuildings may provide space for additional parking of a caravan or boat.



Consumer Protection from Unfair Trading Regulations 2008.
The Agent has not tested any apparatus, equipment, fixtures and fittings or services and so cannot verify that they are in working order or fit for the purpose. A Buyer is advised to obtain verification from their Solicitor or Surveyor. References to the Tenure of a Property are based on information supplied by the Seller. The Agent has not had sight of the title documents. A Buyer is advised to obtain verification from their Solicitor. Items shown in photographs are NOT included unless specifically mentioned within the sales particulars. They may however be available by separate negotiation. Buyers must check the availability of any property and make an appointment to view before embarking on any journey to see a property.

Important Information

  • This is a Freehold property.

Property Ref: BHC_BHC0145

Share:

Similar Properties

Wiltshire Road, Christchurch

4 Bedroom Detached Bungalow | £449,950

A deceptively spacious detached four double bedroom bungalow with 31' living room, excellent sized secluded west facing...

Wiltshire Gardens, Christchurch

2 Bedroom Detached Bungalow | £399,950

A detached two bedroom bungalow now requiring modernisation and offering ample scope for further extension and developme...

Bramble Way, Bransgore, Christchurch

3 Bedroom Detached Bungalow | £385,000

A deceptively spacious immaculately presented detached three bedroom, two reception bungalow with a superb conservatory...

Burley Road, Bransgore, Christchurch

3 Bedroom Semi-Detached House | Guide Price £550,000

Superbly landscaped garden of approx 1/2 acre.An exceptionally well presented three bedroom semi-detached Victorian hous...

Burley Road, Bransgore, Christchurch

3 Bedroom Semi-Detached House | Guide Price £550,000

Situated in a large garden approaching half an acre within the national park, an exceptionally well presented 3 bedroom,...

West Road, Bransgore, Christchurch

4 Bedroom Detached House | Guide Price £615,000

A substantial four bedroom detached house, set in established gardens, having excellent scope to improve/extend, subject...

Hayward Fox (Bransgore)

The Corner House, Ringwood Road, Bransgore, Dorset, BH23 8AA

01425 673707

How much is your home worth?

Use our short form to request a valuation of your property.

Request a Valuation

Mortgage Calculator

Amount Borrowed: £
Total Amount Repayable: £
Total Monthly Payment: £
©2026 The Guild of Property Professionals. All rights reserved. Terms and Conditions | Privacy Policy | Cookie Policy | Complaints Policy | Members Login
The Guild of Property Professionals Trading Address: 121 Park Lane, London W1K 7AG. GPEA Limited. Registered in England & Wales.  Company No: 02819824.  Registered Office Address: 2 St. Stephen's Court, St. Stephen's Road, Bournemouth, Dorset, England, BH2 6LA.  VAT Registration No: 576 8795 61
Book a Property Valuation Update Cookies Preferences