Ashreigney, Chulmleigh, EX18

Guide Price
£285,000
SSTC
This property listing is now SSTC

2 Bedroom Semi-Detached Bungalow for sale in Chulmleigh

1 2 1
  • Edge of Village bungalow
  • 2 Double bedrooms
  • Registered wildlife garden
  • Fruit trees and vegetable beds
  • Open plan kitchen/dining/living
  • Peaceful location
  • Parking for 4 vehicles
  • Summerhouse and insulated studio / office
  • No onward chain

Ashreigney is a traditional Devon village with a vibrant community, this property is set on the edge of the village and has a well thought out wildlife garden and offers open plan living with the added bonus of solar energy and is being sold with no onward chain.

The main living area is open plan with a dining area, office area, lounge and kitchen with a wealth of light and a lovely aspect over the garden through patio doors.  The kitchen has space for a washing machine and fridge, there is a cooker and halogen 4 ring hob with wood effect units.  The adjoining utility room has fitted units with space for tumble dryer and an additional fridge/freezer.

The master bedroom is a good sized double and the 2nd bedroom is also a double.  There is a storage cupboard in the hall and the bathroom has a white suite bath with shower over. There is uPVC double glazing throughout and has the eco benefit of 11 solar panels (owned outright) and the lounge has a very economical infrared ceiling heater and a multifuel wood burning stove creating a warm and cosy living space.  The remaining heating is from programmable electric heaters.

The property has parking for 4 vehicles (with camper hook up) and a well insulated outdoor studio/office suitable for a craft room or store with power and light with adjoining workshop with shelving and workbench.  The main garden is south facing and has been well tended and thought out with vegetable beds, garden shed and fruit cage including raspberries, gooseberries and blackcurrants with a water syphoning system.  The lower section has a pond and is set to a wildlife garden registered with the Devon Wildlife Trust as a wildlife garden.  There is a patio area with creeping thyme and a perfect area to enjoy outdoor dining and listening to the birdsong.

 

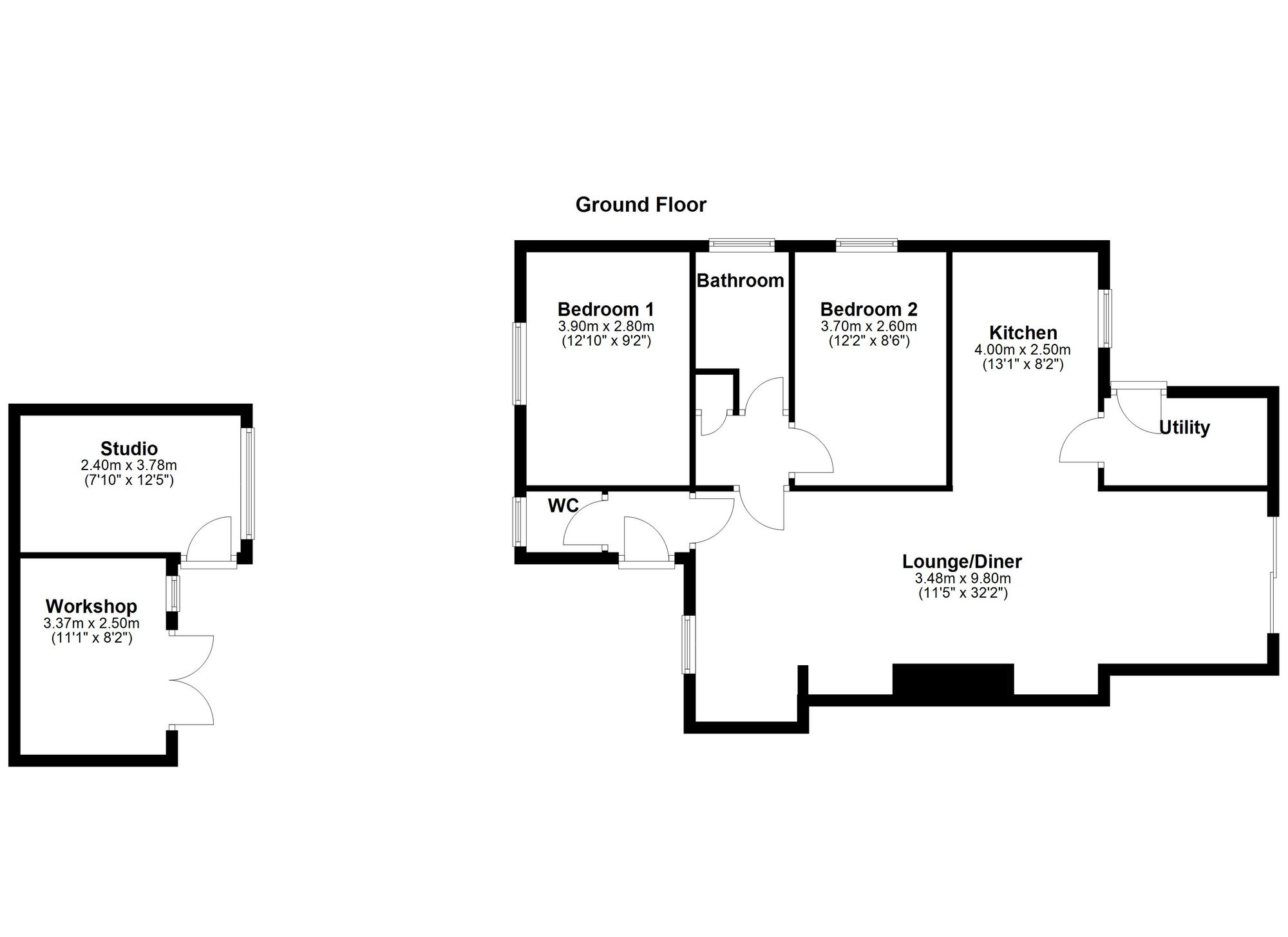
Please see the floorplan for room sizes.

Current Council Tax: Band B - Torridge 2025/26 - £1895.75

Utilities: Mains electric, water, telephone & broadband

Broadband within this postcode: Ultrafast 900mbps

Drainage: Mains drainage

Heating: Solar, Infa-red panel, woodburning & electric heating

Listed: No

Conservation Area: No

Tenure: Freehold

Buyers' Compliance Fee Notice: Please note that a compliance check fee of £25 (inc. VAT) per person is payable once your offer is accepted. This non-refundable fee covers essential ID verification and anti-money laundering checks, as required by law.

 

ASHREIGNEY is a charming village between Exmoor and Dartmoor and has a church, village hall and a bus serving Bideford and Barnstaple. The local town of Chulmleigh, approximately 4 miles, offers an excellent range of day to day amenities, health centre, primary and secondary schooling, while the regional centre of Barnstaple (approximately 14 miles distant) offers a more comprehensive range of facilities.  The Cathedral City of Exeter is approximately 45 minutes’ drive away and offers access to the motorway network and main line railway networks.  North Devon’s impressive coastline with its steep cliffs and wide sandy beaches is within easy reach by car. There are regular community projects including a pop-up pub and pop-up post office.

 

DIRECTIONS

From the A377 at Leigh Cross take the turning signposted to Bridge Reeve & Ashreigney (opposite the turning to Chulmleigh).  Proceed along this lane down towards the river, cross over the bridge and turn right.  Continue along this lane and proceed up the hill, when passing the sign for Ashreigney, the property is found on your right on the road towards Winsood and Burrington.

What3Words: ///photos.limitless.eased

 

 

Energy Efficiency Current: 55.0
Energy Efficiency Potential: 89.0

Important Information

  • This is a Freehold property.
  • This Council Tax band for this property is: B

Property Ref: f558d95c-e8a1-4cae-bf0f-d50228752338

Share:

Similar Properties

Apple Tree Close, Witheridge, EX16

2 Bedroom Detached Bungalow | £285,000

* No onward chain * Lovely detached bungalow on a large, level plot with 2 bedrooms, spacious reception rooms, plenty of...

Snows Estate, Sandford, EX17

3 Bedroom Semi-Detached House | Guide Price £285,000

Semi-detached modern property set back in a quiet position in the desirable village of Sandford, 3 bedrooms with a lovel...

The Green, Morchard Bishop, EX17

3 Bedroom Detached Bungalow | Guide Price £285,000

An individual, detached bungalow in a central village location. 3 bedrooms, good sized and level gardens, plus garage, d...

Barnfield, Crediton, EX17

3 Bedroom Semi-Detached House | Guide Price £290,000

Semi detached property in an elevated position in town on an extra larger corner plot, 3 bedrooms and outbuildings with...

Cromwells Meadow, Crediton, EX17

3 Bedroom Terraced House | Guide Price £290,000

A rare chance to own a modern, 3 bedroom house with ensuite, south facing gardens, parking and conservatory in this Cred...

Woolston Green, Landscove, TQ13

2 Bedroom Semi-Detached House | Guide Price £295,000

A brand new development of just 9, high quality 2, 3 and 4 bedroom homes in this beautiful village setting just 2 miles...

Helmores (Crediton)

Crediton, Devon, EX17 3LF

01363 777999

How much is your home worth?

Use our short form to request a valuation of your property.

Request a Valuation

Mortgage Calculator

Amount Borrowed: £
Total Amount Repayable: £
Total Monthly Payment: £
©2025 The Guild of Property Professionals. All rights reserved. Terms and Conditions | Privacy Policy | Cookie Policy | Complaints Policy | Members Login
The Guild of Property Professionals Trading Address: 121 Park Lane, London W1K 7AG. GPEA Limited. Registered in England & Wales.  Company No: 02819824.  Registered Office Address: 2 St. Stephen's Court, St. Stephen's Road, Bournemouth, Dorset, England, BH2 6LA.  VAT Registration No: 576 8795 61
Book a Property Valuation Update Cookies Preferences