Lislaban Road, Cloughmills, BT44 9HZ

Offers in region of
£450,000
SSTC
This property listing is now SSTC

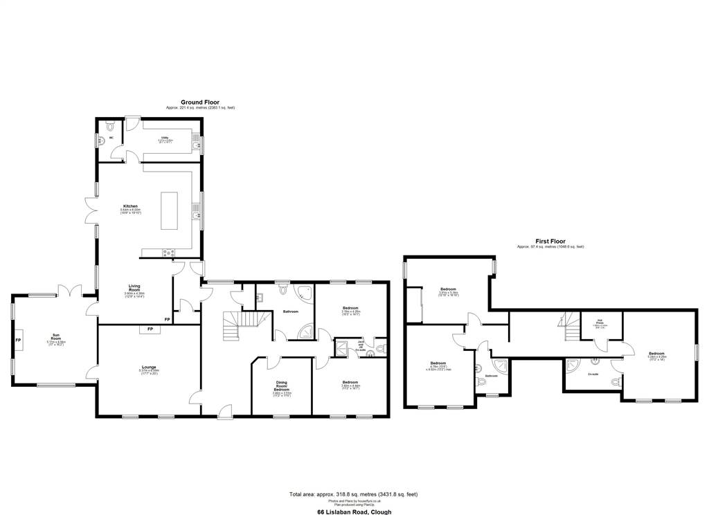
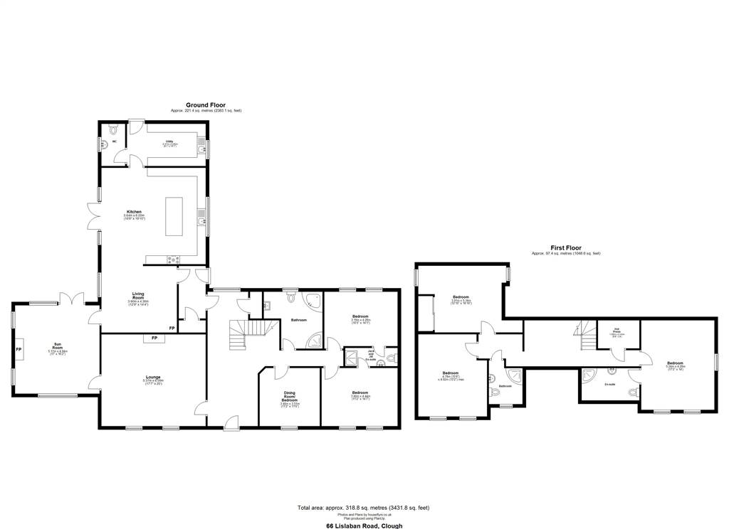
6 Bedroom Detached Bungalow for sale in Cloughmills

3 6
  • Detached chalet bungalow
  • Set on approx. 0.75 acres
  • Six bedrooms (three on ground floor)
  • Jack & Jill en-suite on ground floor
  • Principle bedroom with en-suite shower room
  • Lounge with multi-fuel burning stove
  • Sun room with multi-fuel burning stove
  • Living room with fireplace
  • Modern kitchen with centre island
  • Utility room

Homes Independent are delighted to present this striking family home extending to over 3,400 sq ft and positioned on a mature site of approximately half an acre. Designed to maximise its stunning countryside setting, the property boasts contemporary windows, vaulted ceilings and an exceptional layout. With ample living space, six bedrooms (three with en-suite), spacious kitchen with open plan family area, sun room, lounge, utility, bathroom and shower room, this home offers unrivalled space for family living. Externally, a detached double garage, private driveway, landscaped gardens and panoramic views complete this remarkable package. Convenient to both Ballymena and The North Coast, this home offers both style and practicality in a stunning rural setting. This really is a one of a kind listing and viewing is essential to appreciate all that’s on offer.

Property Ref: HIBM_HIBM5040

Share:

Similar Properties

Lisnahilt Road, Broughshane, BT42 4QT

5 Bedroom Detached House | Offers in region of £450,000

Rarely does a property of this calibre become available on the open market - especially in a superb position on the edge...

Tullygrawley Road, Glarryford, Ballymena, BT44 9HE

4 Bedroom Detached House | Offers in region of £445,000

Homes Independent are thrilled to offer for sale this exceptional four-bedroom detached property, located in a desirable...

Granagh Road, Cullybackey, BT42 1EQ

4 Bedroom Detached House | Offers in region of £425,000

Homes Independent are delighted to list for sale this exceptional dwelling on the Granagh Road on the edge of Cullybacke...

Portglenone Road, Randalstown, Ballymena, BT41 3EU

4 Bedroom Detached House | Offers in region of £460,000

Homes Independent are thrilled to list for sale this stunning detached family home constructed in 2021 set back from the...

Ballee Road East, Ballymena, BT42 3HG

4 Bedroom Detached House | Offers in region of £475,000

Constructed in 2022, this exceptional detached residence blends modern design with practical family living. Located with...

Old Portglenone Road, Ahoghill, BT42 1LQ

4 Bedroom Detached House | Offers in region of £475,000

Homes Independent are excited to introduce 59 Old Portglenone Road, Ahoghill, an exceptional new build that seamlessly c...

Homes Independent (Ballymena)

Ballymena, Antrim, BT43 5AA

028 2565 11 11

How much is your home worth?

Use our short form to request a valuation of your property.

Request a Valuation

Mortgage Calculator

Amount Borrowed: £
Total Amount Repayable: £
Total Monthly Payment: £
©2025 The Guild of Property Professionals. All rights reserved. Terms and Conditions | Privacy Policy | Cookie Policy | Complaints Policy | Members Login
The Guild of Property Professionals Trading Address: 121 Park Lane, London W1K 7AG. GPEA Limited. Registered in England & Wales.  Company No: 02819824.  Registered Office Address: 2 St. Stephen's Court, St. Stephen's Road, Bournemouth, Dorset, England, BH2 6LA.  VAT Registration No: 576 8795 61
Book a Property Valuation Update Cookies Preferences