Hartley Wood, Clutton

£2,000,000

Land for sale in Clutton

  • PLANNING PERMISSION GRANTED
  • Outline planing permission in place in place for nine new residential dwellings within an established countryside setting close to Bath and Bristol.
  • Further Permission in Principle (PIP) approved for the conversion of existing barns into up to eight high-quality residential properties.
  • An exceptional 6.3-acre site with equestrian facilities, existing dwellings, and dual planning consents offering significant scope for development potential.
  • Impressive main house with spacious living areas, together with detached lodge providing of additional accommodation ideal for multi-generational living or as a potential rental investment.
  • Comprehensive equestrian facilities including stables, two floodlit ménages, and a substantial agricultural barn with hardstanding.
  • Beautifully rural and private setting surrounded by open countryside yet easily accessible to nearby amenities and transport routes.
  • A rare and versatile opportunity to acquire a site combining residential, equestrian and development potential within the greenbelt.

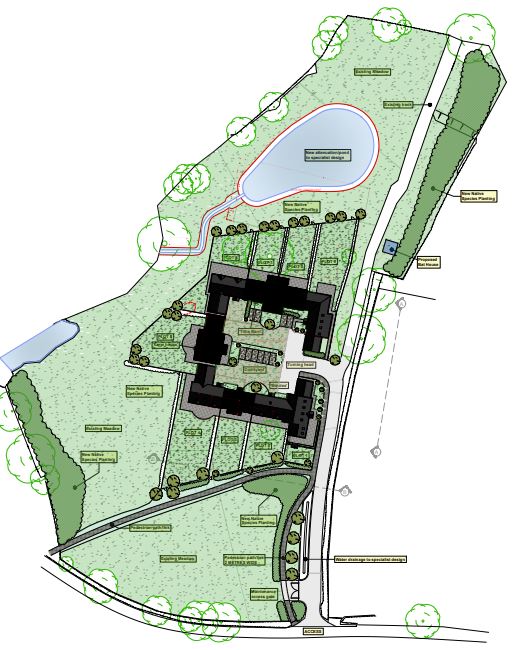
Set amidst open countryside on the edge of Clutton, Hartley Wood presents a rare and exciting development opportunity in a most attractive rural setting. Extending to approximately 6.3 acres, the property currently comprises an equestrian holding with a substantial principal home, a detached lodge, extensive outbuildings, stables and two floodlit ménages. Its position within the greenbelt combines a sense of privacy and space with easy access to nearby Bath and Bristol, offering significant scope for future development and diversification.

The site benefits from two valuable planning permissions: one outline consent for the erection of nine new residential dwellings and a second Permission in Principle (PIP) for the conversion of existing barns to create up to eight further homes. This flexibility allows prospective purchasers to consider a variety of development routes within a picturesque and established rural setting.

Accommodation
The existing property provides a well-appointed family home, an annexe and spacious reception areas overlooking landscaped gardens and orchards. The detached lodge offers further self-contained accommodation that could be ideal for multi-generational living or as a high-quality letting opportunity.

Complementing the residential accommodation are a comprehensive range of equestrian and agricultural facilities, including modern stabling, two well-maintained ménages with floodlighting, a large agricultural barn and hardstanding area, all surrounded by open paddocks and mature trees. The grounds have been carefully managed and include lawned gardens, orchard planting, and natural boundaries that blend seamlessly into the surrounding countryside.

Location
Clutton is a highly regarded village situated within the rolling countryside of North East Somerset, positioned conveniently between Bath and Bristol. It combines traditional rural charm with excellent accessibility, making it particularly appealing to those seeking a peaceful village lifestyle within easy reach of the city.

The village offers a strong sense of community and a range of everyday amenities including a well-supported primary school, village hall, popular public house, and local shop. The nearby towns of Midsomer Norton and Keynsham provide a more extensive selection of facilities, while Bath and Bristol are both within easy commuting distance.

Clutton also enjoys excellent transport connections, with regular bus services to surrounding towns and the A37 providing swift access to major routes. Rail links from nearby Keynsham or Bath Spa stations offer direct services to London Paddington and Bristol Temple Meads.

Surrounded by open countryside, the area is ideal for walking, cycling, and outdoor pursuits, with many scenic footpaths and bridleways accessible from the village itself. Clutton’s blend of convenience, community and unspoilt rural setting makes it one of Somerset’s most desirable locations.

Directions
Going North on the A37 in Clutton turn right onto Station Rd. Head east on Station Rd towards The Mead. Station Rd turns left and becomes Clutton Hill. After 0.8mi turn left onto Cuckoo Ln then turn left onto King Ln. Then turn right after 0.2mi.

Planning Permission
Outline application for the erection of 9 residential dwellings with access to be determined and all other matters reserved (resubmission).
Planning Application Reference: 23/04243/OUT

A Permission in Principle Planning (PIP) Application for the conversion of the existing barns on site to provide up to 8 residential dwellings
Planning Application Reference: 23/04243/OUT

Material Information
All available property information can be provided upon request from Holland & Odam. For confirmation of mobile phone and broadband coverage, please visit checker.ofcom.org.uk

Property Ref: 665667_NDJ862040

Share:

Similar Properties

Keinton Mandeville, Somerton

6 Bedroom Detached House | £1,150,000

Set discreetly away from passing traffic, Kingswood House is a commanding contemporary home in excess of 5000 sq feet, p...

Oakland Lane, Over Stratton

4 Bedroom Detached House | £1,095,000

The Outlook offers a simply unique self build opportunity, providing the chance to commission a truly beautiful and dist...

Over Stratton, South Petherton

4 Bedroom Detached House | £995,000

Orchard Linhay presents an exceptional self-build opportunity, with the chance to create a truly distinctive, architect-...

Holland & Odam (Glastonbury)

Glastonbury, Somerset, BA6 9DX

01458 833123

How much is your home worth?

Use our short form to request a valuation of your property.

Request a Valuation

Mortgage Calculator

Amount Borrowed: £
Total Amount Repayable: £
Total Monthly Payment: £
©2025 The Guild of Property Professionals. All rights reserved. Terms and Conditions | Privacy Policy | Cookie Policy | Complaints Policy | Members Login
The Guild of Property Professionals Trading Address: 121 Park Lane, London W1K 7AG. GPEA Limited. Registered in England & Wales.  Company No: 02819824.  Registered Office Address: 2 St. Stephen's Court, St. Stephen's Road, Bournemouth, Dorset, England, BH2 6LA.  VAT Registration No: 576 8795 61
Book a Property Valuation Update Cookies Preferences