Four bedroomed semi-setached house

Guide Price
£475,000
SSTC
This property listing is now SSTC

4 Bedroom Semi-Detached House for sale in Colchester

2 4 2
  • Extended semi-detached house Outstanding field views Family room and separate living room Kitchen / dining room Principal bedroom suite Three further bedrooms Off-road parking Gardens

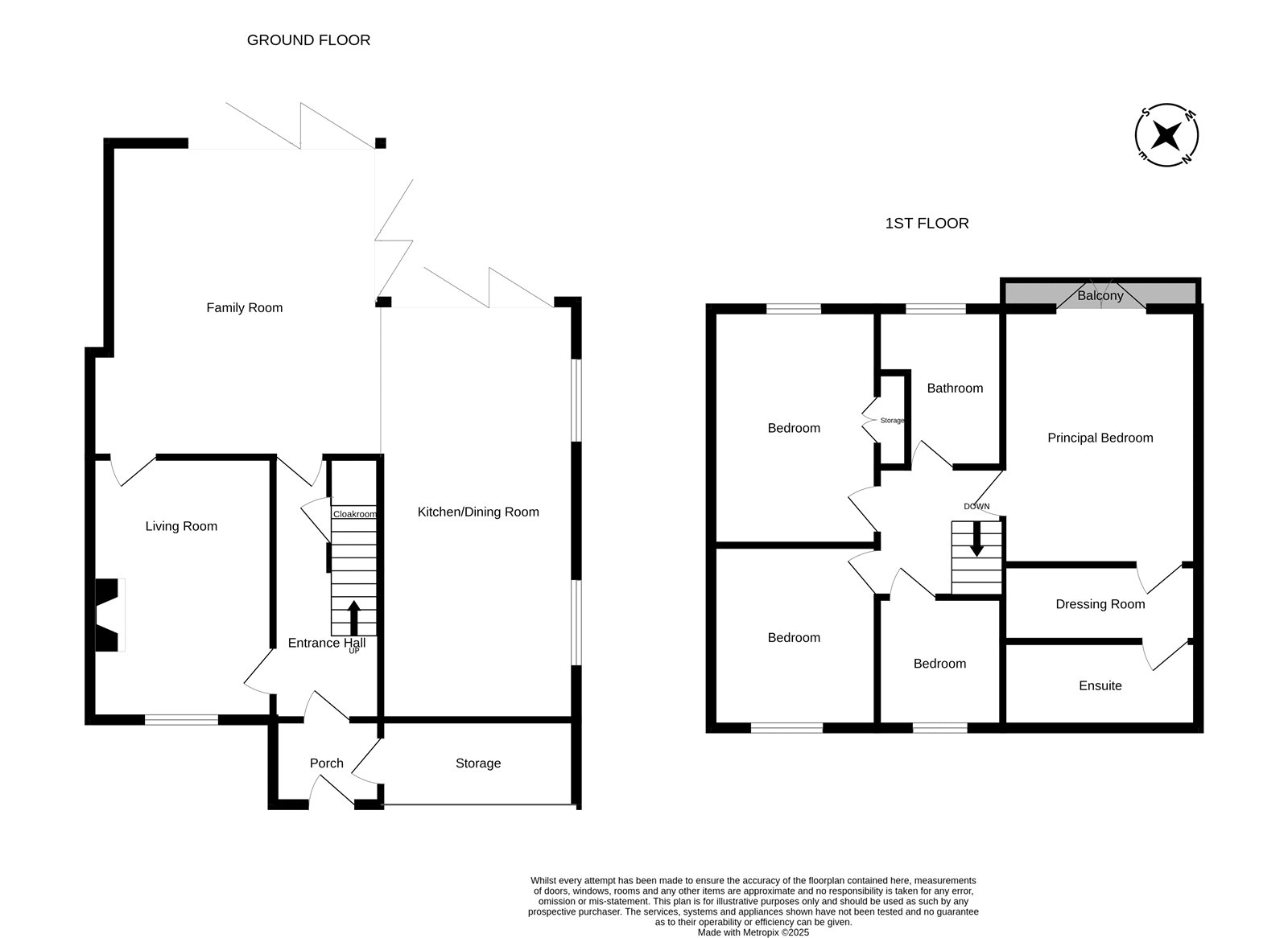
The ground floor accommodation offers a spacious and well-considered layout, ideal for both day-to-day living and entertaining. A welcoming entrance hall leads to a generous living room with a large picture window that allows in plenty of natural light and overlooks the front aspect. To the rear, a standout feature is the open-plan kitchen dining room, which enjoys uninterrupted views over the fields beyond. This space is fitted with a range of contemporary units and features extensive worktop space, open shelving, and a breakfast bar beneath a full-width window. Bi-fold doors from the dining area connect seamlessly to the garden and decked terrace, maximising the semi-rural setting. The layout flows into a large, flexible family room, currently arranged to suit a variety of uses, and there is also a ground floor cloakroom, completing the ground-floor accommodation.

The first floor offers four bedrooms set around a central landing. The principal bedroom is positioned to the rear and enjoys sweeping views across open countryside through full height glazed doors with Juliet balcony. This room is complemented by a dedicated dressing room and a stylish ensuite shower room with contemporary finishes. Three further bedrooms offer excellent versatility for family use, guests or home working, two with front-facing aspects and one overlooking the garden and fields beyond. A well-appointed family bathroom completes the accommodation.

The property is set back from the lane with a gravelled driveway providing ample off-road parking. To the rear, the garden is a real highlight, backing directly onto open fields and offering uninterrupted countryside views. A large, decked terrace extends from the house, creating an ideal area for outdoor dining and entertaining, with steps down to a generous lawn bordered by mature planting and fruit trees. There is also a greenhouse and space for raised beds, appealing to those with an interest in gardening. The garden enjoys a south-facing aspect, ensuring plenty of natural light and sunshine throughout the day, enhancing its appeal as a private and inviting outdoor space.

Important Information

  • This is a Freehold property.
  • This Council Tax band for this property is: B
  • EPC Rating is C

Property Ref: DDH250359

Share:

Similar Properties

Three bedroom semi-detached house

3 Bedroom Semi-Detached House | Guide Price £475,000

This attractive semi-detached Victorian home occupies a well-regarded position on Constantine Road, Colchester and has b...

Four bedroom detached house

4 Bedroom Detached House | Guide Price £475,000

Tucked away in a quiet corner of Kenyon Close, this attractive detached home enjoys a wonderful setting with open greens...

Three-bedroomed detached bungalow

3 Bedroom Detached Bungalow | Offers in excess of £450,000

Beautifully presented detached bungalow located in the heart of Ardleigh with accommodation comprising open plan kitchen...

Four-bedroomed detached house

4 Bedroom Detached House | Offers in excess of £500,000

Set within a popular modern development, this well-proportioned detached family home offers comfortable and versatile ac...

Two bedroomed semi-detached cottage

2 Bedroom Semi-Detached House | Offers in excess of £500,000

Set on Crown Street in the heart of Dedham, this semi-detached cottage offers an outstanding village setting with open m...

Three-bedroomed detached house

3 Bedroom Detached House | Guide Price £500,000

This detached family home sits within a sought-after residential setting, offering generous accommodation and a calm, es...

Kingsleigh Estate Agents (Dedham)

Dedham, Essex, CO7 6DE

01206 940123

How much is your home worth?

Use our short form to request a valuation of your property.

Request a Valuation

Mortgage Calculator

Amount Borrowed: £
Total Amount Repayable: £
Total Monthly Payment: £
©2026 The Guild of Property Professionals. All rights reserved. Terms and Conditions | Privacy Policy | Cookie Policy | Complaints Policy | Members Login
The Guild of Property Professionals Trading Address: 121 Park Lane, London W1K 7AG. GPEA Limited. Registered in England & Wales.  Company No: 02819824.  Registered Office Address: 2 St. Stephen's Court, St. Stephen's Road, Bournemouth, Dorset, England, BH2 6LA.  VAT Registration No: 576 8795 61
Book a Property Valuation Update Cookies Preferences