Ashbury Crescent, Coleraine, Co Londonderry

Offers Over
£340,000

5 Bedroom Chalet for sale in Coleraine

2 5 3
  • 5 Bedroom 2 Reception Detached Chalet Bungalow
  • Modern Open Plan Kitchen & Dining Area
  • Oil Fired Central Heating
  • Double Glazed Windows
  • Highly Energy Efficient Home
  • Solar Panels Installed
  • Tarmac Driveway Leading To Integral Garage & Mature Private Garden
  • Conveniently Located Close Riverside Retail Park, Town Centre, Somerset Forest, Schools & All Other Amenities
  • Within Easy Access to Major Arterial Routes & North Coast Attractions

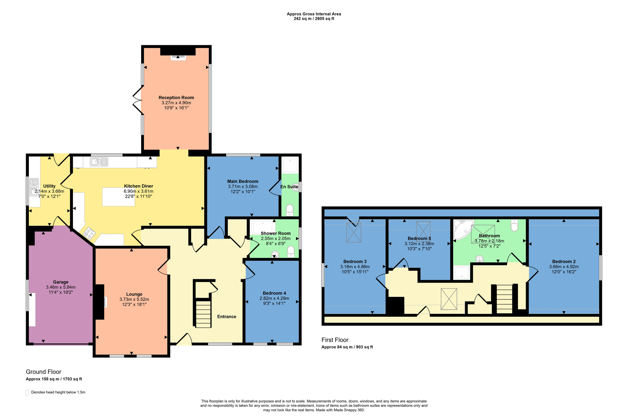
Set in the ever popular Somerset area of Coleraine, this modern family residence has been finished to the highest standard throughout is sure to have wide appeal on the open market with families wanting to set up home in a convenient setting within a highly established residential area.The home has been intelligently designed with bright well-proportioned accommodation to offer interior space which maximises the social areas, with the principal rooms making the most of the privacy and natural light. On the ground floor, the property boasts well-proportioned reception room, providing versatile living and entertaining options. The contemporary fitted kitchen is open plan to the dining area and is complimented by a separate utility room and an impressive sun room, adding everyday practicality to this superb family home. Two bedrooms (1 with en-suite) are also located on the ground floor with family shower room. Upstairs, there are three bedrooms and family bathroom perfectly suited to family living, guests, or home office use. Externally the property occupies a mature site with private gardens laid in lawn with feature decked patio area. Early viewing is highly recommended.

Entrance Hall
With tiled floor, recessed lights, cloaks cupboard, hotpress, and feature brick staircase wall with shelved under stairs storage.

Lounge
18'0" x 12'0"
With feature surround fireplace, recessed lights and wooden flooring.

Kitchen / Dining Area
22'0" x 15'0"
With fully fitted extensive range of eye and low level units with quartz worktops and tiling between, under mounted one and a half bowl sink unit, space for range style cooker with extractor fan, feature centre island with storage, integrated fridge, integrated dishwasher, glass display cabinet, wine rack, recessed lights and tiled floor. Open plan in to sun room.

Sun Room
17'0" x 10'11"
With multi fuel stove with hearth and mantle, recessed lights, tiled floor and French doors to rear.

Utility Room
12'0" x 7'0"
With stainless steel sink unit, low level units, plumbed for washing machine, space for tumble dryer, space for fridge freezer and tiled floor.

Integral Garage
19'4" x 11'2"
With roller door, pedestrian door and light.

Bedroom 1
12'0" x 10'0"
En-suite comprising fully tiled walk in shower cubicle, wc, wash hand basin and extractor fan.

Bedroom 2
14'0" x 9'0"

Shower Room
Suite comprising fully tiled walk in shower cubicle with drencher shower head, wash hand basin with under storage, wc, extractor fan and tiled floor.

First Floor Landing
With points for wall lights and storage into eaves.

Bedroom 3
15'0" x 10'0"
With storage into eaves.

Bedroom 4
10'0" x 10'0"
Measurements to widest points.

Bedroom 5
16'0" x 11'0"

Bathroom
Suite comprising corner bath, fully tiled walk in shower cubicle with drencher shower head, wash hand basin, wc, heated towel rail, recessed lights and tiled floor.

EXTERIOR FEATURES
Property approached by tarmac driveway with ample parking and garden to front laid in lawn with selection of plants and shrubs. Garden to side and rear fully enclosed by fencing and laid in lawn with feature decked patio area. Covered log store to side. Outside tap and lights.

Estimated Domestic Rates Bill £1893.00 Per Annum. Tenure TBC

Property Ref: BCV976791

Share:

Similar Properties

Ballylagan Lane, Aghadowey, Coleraine, County Londonderry

6 Bedroom Detached House | Offers in region of £340,000

Detached Chalet Bungalow

19 Burnquarter Lane, Ballymoney, Co Antrim

Farm | £340,000

A fantastic opportunity to purchase a 13 Acre smallholding with a dwelling house, potential building site and a substant...

Henley Hall, Coleraine, County Antrim

4 Bedroom Detached House | £335,000

.

Mountsandel Road, Coleraine, County Londonderry

4 Bedroom Detached House | Offers Over £350,000

.

Wattstown Green, Coleraine, County Londonderry

4 Bedroom Detached House | Offers Over £350,000

.

Culcrum Road, Cloughmills, Ballymena, Co Antrim

4 Bedroom Detached House | Offers in region of £350,000

.

Bensons (Coleraine)

9 Dunmore Street, Coleraine, Co. Londonderry, BT52 1EL

028 7034 3677

How much is your home worth?

Use our short form to request a valuation of your property.

Request a Valuation

Mortgage Calculator

Amount Borrowed: £
Total Amount Repayable: £
Total Monthly Payment: £
©2026 The Guild of Property Professionals. All rights reserved. Terms and Conditions | Privacy Policy | Cookie Policy | Complaints Policy | Members Login
The Guild of Property Professionals Trading Address: 121 Park Lane, London W1K 7AG. GPEA Limited. Registered in England & Wales.  Company No: 02819824.  Registered Office Address: 2 St. Stephen's Court, St. Stephen's Road, Bournemouth, Dorset, England, BH2 6LA.  VAT Registration No: 576 8795 61
Book a Property Valuation Update Cookies Preferences