Gorgeous property with 5 acres of land, Kehelland

Guide Price
£699,750
SSTC
This property listing is now SSTC

4 Bedroom Detached House for sale in Cornwall

1 4 1
  • DETACHED PROPERTY
  • 5 ACRES OF LAND
  • FOUR BEDROOMS
  • KITCHEN/DINING ROOM
  • LIVING ROOM
  • STABLES, GARAGE, STORAGE BARN
  • CONVENIENT ACCESS TO GWITHIAN & GODREVY BEACHES
  • EPC - C72
  • FREEHOLD - NO ONWARD CHAIN
  • COUNCIL TAX BAND D

Set in the heart of an Area of Outstanding Natural Beauty, Nancemellin Farm offers a unique chance to enjoy countryside living in a tranquil and highly sought after location. This detached family home is set within approximately 5 acres of land, making it ideal for those seeking space, privacy, and a connection to nature.
The property provides well proportioned, family size accommodation, blending comfort and character, with scope for further enhancement if desired. Outside, the home benefits from ample driveway parking and three versatile outbuildings, perfect for storage, hobbies, or potential conversion (subject to the necessary consents).
With its generous grounds, rural charm, and convenient access to local amenities and coastal attractions such as Godrevy and Gwithian beaches Nancemellin Farm represents a wonderful lifestyle opportunity – whether you're looking to create a family retreat, smallholding, or simply enjoy the peace of countryside living.
Viewing is highly recommended to appreciate the setting and potential of this exceptional home.
Guide Price -£699,750 -
Location - Nancemellin is a small, quiet hamlet on the outskirts of Camborne in West Cornwall. Tucked away in the countryside, it’s surrounded by lush greenery, narrow lanes, and traces of Cornwall’s mining heritage. The area is peaceful and rural, with a scattering of traditional cottages and farms, offering a slower pace of life. While close to the conveniences of Camborne town, Nancemellin feels distinctly removed from busier areas, making it a spot appreciated for its tranquillity and connection to nature. The beaches at Godrevy and Gwithian are only a short drive away or a 30 minute off road walk to Gwithain. The A30 is very accessible which gives access to all the major market towns and coastal villages of Cornwall. There is also an excellent primary school, 2 miles walk away in Kehelland.
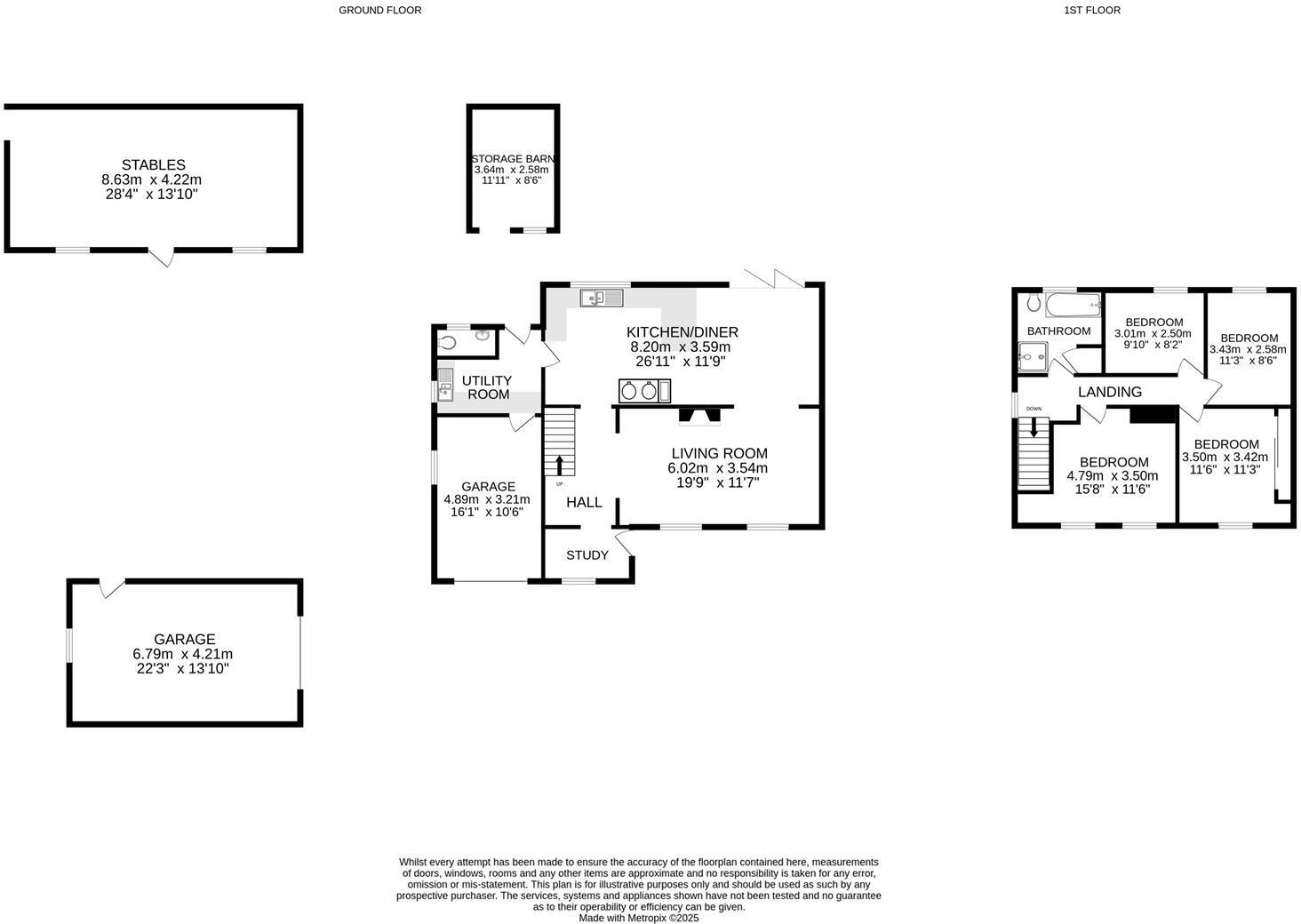
Accommodation - EntranceReception Porch/Office areaReception HallCloakroomLiving RoomKitchen/Dining RoomUtility RoomFirst Floor LandingBedroom 1Bedroom 2Bedroom 3Bedroom 4Bathroom
Garage - Integral to the house the garage offers a courtesy door to the rear that opens into the utility room.
Parking - There is parking for a number of cars within the gravelled drive. To the further side of the property is another parking space.
Outside - To the rear of the home is a walled garden creating a very sheltered seating or Alfresco dining area. To the side of the this area of garden is a stone built barn creating a perfect storage area and also offers the potential for conversion into an annexe subject to the relevant permissions being granted. To the side and rear of the gravelled parking area is a further single storey barn creating an ideal storage area for machinery or beach equipment. This barn again subject to the relevant consents could create the ideal space for a dependent relative, independent teenager or be used as a let. There is also a workshop area. The garden extends along, and is laid to lawn and enclosed by wooden sleepers with a gravelled bed above. The garden is enclosed and to the rear is a pen for pigs. From the graveled area of parking there are steps rising up onto the raised lawn garden which again provides a high degree of privacy and could create the ideal area for a hot tub. The land extends to to the side where the land has been left as a large wild meadow creating the ideal habitat for wildlife.
Services - Mains electric, Private drainage. Bore hole water. Internet is provided currently by Starlink. Ground source heat pump.
Planning Permission - Our clients have advised that they had planning permission for a two storey extension which has now lapsed. Plans can be viewed via the Cornwall Council Planniing website under decision number PA21/00640 .
Council Tax Band- D -
What3words - ///suspends.admiringly.remote
Anti Money Laundering Regulations – Purchasers - It is a legal requirement that we receive verified ID from all buyers before a sale can be instructed. We will inform you of the process once your offer has been accepted.
Proof Of Finances - Before agreeing a sale, we will require proof of your financial ability to purchase. We will inform you of what we require prior to agreeing a sale.
Directions - PLEASE DO NOT FOLLOW SATNAV - From Hayle proceed through the village of Connor Downs and drop down the hill into Roseworthy. As you proceed up the hill follow the road around the left and right hand bends and then take the left hand turn signposted Kehelland. At T junction turn left. Proceed along this road and upon reaching the grass triangle on you left, turn left and follow the road around to the right. Continue along this road for approximately 2 miles where you will drop down into the valley. Proceed along the unmade lane where the property will be found in front of you

Important Information

  • This is a Freehold property.
  • This Council Tax band for this property is: D

Property Ref: 484269

Share:

Similar Properties

Marazion, Home with stunning sea views

4 Bedroom Detached Bungalow | Guide Price £695,000

Enjoying a fantastic coastal position, this four bedroom detached home offers bright, flexible living spaces and stunnin...

Porthallow, Flexible and spacious detached home

5 Bedroom Detached House | Guide Price £695,000

Situated just a short walk from the centre of Porthallow, this spacious detached home offers a perfect blend of space, c...

Helston, Barn conversion set within approx 2 acres

4 Bedroom Barn Conversion | Guide Price £695,000

This impressive single storey barn conversion, located on Sithney Common Hill on the outskirts of Helston, presents a un...

Kuggar, Four bed house and two one bed cottages

4 Bedroom Detached House | Guide Price £699,950

This beautifully presented and thoughtfully upgraded four-bedroom home is full of character and charm. Each of the four...

Stunning lodge close to the beach, Sandyacres, Hayle

3 Bedroom Chalet | From £700,000

Nestled in the tranquil setting of Sandyacres, this exquisite detached lodge presents an exceptional opportunity for tho...

Tregarne, Beautiful barn conversion in a delightful rural setting

3 Bedroom Cottage | Guide Price £720,000

This exceptional property offers a unique blend of character, charm, and versatility. The main house features three spac...

The Mather Partnership (Helston)

Helston, Cornwall, TR13 8AA

01326 565016

How much is your home worth?

Use our short form to request a valuation of your property.

Request a Valuation

Mortgage Calculator

Amount Borrowed: £
Total Amount Repayable: £
Total Monthly Payment: £
©2026 The Guild of Property Professionals. All rights reserved. Terms and Conditions | Privacy Policy | Cookie Policy | Complaints Policy | Members Login
The Guild of Property Professionals Trading Address: 121 Park Lane, London W1K 7AG. GPEA Limited. Registered in England & Wales.  Company No: 02819824.  Registered Office Address: 2 St. Stephen's Court, St. Stephen's Road, Bournemouth, Dorset, England, BH2 6LA.  VAT Registration No: 576 8795 61
Book a Property Valuation Update Cookies Preferences