Plot for sale in Cornwall

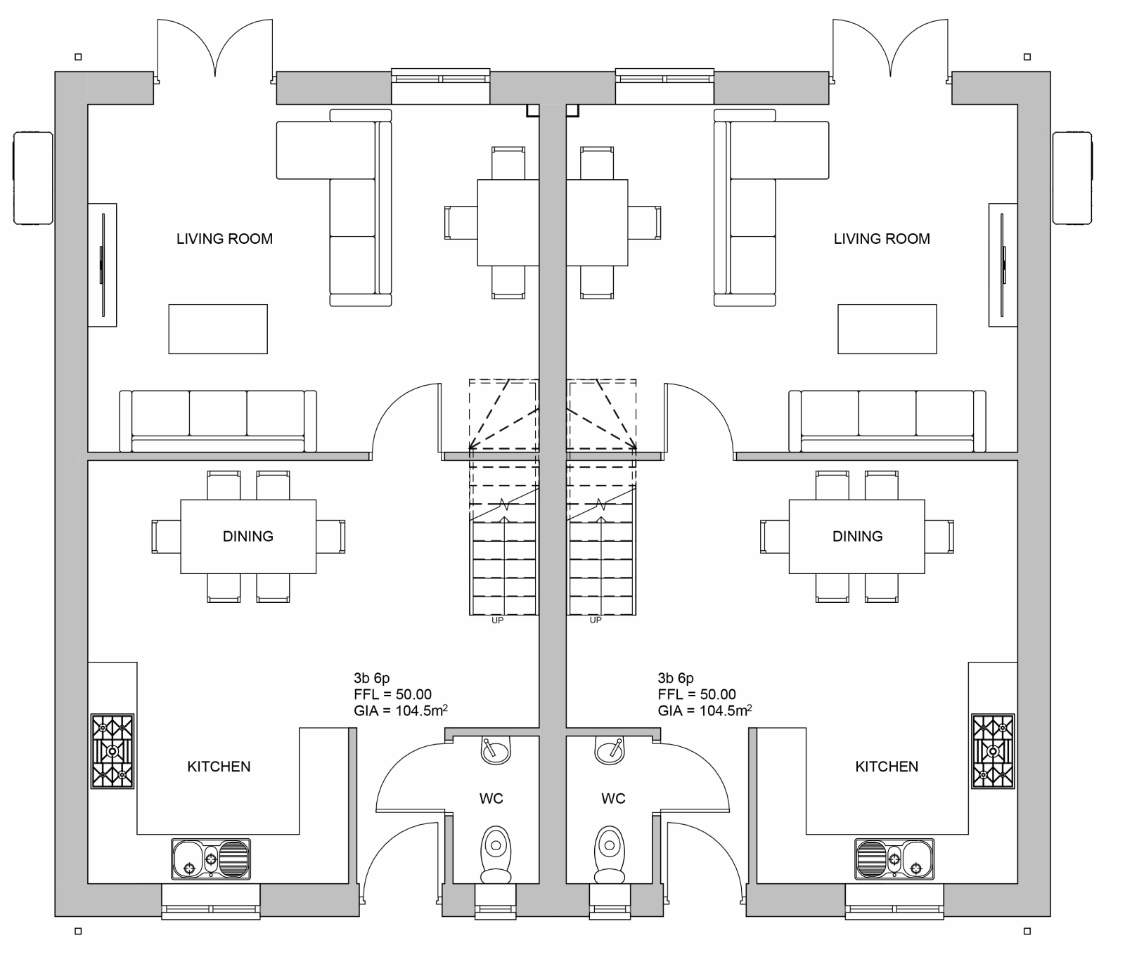
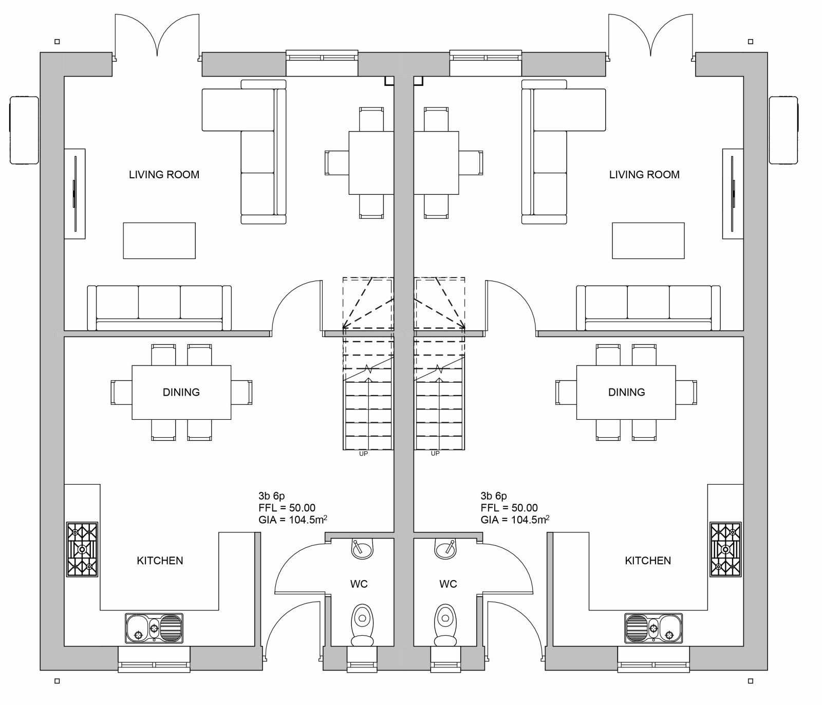
A superb opportunity to acquire a well positioned building plot with consent for four semi detached houses - two open market three bedroom homes and two three bedroom shared ownership homes. Each proposed property has been thoughtfully designed to offer modern, spacious living. The ground floor will feature a living room, a kitchen/dining room and a cloakroom. On the first floor there will be three double bedrooms and a family bathroom, making these ideal homes for families, first-time buyers, or investors. The properties will benefit from attractive rural views to the rear. Externally, each home will have two allocated parking spaces and private rear gardens laid to lawn. This plot represents an excellent development prospect in a desirable setting and an early enquiry is highly recommended.

Property additional info

PLANNING:
The property has the benefit of full planning, application number PA24/02418 dated 3rd April 2025.

PROPERTIES:
Planning has been passed for four, three bedroom semi detached houses to comprise a living room, kitchen/dining room and cloakroom on the ground floor. On the first floor there will be three double bedrooms, two with built in wardrobes, and a family bathroom. The properties will enjoy rural views to the rear, parking for two vehicles and gardens laid to lawn.

SERVICES:
We understand the mains services to be close by but would strongly recommend that all prospective purchasers make their own enquiries with the various utility companies.

AGENTS NOTE:
The accommodation on the approved plans is for four dwellings of approximately 104.5 sqaure metres each. Two of the properties are to be sold for no more that 75% of the open market value on a shared ownership basis or rented for no more than 80% of the full rental value. Initially the shared ownership properties are to be offered to buyers with housing need and a local connection to the parish of St Erth, opening to the secondary parishes of Gwinear, Gwithian, Crowan, Breage, St Hilary and Ludgvan in line with the council's policies.

DIRECTIONAL NOTE:
Via What3Words: ///head.remotest.unveils

Important Information

  • This is a Freehold property.

Property Ref: N14

Share:

Similar Properties

Lower Peverell Road, Penzance, TR18 3PX

3 Bedroom Semi-Detached House | £250,000

A nicely presented semi detached family home with front and rear gardens, situated in a residential estate, on the outsk...

Paul, Penzance, TR19 6UD

2 Bedroom Semi-Detached House | £250,000

A chance to acquire a charming two bedroom semi detached character cottage, located in the centre of this popular villag...

Eden Place, Mousehole, TR19 6RG

1 Bedroom Terraced House | £250,000

A nicely presented Grade II listed two storey converted net loft, which is situated within the centre of the fishing vil...

Chyandour Cliff, Penzance, TR18 3LQ

3 Bedroom Apartment | £260,000

Lovely sea views across Mount's Bay to St Michael's Mount, Penzance town and beyond from this sought after three bedroom...

Foundry Square, Hayle, Cornwall, TR27 4AE

3 Bedroom End of Terrace House | Guide Price £260,000

Situated near the centre of the foundry end of Hayle is this nicely presented three bedroom end terrace cottage. The acc...

Sparrow Close, Hayle, Cornwall, TR27 5GA

2 Bedroom Terraced House | £260,000

A light and airy modern two bedroom semi detached house on a popular development on the edge of Hayle town. The property...

Marshalls Estate Agents (Penzance)

6 The Greenmarket, Penzance, Cornwall, TR18 2SG

01736 360203

How much is your home worth?

Use our short form to request a valuation of your property.

Request a Valuation

Mortgage Calculator

Amount Borrowed: £
Total Amount Repayable: £
Total Monthly Payment: £
©2026 The Guild of Property Professionals. All rights reserved. Terms and Conditions | Privacy Policy | Cookie Policy | Complaints Policy | Members Login
The Guild of Property Professionals Trading Address: 121 Park Lane, London W1K 7AG. GPEA Limited. Registered in England & Wales.  Company No: 02819824.  Registered Office Address: 2 St. Stephen's Court, St. Stephen's Road, Bournemouth, Dorset, England, BH2 6LA.  VAT Registration No: 576 8795 61
Book a Property Valuation Update Cookies Preferences