2 bedroom bungalow, Porthleven

Guide Price
£200,000
SSTC
This property listing is now SSTC

2 Bedroom Detached Bungalow for sale in Cornwall

1 2 1
  • DETACHED TWO BEDROOM BUNGALOW
  • DETACHED TWO BEDROOM BUNGALOW
  • EXCITING OPPORTUNITY
  • CLOSE TO VILLAGE AND HARBOUR
  • POTENTIAL TO CREATE PARKING (SUBJECT TO CONSENTS)
  • NO CHAIN
  • EPC - F - 23
  • COUNCIL TAX BAND B

Situated close to the village and harbour, this two-bedroom detached bungalow offers an exciting opportunity for homeowners and developers alike. While in need of some updating, the property boasts a great location and a plot which seems to offer the potential to create parking, subject to any necessary consents being obtained. This super bungalow can be transformed into a wonderful home or would make a great investment for developers looking to maximize the site's potential. Don't miss out on this unique opportunity.
Guide Price - £200,000 -
Location - Within a short stroll of all that Porthleven has to offer this is a fantastic opportunity. Porthleven is a vibrant village offering an array of quality restaurants and cafes as well as day to day facilities to include a supermarket, primary school and doctors surgery. With a picturesque traditional working harbour and beach this is a superb and much sought after location.
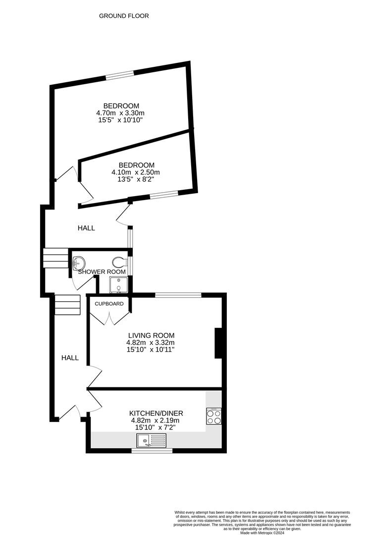
Accommodation - Step inside and find yourself in a hallway offering access to the kitchen/breakfast room and the lounge and shower room with steps leading down to the lower hallway. The lower hallway offers external access to the garden and to both of the bedrooms.
Outside - There is a low maintenance patio garden and also a useful outhouse to the side of the property.
Services - Mains electiricty, water and drainage. Council Tax Band B.
Agents Note - Our client has informed us that the neighbouring property has a right of way over 29 Thomas Street.
Agent Note 1 - There has been an adverse drainage report on the property, buyers will need to carry out thier own inspection, for more information please contact the office.
Anti Money Laundering Regulations – Purchasers - It is a legal requirement that we receive verified ID from all buyers before a sale can be instructed. We will inform you of the process once your offer has been accepted.
Proof Of Finances - Before agreeing a sale, we will require proof of your financial ability to purchase. We will inform you of what we require prior to agreeing a sale.
Broadband & Mobile Phone Coverage - To check the broadband coverage for this property please visit check mobile phone coverage please visit

Important Information

  • This is a Freehold property.
  • This Council Tax band for this property is: B

Property Ref: 484737

Share:

Similar Properties

Helston, Two bed home with no onward chain

2 Bedroom Terraced House | Guide Price £200,000

Situated at the bottom of a highly sought-after residential estate, this two-bedroom home enjoys a peaceful position wit...

St. Ives, Ground floor flat with no chain

1 Bedroom Flat | Guide Price £200,000

This beautifully refurbished one-bedroom ground floor flat is situated in the picturesque coastal town of St Ives, offer...

Ideal Local Buyers Home, Porthleven

2 Bedroom Terraced House | Guide Price £195,000

Situated within easy reach of the village centre and primary school, this two-bedroom terraced home offers a fantastic o...

Semi-Deatched home with great potential, White Cross, Cury

2 Bedroom Semi-Detached House | Guide Price £202,000

BEST AND FINAL OFFERS REQUIRED BY THURSDAY 20TH MARCH AT 4PM!! Located in the charming village of Cury, Helston, this se...

Two bedroom home near to town, Helston

2 Bedroom End of Terrace House | Guide Price £205,000

Ideally located within easy reach of the town centre, doctors? surgery and primary school, this two bedroom terraced hou...

Charming character cottage with no onward chain, St. Erth

2 Bedroom Cottage | Guide Price £205,000

Nestled in the picturesque village of St. Erth, this charming terraced cottage offers a delightful blend of character. W...

The Mather Partnership (Helston)

Helston, Cornwall, TR13 8AA

01326 565016

How much is your home worth?

Use our short form to request a valuation of your property.

Request a Valuation

Mortgage Calculator

Amount Borrowed: £
Total Amount Repayable: £
Total Monthly Payment: £
©2026 The Guild of Property Professionals. All rights reserved. Terms and Conditions | Privacy Policy | Cookie Policy | Complaints Policy | Members Login
The Guild of Property Professionals Trading Address: 121 Park Lane, London W1K 7AG. GPEA Limited. Registered in England & Wales.  Company No: 02819824.  Registered Office Address: 2 St. Stephen's Court, St. Stephen's Road, Bournemouth, Dorset, England, BH2 6LA.  VAT Registration No: 576 8795 61
Book a Property Valuation Update Cookies Preferences