Charming character cottage with no onward chain, St. Erth

Guide Price
£205,000
SSTC
This property listing is now SSTC

2 Bedroom Cottage for sale in Hayle

1 2 1
  • TWO BEDROOM TERRACED COTTAGE
  • OFF ROAD PARKING
  • VILLAGE SETTING IN EASY REACH OF AMENITIES
  • COURTYARD
  • MODERNISING REQUIRED
  • FREEHOLD TENURE
  • EPC- E- 54
  • COUNCIL TAX BAND- B
  • NO ONWARD CHAIN

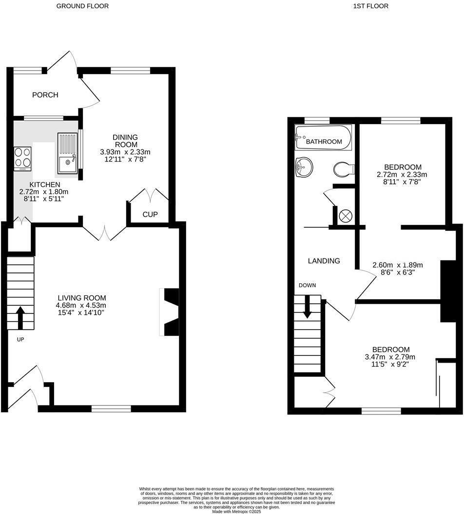
Nestled in the picturesque village of St. Erth, this charming terraced cottage offers a delightful blend of character. With no onward chain, this property presents an excellent opportunity for those seeking to explore their creative side as the property is in need of some updating throughout. The cottage features a lounge, kitchen and a separate dining room. First floor bathroom and two bedrooms, complemented by a convenient room which could be used as a dressing room, occasional 'bedroom' or home office. The layout is thoughtfully designed, ensuring that every corner of the home is utilised effectively. At the rear, a quaint courtyard offers an outdoor space. Additionally, parking at the front of the property adds to the convenience of this lovely home. St. Erth is known for its charming atmosphere and community spirit, making it an ideal location for those who appreciate being within easy reach of local amenities. Don’t miss the chance to make this property your new home.
Location - St Erth is a charming village nestled in the picturesque countryside. This historic village offers a perfect blend of rural charm and convenience. With the River Hayle meandering through its heart, St Erth boasts beautiful landscapes and delightful walking trails. The village is well connected, with the St Erth railway station serving as a key hub for travel to nearby destinations such as St Ives, Penzance and beyond. Visitors and residents alike appreciate the village's rich history, welcoming community, and its close proximity to Cornwall's stunning coastline.
Accommodation - Inner PorchLoungeDining RoomKitchenRear PorchLandingBedroom OneBedroom TwoDressing room/occasional 'bedroom' or home officeBathroom
Parking - To the front of the property.
Outside - To the rear, there is a courtyard.
Services - Mains water, electricity and drainage and gas.
Rights Of Way - Our clients believe that there is a right of way to the front and at the rear of the property for the neighbouring houses for access purposes. They believe that 60a has the same rights over the neighbouring properties.
Council Tax - Band B -
Anti Money Laundering Regulations – Purchasers - It is a legal requirement that we receive verified ID from all buyers before a sale can be instructed. We will inform you of the process once your offer has been accepted.
Proof Of Finances - Before agreeing a sale, we will require proof of your financial ability to purchase. We will inform you of what we require prior to agreeing a sale.
Broadband & Mobile Phone Coverage - To check the broadband coverage for this property please visit check mobile phone coverage please visit
What3words - ///forget.annual.downfield

Important Information

  • This is a Freehold property.
  • This Council Tax band for this property is: B

Property Ref: 484835

Share:

Similar Properties

Two bedroom home near to town, Helston

2 Bedroom End of Terrace House | Guide Price £205,000

Ideally located within easy reach of the town centre, doctors? surgery and primary school, this two bedroom terraced hou...

Semi-Deatched home with great potential, White Cross, Cury

2 Bedroom Semi-Detached House | Guide Price £202,000

BEST AND FINAL OFFERS REQUIRED BY THURSDAY 20TH MARCH AT 4PM!! Located in the charming village of Cury, Helston, this se...

2 bedroom bungalow, Porthleven

2 Bedroom Detached Bungalow | Guide Price £200,000

Situated close to the village and harbour, this two-bedroom detached bungalow offers an exciting opportunity for homeown...

Cottage finished to a Modern Standard, Carharrack

2 Bedroom Cottage | Guide Price £210,000

OPEN HOUSE ON FRIDAY 23RD JANUARY FROM 2:30PM-3:30PM. NO NEED TO BOOK AN APPOINTMENT, JUST POP ALONG.

Praze, Stone Fronted Cottage

2 Bedroom Cottage | Guide Price £210,000

Tucked away in a peaceful yet convenient location just moments from the heart of the village, this charming two bedroom...

The Lizard, Two bedroom bungalow in village location

2 Bedroom Terraced Bungalow | Guide Price £210,000

Located in the heart of mainland Britain's most southerly village, this well proportioned, stone fronted two bedroom ter...

The Mather Partnership (Helston)

Helston, Cornwall, TR13 8AA

01326 565016

How much is your home worth?

Use our short form to request a valuation of your property.

Request a Valuation

Mortgage Calculator

Amount Borrowed: £
Total Amount Repayable: £
Total Monthly Payment: £
©2026 The Guild of Property Professionals. All rights reserved. Terms and Conditions | Privacy Policy | Cookie Policy | Complaints Policy | Members Login
The Guild of Property Professionals Trading Address: 121 Park Lane, London W1K 7AG. GPEA Limited. Registered in England & Wales.  Company No: 02819824.  Registered Office Address: 2 St. Stephen's Court, St. Stephen's Road, Bournemouth, Dorset, England, BH2 6LA.  VAT Registration No: 576 8795 61
Book a Property Valuation Update Cookies Preferences