Family home for local buyers, Godolphin Cross

Guide Price
£280,000
SSTC
This property listing is now SSTC

3 Bedroom Semi-Detached House for sale in Cornwall

1 3 1
  • SEMI-DETACHED HOME
  • SUBJECT TO SECTION 106
  • LOCAL BUYERS
  • VILLAGE LOCATION
  • ENCLOSED REAR GARDEN
  • OFF ROAD PARKING
  • COUNCIL TAX BAND- B
  • EPC- 52- E
  • FREEHOLD TENURE

LOCAL CONNECTION TO CORNWALL NOW CONSIDERED
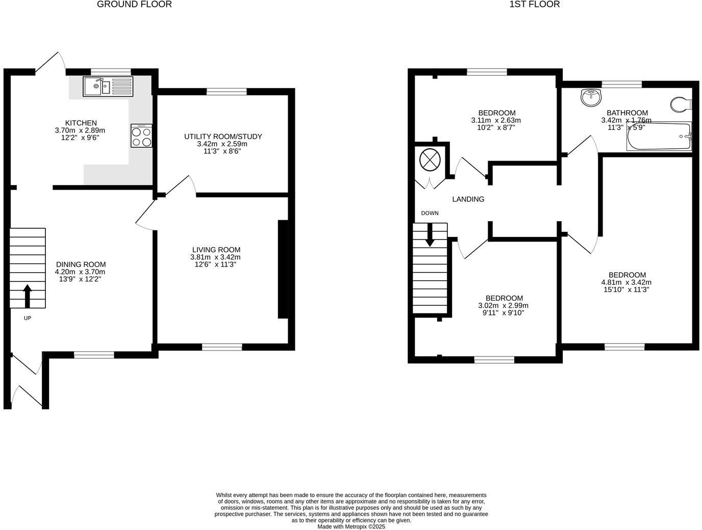
Tucked away in a peaceful position within a highly sought after village, this three/four bedroom semi-detached home offers spacious and versatile living ideal for modern family life.
The light and airy dining room provides a welcoming space to entertain friends and family, while the well-equipped kitchen boasts ample storage and a breakfast bar for casual meals or a morning coffee. The cosy living room is perfect for relaxing in front of the TV after a long day. Downstairs also features a flexible additional room, ideal as a home office, fourth bedroom, or an extra reception space, depending on your needs. Upstairs, the generous master bedroom is complemented by two further double bedrooms and a modern family bathroom. The landing offers a handy area that could easily be used as a practical home office or study nook.
Outside, the enclosed rear garden has been designed with low maintenance in mind, featuring a patio area and astro turf, ideal for alfresco dining, play, or simply unwinding in the fresh air.
Guide Price £280,000 -
Location - Nestled within the heart of the beautiful Cornish countryside and surrounded by farmland, woods and a National Trust Estate home to Godolphin House is the picturesque rural village of Godolphin Cross. Offering easy access to both the North and South coasts as well as the popular fishing village of Porthleven the larger village of Breage is just approximately 2 miles away providing a Public House, Post Office, Shop and a Primary School. The location of this super property is sure to impress those seeking a taste of the countryside with many gorgeous walks on the doorstep including Godolphin Hill and Tregonning Hill both with stunning panoramic views. The towns of Helston, Hayle and Penzance are within a 15 to 20 minute drive of the property. The South Cornish coastline at Praa sands is approximately 10 minutes away by car.
Accommodation - Entrance PorchDining RoomLiving RoomStudy/Utility Room/BedroomKitchenStairs To LandingBedroom ThreeBedroom TwoAdditional Landing Area/Office spaceFamily BathroomMaster Bedroom
Parking - Off road parking for one vehicle.
Outside - The enclosed rear garden offers a private and low-maintenance outdoor space, perfect for relaxing or entertaining. Featuring a combination of patio and astro turf, it provides a clean and practical setting that can be enjoyed year-round with minimal upkeep.
Services - Mains water, drainage and electricity. Shared Private drainage.
Council Tax Band B -
106 Property - Prospective purchasers should be aware that this property has a section 106 local housing restriction whereby any qualifying purchaser must have a local connection to Breage parish within the first 14 days of advertising. If no suitable applicant comes forward within 14 days of marketing, consideration will be extended to those with a local connection to the adjoining parishes of Crowan, Sithney, Porthleven, and Germoe. After 28 days, applicants with a local connection to Cornwall more widely may be considered. Further details are available on request.
What3words - ///plan.suitably.changed
Anti Money Laundering Regulations – Purchasers - It is a legal requirement that we receive verified ID from all buyers before a sale can be instructed. We will inform you of the process once your offer has been accepted.
Proof Of Finances - Before agreeing a sale, we will require proof of your financial ability to purchase. We will inform you of what we require prior to agreeing a sale.
Broadband & Mobile Phone Coverage - To check the broadband coverage for this property please visit check mobile phone coverage please visit

Important Information

  • This is a Freehold property.
  • This Council Tax band for this property is: B

Property Ref: 485578

Share:

Similar Properties

Cottage Near the Beach with Parking, Mullion Cove

3 Bedroom Terraced House | Guide Price £280,000

Perfectly positioned near the beach and within easy reach of the village centre, this delightful three bedroom cottage o...

Cottage with Sea Views, Mullion Cove

3 Bedroom Terraced House | Guide Price £280,000

Set over three levels to maximise both space and breathtaking sea views, this delightful three bedroom terraced cottage...

Helston, Bungalow with no chain

3 Bedroom Detached Bungalow | Guide Price £280,000

Situated in a highly sought after location, this three bedroom bungalow offers comfortable and versatile living in a con...

Wonderfully presented home, Praze

2 Bedroom Terraced House | Guide Price £285,000

Situated in the charming and picturesque village of Praze, this wonderfully presented terraced house house offers a deli...

Family home with countryside views, Helston

3 Bedroom Semi-Detached House | Guide Price £285,000

Tucked away in a quiet cul-de-sac enjoying lovely countryside views, this three bedroom semi detached home offers comfor...

Helston, Stylish three bedroom home

3 Bedroom Semi-Detached House | Guide Price £290,000

Set within a sought after residential area, this stylish three bedroom semi detached home has been tastefully modernised...

The Mather Partnership (Helston)

Helston, Cornwall, TR13 8AA

01326 565016

How much is your home worth?

Use our short form to request a valuation of your property.

Request a Valuation

Mortgage Calculator

Amount Borrowed: £
Total Amount Repayable: £
Total Monthly Payment: £
©2026 The Guild of Property Professionals. All rights reserved. Terms and Conditions | Privacy Policy | Cookie Policy | Complaints Policy | Members Login
The Guild of Property Professionals Trading Address: 121 Park Lane, London W1K 7AG. GPEA Limited. Registered in England & Wales.  Company No: 02819824.  Registered Office Address: 2 St. Stephen's Court, St. Stephen's Road, Bournemouth, Dorset, England, BH2 6LA.  VAT Registration No: 576 8795 61
Book a Property Valuation Update Cookies Preferences