Castallack, Lamorna, TR19 6NL

Guide Price
£465,000
SSTC
This property listing is now SSTC

3 Bedroom Detached House for sale in Cornwall

1 3 1
  • THREE 3
  • LIVING ROOM * KITCHEN/DINING ROOM
  • CONSERVATORY * FIRST FLOOR BATHROOM
  • DOUBLE GLAZING * OIL FIRED CENTRAL HEATING
  • SECLUDED GARDENS * DETACHED GARAGE
  • APPROXIMATELY 1 ACRE PADDOCK DIRECTLY OPPOSITE THE PROPERTY
  • SOUGHT AFTER HAMLET BETWEEN LAMORNA AND MOUSEHOLE
  • SHORT DRIVE TO MAIN TOWN OF PENZANCE * AREA OF OUTSTANDING NATURAL BEAUTY
  • SURROUNDED BY OPEN COUNTRYSIDE
  • EXCELLET OPPORTUNITY * VIEWING RECOMMENDED

Council tax band: D.

A chance to acquire a character detached three bedroom period property, located in a sought after hamlet between the villages of Lamorna and Mousehole having a paddock of approximately one acre and secluded gardens surrounding the property with driveway and detached garage. The property has well proportioned living accommodation with much character throughout, although now in need of some updating. A particularly attractive feature are the grounds and the position of the property, being located on the edge of this sought after hamlet. Directly opposite the property there is approximately one acre paddock with separate road access. Castallack is a popular hamlet between Mousele and Lamorna, surrounded by open countryside, yet only a short drive away from the main towns of Newlyn and Penzance. due to the popularity of properties such as this we recommend an early appointment.

Features

  • EPC = F * COUNCIL TAX BAND = D


Property additional info

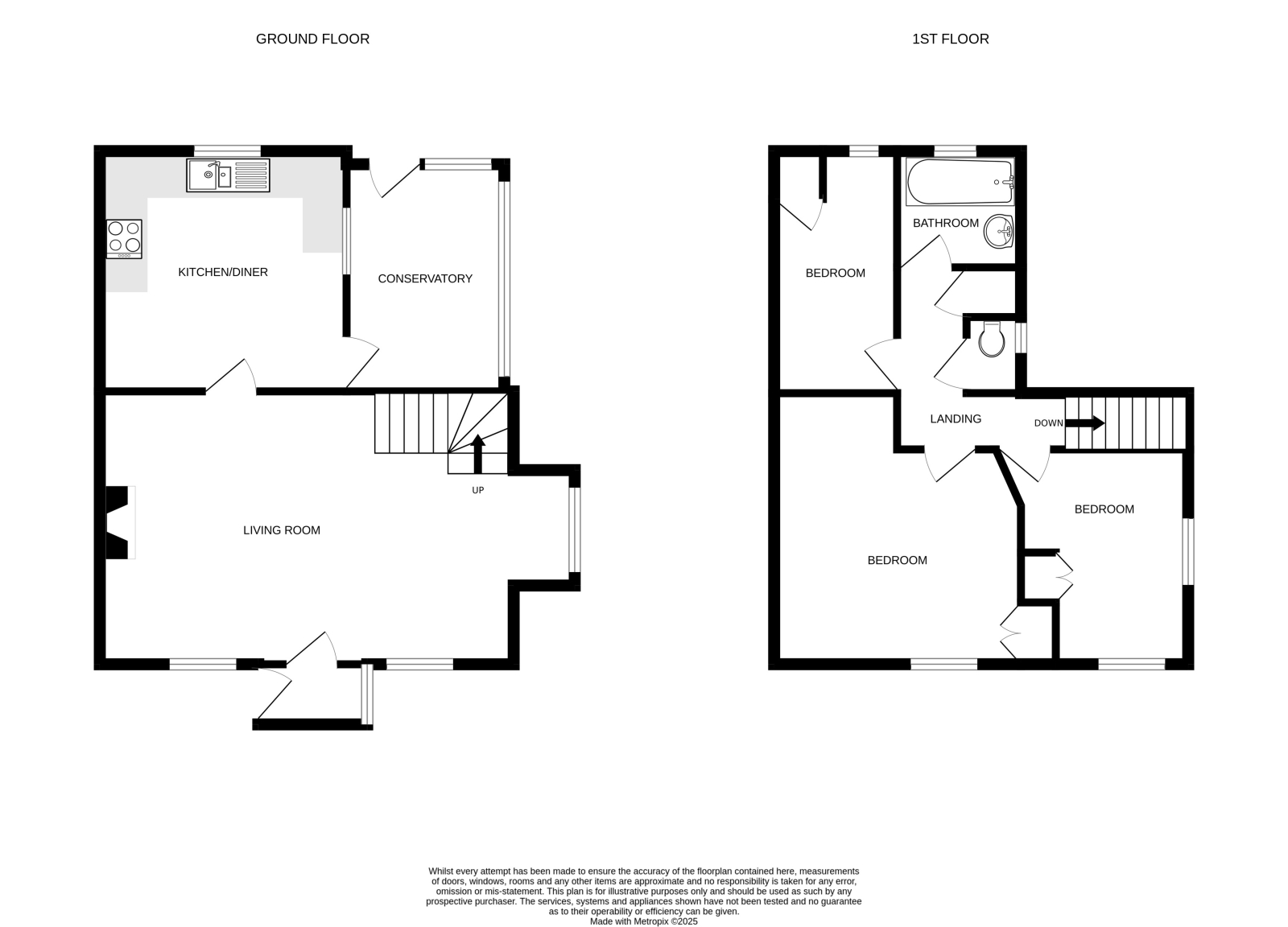
ENTRANCE PORCH:
Glazed door to:

LIVING ROOM: 23' 1" x 13' 4" (7.04m x 4.06m)
into bay window overlooking gardens, Delabo slate fireplace, beamed ceiling, double glazed windows, understairs area, two radiators.

KITCHEN/DINER: 12' 0" x 12' 0" (3.66m x 3.66m)
Stainless steel twin bowl sink unit with cupboards below, range of fitted wall and base units, worksurfaces and power points, built in oven and hob, oil fired central heating boiler, double glazed window, door to:

CONSERVATORY: 12' 6" x 8' 6" (3.81m x 2.59m)
Double aspect room overlooking gardens, being double glazed and door to garden.


Stairs from living room to:

FIRST FLOOR LANDING:
Built in cupboard, access to roof space.

BEDROOM ONE: 13' 3" narrowing to 10' 0" x 9' 3" (4.04m narrowing to 3.05m x 2.82m)
Built in wardrobes, pedestal wash hand basin, open views across surrounding countryside and paddock opposite, double glazed window, radiator.

BEDROOM TWO: 10' 3" x 8' 0" (3.12m x 2.44m)
Double aspect room with views over surrounding countryside and paddock opposite, built in wardrobes, radiator.

BEDROOM THREE: 10' 4" x 6' 0" (3.15m x 1.83m)
Double glazed window.

BATHROOM:
White suite comprising panelled bath, pedestal wash hand basin, double glazed window, heated towel rail.

SEPARATE WC:
Low level suite.

OUTSIDE:
The property stands in mainly lawned secluded gardens, surrounded by mature trees, which creates a good degree of privacy, well stock borders, further garden area with pathway leading to driveway and:

DETACHED GARAGE: 20' 0" x 8' 6" (6.10m x 2.59m)
Metal up and over door.


Opposite the property is a paddock of just over one acre with good road access with a new septic tank to the property within the paddock.

SERVICES:
Mains water, electricity and septic tank drainage.

DIRECTIONS:
Via "What3Words" app: ///inventors.instance.dress

AGENTS NOTE:
We understand from Openreach website that Fibre to the Cabinet Broadband (FTTC) is available to the property. We tested the mobile phone signal for Vodafone which was poor. The property is constructed of granite under a slate roof.

Important Information

  • This is a Freehold property.

Property Ref: 111122_L49

Share:

Similar Properties

Penlee Close, Praa Sands, Penzance, TR20 9SR

2 Bedroom Bungalow | Guide Price £460,000

A chance to acquire an extremely well presented two bedroom detached bungalow located in a larger than average plot with...

Wall Road, Reawla, TR27 5HA

4 Bedroom Detached House | Guide Price £450,000

Superbly presented four bedroom detached home set in a desirable area within Reawla, offering spacious well proportioned...

Malt House Gardens, Newlyn, TR18 5EX

4 Bedroom Terraced House | Guide Price £450,000

Situated in an elevated position above the fishing village of Newlyn and enjoying panoramic sea views across the harbour...

Kerris Vean, Paul, TR19 6NT

2 Bedroom Barn Conversion | £470,000

Situated in the small hamlet of Kerris Vean and located in a rural location and backing onto farmland is this recently u...

Lower Boscaswell, Pendeen, TR19 7EH

3 Bedroom Detached House | Guide Price £475,000

A nicely presented and much improved, detached, three bedroom, granite, former farm house with gardens and parking to bo...

Keigwin Place, Mousehole, TR19 6RR

3 Bedroom End of Terrace House | £475,000

An extremely well presented three bedroom, double fronted character cottage, which has been modernised over recent years...

Marshalls Estate Agents (Penzance)

6 The Greenmarket, Penzance, Cornwall, TR18 2SG

01736 360203

How much is your home worth?

Use our short form to request a valuation of your property.

Request a Valuation

Mortgage Calculator

Amount Borrowed: £
Total Amount Repayable: £
Total Monthly Payment: £
©2025 The Guild of Property Professionals. All rights reserved. Terms and Conditions | Privacy Policy | Cookie Policy | Complaints Policy | Members Login
The Guild of Property Professionals Trading Address: 121 Park Lane, London W1K 7AG. GPEA Limited. Registered in England & Wales.  Company No: 02819824.  Registered Office Address: 2 St. Stephen's Court, St. Stephen's Road, Bournemouth, Dorset, England, BH2 6LA.  VAT Registration No: 576 8795 61
Book a Property Valuation Update Cookies Preferences