Gurnick Road, Newlyn, TR18 5DH

Guide Price
£175,000
SSTC
This property listing is now SSTC

3 Bedroom Plot for sale in Cornwall

1 3 1

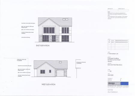
A rare opportunity to acquire a building plot with direct sea views over Mounts Bay to St Michael's Mount and beyond, located in a most sought after area in Newlyn. The plot has access to nearby services along with not being subject to a CIL. The planning REF number is PA20/05389 and the planning is now in perpetuity as a start has been made and recorded.

Property additional info


The accommodation will comprise of:

ENTRANCE HALL

LIVING ROOM:
With direct sea views over Mount's Bay.

KITCHEN/DINER:
With direct sea views over Mount's Bay leading onto a balcony.

UTILITY ROOM

BATHROOM


Stairs leads down to:

INNER HALLWAY

THREE BEDROOMS:
All with sea views, en suite and dressing facilities.

OUTSIDE:
Gardens to both front and rear along with integral garage.

SERVICES:
Close by of mains water, electricity, gas and drainage.

DIRECTIONS:
Via "What3Words" app: ///twinge.causes.shepherds

Important Information

  • This is a Freehold property.

Property Ref: 111122_L34

Share:

Similar Properties

Ebenezer Place, Newlyn, TR18 5ER

2 Bedroom Terraced House | £175,000

Situated in the village of Newlyn is this terraced two bedroom granite cottage, offered for sale with no onward chain. T...

Parc An Cady Estate, St. Buryan, TR19 6DD

2 Bedroom Terraced House | Guide Price £175,000

Offered for sale with no onward chain is this two bedroom terraced home with gardens to both front and rear, and set wit...

Tremaine Close, Heamoor, TR18 3QT

2 Bedroom Terraced House | £175,000

Ideal opportunity for a young family or first time buyer to acquire a two bedroom terraced modern style home, located in...

Gwinear, Reawla, TR27 5HD

Plot | Guide Price £180,000

This individual building plot with planning PA21/11901 has planning granted for a four bedroom detached residence with g...

Carnyorth, St. Just, TR19 7QD

2 Bedroom Terraced House | £180,000

A nicely presented and recently refurbished mid terrace granite cottage, situated in the small hamlet of Carnyorth, betw...

East Terrace, Penzance, TR18 2TB

2 Bedroom Apartment | Guide Price £180,000

A purpose built McCarthy Stone two bedroom, ground floor apartment in a secure self-contained environment close to the t...

Marshalls Estate Agents (Penzance)

6 The Greenmarket, Penzance, Cornwall, TR18 2SG

01736 360203

How much is your home worth?

Use our short form to request a valuation of your property.

Request a Valuation

Mortgage Calculator

Amount Borrowed: £
Total Amount Repayable: £
Total Monthly Payment: £
©2025 The Guild of Property Professionals. All rights reserved. Terms and Conditions | Privacy Policy | Cookie Policy | Complaints Policy | Members Login
The Guild of Property Professionals Trading Address: 121 Park Lane, London W1K 7AG. GPEA Limited. Registered in England & Wales.  Company No: 02819824.  Registered Office Address: 2 St. Stephen's Court, St. Stephen's Road, Bournemouth, Dorset, England, BH2 6LA.  VAT Registration No: 576 8795 61
Book a Property Valuation Update Cookies Preferences