Ashbourne Road, Cowers Lane

Offers Over
£850,000
SSTC
This property listing is now SSTC

5 Bedroom Farm House for sale in Cowers Lane

5 3
  • Fine Stone Farmhouse
  • Approx 3 Acres
  • Five Bedrooms
  • Six Reception Rooms
  • Kitchen & Utility
  • Two Bathrooms & En-Suite
  • Stone Barns & Stables
  • Development Potential

A fine stone built detached farmhouse believed to date back to circa 1750 and set in the most beautiful mature grounds of approximately 3 acres including formal gardens, orchard and paddock with a charming stream. The exceptionally well maintained and tastefully presented home offers fantastic accommodation whilst also providing further development potential across a range of stone built outbuildings.
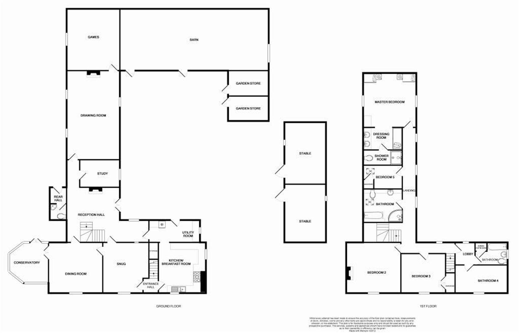
The property has the advantage of gas fired central heating and UPVC double glazing. The accommodation comprises: Entrance Hall, Snug, Dining Room, Conservatory, Central Reception Hallway, Guest Cloakroom with WC, Study, Lounge, Games Room, Breakfast Kitchen, Utility, Master Bedroom with Dressing Room and En-Suite Shower Room, four further bedrooms, Principal Bathroom and further Family Bathroom. Extensive gravelled driveway, attached stone barn, two stone built stables, two stone built stores and a further stone detached barn within the grounds. AN EARLY INTERNAL INSPECTION IS ESSENTIAL TO APPRECIATE THE SIZE AND POTENTIAL ON OFFER.EPC Rating D

Ground Floor - The property can be entered via a UPVC double glazed door opening to:

Entrance Hall - A welcoming Entrance Hall with staircase to the First Floor Landing and doors to:

Snug - 4.29m x 3.78m max - A charming reception room currently used as a snug but suitable for a variety of uses. There is a feature Inglenook fireplace with exposed stone surround and inset coal effect gas fire. Useful under-stairs storage cupboard, exposed beams, radiator, UPVC double glazed window to front, window to rear and doors to:

Dining Room - 4.57m x 4.32m - A spacious formal dining room with the advantage of a feature fireplace incorporating a coal effect living flame gas fire set in a wooden surround with marble inset and hearth. Exposed beam, radiator, UPVC double glazed window to the front and French doors opening to:

Conservatory - 3.45m x 3.30m - Built from a PVCu double glazed construction with brick base and polycarbonate roof. Ceramic tiled flooring and UPVC double glazed French doors leading out into the gardens and patio.

Reception Hallway - 4.62m x 4.47m - This impressive reception hallway provides a great central room to the home with a feature Inglenook fireplace with electric stove and exposed stone surround. UPVC double glazed French doors to side, dog-leg staircase to the First Floor Landing and doorway to:

Rear Hall - UPVC double glazed door to rear, wall mounted boiler and door to:

Guest Cloakroom - Fitted with a two piece suite comprising a corner wash hand basin and low level WC with ceramic tiling to wall.

Study - 3.30m x 2.31m - A useful reception room ideal for use as a family study or home office with a UPVC double glazed window to side, telephone point and radiator.

Lounge - 7.52m x 4.42m - The spacious lounge also has the benefit of a feature fireplace incorporating a coal effect living flame gas fire set in an Oak surround with marble inset and hearth. Exposed beams to ceiling, two radiators, three UPVC double glazed windows to the side aspect and door to:

Games Room - 5.18m x 4.50m - Currently used as a games room but suitable for a variety of alternative uses including a family room or excellent potential to form ancillary accommodation for a dependant relative.

Fitted Kitchen - 4.62m max x 4.29m - A superb Kitchen/Breakfast Room fitted with a matching range of base, eye level and drawer units with cornice trims. Round edge worktops incorporating a 1&1/2 bowl polycarbonate sink unit with single draining board, swan neck mixer tap and tiled splashback. Appliances include a fitted range with double oven, six ring gas hob and extractor hood over. Plumbing for a dishwasher, UPVC double glazed windows to the front and side, ceramic tiled flooring, exposed beams and archway to:

Utility Room - 4.37m x 1.88m - Fitted with a range of cupboards and having a round edge worktop over incorporating a stainless steel sink unit with tiled splashback. There is plumbing for an automatic washing machine, space for fridge/freezer and tumble drier. Wall mounted boiler, UPVC double glazed window to the side aspect and matching door to rear leading out into the courtyard.

First Floor -

Landing - The First Floor Landing can be reached via two separate staircases and has four UPVC double glazed windows overlooking the rear gravelled courtyard. Exposed beams to ceiling, three radiators and doors to:

Master Bedroom - 4.57m x 4.47m - The superbly appointed Master Suite benefits from a range of fitted furniture comprising two double wardrobes with hanging rails, 2 bedside cabinets and a drawer unit. part vaulted ceiling with exposed beams, 2 radiators, UPVC double glazed windows to each side elevation with lovely views across the grounds and an opening to:

Dressing Room - 3.18m x 1.80m - Fitted with a range of wardrobes providing ample hanging space and useful storage. There are twin wash basins with matching vanity unit below and wall mounted mirror.

En-Suite Shower Room - Fitted with a quality two piece suite comprising a recessed shower cubicle and close coupled WC with complimentary tiling to walls.

Bedroom 2 - 4.67m x 4.32m - Bedroom Two has the advantage of a feature fireplace incorporating a cast-iron grate set in an exposed stone surround. Part vaulted ceiling, radiator and a UPVC double glazed window to front.

Bedroom 3 - 3.71m x 3.35m - Built-in double wardrobe with hanging rails, radiator and a UPVC double glazed window to front.

Bedroom 5 / Nursery - 3.18m x 1.98m - Bedroom Five is ideal for use as a nursery or single bedroom with a built-in wardrobe, Velux window to side and radiator.

Principal Bathroom - Beautifully appointed with a four piece suite comprising a spa bath, double shower cubicle, wash hand basin with vanity unit below and close couple WC. Complimentary tiled walls, fitted storage cupboards, heated towel rail, tiled flooring with underfloor heating and a Velux window.

Inner Lobby - 1.98m x 1.91m - A useful Inner Lobby giving access to a further bedroom and family bathroom providing excellent scope to use as a self contained suite.

Bedroom 4 - 4.42m x 2.49m - Radiator and a UPVC double glazed window to the front aspect.

Family Bathroom - A refitted Family Bathroom, with a quality three piece suite comprising a deep panelled bath, pedestal wash hand basin and low-level WC with complimentary tiled walls. UPVC double glazed window to side, ceramic tiled floor covering,radiator and door to a built-in airing cupboard.

Outbuilding - The property offers a fantastic range of stone built outbuildings which provide superb potential to create further accommodation or alternatively, suited for those with an equestrian interest or home run business.

Barn - 12.50m x 5.11m - The single storey stone built barn can be reached via a gravelled courtyard area immediately to the rear of the home with access from the property together with five bar gated access to side. The barn currently offers six stalls with feeding troughs, power and light laid on, vaulted ceiling with exposed trusses, two doors and window to the front aspect and window to the side.

Two Stone Built Stores - Attached to the barn are two stone built stores, ideal for a variety of uses.

Stable 1 - 5.26m x 3.53m - With two stalls and feeding troughs, stable door to front, power and light laid on and window to front.

Stable 2 - 4.90m x 3.53m - With two stalls and feeding troughs, stable door to front, power and light laid on and window to rear.

Grounds - The property enjoys the most beautiful grounds of approximately 3 acres which include formal gardens, orchard and paddock together with a charming stream and two patio areas.
The property is approached via a gravelled driveway providing ample off road parking with gated access to the outbuildings. Otherwise to the front of the home there is a well maintained cottage style garden with a variety of plants, shrubs and specimen trees. Lawn section and gravelled pathway leading to the front entrance door. To the side of the home there is a spacious orchard with a variety of fruit trees and excellent potential previously having planning permission passed to erect a bungalow (Please note that no current planning permission is in place).
To the side of the home there is a delightful lawn which continues to the rear of the home with a range of mature specimen trees and dry stone border wall. Set within the grounds and offering excellent potential is a detached stone built barn with surrounding gardens, ideal for possible development.
To the opposite side of the home there is a vegetable garden and greenhouse with electricity and continued lawn opening to a spacious paddock. The paddock is principally laid to lawn with mature hedges, a range of trees and access to a charming stream providing the most tranquil setting. Further formal gardens to the entrance of the paddock with feature pond with electricity connectedand shaped borders.

Grounds -

Grounds -

Directional Notes - From our Duffield Office,
1. Head south on A6/Town Street toward Wirksworth Road 102 ft
2. Turn right at Wirksworth Road 0.5 mi
3. Turn right at B5023/Broadway and continue to follow B5023 3.2 mi
4. Turn right at A517/Ashbourne Road and continue to follow Ashbourne Road where the property will be found on the left hand side.

Floor Plans - This plan is included as a service to our customers and is intended as a GUIDE TO LAYOUT only. Dimensions are approximate.
DO NOT SCALE.

Financial Services - Fletcher & Company Estate Agents work closely with Derby Mortgage Advisors who provide friendly Independent Mortgage Advice from the Whole of the Market. They cover the Derbyshire, Nottinghamshire, Leicestershire and surrounding areas and they will either come to your home or can see you at our office, for a FREE no obligation consultation.

Their advice is independent and will be specifically tailored to your needs and circumstances. So whether you are buying your first home, moving home, investing in property or remortgaging, they will be more than happy to help. To book an appointment today 01332 843390 or email: fletcherandcompany@derbymoney.co.uk.

Property Ref: 23745275

Share:

Similar Properties

The Willows, Horsley Village, Derbyshire

5 Bedroom Detached House | Offers Over £850,000

LUXURY FIVE BEDROOM FAMILY HOME - PANORAMIC VIEWS - MODERN ECO FEATURES IN HORSLEY VILLAGE.Special Note - Fast/Delayed C...

Hilltop House, Heage, Belper, Derbyshire

5 Bedroom Detached House | Offers in region of £845,000

** OPEN DAY SATURDAY 14TH MARCH ** 12PM-2PM PLEASE CALL 01332 843390 CALL TO REGISTER YOUR INTEREST **A stunning, charac...

Duffield Bank, Duffield, Belper, Derbyshire

5 Bedroom Detached House | Offers in region of £825,000

ECCLESBOURNE SCHOOL CATCHMENT AREA - Impressive five bedroom detached property that offers an exceptional living experie...

Short Avenue, Allestree Park, Derby

5 Bedroom Detached House | Offers in region of £875,000

ALLESTREE PARK & LAKE - A beautifully renovated and extremely versatile, four to six bedroom, detached family home.The p...

Avenue Road, Duffield, Belper, Derbyshire

6 Bedroom Semi-Detached House | Offers in region of £875,000

ECCLESBOURNE SCHOOL CATCHMENT AREA - Gorgeous Victorian Home - A Five/Six Bedroom Period Residence with Private Garden L...

Windley Barn, Idridgehay, Derbyshire

5 Bedroom House | Offers in region of £875,000

BEAUTIFUL BARN CONVERSION WITH HOLIDAY COTTAGE/ANNEXE - A four bedroom barn conversion with a one bedroom holiday cottag...

Fletcher & Company (Duffield)

Duffield, Derbyshire, DE56 4GD

01332 843390

How much is your home worth?

Use our short form to request a valuation of your property.

Request a Valuation

Mortgage Calculator

Amount Borrowed: £
Total Amount Repayable: £
Total Monthly Payment: £
©2026 The Guild of Property Professionals. All rights reserved. Terms and Conditions | Privacy Policy | Cookie Policy | Complaints Policy | Members Login
The Guild of Property Professionals Trading Address: 121 Park Lane, London W1K 7AG. GPEA Limited. Registered in England & Wales.  Company No: 02819824.  Registered Office Address: 2 St. Stephen's Court, St. Stephen's Road, Bournemouth, Dorset, England, BH2 6LA.  VAT Registration No: 576 8795 61
Book a Property Valuation Update Cookies Preferences