Hawkins Way, Lords Meadow Industrial Estate, EX17

Guide Price
£400,000
SSTC
This property listing is now SSTC

Commercial Property for sale in Crediton

  • Substantial commercial property on Lords Meadow
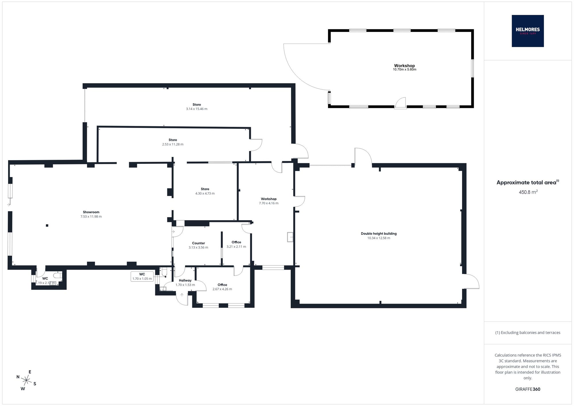
  • Showroom, offices and workshop
  • Approx. 4800 sqft of buildings
  • Set in 0.36 acre site
  • Potential to split or use as one
  • Own entrance and car parking for 10 vehicles
  • Additional (adjacent) land also available 0.25 acres
  • No chain

Lords Meadow is Crediton’s industrial estate and home to a variety of businesses from manufacturing to retail and everything in between, it’s well connected for both the town, Exeter and Tiverton and substantial properties rarely come to the market.

Having owner occupied and operated for over 30 years, retirement leads to the sale of Lewis’s Electrical, a range of buildings and land on a plot of 0.36 acres with its own entrance and parking for 10 vehicles (plus access). Amounting to approx. 4800 sqft of space, it’s currently laid out as a showroom, offices, workshop and stores. The buildings are a mix of brick and block, and then some metal framed additions. Removal of the showroom extension to the side would allow for easier access to the rear buildings which could open up the possibilities of splitting the site into smaller units for a greater return.

Adjacent to the property is an additional piece of land, with excellent frontage and its own separate access. Currently a bare site, there’s potential for further parking or development (stp). A sale for the combined sites would be entertained by the sellers however, this additional land will be retained should a buyer not want both.

Agents Notes:

Boundaries, Access & Parking:
Boundary positions, access rights and parking arrangements have been provided by the seller, and any land plans shown are for identification purposes only. We have not seen the title deeds or other legal documents, and buyers should confirm exact details and ownership responsibilities with their conveyancer.

Broadband & Mobile Coverage:
Broadband speeds and mobile signal vary by provider and location, and service availability can change over time. Buyers can check current availability and predicted speeds at www.ofcom.org.uk or via the Ofcom coverage checker.

Buyers' Compliance Fee Notice

Please note that a compliance check fee of £25 (inc. VAT) per person is payable once your offer is accepted. This non-refundable fee covers essential ID verification and anti-money laundering checks, as required by law.

 

Please see the floorplan for room sizes.

Business Rates:According to the Valuation Office Agency website, the property has a Rateable Value of £18,750.
The current small business multiplier for 2025/26 is 49.9p, giving an approximate rates payable of £9,356 per annum, although interested parties should make their own enquiries regarding any reliefs that may apply.

Approx Age: various.

Construction Notes: Brick and metal framed

Utilities: Mains electric, water, gas, telephone & broadband

Drainage: Mains

Heating: NA

Listed: No

Conservation Area: No

Tenure: Freehold

 

CREDITON is a vibrant market town with a bustling high street full of independent shops, eateries, and pubs. In recent years a diverse arts scene has grown to include all manner of mediums, with the performing arts making use of the town’s market square where, in the summer months, a range of activities take place. The market square is also home to the town’s twice-monthly farmer’s market. The town has an equally significant past. It was originally the first Bishopric in Devon and the imposing Parish Church of The Holy Cross now stands where once stood Devon’s first Saxon cathedral (909-1050AD). It is also the birthplace of Saint Boniface, one of the founding fathers of the Christian church in Europe. Easily commutable to Exeter and with two primary schools, a secondary school with sixth form as well as a wide range of necessary amenities, it’s clear why the town is a firm favourite with locals and relocators alike.

 

 

DIRECTIONS : For sat-nav use EX17 1HY and the What3Words address is ///relishes.nimbly.thousands but if you want the traditional directions, please read on.

From Crediton: Enter Lords Meadow from Exhibition Road, pass Lidl on your left and take the next right into Hawkins Way and the property will be found on the left.

From Exeter: At “Tesco” roundabout as you enter Crediton, turn right up Wellparks Hill and once over the brow of the hill, continue into Lords Meadow and stay on the same road. At the bottom of the hill, turn left into Hawkins Way and the property will be found on the left.

 

 

 

Important Information

  • This is a Freehold property.
  • EPC Rating is A

Property Ref: b919ed36-fd44-4def-a2dc-198135f0565a

Share:

Similar Properties

Chapel Downs Drive, Crediton, EX17

4 Bedroom Detached House | Guide Price £400,000

Desirable town edge location, 4 bedroom detached family home with large garage, elevated patio area and garden front & b...

Chenson, Chulmleigh, EX18

3 Bedroom Detached House | Guide Price £400,000

The pictures say it all! Beautifully presented detached character house set on edge of small hamlet backing onto open fa...

Hollacombe, Crediton, EX17

4 Bedroom Barn | Offers Over £400,000

Gorgeous semi-detached barn conversion with 4 bedrooms, 3 bath/shower rooms, modern living spaces and incredible level g...

Cheriton Bishop, Exeter, EX6

3 Bedroom Semi-Detached House | Guide Price £425,000

Pretty Grade II Listed thatched cottage with wonderful gardens and useful outbuildings.

Cheriton Fitzpaine, Crediton, EX17

5 Bedroom Link Detached House | Guide Price £425,000

Beautiful period property with a wealth of unspoilt character, 5 bedrooms, 2 bathrooms, a garage & pretty cottage garden...

West Sandford, Crediton, EX17

3 Bedroom Semi-Detached House | Guide Price £425,000

Characterful cottage with exceptional gardens and rare depth of outside space, set on the within West Sandford. Sustaina...

Helmores (Crediton)

Crediton, Devon, EX17 3LF

01363 777999

How much is your home worth?

Use our short form to request a valuation of your property.

Request a Valuation

Mortgage Calculator

Amount Borrowed: £
Total Amount Repayable: £
Total Monthly Payment: £
©2026 The Guild of Property Professionals. All rights reserved. Terms and Conditions | Privacy Policy | Cookie Policy | Complaints Policy | Members Login
The Guild of Property Professionals Trading Address: 121 Park Lane, London W1K 7AG. GPEA Limited. Registered in England & Wales.  Company No: 02819824.  Registered Office Address: 2 St. Stephen's Court, St. Stephen's Road, Bournemouth, Dorset, England, BH2 6LA.  VAT Registration No: 576 8795 61
Book a Property Valuation Update Cookies Preferences