Burlea Drive, Shavington, CW2

£230,000

2 Bedroom Semi-Detached Bungalow for sale in Crewe

2 2 1
  • Quiet cul-de-sac location in the popular village of Shavington.
  • Spacious dual-aspect living room with feature fire and space for dining.
  • Bright conservatory with French doors opening onto a private garden.
  • Two bedrooms, including a generous double and a second with built-in storage.
  • Driveway for two to three cars and a garage with side access.

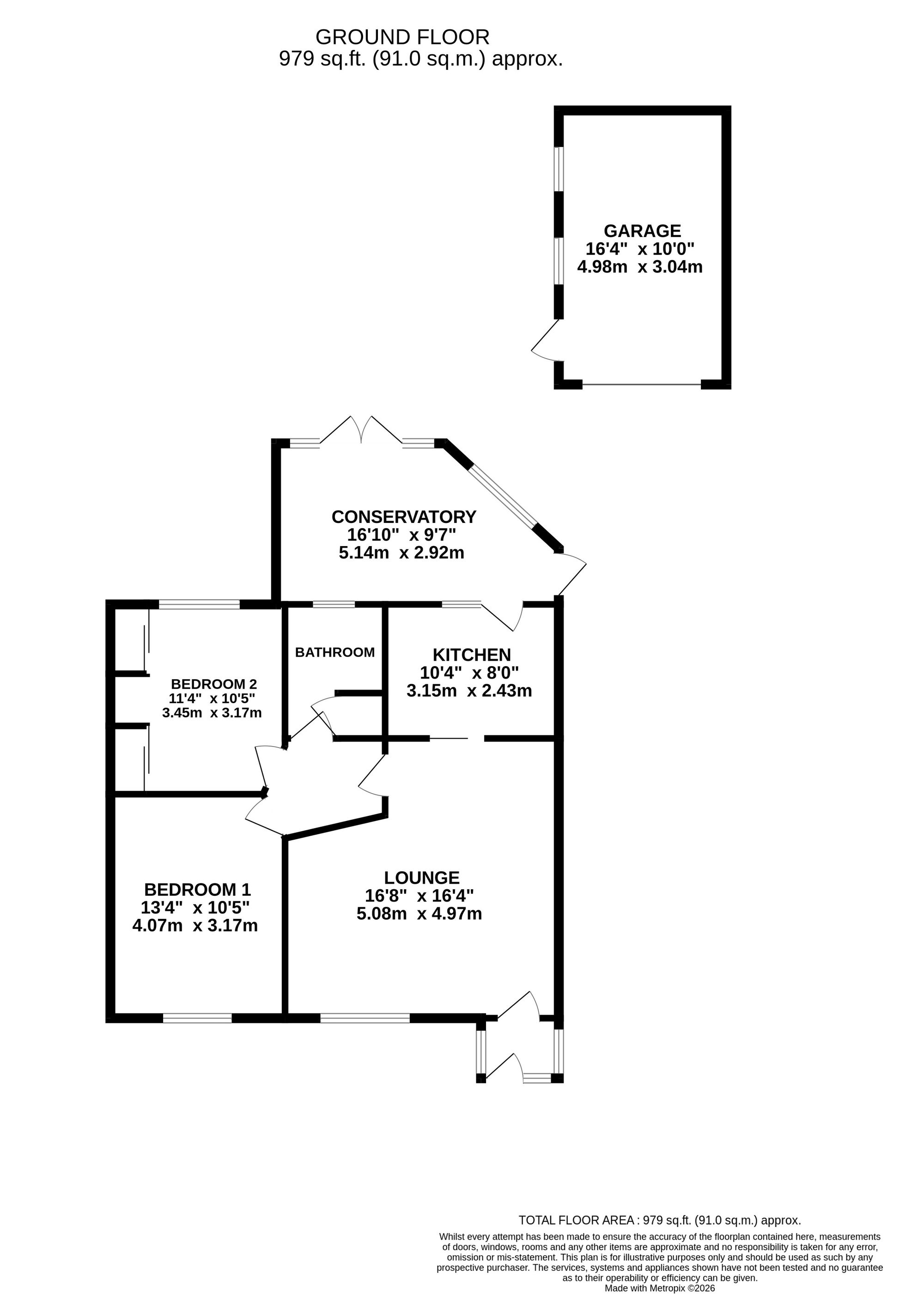
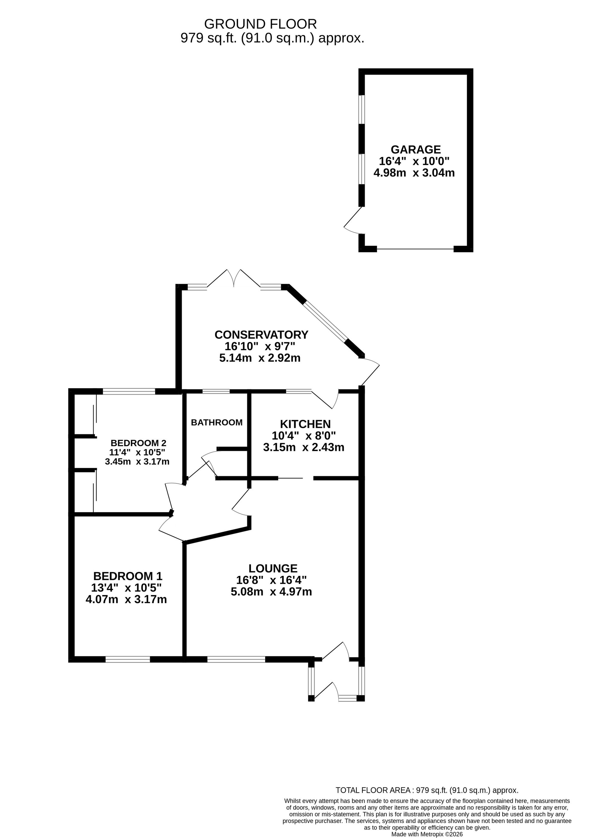
This well-presented two-bedroom semi-detached bungalow is tucked away in a quiet cul-de-sac in the popular village of Shavington, offering spacious and well-balanced accommodation throughout.

The living room is a generous and versatile space, ideal for both relaxing and entertaining. There is ample room for cosy evenings by the fire as well as a dining area, with dual-aspect windows enhancing the sense of space. A large window stretching across much of the front elevation floods the room with natural light, creating a bright and welcoming atmosphere.

The kitchen is thoughtfully laid out and provides space for a washing machine and a fridge/freezer, alongside an integrated oven and hob. There is an excellent range of cupboards offering plenty of storage and practical worktop space.

A real highlight of the property is the conservatory. This bright and spacious room offers a seamless connection to the garden, with French doors opening directly outside, making it an ideal spot to relax or entertain while enjoying views of the garden.

Bedroom one is a spacious double bedroom with plenty of room for freestanding furniture. Bedroom two is slightly smaller and benefits from built-in wardrobes and cupboards, making it a practical and well-organised space.

The bathroom is fitted with a bath and overhead shower, providing both comfort and convenience.

Outside, the private rear garden is perfect for those who enjoy gardening or spending time outdoors. The garage offers excellent storage space and benefits from a useful side access door. To the front, the property has a driveway providing parking for two to three cars, along with a front garden area.

Overall, this bungalow combines bright living spaces, practical accommodation and a peaceful cul-de-sac setting in a desirable Shavington location.

Location

Shavington is a large village to the south of Crewe and east of Nantwich offering a wide range of amenities and good road links but with the benefit of the countryside being moments away. The village offers an array of amenities including pubs and restaurants, convenience shops, primary and secondary school, leisure centre, medical practice and pharmacy. There are excellent road links to the larger towns of Nantwich, Crewe and Newcastle-under-Lyme and junction 16 of the M6 is only 6 miles away providing access to all the major cities. The major train station of Crewe is just 2.8 miles (approx.) away and the nearest airports are Manchester and Liverpool to the north and Birmingham to the south.

Energy Efficiency Current: 63.0
Energy Efficiency Potential: 83.0

Important Information

  • This is a Freehold property.
  • This Council Tax band for this property is: B

Property Ref: 91768dc7-5d5b-4e9f-93f3-5aff910ff7d1

Share:

Similar Properties

Taylor Drive, Nantwich, CW5

2 Bedroom Terraced House | £230,000

Tucked away in the charming market town of Nantwich, this two-bedroom terraced house blends modern style with thoughtful...

Main Road, Worleston, CW5

3 Bedroom Semi-Detached Bungalow | Offers in excess of £225,000

Charming 3-bed dormer bungalow in sought-after Worleston village. Rustic log burner, double-glazing, garage & large gard...

Crewe Road, Shavington, CW2

2 Bedroom Semi-Detached Bungalow | £220,000

Set within a quiet and desirable part of Shavington, this charming two-bedroom detached bungalow offers stylish and spac...

Charlcote Crescent, Wistaston, Crewe, CW2

3 Bedroom Detached House | £235,000

Charming 3-bed detached family home in sought-after Wistaston estate. Bright lounge, dining room, modern kitchen, garage...

Keswick Close, Crewe, CW2

2 Bedroom Detached Bungalow | £235,000

Chain-free 2-bed bungalow in Wistaston village. Detached garage, spacious lounge, oak-effect kitchen, two double bedroom...

Clonners Field, Stapeley, CW5

3 Bedroom Not Specified | £235,000

This three-bedroom semi-detached home in the popular area of Stapeley offers well-designed living spaces and modern comf...

James Du Pavey Estate Agents (Nantwich)

52 Pillory St, Nantwich, Cheshire, CW5 5BG

01270 445678

How much is your home worth?

Use our short form to request a valuation of your property.

Request a Valuation

Mortgage Calculator

Amount Borrowed: £
Total Amount Repayable: £
Total Monthly Payment: £
©2026 The Guild of Property Professionals. All rights reserved. Terms and Conditions | Privacy Policy | Cookie Policy | Complaints Policy | Members Login
The Guild of Property Professionals Trading Address: 121 Park Lane, London W1K 7AG. GPEA Limited. Registered in England & Wales.  Company No: 02819824.  Registered Office Address: 2 St. Stephen's Court, St. Stephen's Road, Bournemouth, Dorset, England, BH2 6LA.  VAT Registration No: 576 8795 61
Book a Property Valuation Update Cookies Preferences