Ambleside Close, Wistaston, CW2

£220,000

3 Bedroom Semi-Detached House for sale in Crewe

2 3 1
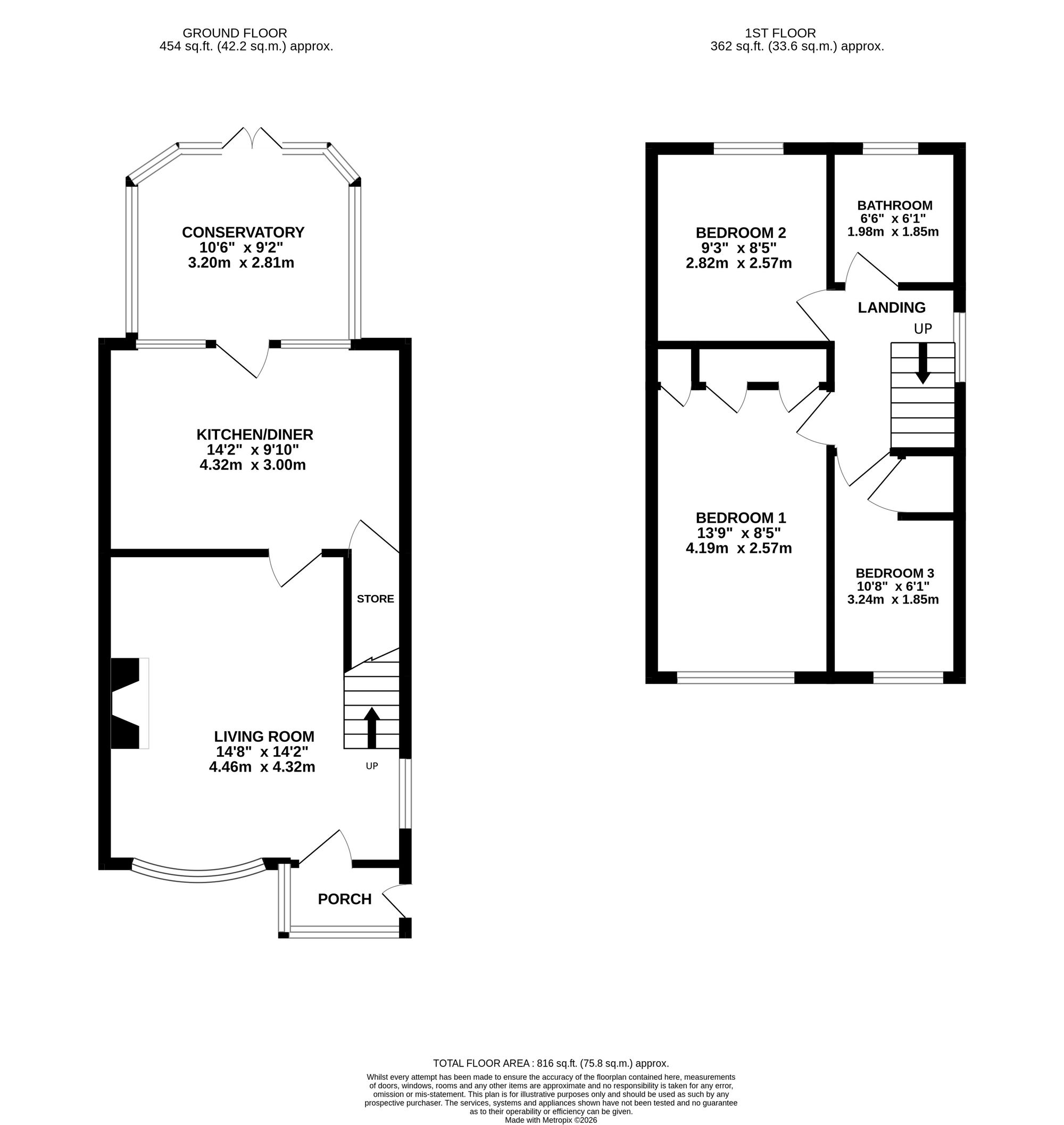
  • Spacious kitchen/diner with integrated oven, gas hob, appliance space, and handy under-stairs storage cupboard.
  • Bright conservatory accessed via French doors, creating a warm living space with further doors opening onto the garden.
  • Three well-proportioned bedrooms, including a generous main bedroom with built-in wardrobes for added storage.
  • Enclosed rear garden with lawn, patio seating area, and a shed with electricity ideal for storage or a workshop.
  • Large driveway providing convenient off-road parking for multiple vehicles.

This attractive three-bedroom semi-detached home in Wistaston offers a well-balanced combination of space, comfort, and practicality, making it ideal for modern family living.

To the front, the property benefits from a generous driveway with space for multiple cars, providing convenient off-road parking. You are welcomed inside via a porch that leads into a spacious and inviting living room, perfect for relaxing evenings or entertaining guests, with a pleasant bay window allowing in plenty of natural light.

To the rear of the property, the kitchen/diner serves as the heart of the home. It is thoughtfully laid out and fitted with an integrated oven and four-ring gas hob, along with ample space for a washing machine, dryer, and fridge/freezer. There is also access to a useful storage cupboard beneath the stairs, ideal for keeping household items neatly tucked away.

From the kitchen/diner, French doors open into a wonderful conservatory, creating a fantastic bright and warm additional living space. This area is perfect for use as a second sitting room, dining area, or even a home office, thanks to the abundance of natural light. The conservatory further enhances the indoor-outdoor flow, with its own set of French doors leading directly out into the garden.

Upstairs, the property comprises three bedrooms. The main bedroom is generously proportioned and benefits from built-in wardrobes, offering excellent storage without compromising on space. The second bedroom provides a comfortable double or guest room, while the third bedroom is ideal as a child’s room, nursery, or home office. The family bathroom is fitted with a bath and overhead dual showerheads, combining practicality with a touch of luxury.

Externally, the rear garden is designed for both relaxation and entertaining, featuring a lawned area alongside a patio space ideal for outdoor seating and dining. A useful shed with electricity provides excellent additional storage or potential for use as a workshop or hobby space.

Location:

The charming Cheshire village of Wistaston offers a range of handy and convenient amenities while the larger market town of Nantwich is just a short drive away and boasts a plethora of independent businesses including cafes, restaurants, pubs, bars and boutiques, as well as larger supermarkets and highly accredited primary and secondary schools. Those needing to commute will have little concern thanks to the conveniently accessible A500 and M6 road links while Crewe railway station offers direct links to larger cities all across the country.

Important Information

  • This is a Freehold property.
  • This Council Tax band for this property is: B

Property Ref: 914773ca-2162-4ef3-a05b-169f24e41c40

Share:

Similar Properties

Kipling Way, Crewe, CW1

2 Bedroom Detached Bungalow | £220,000

Charming 2-bed detached bungalow in quiet cul-de-sac. Spacious living room, 2 double bedrooms, rear garden, and garage....

Burlea Drive, Shavington, CW2

2 Bedroom Semi-Detached Bungalow | £220,000

This well-presented two-bedroom semi-detached bungalow is tucked away in a quiet cul-de-sac in the popular village of Sh...

Crewe Road, Shavington, CW2

2 Bedroom Semi-Detached Bungalow | £220,000

Set within a quiet and desirable part of Shavington, this charming two-bedroom detached bungalow offers stylish and spac...

Main Road, Worleston, CW5

3 Bedroom Semi-Detached Bungalow | Offers in excess of £225,000

Charming 3-bed dormer bungalow in sought-after Worleston village. Rustic log burner, double-glazing, garage & large gard...

Keswick Close, Crewe, CW2

2 Bedroom Detached Bungalow | £225,000

Chain-free 2-bed bungalow in Wistaston village. Detached garage, spacious lounge, oak-effect kitchen, two double bedroom...

Gowy Close, Alsager, ST7

3 Bedroom Semi-Detached House | £225,000

This well-presented and thoughtfully laid out three-bedroom semi-detached home in Alsager offers comfortable living spac...

James Du Pavey Estate Agents (Nantwich)

52 Pillory St, Nantwich, Cheshire, CW5 5BG

01270 445678

How much is your home worth?

Use our short form to request a valuation of your property.

Request a Valuation

Mortgage Calculator

Amount Borrowed: £
Total Amount Repayable: £
Total Monthly Payment: £
©2026 The Guild of Property Professionals. All rights reserved. Terms and Conditions | Privacy Policy | Cookie Policy | Complaints Policy | Members Login
The Guild of Property Professionals Trading Address: 121 Park Lane, London W1K 7AG. GPEA Limited. Registered in England & Wales.  Company No: 02819824.  Registered Office Address: 2 St. Stephen's Court, St. Stephen's Road, Bournemouth, Dorset, England, BH2 6LA.  VAT Registration No: 576 8795 61
Book a Property Valuation Update Cookies Preferences