Cheltenham Crescent, Crewe

Offers in region of
£170,000

3 Bedroom Semi-Detached House for sale in Crewe

3
  • Fantastic Investment Opportunity
  • A great family home
  • 3 Bedrooms
  • Bathrooom
  • Shower room
  • Enclosed rear garden
  • Garage
  • No Onward Chain

Nestled within a highly sought-after residential neighbourhood, this spacious semi-detached dormer bungalow presents an exceptional opportunity for those seeking a versatile and comfortable home. Updated by the current owner, the property offers ample living space across three well-proportioned bedrooms, making it suitable for families, first-time buyers, or downsizers alike. The home comes with the added benefit of a garage and driveway, ensuring convenient parking and valuable storage options.

While the bungalow has enjoyed thoughtful modernisation, prospective owners will note areas that require some attention, specifically to the flat roofs and one of the bedroom ceilings. The asking price has been adjusted accordingly, making this an ideal prospect for buyers looking to add their own personal touch and further enhance the property's potential.

Commuters will appreciate the convenient access to public transport links and major roadways, ensuring swift and easy journeys into the town centre and beyond. With no upward chain, the purchase process is streamlined for a smooth transition.

This is a wonderful opportunity to acquire a well-located property with immense potential. Viewings are highly recommended to fully appreciate all this home has to offer-contact today to arrange your visit.

Council Tax Band: B (Cheshire East)
Tenure: Freehold
Parking options: Driveway, Garage
Garden details: Front Garden, Rear Garden
Electricity supply: Mains
Heating: Gas Mains
Water supply: Mains
Sewerage: Mains
Broadband: FTTC

Access
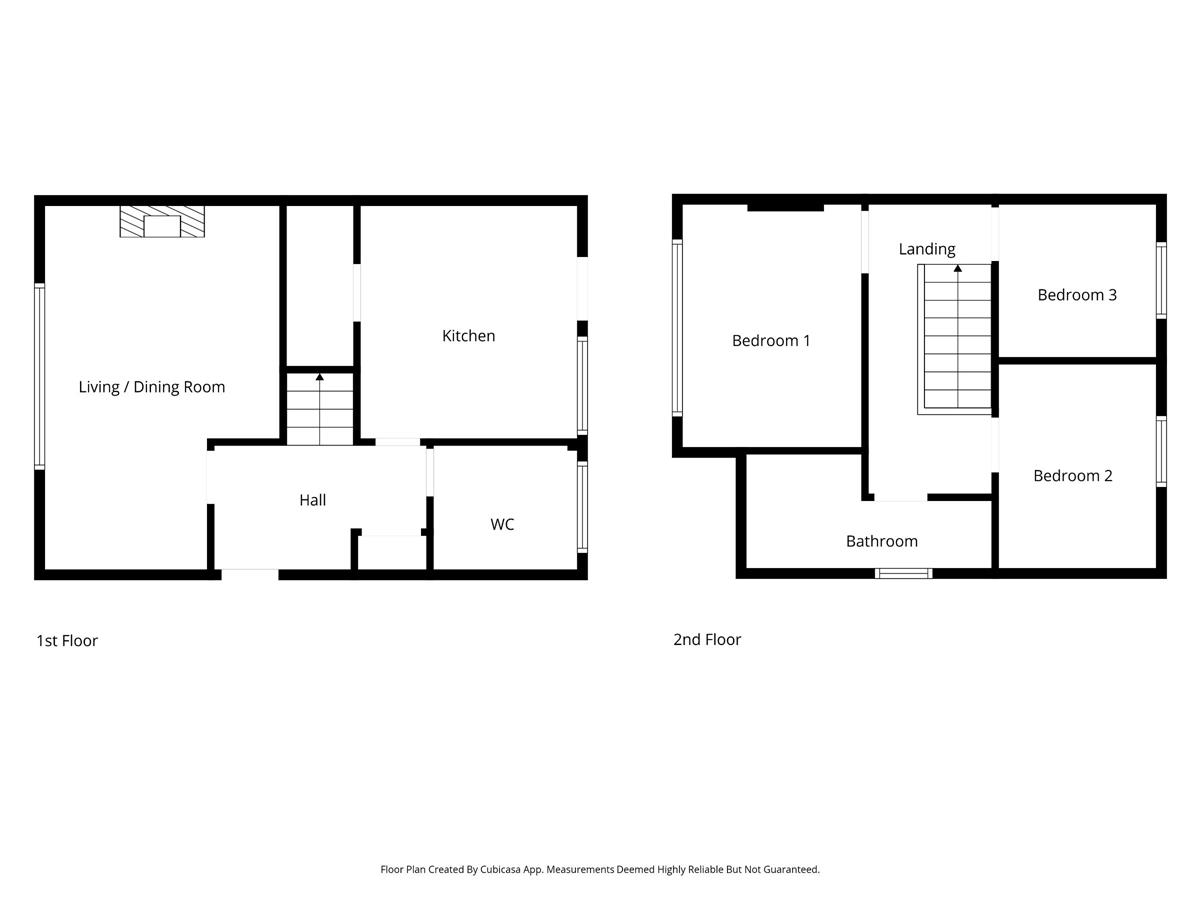
Approached over a paved driveway leading to the double glazed panelled composite entrance door giving access into the reception hall.

Reception Hall w: 1.86m x l: 3.18m (w: 6' 1" x l: 10' 5")
Spacious reception hall having laminate flooring throughout, double panelled radiator, built in cupboard housing the central heating boiler, doors to all further rooms and an opening into the lounge / dining room.

Living / Dining w: 3.52m x l: 5.46m (w: 11' 7" x l: 17' 11")
Spacious room with uPvc double glazed panelled window to the front elevation, double panelled radiator, feature wooden fire surround.

Kitchen w: 3.24m x l: 3.5m (w: 10' 8" x l: 11' 6")
Modern fitted kitchen having laminate flooring throughout and is fitted with a range of wall, base and drawer units with work surfaces over incorporating a stainless steel single drainer sink unit with mixer tap, built in four ring electric hob with extractor over and electric oven below, space and plumbing for dishwasher, space for fridge freezer, inset spot lighting, uPvc double glazed panelled window to the rear elevation, uPvc double glazed panelled door leading out to the rear garden, wall mounted contemporary vertical radiator, built in under stair storage cupboard.

Cloakroom w: 2.16m x l: 1.85m (w: 7' 1" x l: 6' 1")
Ground floor cloakroom benefitting from a double panelled radiator, two piece suite comprising of a pedestal wash hand basin with mixer tap, push button low level WC, work station with space and plumbing for a washer, uPvc double glazed panelled frosted window to the rear elevation.

FIRST FLOOR:

Landing
Having inset spot lighting, doors to all further rooms.

Bedroom 1 w: 2.67m x l: 3.64m (w: 8' 9" x l: 11' 11")
Good sized double room with uPvc double glazed panelled window to the front elevation, single panelled radiator, storage to the eaves.

NB, Work will be required to repair the bedroom ceiling.

Bedroom 2 w: 2.37m x l: 3.06m (w: 7' 9" x l: 10' )
Good sized single room with uPvc double glazed panelled window to the rear elevation, single panelled radiator.

Bedroom 3 w: 2.37m x l: 3.3m (w: 7' 9" x l: 10' 10")
A further good sized single bedroom having a uPvc double glazed panelled window to the rear elevation, double panelled radiator.

Bathroom w: 3.68m x l: 1.71m (w: 12' 1" x l: 5' 7")
Having tiled flooring, uPvc double glazed frosted panelled window to the side elevation. The bathroom is fitted with a three piece suite comprising of a vanity unit wash hand basin with mixer tap and storage drawers below, panelled bath with glazed shower screen over, mixer tap and a mixer shower with rainfall shower head and additional hand held shower attachment, push button low level WC with concealed cistern, heated towel rail finished in chrome and inset spot lighting.

Externally
To the rear of the property there is an enclosed garden, with fenced boundaries, laid to lawn and raised planter boxes, wooden lean-to, outside tap and outside light.

To the front of the property there is a further lawned garden with hedged boundaries, driveway providing off road parking leading to the detached single garage.

Garage
Detached single garage with up and over door to the front.

Energy Performance
We await the energy performance figures.

Viewings
Viewings are strictly by appointment only, please call or email the office. Thank you.

Looking to sell?
If you are thinking of selling please call or email the office to arrange a free market appraisal. Thank you

Important Information

  • This is a Freehold property.

Property Ref: RS0671

Share:

Similar Properties

Mablins Lane, Crewe

3 Bedroom Semi-Detached House | Offers in region of £170,000

A mature semi detached family home, situated in a popular residential location and offered for sale with no upward chain...

Green Street, Sandbach

2 Bedroom Terraced House | Offers Over £170,000

Fabulous opportunity for first time buyers to purchase a mid terraced property in the town centre.

Leawood Road, Stoke-on-Trent

3 Bedroom Semi-Detached House | Offers in region of £170,000

Situated in a popular residential location and offered for sale with no upward chain, this mature three bedroom semi det...

Arderne Avenue, Crewe

2 Bedroom Semi-Detached House | Offers Over £180,000

Beautifully presented semi detached family home sitting on a generous corner plot in a hugely popular residential locati...

A Bowen Cooke Avenue, Crewe

3 Bedroom Detached House | Offers Over £180,000

Well presented family home with ample off road parking, enclosed rear garden and the option to purchase additional space...

Osborne Grove, Shavington, Crewe

2 Bedroom Semi-Detached House | £180,000

Delightful 2 bedroom cottage in the heart of the pretty village of Shavington. Recently renovated to a high standard and...

Wheatcroft & Lloyd (Sandbach)

Sandbach, Cheshire, CW11 1AL

01270 382283

How much is your home worth?

Use our short form to request a valuation of your property.

Request a Valuation

Mortgage Calculator

Amount Borrowed: £
Total Amount Repayable: £
Total Monthly Payment: £
©2026 The Guild of Property Professionals. All rights reserved. Terms and Conditions | Privacy Policy | Cookie Policy | Complaints Policy | Members Login
The Guild of Property Professionals Trading Address: 121 Park Lane, London W1K 7AG. GPEA Limited. Registered in England & Wales.  Company No: 02819824.  Registered Office Address: 2 St. Stephen's Court, St. Stephen's Road, Bournemouth, Dorset, England, BH2 6LA.  VAT Registration No: 576 8795 61
Book a Property Valuation Update Cookies Preferences