Lea Avenue, Crewe

£155,000
SSTC
This property listing is now SSTC

2 Bedroom Semi-Detached Bungalow for sale in Crewe

2
  • Mature semi detached Bungalow
  • 2 Double bedroom
  • Off road parking
  • Loft room
  • Generous rooms
  • Kitchen Diner

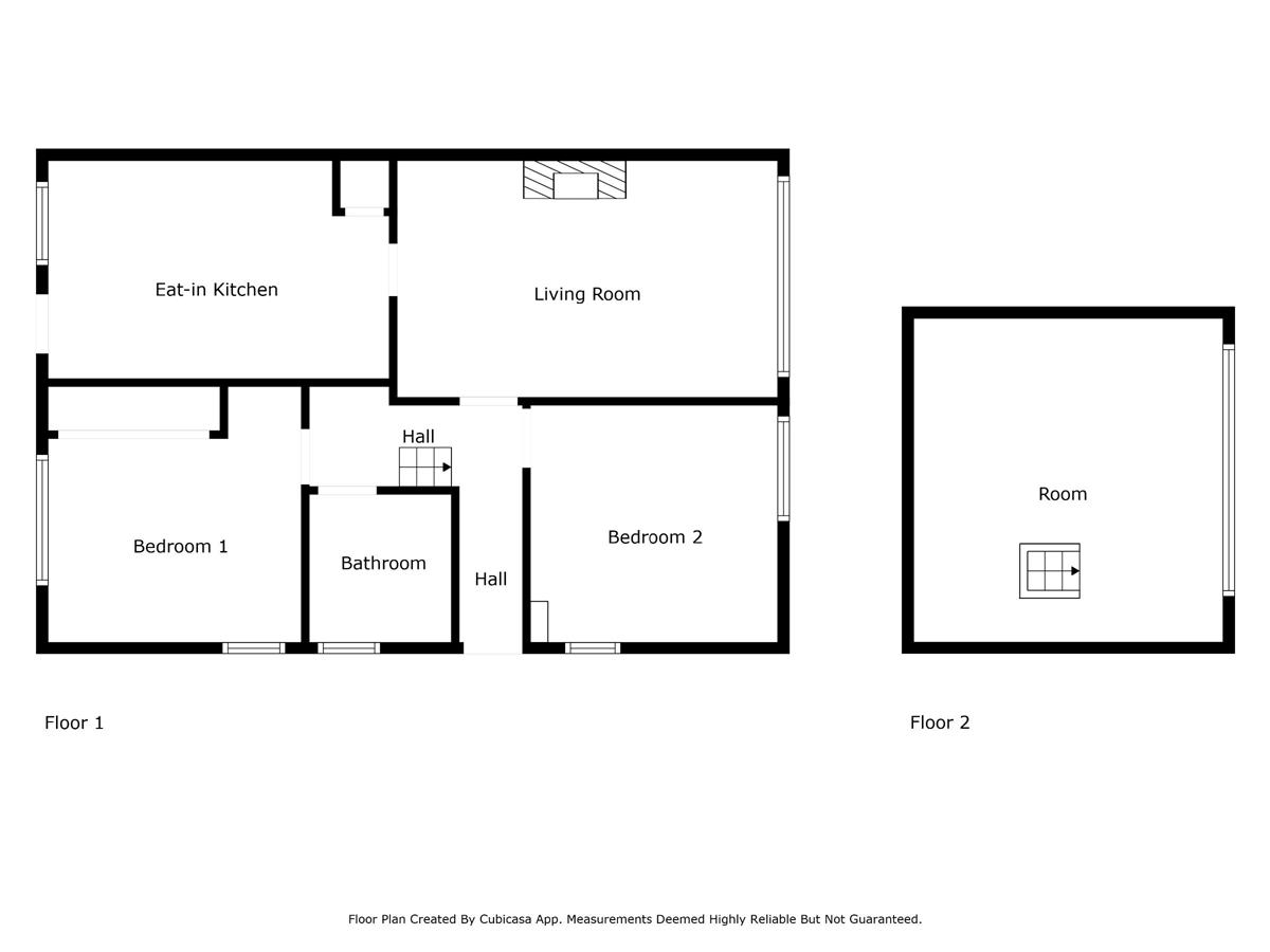
Situated within easy reach of the retail park and town centre is this mature semi detached bungalow having the benefit of a recently fitted kitchen and recent rewire. Comprising in brief, reception hall, lounge, dining kitchen, two double bedrooms, loft room and bathroom. Externally there are gardens to both front and rear and a driveway providing off road parking.

Council Tax Band: B (Cheshire East)
Tenure: Freehold
Parking options: Off Street
Garden details: Private Garden
Electricity supply: Mains
Heating: Gas Mains
Water supply: Mains
Sewerage: Mains
Broadband: ADSL


Access
Approached over a paved driveway extending along the side of the property leading to the uPvc double glazed frosted panelled entrance door giving access into the reception hall.

Reception Hall
Having a double panelled radiator, stripped wood flooring, loft access point with drop down ladder, doors to all further rooms.

Lounge w: 5.04m x l: 3.14m (w: 16' 6" x l: 10' 4")
Good size lounge with a uPvc double glazed panelled window to the front elevation, double panelled radiator, feature stone fire surround with tiled mantle and tiled hearth, door leading into the recently fitted dining kitchen.

Dining kitchen w: 4.52m x l: 2.89m (w: 14' 10" x l: 9' 6")
Good sized room having had a newly installed modern kitchen comprising of a range of wall, base, and drawer units with marble effect roll top work surfaces over, incorporating a one and a half bowl single drainer sink unit with mixer tap. built in Samsung four ring electric induction hob, with Samsung electric fan oven below and extractor over, and a stainless steel splashback, space for washer, space for fridge freezer, built in storage cupboard, inset spot lighting, Karndean effect tiled flooring, uPvc double glazed window to the rear elevation, uPvc double glazed panelled door leading to the rear garden, space for table and chairs.

Bedroom 1 w: 3.36m x l: 3.4m (w: 11' x l: 11' 2")
Good sized double room with a uPvc double glazed panelled window to the rear elevation, double radiator, a range of built in wardrobes with hanging rail and shelving, stripped wooden flooring.

Bedroom 2 w: 3.29m x l: 3.15m (w: 10' 10" x l: 10' 4")
Good sized double room with a uPvc double glazed panelled window to the front elevation, uPvc double glazed window to the side elevation, double panelled radiator.

Loft room w: 4.1m x l: 4.3m (w: 13' 5" x l: 14' 1")
Accessed via a drop down ladder this spacious double room has a uPvc double glazed panelled window to the front elevation and a double panelled radiator, storage to the eaves where you'll find the wall mounted central heating boiler.

Bathroom
Three piece suite comprising of a pedestal wash hand basin with mixer tap, low level WC, panelled bath with mixer tap / shower attachment over, heated towel rail, inset spot lighting, complimentary wall tiling, uPvc double glazed frosted window to the side elevation.

Externally
Walled frontage with a lawn garden and borders housing a variety of shrubs and plants, driveway providing off road parking, wrought iron access gates. To the rear of the property there is an enclosed garden being laid to lawn, with borders housing a variety of trees, shrubs, and plants, courtesy door into the garage providing storage only, outside tap.

Energy Performance
The current rating is 64 with a potential of 80.

About Crewe
When most people think of Crewe, they think of railways. During the 19th century Crewe was one of the world's greatest railway workshops and was a hotbed of craft and invention, building elegant locomotives that brought wealth and prestige to the town.

Crewe's got a lot more to offer than just trains. There's a thriving live music scene, as well as a range of shops, bars, pubs and restaurants. Take a stroll in Queen's Park, a traditional Victorian park that is being restored to her former glory or take in a show at the award winning Crewe Lyceum.

Crewe is also home to the famous Crewe Alexandra Football Club - aptly nicknamed the Railwaymen!

Viewings
Viewings are strictly by appointment only, please call or email the office. Thank you.

Looking to sell?
If you are thinking of selling please call or email the office to arrange a free market appraisal. Thank you.

Important Information

  • This is a Freehold property.

Property Ref: 632445_RS0441

Share:

Similar Properties

Crewe Road, Sandbach

1 Bedroom Terraced House | £150,000

A mature mid terraced home offered for sale with no upward chain.

Wordsworth Drive, Crewe

2 Bedroom Bungalow | Offers Over £150,000

Two bedroom semi-detached true bungalow in need of modernisation situated on the highly regarded Poets Estate in Sydney...

Kinderton Park, Cledford Lane, Middlewich

2 Bedroom Park Home | Offers in region of £150,000

A beautifully presented park home set in a semi rural location benefitting from two double bedrooms, shower room, en-sui...

Flat , Oak House, Brook Court, Sandbach

2 Bedroom Apartment | £160,000

We are pleased to offer for sale this first floor 2 bedroomed apartment located in the heart of Sandbach providing easy...

Riverside, Nantwich

2 Bedroom Maisonette | Offers Over £160,000

OFFERED FOR SALE WITH NO ONWARD CHAIN. A spacious first floor maisonette with two double bedrooms having stunning views...

North Street, Crewe

2 Bedroom Semi-Detached House | Offers Over £165,000

NO CHAIN,Introducing this stunning and spacious semi detached property, beautifully presented and fully modernised to th...

Wheatcroft & Lloyd (Sandbach)

Sandbach, Cheshire, CW11 1AL

01270 382283

How much is your home worth?

Use our short form to request a valuation of your property.

Request a Valuation

Mortgage Calculator

Amount Borrowed: £
Total Amount Repayable: £
Total Monthly Payment: £
©2025 The Guild of Property Professionals. All rights reserved. Terms and Conditions | Privacy Policy | Cookie Policy | Complaints Policy | Members Login
The Guild of Property Professionals Trading Address: 121 Park Lane, London W1K 7AG. GPEA Limited. Registered in England & Wales.  Company No: 02819824.  Registered Office Address: 2 St. Stephen's Court, St. Stephen's Road, Bournemouth, Dorset, England, BH2 6LA.  VAT Registration No: 576 8795 61
Book a Property Valuation Update Cookies Preferences