Emes Close, Crewe

Offers in region of
£380,000
SSTC
This property listing is now SSTC

4 Bedroom Detached House for sale in Crewe

4
  • Viewings Highly Recommended
  • Beautifully presented detached family home
  • Cul-De-Sac Setting
  • Spacious family dining kitchen
  • Four bedrooms
  • Ensuite Bathroom
  • Garage
  • Popular Village Location

Welcome to this beautifully presented four bedroom detached family home, perfectly positioned in the sought-after village of Shavington, just a short distance from Crewe. This attractive property offers generous and versatile accommodation, ideal for growing families or those seeking a comfortable space to both relax and entertain.

The home features a spacious and welcoming layout with bright living areas, while the well-appointed kitchen is perfectly suited for family meals or hosting friends. Four well-proportioned bedrooms ensure everyone enjoys their own space, and the contemporary family bathroom and en-suite adds a touch of luxury. Outside, the property boasts immaculate gardens to the front and rear-wonderful for summer gatherings or simply unwinding after a busy day.

A private driveway provides ample off-road parking and leads to a sizeable garage, offering both security and additional storage options.

Located in the heart of Shavington, residents have all the necessary local amenities on their doorstep, including reputable schools, a community centre, shops, and inviting village pubs. The nearby town of Crewe is renowned for its excellent rail links, making this location perfect for commuters or those wishing to explore the wider region. Beautiful Cheshire countryside surrounds the area, offering a variety of scenic walks and outdoor activities, while Nantwich's charming high street and weekly market are just a short drive away.

An early viewing is highly recommended to fully appreciate all that this delightful family property and its location have to offer. Arrange your visit today!

Council Tax Band: E (Cheshire East)
Tenure: Freehold
Parking options: Driveway, Garage
Garden details: Front Garden, Rear Garden
Electricity supply: Mains
Heating: Gas Mains
Water supply: Mains
Sewerage: Mains
Broadband: FTTC

Access
Approached over a paved pathway leading to the frosted panelled composite entrance door which provides access into:

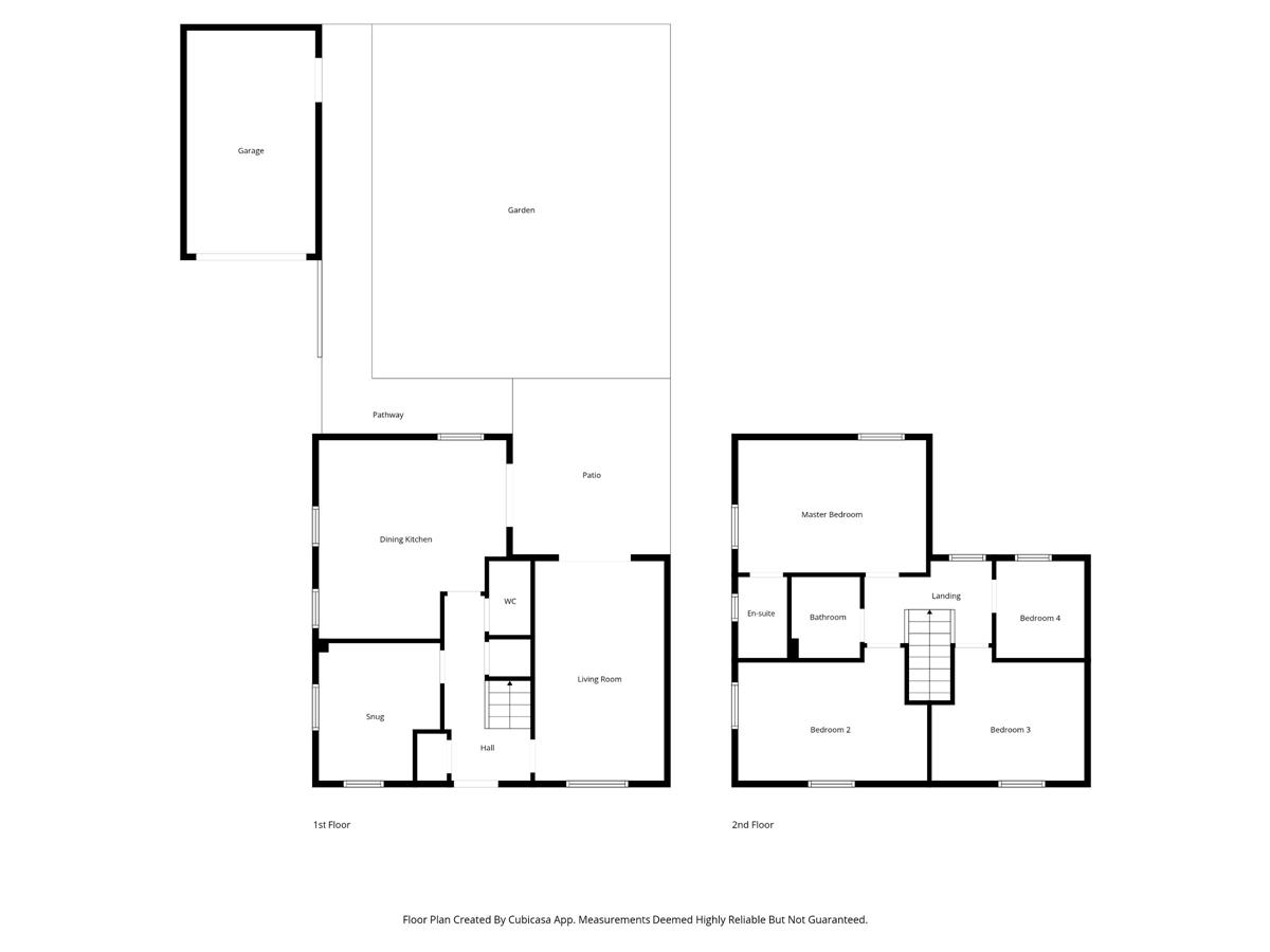
Reception Hall w: 2.1m x l: 4.55m (w: 6' 11" x l: 14' 11")
With stairs rising to the first floor landing and having single radiator concealed behind a decorative cover, understairs storage cupboard, laminate flooring. Door off to all further rooms.

Cloakroom w: 1.02m x l: 1.82m (w: 3' 4" x l: 6' )
Fitted with a 2 piece suite comprising low level, push button W.C., pedestal wash hand basin with mixer tap and complimentary tiling, single radiator. Laminate flooring continued through from the Reception Hall.

Snug w: 2.99m x l: 3.39m (w: 9' 10" x l: 11' 1")
Dual aspect room providing versatile accommodation as an office, playroom, games room and having uPvc double glazed window to the front and side elevations. Double panelled radiator.

Sitting Room w: 3.17m x l: 5.4m (w: 10' 5" x l: 17' 9")
Generous room having uPvc double glazed window to front elevation and uPvc double glazed French doors leading out onto the rear garden. 2 double panelled radiators.

Dining Kitchen / Family room w: 4.61m x l: 4.86m (w: 15' 1" x l: 15' 11")
Superb sized dining kitchen / family room, dual aspect having 2 uPvc double glazed windows to the side elevation and a further uPvc double glazed window to the rear elevation and uPvc double glazed French doors leading out onto the rear garden. Laminate flooring continued through from the Reception Hall, double panelled radiator, inset spotlighting. Fitted with a range of wall, base and drawer units with roll top work surfaces over, incorporating a one and a half bowl stainless steel single drainer sink unit with mixer tap and complimentary splash back tiling, built in four ring gas hob with extractor over and a built in eye level electric oven to the side, integrated fridge and integrated freezer, integrated dishwasher, integrated washer, space for dining table and chairs, double panelled radiator.

FIRST FLOOR:

Landing w: 3.13m x l: 2.02m (w: 10' 3" x l: 6' 8")
Having loft access point, doors to all further rooms.

Bedroom 1 w: 4.61m x l: 3.25m (w: 15' 1" x l: 10' 8")
Good sized double room with uPvc double glazed panelled windows to the rear and side elevations, double panelled radiator, fitted with a range of built in storage comprising of three double floor to ceiling wardrobes, door leading into the en-suite.

En-suite w: 1.21m x l: 2m (w: 4' x l: 6' 7")
Having a uPvc double glazed frosted panelled window to the side elevation, tile effect flooring, single radiator. Fitted with a three piece suite comprising of a pedestal wash hand basin with mixer tap, push button low level WC, walk in shower cubicle with glazed sliding door housing an electric shower, inset spot lighting, wall mounted shaver socket.

Bedroom 2 w: 4.64m x l: 3.28m (w: 15' 3" x l: 10' 9")
A further double room with uPvc double glazed panelled windows to the front and side elevations, single panelled radiator, built in double wardrobe.

Bedroom 3 w: 3.74m x l: 3.28m (w: 12' 3" x l: 10' 9")
A further double room with uPvc double glazed panelled window to the front elevation, built in double wardrobe, single panelled radiator.

Bedroom 4 w: 2.15m x l: 2.39m (w: 7' 1" x l: 7' 10")
Really good sized single bedroom with uPvc double glazed panelled window to the rear elevation, single panelled radiator.

Bathroom w: 1.68m x l: 2m (w: 5' 6" x l: 6' 7")
Family bathroom having inset spot lighting, single panelled radiator. Fitted with a three piece suite comprising of a push button low level WC, pedestal wash hand basin with mixer tap and complimentary splash back tiling, panelled bath with glazed shower screen over housing a mixer tap and mixer shower, complimentary wall tiling.

Externally
Lawned gardens to the front of the property, with a driveway providing off road parking and leads to the detached single garage, outside light and covered porch.

To the rear of the property there is an enclosed garden being, mainly laid to lawn, with borders housing a variety of shrubs and plants, a paved patio providing ample space for garden furniture, outside tap, access gate leading to the side of the property, and a courtesy door into the detached garage.

Garage w: 3.14m x l: 5.47m (w: 10' 4" x l: 17' 11")
Detached single garage with up and over door to the front, power and light.

Energy Performance
The current energy rating is 84, with a potential of 94.

Viewings
Viewings are strictly by appointment only, please call or email the office. Thank you.

Looking to sell?
If you are thinking of selling please call or email the office to arrange a free market appraisal. Thank you.

Important Information

  • This is a Freehold property.

Property Ref: RS0753

Share:

Similar Properties

Old Willow Barns, Congleton Road, Sandbach

3 Bedroom Semi-Detached House | £375,000

Stunning 3 double bedroomed, Grade 2 listed barn conversion with views over the rolling Cheshire countryside. Seamlessly...

Norbreck Avenue, Crewe

4 Bedroom Detached House | Offers Over £375,000

A beautifully presented four bedroom detached family home situated in a popular residential location.

The Hill, Sandbach

3 Bedroom Detached Bungalow | Fixed Price £375,000

A spacious three / four bedroom dormer bungalow with the added benefit of a detached one bedroom annexe.

Aldford Close, Crewe

4 Bedroom Detached House | Offers in region of £400,000

Introducing this exceptional property: a spacious 4 bed detached house with a double garage located in a semi-rural sett...

Main Road, Shavington, Crewe

3 Bedroom Cottage | Offers in region of £400,000

WE ARE DELIGHTED TO HAVE BEEN INSTRUCTED TO OFFER FOR SALE A PIECE OF SHAVINGTON HISTORY. One of a row of three cottages...

Roman Way, Sandbach

3 Bedroom Detached House | Offers in region of £400,000

A spacious detached family home, situated in a popular residential location within easy reach of all local amenities. Th...

Wheatcroft & Lloyd (Sandbach)

Sandbach, Cheshire, CW11 1AL

01270 382283

How much is your home worth?

Use our short form to request a valuation of your property.

Request a Valuation

Mortgage Calculator

Amount Borrowed: £
Total Amount Repayable: £
Total Monthly Payment: £
©2026 The Guild of Property Professionals. All rights reserved. Terms and Conditions | Privacy Policy | Cookie Policy | Complaints Policy | Members Login
The Guild of Property Professionals Trading Address: 121 Park Lane, London W1K 7AG. GPEA Limited. Registered in England & Wales.  Company No: 02819824.  Registered Office Address: 2 St. Stephen's Court, St. Stephen's Road, Bournemouth, Dorset, England, BH2 6LA.  VAT Registration No: 576 8795 61
Book a Property Valuation Update Cookies Preferences