Moreton Road, Crewe

Offers in region of
£170,000
SSTC
This property listing is now SSTC

2 Bedroom Semi-Detached House for sale in Crewe

2
  • Mature semi detached family home
  • Popular location
  • 2 Double bedroom
  • Large Rear Garden
  • Close to schools
  • No Chain

Nestled on the sought-after Wistaston Green estate, this spacious semi-detached home presents an ideal opportunity for families or couples alike. Boasting two generously-sized double bedrooms, the home is thoughtfully arranged to maximise living space and comfort. The property is complemented by a substantial rear garden, perfect for entertaining, relaxing, or enjoying the outdoors, as well as useful outbuildings for additional storage or hobby use.

Positioned on a peaceful residential road, Wistaston Green is renowned for its welcoming community atmosphere and convenient amenities. Local schools are within easy reach, making it an excellent location for families with children, while the nearby parks provide ample green space for recreation and leisurely walks. A range of shops, supermarkets, and caf?s are situated just a short stroll or drive away, ensuring daily essentials are always at hand.

Transport links from Wistaston Green are superb, with easy access to major road networks connecting to Crewe and Nantwich for further shopping, dining, and culture. Crewe railway station is a short drive away, offering fast routes to Manchester, Liverpool, and London, ideal for commuters and frequent travellers.

This desirable home is offered for sale with no upward chain, presenting a seamless move for the discerning buyer. Early viewing is highly recommended to appreciate the full potential of this wonderful property-arrange your appointment today.

Council Tax Band: A (Cheshire East)
Tenure: Freehold
Garden details: Rear Garden
Electricity supply: Mains
Heating: Gas Mains
Water supply: Mains
Sewerage: Mains
Broadband: FTTC


Access
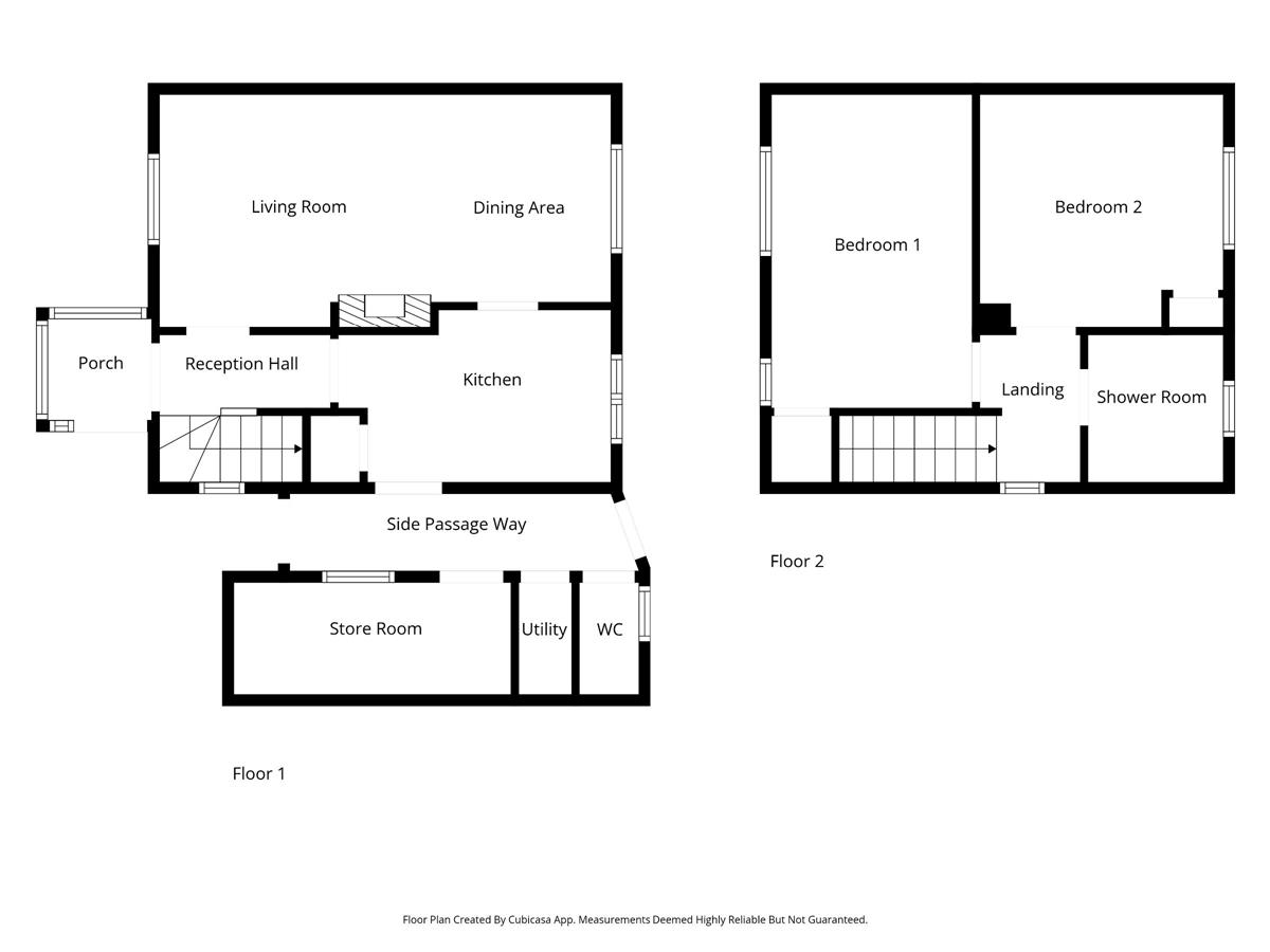
Approached over a paved pathway leading to the uPvc double glazed frosted panelled entrance door giving access into the reception porch.

Reception Porch w: 1.42m x l: 1.38m (w: 4' 8" x l: 4' 6")
Having tiled flooring, uPvc double glazed panelled windows to both the front and side elevations, wood panelled door leading into the reception hall.

Reception Hall w: 2.34m x l: 1.1m (w: 7' 8" x l: 3' 7")
Having a single radiator, understairs storage cupboard, double glazed frosted window to the side elevation, doors to all rooms, stairs rising to the first floor.

Lounge/diner w: 6.14m x l: 3.18m (w: 20' 2" x l: 10' 5")
Good sized lounge / dining room with double glazed panelled windows to both the front and rear elevations, single panelled radiator, feature fire surround with marble effect slips and hearth housing a coal effect living flame gas fire, laminate flooring, door through to the kitchen.

Kitchen w: 3.71m x l: 2.35m (w: 12' 2" x l: 7' 9")
Having tiled flooring, double glazed panelled window to the rear elevation. The kitchen is fitted with a range of wall, base and drawer units with granite effect roll top work surfaces over, incorporating a one and a half bowl resin sink unit with mixer tap and complimentary splash back tiling, built in four ring gas hob with extractor hood over and built in electric double oven below, space and plumbing for a washer / dishwasher built in larder, door back through to the reception hall, and a door leading out to the enclosed side passage way.

FIRST FLOOR:


Landing w: 1.36m x l: 2.01m (w: 4' 6" x l: 6' 7")
Having a double glazed panelled window to the side elevation, loft access point, doors to all rooms.

Bedroom 1 w: 2.72m x l: 4.27m (w: 8' 11" x l: 14' )
Good sized double room with two double glazed panelled windows to the front elevation, single radiator, built in double wardrobe, wall light point.

Bedroom 2 w: 3.32m x l: 3.18m (w: 10' 11" x l: 10' 5")
A further double room with a double glazed panelled window to the rear elevation, single radiator, built in cupboard housing the central heating boiler.

Shower room
Good sized shower room with a double glazed frosted window to the rear elevation, tiled flooring, tiled walls, three piece suite comprising of a push button low level WC with a concealed cistern, vanity unit wash hand basin with mixer tap and storage cupboards below, walk in shower cubicle with glazed shower screen housing an electric shower

Externally
To the side of the property there is an enclosed passage way leading to the outbuilding, comprising of a large storage room, WC with a wall mounted wash hand basin and a utility room with space and plumbing for a washer and dryer, access doors leading to the front and rear gardens.

To the front of the property there is a lawned garden with borders housing a variety of shrubs and plants, walled frontage with decorative wrought iron work.

To the rear of the property there is a large garden with fenced and hedged boundaries, paved patio allowing ample space for garden furniture, outside lights.

Beyond the property to the rear, there is unallocated off road parking accessed via Bramhall Road.

Energy Performance
The current energy ratings is 66, with a potential of 85.

Viewings
Viewings are strictly by appointment only, please call or email the office. Thank you.

Looking to sell?
If you are thinking of selling please call or email the office to arrange a free market appraisal. Thank you.

Important Information

  • This is a Freehold property.

Property Ref: 632445_RS0695

Share:

Similar Properties

Lime Tree Avenue, Crewe

3 Bedroom Terraced House | £170,000

A spacious three bedroom mid terraced home having been much improved and updated by the current owners. The property als...

Rochester Crescent, Crewe

2 Bedroom Semi-Detached House | Offers Over £170,000

UNEXPECTEDLY BACK ON THE MARKET AND OFFERED FOR SALE WITH NO ONWARD CHAIN. Two bedroomed semi detached home in need of r...

North Street, Crewe

2 Bedroom Semi-Detached House | Offers Over £165,000

NO CHAIN,Introducing this stunning and spacious semi detached property, beautifully presented and fully modernised to th...

Mirion Street, Crewe

3 Bedroom Semi-Detached House | £175,000

We are thrilled to offer for sale what is going to be a stunning 3 bedroomed, semi detached family home currently underg...

London Road, Sandbach

2 Bedroom Terraced House | £175,000

We are pleased to offer for sale this charming 2 double bedroomed mid terraced cottage with delightful enclosed cottage...

Booth Avenue, Sandbach

2 Bedroom Semi-Detached House | Offers Over £175,000

A fabulous opportunity for first time buyers or investors. 2 bedroom semi detached home located in a highly popular resi...

Wheatcroft & Lloyd (Sandbach)

Sandbach, Cheshire, CW11 1AL

01270 382283

How much is your home worth?

Use our short form to request a valuation of your property.

Request a Valuation

Mortgage Calculator

Amount Borrowed: £
Total Amount Repayable: £
Total Monthly Payment: £
©2025 The Guild of Property Professionals. All rights reserved. Terms and Conditions | Privacy Policy | Cookie Policy | Complaints Policy | Members Login
The Guild of Property Professionals Trading Address: 121 Park Lane, London W1K 7AG. GPEA Limited. Registered in England & Wales.  Company No: 02819824.  Registered Office Address: 2 St. Stephen's Court, St. Stephen's Road, Bournemouth, Dorset, England, BH2 6LA.  VAT Registration No: 576 8795 61
Book a Property Valuation Update Cookies Preferences