Cromer

Guide Price
£245,000

2 Bedroom Semi-Detached House for sale in Cromer

2 1
  • Attractive flint frontage
  • Town centre location
  • Within easy reach of the beach and station
  • Attractive and good size kitchen breakfast room
  • 2 double size bedrooms
  • Bathroom with corner bath
  • Rear garden with brick outshed
  • Double glazing and gas ch
  • New roof (see agents note)
  • No onward chain

Location Perched on the stunning North Norfolk coast, Cromer is a lively seaside town full of character. Its wide sandy beaches, iconic pier and famous Cromer crab give it a classic coastal charm, while its Victorian architecture and fishing heritage add a unique sense of history. You'll also find the UK's last traditional Seaside Special Variety Show here-perfect for summer evenings by the sea.

Cromer offers everything you need for everyday life, with a great mix of independent shops, supermarkets, cafés, restaurants and pubs. Whether you're after slow, laid-back days or a more active lifestyle, this town has you covered. There's a good choice of holiday stays for visiting friends and family, and easy transport links make exploring simple.

Cromer rail station is close by, offering convenient services to the Norfolk Broads and the city of Norwich. From Norwich, you can connect directly to London and a wide range of other UK destinations-ideal for commuters, city days out, or visiting family and friends further afield.

Practicalities are well taken care of too. Cromer has its own hospital, plus GP and dental surgeries, a library, and the Royal Cromer Golf Club for those who enjoy a round in the sea air. If fitness or community connection is high on your list, you can join two nearby National Trust park runs at Blickling Hall and Sheringham Park-perfect for staying active and meeting new people.

Warm, welcoming and wonderfully coastal, Cromer is a place where life feels that little bit easier. Whether you're buying your first home or looking for a lifestyle change, it's a brilliant place to put down roots. 

Description This charming semi-detached brick and flint cottage blends character features with modern comfort, all in a superbly convenient town-centre location. Its attractive traditional frontage opens into a bright, stylish interior complete with gas central heating and uPVC double glazing-ideal for comfortable, low-maintenance living.

Inside, you'll find a cosy and inviting living space, plus a spacious, well-designed kitchen that looks out over the rear garden-perfect for cooking, hosting or enjoying everyday life. Upstairs, both bedrooms are generously sized and accommodate a double bed, and the contemporary bathroom features a Velux window that fills the space with natural light.

Outside, the raised south-facing garden offers a lovely spot for alfresco dining, morning coffee and relaxing. There's also a small brick-and-flint outbuilding, adding useful extra storage.

Full of charm and practicality, this cottage is an excellent choice for anyone looking to enjoy Cromer's coastal lifestyle with the convenience of town living right on the doorstep. 

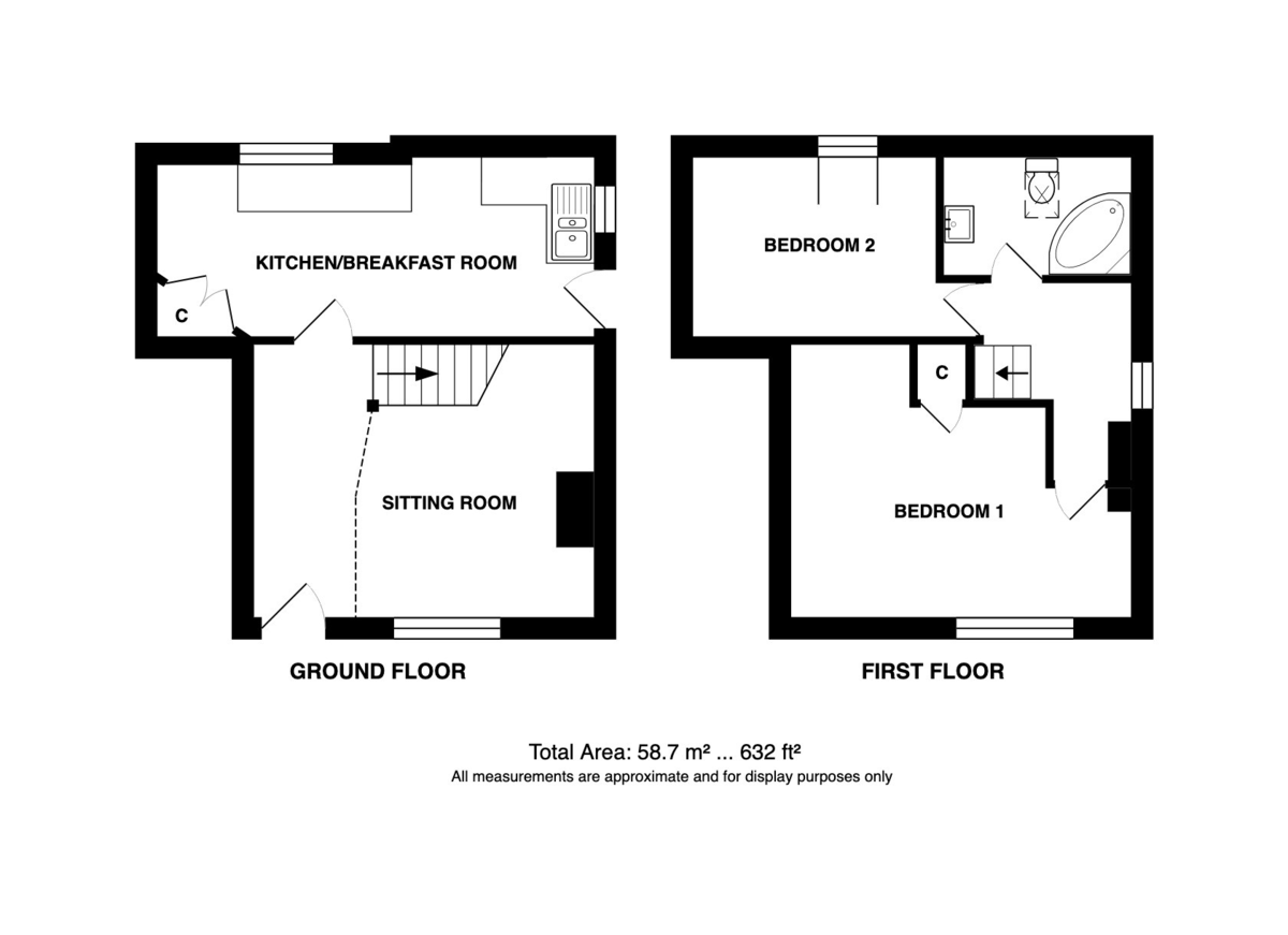
Living Room 14' 6" x 12' 3" (4.42m x 3.73m) including stairwell and alcoves Entrance door to reception area with woodblock floor and half height wall to separate the sitting area, stairs leading to the first floor and door to kitchen.

Sitting area with boarded floor, inset ceiling lighting, fireplace (blocked) with tiled hearth and exposed brick back, uPVC sealed unit double glazed window with deep sill, under-stair alcove. 

Kitchen/Breakfast Room 18' 8" x 7' 7" (5.69m x 2.31m) narrowing to 7'4" Glazed 1.5 bowl sink unit with mixer tap inset to solid oak worktops with fitted base units and plumbing for automatic washing machine beneath, space for cooker, oak breakfast bar, natural finish ceramic tiled floor, metro-tiled splashbacks, wall mounted gas fired boiler, recessed built-in cupboard, uPVC sealed unit double glazed windows, stable type door to garden 

Landing Stripped boarded floor, uPVC sealed unit double glazed window, access hatch to loft space. 

Bedroom 1 14' 11"max x 9' 5" to built-in cupboard (4.55m x 2.87m) Stripped boarded floor, radiator, uPVC sealed unit double glazed window, strapwork ceiling, built-in overstairs cupboard. 

Bedroom 2 7' 8" x 9' 1" (2.34m x 2.77m) plus door threshold Radiator, stripped boarded floor, uPVC sealed unit double glazed dormer window. 

Bathroom 8' x 5' (2.44m x 1.52m) White 3 piece suite comprising panelled corner bath with tiled surround and chrome overhead mixer shower, low level wc, pedestal wash basin, stripped boarded floor, radiator, sealed unit double glazed velux window, extractor fan. 

Outside Small flint walled front garden with entrance gate. Gated side access leading to the rear garden.

Bisected rear garden, with steps up from the path to the private garden area, with mature planting, sheltered patio and terrace areas, flint edged bed and a brick & flint outbuilding (6'10 x 5'4") with pantile roof. There are further steps up to the side garden area with a small plateau overlooking the whole garden area. 

Services Mains gas water electricity and drainage are available. 

Local Authority/Council Tax North Norfolk District Council
Council Tax Band A 

Agents Note Annual parking permits are available for The Cadogan Road carpark which is just 2-3 minutes walk from the cottage front door.
Permits can also be used in various car parks all over North Norfolk.

The seller has contracted for the house to be re-roofed in June '26 (stripped, battened, felted and lead flashing re-laid). This work will be completed as part of the sale.
 

EPC Rating The Energy Rating for this property is Band D. A full Energy Performance Certificate available on request. 

Important Agent Note Intending purchasers will be asked to provide original Identity Documentation and Proof of Address before solicitors are instructed. 

We Are Here To Help If your interest in this property is dependent on anything about the property or its surroundings which are not referred to in these sales particulars, please contact us before viewing and we will do our best to answer any questions you may have.

The price quoted for the property does not include Stamp Duty or Title Registration fees, which purchasers will normally pay as part of the conveyancing process. Please ask us if you would like assistance calculating these charges. 

Property Ref: 101301039414

Share:

Similar Properties

Cromer

2 Bedroom Terraced House | Guide Price £240,000

Charming Historic Brick-and-Flint town-centre Cottage with Garden, Woodburner and Modern Upgrades – Ideal First Home or...

Catfield, Great Yarmouth

2 Bedroom Semi-Detached Bungalow | Guide Price £240,000

A semi-detached bungalow with 2 generous bedrooms, a beautiful 85' LONG REAR GARDEN plus TANDEM GARAGE/WORKSHOP. Village...

Holt

3 Bedroom Link Detached House | Guide Price £240,000

A three bedroom semi-detached family home, nicely situated within walking distance of the town centre, school and Holt C...

Beccles Road, Loddon

2 Bedroom Cottage | Guide Price £250,000

A deceptively spacious Grade II listed character cottage with a bright modern interior and 50' rear garden, situated in...

Holt

3 Bedroom Link Detached House | Guide Price £250,000

A link detached house with garage, requiring some refurbishment, nicely situated within walking distance of the town cen...

Kelling, Holt

3 Bedroom End of Terrace House | Guide Price £260,000

A neat and tidy, end terraced house requiring some updating and including a garage en-block, a mature wildlife friendly...

Watsons (Sheringham)

Sheringham, Norfolk, NR26 8RG

01263 823201

How much is your home worth?

Use our short form to request a valuation of your property.

Request a Valuation

Mortgage Calculator

Amount Borrowed: £
Total Amount Repayable: £
Total Monthly Payment: £
©2026 The Guild of Property Professionals. All rights reserved. Terms and Conditions | Privacy Policy | Cookie Policy | Complaints Policy | Members Login
The Guild of Property Professionals Trading Address: 121 Park Lane, London W1K 7AG. GPEA Limited. Registered in England & Wales.  Company No: 02819824.  Registered Office Address: 2 St. Stephen's Court, St. Stephen's Road, Bournemouth, Dorset, England, BH2 6LA.  VAT Registration No: 576 8795 61
Book a Property Valuation Update Cookies Preferences