Holt

Guide Price
£240,000
SSTC
This property listing is now SSTC

3 Bedroom Link Detached House for sale in Holt

3 2
  • Dual aspect sitting/dining room
  • Fitted kitchen
  • Three bedrooms
  • Ground floor shower room and first floor bathroom
  • Gas central heating and uPVC double glazing
  • Gardens to front and rear
  • Garage
  • Ideal home for a couple or family
  • Short stroll to the town centre & school
  • NO ONWARD CHAIN

Location Straddling the A148 Cromer Road, the beautiful Georgian market town of Holt boasts a rich history and many well-preserved Georgian buildings, alongside an exciting range of independent shops and national brands, delicatessen and tea shops, art galleries, clothing and gift shops, together with large department store, supermarket, library and post office.

A regular bus service runs through Holt and onto the city of Norwich via other nearby towns and villages. There is a a primary school, pre-school groups and Holt is within the catchment for Sheringham High School and sixth form.

The town is 23 miles north of the City of Norwich, 9 miles west of Cromer and some 35 miles east of King's Lynn. The National Rail network can be accessed at Sheringham, just over 6 miles via the Bittern Line into Norwich. The North Norfolk Coast is just 3 miles North of the town.

The property is situated on the South side of the bypass, within walking distance of the town centre, and with Holt Country Park nearby, there are some lovely walks to enjoy from the doorstep. 

Description This semi-detached family home is perfectly positioned within easy walking distance of Holt's vibrant town centre, local primary school, and the picturesque Holt Country Park – ideal for those who love scenic walks.

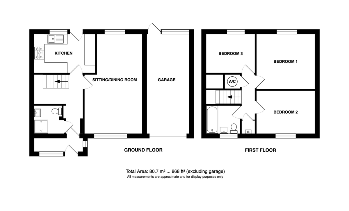
The property offers well-proportioned accommodation arranged over two floors. On the ground floor, you'll find an inviting entrance porch leading into a reception hall, a spacious dual-aspect sitting/dining room, a fitted kitchen, and a convenient shower room. Upstairs, the first-floor landing provides access to three comfortable bedrooms and a family bathroom. Further benefits include gas central heating and uPVC double glazing throughout.

Outside, the home enjoys a low-maintenance front garden, side access to an enclosed east-facing rear garden, and a lean-to garage – a more recent addition offering extra versatility.

This property is offered with no onward chain, making it an excellent opportunity for families, couples, or individuals seeking a home with space for visiting friends and relatives.

The accommodation comprises;

Part-glazed front door:
 

Porch uPVC double-glazed window to side aspect, front aspect, single glazed timber casement window, further part-glazed door to reception hall. 

Reception Hall Radiator, meter cupboards, stairs to first floor with understairs storage area, telephone and broadband point, door to shower room. 

Sitting/Dining Room 19' 7" x 11' 4" reducing to 8'11" (5.97m x 3.45m) A lovely light and airy dual aspect room with uPVC double-glazed windows to front and rear aspect, two radiators, TV aerial point. 

Kitchen 12' 0" x 7' 5" (3.66m x 2.26m) Fitted with a range of wood fronted base units with working surfaces over, matching wall units, task lighting, tiled splashback, space and plumbing for a washing machine, space for a fridge-freezer, breakfast bar, radiator, single bowl/single drainer sink with mixer tap, five ring gas hob with integrated extractor over, single electric oven, uPVC double-glazed window, and part-glazed door with obscure glass to the rear garden. 

Shower Room 5' 6" x 5' 5" (1.68m x 1.65m) Fitted with a pedestal basin, low level WC, curved shower cubicle with Aquastream shower over, part-tiled wall, extractor fan, light, shaver point, radiator, tiled floor. 

First Floor  

Landing Hatch to loft, built-in airing cupboard housing lagged hot water cylinder and shelving, further built-in cupboard housing wall-mounted gas boiler providing central heating and domestic hot water, and hanging rails. 

Bedroom 1 11' 5" x 10' 10" (3.48m x 3.3m) uPVC double glazed window to radiator, TV aerial, and telephone point. 

Bedroom 2 11' 5" x 8' 6" (3.48m x 2.59m) uPVC double glazed window to front aspect with radiator. 

Bedroom 3/Study 9' 7" x 7' 7" (2.92m x 2.31m) uPVC double glazed window to rear aspect, radiator. 

Bathroom 6' 7" x 5' 6" (2.01m x 1.68m) Fitted with a panelled bath with mixer tap and shower attachment, pedestal basin with taps, low level WC, part-tiled walls, radiator, light and shaver point, mirror, uPVC double-glazed window to front aspect, extractor fan. 

Outside The property is approached via a driveway leading to the lean-to single GARAGE, with timber double doors, light, power, personal door and window to rear garden. To the front of the property is a small garden with bedded down flints and a step to the front door. There is a neatly tended lawn and mature tree. A side gate leads to the enclosed rear garden which enjoys an Easterly aspect, with a small paved seating area, mature planting providing a good degree of privacy, a useful shed and outside tap. 

Services All mains services. 

Local Authority/Council Tax North Norfolk District Council, Holt Road, Cromer, NR27 9EN.
Tel: 01263 513811
Tax Band: B 

EPC Rating The Energy Rating for this property is D. A full Energy Performance Certificate available on request. 

Important Agent Note Intending purchasers will be asked to provide original Identity Documentation and Proof of Address before solicitors are instructed. 

We Are Here To Help If your interest in this property is dependent on anything about the property or its surroundings which are not referred to in these sales particulars, please contact us before viewing and we will do our best to answer any questions you may have.

The price quoted for the property does not include Stamp Duty or Title Registration fees, which purchasers will normally pay as part of the conveyancing process. Please ask us if you would like assistance calculating these charges. 

Property Ref: 101301032923

Share:

Similar Properties

Cromer

2 Bedroom Terraced House | Guide Price £240,000

Charming Historic Brick-and-Flint town-centre Cottage with Garden, Woodburner and Modern Upgrades – Ideal First Home or...

Sheringham

2 Bedroom Ground Floor Flat | Guide Price £240,000

A superbly appointed two bedroom GROUND FLOOR seafront apartment enjoying lovely views over the gardens of The Leas to t...

Catfield, Great Yarmouth

2 Bedroom Semi-Detached Bungalow | Guide Price £240,000

A semi-detached bungalow with 2 generous bedrooms, a beautiful 85' LONG REAR GARDEN plus TANDEM GARAGE/WORKSHOP. Village...

Cromer

2 Bedroom Semi-Detached House | Guide Price £245,000

A beautiful two bedroom brick and flint semi-detached cottage with garden in a convenient central town location, within...

Beccles Road, Loddon

2 Bedroom Cottage | Guide Price £250,000

A deceptively spacious Grade II listed character cottage with a bright modern interior and 50' rear garden, situated in...

Holt

3 Bedroom Link Detached House | Guide Price £250,000

A link detached house with garage, requiring some refurbishment, nicely situated within walking distance of the town cen...

Watsons (Sheringham)

Sheringham, Norfolk, NR26 8RG

01263 823201

How much is your home worth?

Use our short form to request a valuation of your property.

Request a Valuation

Mortgage Calculator

Amount Borrowed: £
Total Amount Repayable: £
Total Monthly Payment: £
©2026 The Guild of Property Professionals. All rights reserved. Terms and Conditions | Privacy Policy | Cookie Policy | Complaints Policy | Members Login
The Guild of Property Professionals Trading Address: 121 Park Lane, London W1K 7AG. GPEA Limited. Registered in England & Wales.  Company No: 02819824.  Registered Office Address: 2 St. Stephen's Court, St. Stephen's Road, Bournemouth, Dorset, England, BH2 6LA.  VAT Registration No: 576 8795 61
Book a Property Valuation Update Cookies Preferences