Mundesley

Guide Price
£230,000
SSTC
This property listing is now SSTC

2 Bedroom End of Terrace House for sale in Norwich

2 1
  • Sea facing location
  • Good village amenities
  • Charming brick and flint exterior
  • Exposed beams
  • Large open plan living room
  • Modern kitchen and shower room
  • Gas central heating
  • uPVC sealed unit double glazing
  • Courtyard garden
  • No onward chain

Location Mundesley is a charming and historic coastal village, loved for its unspoilt charm and traditional seaside appeal. Once a popular Victorian holiday destination, the village continues to attract visitors with its award-winning Blue Flag sandy beaches, colourful beach huts, and shallow rock pools. Characterful flint cottages and a relaxed atmosphere make Mundesley a perfect coastal retreat, while the surrounding countryside offers scenic walks, including access to the Norfolk Coast Path and numerous footpaths and circular routes. Nearby, Southrepps Common provides a haven for wildlife and nature lovers, with beautiful woodland and wildflower meadows.

The vibrant village centre caters well for everyday needs, featuring a butcher, excellent greengrocer, chemist, ladies' fashion boutique, a Tesco Express and a Spa convenience store. A selection of cafés, pubs, and restaurants provide dining options, alongside a medical centre, primary school, and a well-regarded nine-hole golf course founded in 1901. Family-friendly attractions include an adventure golf park and the local maritime museum, which also serves as a lookout for the National Coast Watch Institution.

Conveniently situated, Mundesley is just over 7 miles from Cromer, around 5.5 miles from North Walsham (with rail links via the Bittern Line), and only 20 miles from the historic city of Norwich, offering excellent transport and shopping facilities. 

Description This charming brick and flint character cottage offers an idyllic coastal lifestyle with stunning sea views and access to the beach just moments from your doorstep. Facing the sea and with access over a shared green, the cottage blends traditional features with modern comforts.

Inside, the home boasts a bright and well-equipped kitchen with timber-fronted units, a gas hob, and integrated appliances. The spacious sitting/dining room is the heart of the home, featuring exposed beams, open-tread stairs, and a generous bay window that fills the space with natural light and frames the sea beyond. Ample built-in storage enhances its practicality.

Upstairs, the principal bedroom offers twin double-glazed windows, exposed beams, and built-in wardrobes, while the second bedroom has fitted airing cupboard and boiler and both enjoy elevated sea views. A stylish shower room with tiled cubicle and white suite completes the accommodation.

Outside, a secluded courtyard garden offers a quiet retreat, with a well-screened patio and raised borders bursting with established plants. With direct access to a path leading to the beach, this cottage is a perfect blend of character, comfort, and coastal charm - ideal as a full-time residence, weekend escape, or holiday let. 

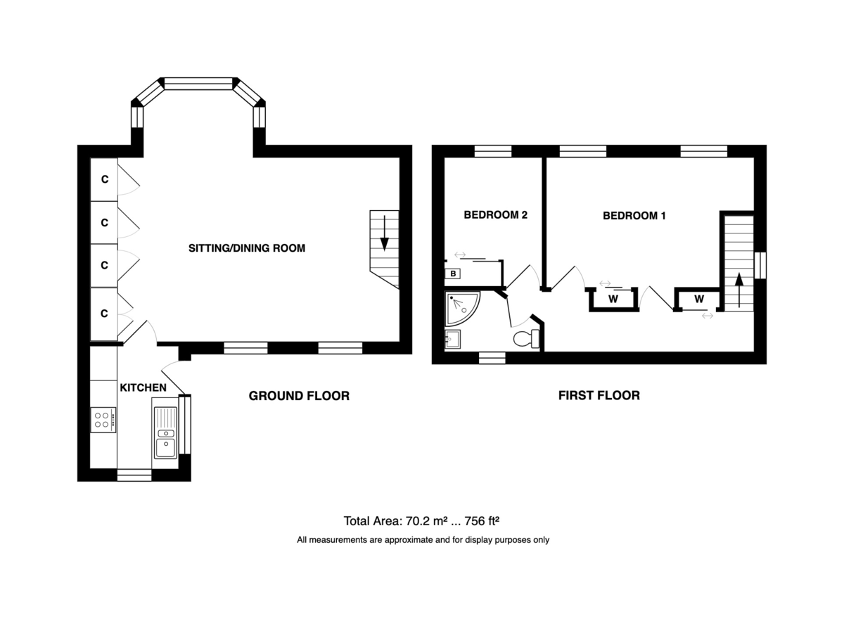
Kitchen 9' 2" x 6' 7" (2.79m x 2.01m) Stainless steel single drainer sink unit inset to laminate roll edge worktop, fitted light timber front fitted units comprising base/drawer units and wall mounted cupboards, integral fridge freezer, plumbing for automatic washing machine, steel finish electric oven and 4 ring gas hob inset to laminate worktop with hood above, tiled splashbacks, wood effect flooring. 

Sitting/Dining Room 23' 2" x 13' 9" (7.06m x 4.19m) plus bay 5'1" x 8'2" with large bay with uPVC sealed unit double glazing, sufficiently large to accommodate a dining table, exposed beams, open tred stairs leaning to the first floor, extensive fitted storage cupboards. 

Landing 15' 8" x 2' 11" (4.78m x 0.89m) Stripped wood floor, access hatch to loft space. 

Bedroom 1 9' 8" x 12' 11" (2.95m x 3.94m) plus alcove Rwin uPVC sealed unit double glazed windows, built-in double and single wardrobes, radiator, exposed beam, useful over stair alcove. 

Bedroom 2 7' 3" x 7' 7" (2.21m x 2.31m) plus airing cupboard and door threshold Fitted airing cupboard housing Vaillant combi gas fired boiler, radiator, uPVC sealed unit double glazed window. 

Shower Room 7' 1" x 4.78' 7" (2.16m x 1.4m) White 3 piece suite comprising low level w.c., wash basin and tiled corner shower cubicle with mixer shower, uPVC sealed unit double glazed window. 

Outside Enclosed courtyard garden with steps from the gate leading down to a well screen patio, with raised bed and established planted borders.

The property also enjoys access over the green to the front (sea side) and use of the path to the beach. 

Services Mains gas water electricity and drainage are available. 

Local Authority/Council Tax North Norfolk District Council
Council Tax Band B 

EPC Rating The Energy Rating for this property is D. A full Energy Performance Certificate available on request. 

Important Agent Note Intending purchasers will be asked to provide original Identity Documentation and Proof of Address before solicitors are instructed. 

We Are Here To Help If your interest in this property is dependent on anything about the property or its surroundings which are not referred to in these sales particulars, please contact us before viewing and we will do our best to answer any questions you may have. 

 

Agents Note Maintenance fee for the green space to the front is £75pcm

The current owner rents parking space to the right of the house at £25pcm

Figures correct as at April 2025. 

Property Ref: 101301039125

Share:

Similar Properties

East Beckham

2 Bedroom Cottage | Guide Price £230,000

A charming, brick and flint cottage, with beautiful views of the North Norfolk countryside, situated approximately 3 mil...

Sheringham

2 Bedroom Apartment | £230,000

There is FANTASTIC LIGHT in this superbly presented, second floor apartment with the benefit of lovely SEA VIEWS, situat...

Canary Close, Hockering

2 Bedroom Semi-Detached House | Guide Price £230,000

An appealing modern semi-detached home in an exclusive private cul-de-sac, with EPC "B" rating and modern interior combi...

Holt

3 Bedroom Link Detached House | Guide Price £240,000

A three bedroom semi-detached family home, nicely situated within walking distance of the town centre, school and Holt C...

Sheringham

2 Bedroom Ground Floor Flat | Guide Price £240,000

A superbly appointed two bedroom GROUND FLOOR seafront apartment enjoying lovely views over the gardens of The Leas to t...

Cromer

2 Bedroom Terraced House | Guide Price £240,000

Charming Historic Brick-and-Flint town-centre Cottage with Garden, Woodburner and Modern Upgrades – Ideal First Home or...

Watsons (Sheringham)

Sheringham, Norfolk, NR26 8RG

01263 823201

How much is your home worth?

Use our short form to request a valuation of your property.

Request a Valuation

Mortgage Calculator

Amount Borrowed: £
Total Amount Repayable: £
Total Monthly Payment: £
©2026 The Guild of Property Professionals. All rights reserved. Terms and Conditions | Privacy Policy | Cookie Policy | Complaints Policy | Members Login
The Guild of Property Professionals Trading Address: 121 Park Lane, London W1K 7AG. GPEA Limited. Registered in England & Wales.  Company No: 02819824.  Registered Office Address: 2 St. Stephen's Court, St. Stephen's Road, Bournemouth, Dorset, England, BH2 6LA.  VAT Registration No: 576 8795 61
Book a Property Valuation Update Cookies Preferences