This property listing is now SSTC

2 Bedroom Apartment for sale in Sheringham

2 1
  • Light and airy sitting/dining room
  • Cottage Style fitted kitchen
  • Shower room refurbished in April 2024
  • Two double bedrooms
  • Two car parking spaces
  • New gas boiler fitted in 2023
  • Ideal as permanent or holiday home
  • Short stroll to shops, bus and train station
  • Sea views
  • Lease term 152 years from 25.10.2013

Location Sheringham is a delightful small town in an area of Outstanding Natural Beauty on the North Norfolk Coast, nestling between the sea and Pretty Corner woods. The town is a popular holiday destination with an excellent range of independent shops and supermarkets. There are schools for all ages, including many public schools within a few miles, bus and rail links to the bustling city of Norwich and the nearby towns of Holt and Cromer. There is a modern health centre, dentist, theatre and library together with the Reef Leisure Centre and magnificent 18 hole clifftop golf course.

Sheringham also boasts excellent coastal and woodland walks. The beach enjoys Blue Flag status and is a mix of shingle and sand depending on the tide with a wide promenade running the length of the town. The town hosts several events throughout the year including the Viking Festival, Crab and Lobster Festival, Carnival and 1940s Weekend. The North Norfolk Steam Railway also attracts many visitors to the area. There is something for everyone. 

Description This immaculately presented, second floor apartment is situated in a purpose built block located just yards from the West beach and within a short stroll of the town centre, train and bus stations.

The property has undergone some refurbishments under the current ownership which has provided the owners with a modern and stylish home. This comprises an entrance hall with storage cupboard, a generous, light and airy, dual aspect sitting room with an open outlook to the front and sea views over rooftops to the side, a cottage style fitted kitchen which houses a gas boiler fitted last year, which provides domestic hot water and central heating, a newly fitted contemporary shower room and two double bedrooms with sea views. The property also benefits from uPVC double glazed windows and parking for two cars at the rear of the building.

The lease was extended on 25th October 2013 for a further 152 years.

This idyllic home is well suited for those looking for permanent accommodation or a pied-a-terre by the sea.

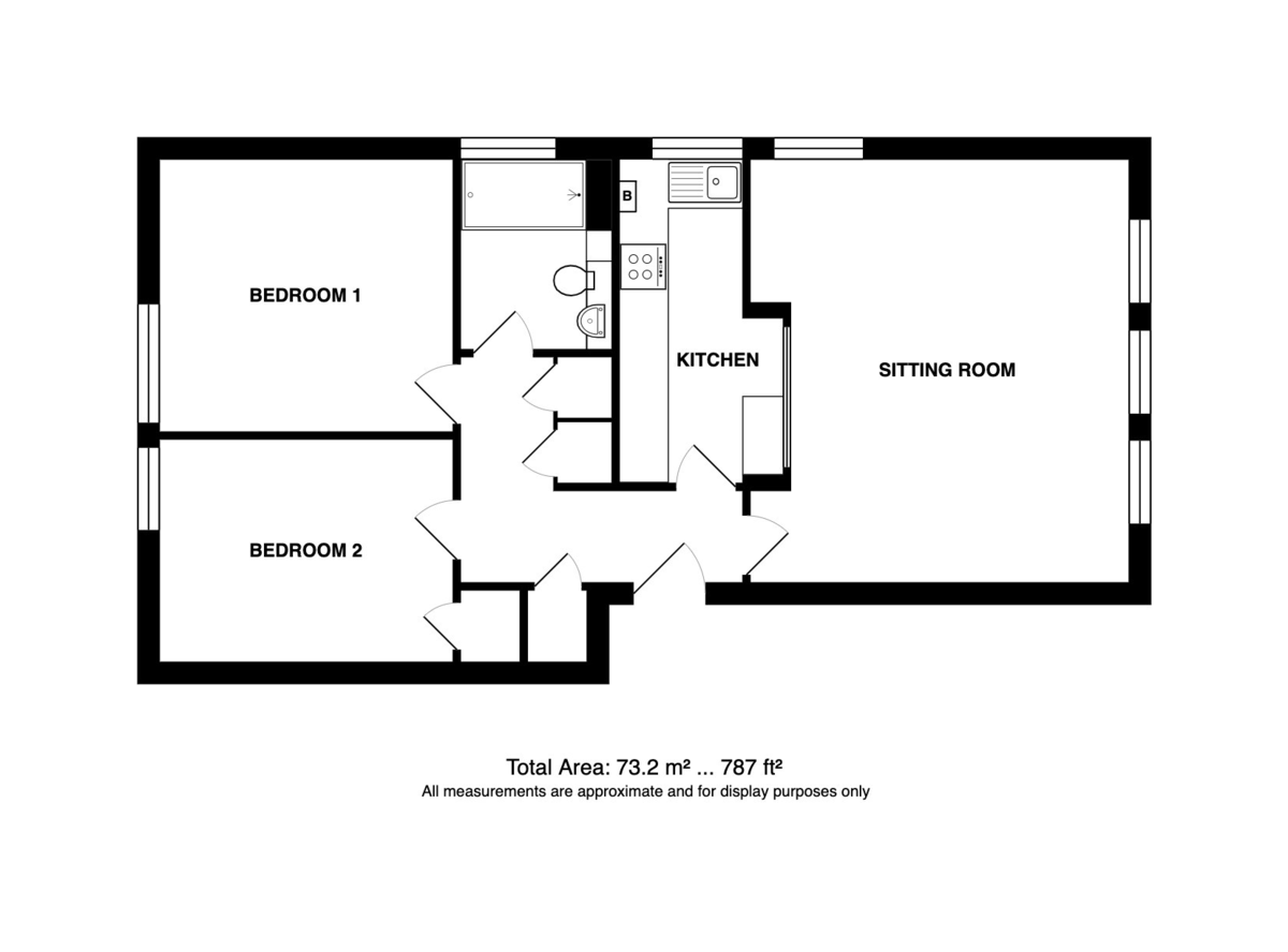
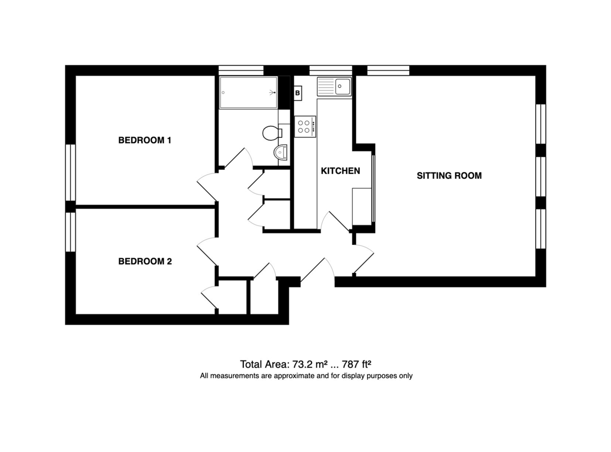
The accommodation comprises;
 

Communal Entrance Hall Front door with secure door entry and stairs to second floor. 

Private Entrance Hall Front door, radiator, cloaks cupboard, two further built in storage cupboards, door and glazed panel to sitting room, telephone and broadband point. 

Sitting Room 17' 9" x 15' 11" reducing to 14'0" (5.41m x 4.85m) A lovely light and airy dual aspect room with uPVC double glazed windows to side aspect offering beautiful views over rooftops to the sea, three further uPVC double glazed windows enjoying a southerly aspect, two radiators, TV aerial point, satellite cables. 

Kitchen 13' 7" x 6' 10" reducing to 5'2" (4.14m x 2.08m) Fitted with a range of cottage style base units with wood effect working surfaces over, matching wall units, electric oven, ceramic hob, canopy extractor over, single bowl/single drainer sink with mixer tap, radiator, tiled splashback, wall mounted gas boiler installed in 2023, providing gas central heating and domestic hot water, side aspect uPVC double glazed windows offering views over rooftops to the sea and Beeston Bump, space and plumbing for a washing machine, borrowed light to sitting room. 

Bedroom 1 12' 4" x 11' 5" (3.76m x 3.48m) Rear aspect uPVC double glazed windows offering a lovely outlook to the sea, radiator. 

Bedroom 2 12' 3" x 9' 4" (3.73m x 2.84m) Rea aspect uPVC double glazed window offering views to the sea between buildings, radiator and built in wardrobe. 

Shower Room 8' 0" x 6' 4" (2.44m x 1.93m) Installed in May 2024 to provide a contemporary back to wall suite with vanity basin and mixer tap, unit beneath, low level WC and concealed cistern, tall storage cupboard, large walk in shower cubicle with mixer shower, drencher head and hose attachment, recessed LED spotlights, heated towel rail, fully tiled walls, laminate floor, side aspect uPVC double glazed window with obscure glass. 

Outside There are communal garden areas to the front and rear of the property and a bin store. Access to the two car parking spaces is via a gravel driveway at the side of the building that leads around to the rear of the property.

 

Services All mains services. 

Local Authority/Council Tax North Norfolk District Council, Holt Road, Cromer, NR27 9EN.
Tel 01263513811.
Tax Band: B 

EPC Rating The Energy Rating for this property is C. A full Energy Performance Certificate available on request. 

Tenure We understand that the property is held under the balance of a 152 year lease from 25th October 2013.
Annual Ground Rent: £50
Annual Service Charge 2024/25: £1,525. 

Leasehold Properties Long residential leases often contain clauses which regulate the activities within individual properties for the benefit of all owners. Such regulated activities often (but not always) include keeping pets, subletting and running a business from home. If you have any specific questions about the lease of this property please ask a member of staff.  

Important Agent Note Intending purchasers will be asked to provide original Identity Documentation and Proof of Address before solicitors are instructed. 

We Are Here To Help If your interest in this property is dependent on anything about the property or its surroundings which are not referred to in these sales particulars, please contact us before viewing and we will do our best to answer any questions you may have. 

Property Ref: 57482_101301035970

Share:

Similar Properties

Weybourne

2 Bedroom Flat | Guide Price £230,000

Enjoy spectacular views of the sea from the comfort of your armchair, in this elegant first floor apartment within a con...

East Beckham

2 Bedroom Cottage | Guide Price £230,000

A charming, brick and flint cottage, with beautiful views of the North Norfolk countryside, situated approximately 3 mil...

Cromer

2 Bedroom Detached Bungalow | Guide Price £230,000

A characterful detached brick and flint single storey cottage with gas central heating, enclosed courtyard garden plus s...

Edgebrook Court, Holway Road

2 Bedroom Apartment | £240,000

Attractively presented upper ground floor apartment offering spacious bright and airy gas centrally heated accommodation...

Holt

3 Bedroom Link Detached House | Guide Price £240,000

A semi-detached family home, nicely situated within walking distance of the town centre, school and Holt Country Park.

Sheringham

2 Bedroom Apartment | Guide Price £240,000

A superbly appointed, generous, second floor apartment with the benefit of far reaching views over Sheringham from two b...

Watsons (Sheringham)

Sheringham, Norfolk, NR26 8RG

01263 823201

How much is your home worth?

Use our short form to request a valuation of your property.

Request a Valuation

Mortgage Calculator

Amount Borrowed: £
Total Amount Repayable: £
Total Monthly Payment: £
©2025 The Guild of Property Professionals. All rights reserved. Terms and Conditions | Privacy Policy | Cookie Policy | Complaints Policy | Members Login
The Guild of Property Professionals Trading Address: 121 Park Lane, London W1K 7AG. GPEA Limited. Registered in England & Wales.  Company No: 02819824.  Registered Office Address: 2 St. Stephen's Court, St. Stephen's Road, Bournemouth, Dorset, England, BH2 6LA.  VAT Registration No: 576 8795 61
Book a Property Valuation Update Cookies Preferences