Cromer

Guide Price
£385,000

3 Bedroom Detached Bungalow for sale in Cromer

3 1
  • NO ONWARD CHAIN
  • Tucked Away Location
  • Sitting Room & Dining Room
  • Generous Conservatory
  • Spacious Kitchen
  • 3 Double Bedrooms
  • Cloakroom & Bathroom
  • Established & Secluded Gardens
  • Garage & Parking
  • Requires Up-dating & Improvement

Location Welcome to Cromer! Nestled on the picturesque North Norfolk coast, Cromer is a vibrant Victorian town renowned for its stunning wide-open beaches and famous Cromer crabs. The town's traditional pier, complete with a theatre, hosts the last remaining Seaside Special Variety Show in the country, offering a unique slice of British seaside heritage.

Cromer boasts a rich fishing heritage, highlighted by its iconic lighthouse and proud tradition of RNLI service. The town offers an excellent mix of small independent shops, supermarkets, and a diverse array of cafes, restaurants, pubs, and holiday accommodations. With convenient train and bus links, you can easily explore the Broads and Norwich, just 23 miles away. This property has the added advantage of only being a few minutes walk away from the railway station ideal for those who want to commute but not use a car.

For your health and well-being, Cromer provides a hospital, doctors and dental surgeries, a library, and the prestigious Royal Cromer Golf Club. Every Saturday, join the local community at Parkrun held at the beautiful National Trust properties of Blickling Hall and Sheringham Park. These events are fantastic for fitness, mental health, and getting to know your new neighbours.

Discover the charm and community spirit of Cromer – the perfect place to call home. 

Description This individual detached bungalow offers generous space, making it perfect for families or those seeking space on one level. Located only a few minutes' walk from the railway station and bus stop, the property stands on a mature, attractive, and secluded plot, providing privacy and tranquility. The south-facing garden at the front is ideal for sun lovers and gardening enthusiasts. Whilst the bungalow requires updating and improvement, it presents a fantastic opportunity to stamp your own mark and create your dream home. 

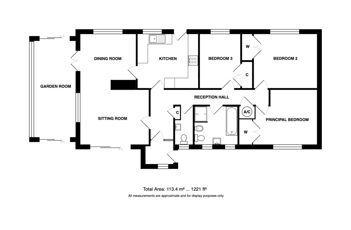
Reception Lobby 5' 6" x 4' 1" (1.68m x 1.24m) (Front Aspect) Telephone point, carpet, ceiling coving, small paned entrance door and side window to:
 

Reception Hall 10' 4" x 4' 4" (3.15m x 1.32m) plus 19' 3" x 2' 10" Two radiators, built in cupboard, arched recess, built-in airing cupboard housing the lagged hot water tank with fitted immersion heater and slatted shelving, telephone point, carpet, ceiling coving. 

Cloakroom 7' 6" x 3' 5" (2.29m x 1.04m) (Front Aspect) With coloured suite comprising of low level WC and wall mounted hand basin with tiled splash back, radiator, carpet, ceiling coving.
 

Sitting Room 13' 3" x 10' 10" (4.04m x 3.3m) (Front & Side Aspect) Feature Brick Fireplace with coal effect gas fire, TV point, radiator, patio doors leading to the front garden, carpet, ceiling coving, archway to: 

Dining Room 10' 11" x 9' 1" min (3.33m x 2.77m) (Side & Rear Aspect) Radiator, carpet, ceiling coving, double glazed French doors to:
 

Conservatory 19' 7" x 8' 3" (5.99m x 2.51m) Double radiator, vinyl flooring, sliding patio doors to the front and rear gardens. 

Kitchen 12' 0" x 10' 7" (3.66m x 3.23m) (Rear Aspect) Comprehensively fitted and comprising inset 1.5 bowl sink unit with mixer tap and cupboard under, space and plumbing for dishwasher, space and plumbing for an automatic washing machine, good range of base cupboard and drawer units together with shelving and work surfaces over, inset four ring gas hob and built under oven, pull out larder unit, adjacent space for an upright fridge freezer, cooker point, part tiled walls, wall mounted Ideal gas fired boiler which serves the central heating and domestic hot water, range of matching wall cupboards include corner shelves with concealed lighting under, part tiled walls, double glazed door to the rear garden, double radiator, door to the reception hall.
 

Principal Bedroom 13' 0" x 10' 11" min (3.96m x 3.33m) (Front Aspect) Plus built in double wardrobe with hanging rail and storage cupboards over, radiator, carpet, ceiling coving.
 

Bedroom 2 12' 7" x 10' 7" (3.84m x 3.23m) (Rear Aspect) Plus built in double wardrobe with hanging rail and storage cupboards over, radiator, carpet, ceiling coving. 

Bedroom 3 10' 7" x 8' 0" (3.23m x 2.44m) (Rear Aspect) Plus built in double cupboard with storage cupboards over, radiator, carpet, access to roof space, ceiling coving. 

Bathroom 8' 6" x 7' 6" (2.59m x 2.29m) (Front Aspect) With pink suite comprising of twin brick panel bath with tiled splash back, pedestal hand basin with tiled splash back, low level WC, bidet, built in tiled shower cubicle, radiator, carpet, ceiling coving. 

Outside The property stands in an attractive and mature plot. The front garden has a southerly aspect with extensive area of lawn with surrounding shaped borders with spring flowers, roses, heathers and perennials together with a variety of shrubs and bushes and established trees. There is also a paved terrace with arch of honeysuckle. A gravel driveway provides off street parking and leads to an attached BRICK BUILT GARAGE 18' 8" x 9' 7" with up and over door, power, light and personal door to the rear. Paved paths to both sides of the bungalow lead to the rear garden which is once again laid to lawn with established laurel hedging, shrubs and bushes. Outside tap and lighting. The whole garden is extremely private and secluded. 

Services All mains services are available. 

Local Authority/Council Tax North Norfolk District Council, Council Offices, Holt Road, Cromer, NR27 9EN, telephone 01263 513811.
Tax band: E
 

EPC Rating The energy rating for this property is D. A full Energy Performance Certificate is available on request. 

Important Agent Note Intending purchasers will be asked to produce original identity documentation and proof of address before Solicitors are instructed. 

We Are Here To Help If your interest in this property is dependent on anything about the property or its surroundings which are not referred to in these sale particulars, please contact us before viewing and we will do our best to answer any questions you may have. 

Property Ref: 57482_101301039070

Share:

Similar Properties

Sheringham

2 Bedroom Detached Bungalow | Guide Price £385,000

Vendor has found and is very motivated to sell - An immaculately presented, extensively refurbished, two bedroom detache...

West Runton

3 Bedroom Detached House | Offers Over £380,000

A beautifully appointed, three bedroom detached house situated in the heart of this picturesque, sought after coastal vi...

Weybourne

2 Bedroom Barn Conversion | Offers Over £375,000

A charming two bedroom character barn conversion, enjoying delightful sea views over the rear garden to the coastline, c...

Matlaske, Holt

3 Bedroom Detached House | Offers in excess of £390,000

Situated in a small village in the beautiful North Norfolk countryside, this detached house, built in the 1990's is in a...

Mundesley

4 Bedroom Detached House | Guide Price £400,000

Set on a generous elevated corner plot this substantial four bedroom detached family home dating from the 1990's require...

West Runton

3 Bedroom Detached Bungalow | Guide Price £400,000

A detached bungalow with far more accommodation than a cursory glance at the exterior would suggest, with a mature South...

Watsons (Sheringham)

Sheringham, Norfolk, NR26 8RG

01263 823201

How much is your home worth?

Use our short form to request a valuation of your property.

Request a Valuation

Mortgage Calculator

Amount Borrowed: £
Total Amount Repayable: £
Total Monthly Payment: £
©2026 The Guild of Property Professionals. All rights reserved. Terms and Conditions | Privacy Policy | Cookie Policy | Complaints Policy | Members Login
The Guild of Property Professionals Trading Address: 121 Park Lane, London W1K 7AG. GPEA Limited. Registered in England & Wales.  Company No: 02819824.  Registered Office Address: 2 St. Stephen's Court, St. Stephen's Road, Bournemouth, Dorset, England, BH2 6LA.  VAT Registration No: 576 8795 61
Book a Property Valuation Update Cookies Preferences