Sheringham

Guide Price
£375,000
SSTC
This property listing is now SSTC

2 Bedroom Detached House for sale in Sheringham

2 1
  • NO ONWARD CHAIN
  • Character features
  • Sitting room with corner fireplace
  • Dining Room
  • Bespoke kitchen
  • Downstairs bathroom
  • Ground floor bedroom
  • First floor bedroom and study area
  • Off-road parking
  • Some updating required

Location Sheringham is a picturesque town nestled in an Area of Outstanding Natural Beauty on the stunning North Norfolk coast, perfectly positioned between the sea and the enchanting Pretty Corner woods. Known for its bustling atmosphere, Sheringham boasts a vibrant town centre with a fantastic range of independent shops, well-known brands, and a Tesco supermarket offering convenient short-term parking. Excellent bus and rail links provide easy access to Norwich, the lively cultural hub just 27 miles south, the charming Georgian town of Holt, 6 miles away, and Cromer, a delightful Victorian seaside town 4 miles along the coast.

A highly sought-after destination for both holidaymakers and retirees, the town offers exceptional coastal and woodland walks, with Sheringham beach proudly holding Blue Flag status. The beach is complemented by a wide promenade that stretches the length of the town, ideal for seaside strolls.

Sheringham is well-equipped with modern amenities including a state-of-the-art health centre, dental services, theatre, and library. The Reef Leisure Centre and the town's renowned 18-hole cliff-top golf course offer further opportunities for recreation. Throughout the year, Sheringham hosts a variety of popular events such as the Viking Festival, Crab and Lobster Festival, Carnival, and the celebrated 1940s Weekend, ensuring there's always something to enjoy.

Sheringham combines coastal charm, natural beauty, and a warm community spirit, making it an exceptional place to visit or call home. 

Description This charming, un-spoilt 1920's villa, is situated on a private road in a sought-after area close to Beeston Common and within a short walk of the town centre and train station.

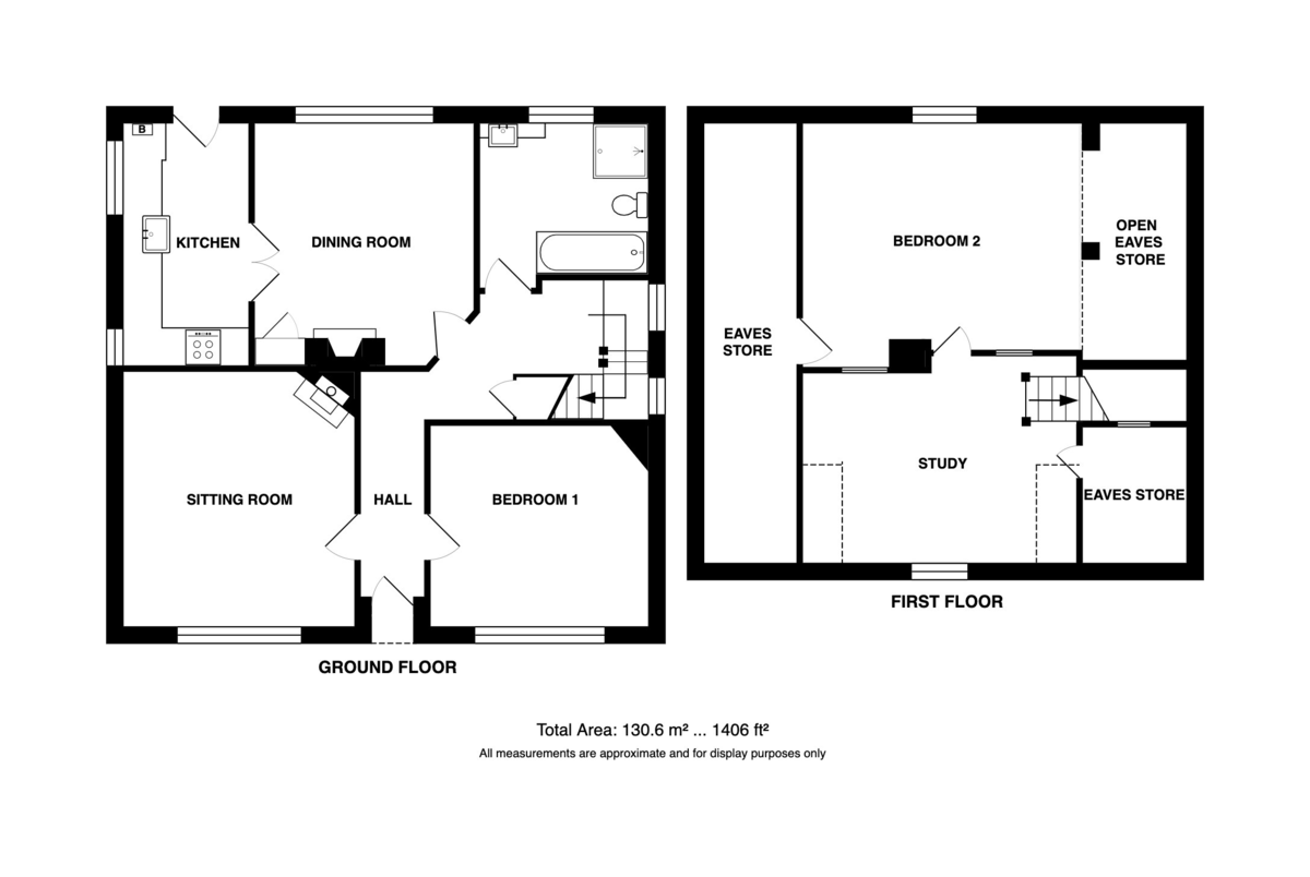
The accommodation is accessed via a covered porch into a welcoming entrance hall, off which is a sitting room with corner fireplace, dining room that flows into a bespoke, hand-built kitchen, a ground floor bedroom and a bathroom. Upstairs, a spacious landing, perfect for a study or hobby area, leads to a double bedroom with eaves storage.

The villa boasts a generous east-facing rear garden with mature planting, an attractive front garden providing excellent screening from the road, and ample driveway parking leading to a large block-built store. Period features such as tiled fireplaces, exposed wooden floors, picture and dado rails, stairs, and sash windows add to its timeless appeal.

While the property would benefit from some updating, this is reflected in the asking price. Offered with no onward chain, an internal viewing is highly recommended to fully appreciate all that this delightful home has to offer.

The accommodation comprises:

Covered porch with composite front door to: 

Entrance Hall Stairs to first floor with under stairs storage cupboard, radiator, dado rail, picture rail, part-panelled walls, two windows to side aspect, door to; 

Sitting Room 13' 11" x 12' 7" (4.24m x 3.84m) A light and airy room enjoying a westerly aspect with original tiled corner fireplace including painted wooden mantel over and slate hearth, housing a wood burning stove, two sash windows to front aspect, two radiators, TV aerial point and satellite cables, exposed wooden floors, picture rail.  

Dining Room 13' 2" reducing to 11'11" x 13' 7" (4.01m x 4.14m) Two secondary glazed sash windows to East aspect overlooking the rear garden, built in shelved storage cupboard, tiled fireplace with brick hearth and wooden mantle over housing gas flame effect fire, picture rail, Dado rail, exposed wooden floor, radiator, part glazed double doors; 

Kitchen 13' 1" x 6' 10" (3.99m x 2.08m) Bespoke, hand-built wooden kitchen units with shelves and drawers, wood etched tiled working surfaces over, single oven with gas hob, Royal Doulton sink with worktop mounted mixer tap over, space and plumbing for a washing machine, space for a fridge freezer, tiled splashback, radiator, wall-mounted gas boiler providing central heating and domestic hot water, two high level windows to north aspect, uPVC part glazed door to rear garden. 

Bedroom 1 11' 10" x 10' 11" (3.61m x 3.33m) Two secondary glazed sash windows to front aspect, corner feature fireplace with marble hearth, radiator, picture rails, bathroom. 

Bathroom 9' 0" x 9' 0" reducing to 8'3" (2.74m x 2.74m) Fitted with a metal bath with mixer tap and shower attachment, low level WC, washbasin with taps and cupboard beneath with fixed, tiled table adjacent, tiled shower cubicle with pivot door, matching side panel and Mira mixer shower over, wall-mounted wooden medicine cabinet with glazed door, exposed timber floor, tiled spashback, picture rails, pine-panelled ceiling, sash windows overlooking the rear garden, radiator. 

First Floor  

Landing/Study Area 14' 0" x 11' 5" reducing to 10'4" (4.27m x 3.48m) uPVC double glazed window to West aspect, radiator, sloping pine-panelled painted sloping ceilings, door to eaves store, part glazed door to bedroom two. 

Bedroom 2 14' 1" x 13' 3" reducing to 12'4" (4.29m x 4.04m) Plus open eaves storage area to one side and eaves cupboard to the other, uPVC double glazed window to East aspect offering lovely views over the garden to Beeston Hill, exposed wooden floor, radiator, vaulted ceiling, two attractive stained glass windows to study. 

Outside The property is approached via a concrete driveway, offering off-road parking and a matching path leading to the front door. Adjacent to the driveway is a lawn, edged with mature shrubs that provide year-round colour and interest, as well as excellent screening from the road. The driveway extends down the side of the property to a large block-built storage shed with a corrugated asbestos roof, door, and window.

Next to this is a tall gate with a pergola and trellis, leading into the east-facing rear garden. This garden is mainly laid to lawn and features a variety of mature shrubs, an apple tree, and roses, all providing year-round colour and interest. It is bordered by fencing and hedging and includes a fig tree and a mature grapevine. There is a pleasant seating area that enjoys sunshine for most of the day. This generous garden is a haven for wildlife. 

Services All mains services. 

EPC Rating The Energy Rating for this property is D. A full Energy Performance Certificate available on request. 

Local Authority/Council Tax North Norfolk District Council, Holt Road, Cromer, NR27 9EN.
Tel: 01263513811.
Tax Band: C

 

Important Agent Note Intending purchasers will be asked to provide original Identity Documentation and Proof of Address before solicitors are instructed.

Please note, the photographs were taken when the property was fully furnished; it has now been cleared in readiness of a sale going through. 

We Are Here To Help If your interest in this property is dependent on anything about the property or its surroundings which are not referred to in these sales particulars, please contact us before viewing and we will do our best to answer any questions you may have.

The price quoted for the property does not include Stamp Duty or Title Registration fees, which purchasers will normally pay as part of the conveyancing process. Please ask us if you would like assistance calculating these charges. 

Property Ref: 57482_101301039241

Share:

Similar Properties

West Runton

2 Bedroom Detached Bungalow | £375,000

A beautifully presented bungalow, offering surprisingly spacious accommodation situated in the centre of this popular co...

Sheringham

3 Bedroom End of Terrace House | Guide Price £375,000

A charming brick and flint character home, situated in the centre of town, within a short stroll of the shops, restauran...

Beeston Regis

3 Bedroom Detached Bungalow | Guide Price £375,000

A spacious detached bungalow, built in the 1970's and situated on a generous plot with the benefit of a detached garage...

Cromer

3 Bedroom Detached Bungalow | Guide Price £380,000

A detached bungalow with a sunny south-west facing rear garden, situated in an elevated position on the outskirt of Crom...

Sheringham

2 Bedroom Detached Bungalow | Guide Price £385,000

Vendor has found and is very motivated to sell - An immaculately presented, detached bungalow with landscaped garden and...

West Runton

3 Bedroom Detached House | Guide Price £390,000

A beautifully appointed, detached house situated in the heart of this picturesque, sought after coastal village, within...

Watsons (Sheringham)

Sheringham, Norfolk, NR26 8RG

01263 823201

How much is your home worth?

Use our short form to request a valuation of your property.

Request a Valuation

Mortgage Calculator

Amount Borrowed: £
Total Amount Repayable: £
Total Monthly Payment: £
©2025 The Guild of Property Professionals. All rights reserved. Terms and Conditions | Privacy Policy | Cookie Policy | Complaints Policy | Members Login
The Guild of Property Professionals Trading Address: 121 Park Lane, London W1K 7AG. GPEA Limited. Registered in England & Wales.  Company No: 02819824.  Registered Office Address: 2 St. Stephen's Court, St. Stephen's Road, Bournemouth, Dorset, England, BH2 6LA.  VAT Registration No: 576 8795 61
Book a Property Valuation Update Cookies Preferences