Crosby Street, Darlington, DL3

Offers in region of
£25,000
SSTC
This property listing is now SSTC

3 Bedroom Plot for sale in Darlington

2 3 1
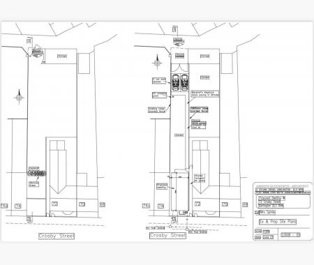
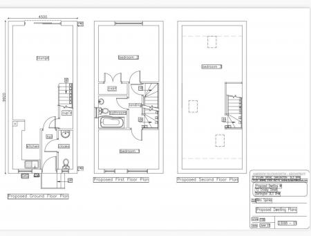
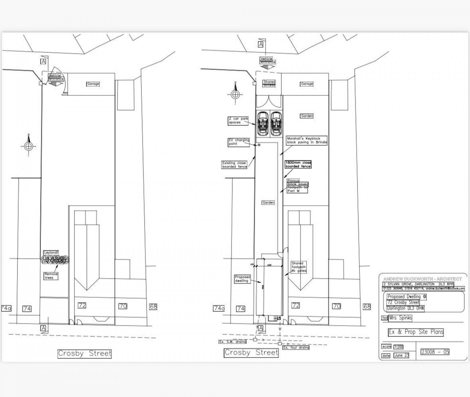
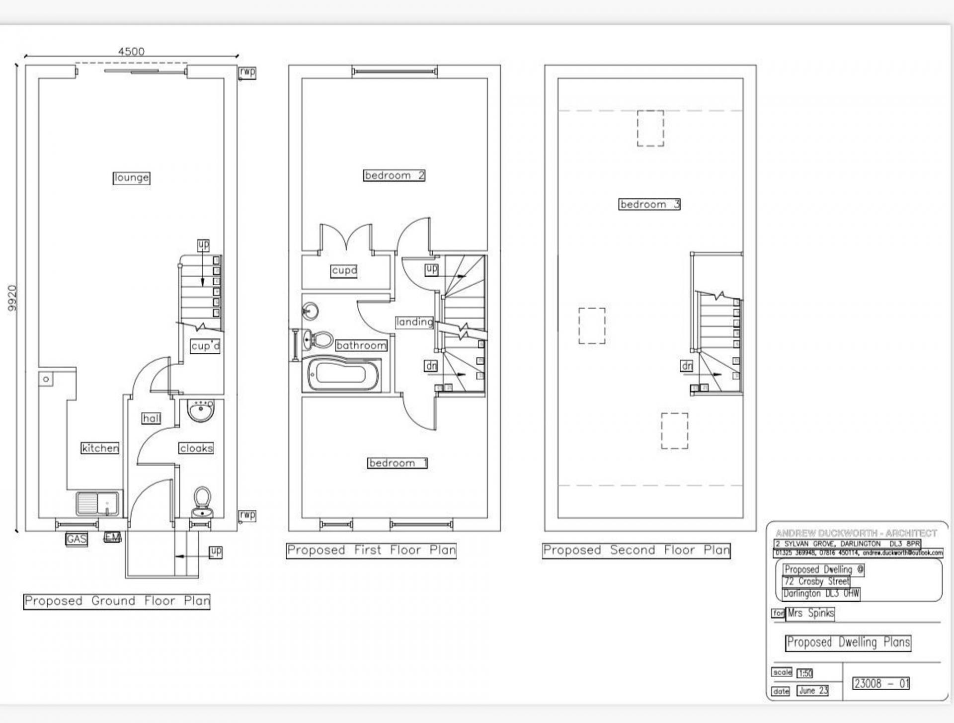
  • Planning permission for a three-bedroom townhouse
  • A Rare Opportunity in Darlington
  • Freehold
  • Crosby Street Building Plot

Development Opportunity

Below is the link to the full planning application.

https://publicaccess.darlington.gov.uk/online-applications/applicationDetails.do?keyVal=RXQ4VDFPIYM00&activeTab=summary

https://publicaccess.darlington.gov.uk/online-applications/applicationDetails.do?keyVal=STZIL9FPHN000&activeTab=summary

Residential building plot for one property

Planning permission approved for a three-bedroom detached townhouse

A Rare Opportunity in Darlington!

Situated in Darlington, this is your chance to secure a fantastic residential building plot with planning permission already in place for a three-bedroom townhouse. Whether you’re an investor, developer, or someone looking to create their dream home, this plot offers incredible potential in a popular location.

Details of the planning application can be found online at: Darlington Planning Portal

Why Choose Darlington?

This vibrant market town is renowned for its excellent transport links, including direct rail connections, top-rated schools, and a thriving community atmosphere. From its historic charm to modern amenities, Darlington is the perfect location to build a home that offers convenience, comfort, and long-term value.

Viewing Highly Recommended.

For further details or to arrange a viewing, please contact:

Ellie Angus, Property Consultant - 01325 728337

Tenure: Freehold

We are informed that the land is Freehold, but interested purchasers are advised to confirm this with their solicitors. Please note that the land will require registration.

Important Information

  • This is a Freehold property.
  • This Council Tax band for this property is: E

Property Ref: e27b857b-3e76-4c82-bef4-f73c97b76df8

Share:

Similar Properties

Haven Gardens, Darlington, DL1

1 Bedroom Apartment | Offers in excess of £68,600

Second Floor, One Bedroom Apartment Situated in the Eastbourne area of Darlington Close to all Local Amenities and Trans...

Hedley Close, Newton Aycliffe, DL5

3 Bedroom Semi-Detached House | Offers in excess of £70,000

Well-presented three-bedroom end terrace with spacious lounge, kitchen/diner, downstairs WC, modern bathroom, no onward...

Encombe Terrace, Ferryhill, DL17

3 Bedroom Terraced House | Offers in excess of £70,000

Spacious 3-bed mid-terrace in Ferryhill, near amenities, school, and A1. Lounge, dining room, kitchen, bathroom, attic,...

Northgate Estate Agents (Newton Aycliffe)

Suite 3, Greenwell Road, Newton Aycliffe, Durham, DL5 4DH

01325 315 869

How much is your home worth?

Use our short form to request a valuation of your property.

Request a Valuation

Mortgage Calculator

Amount Borrowed: £
Total Amount Repayable: £
Total Monthly Payment: £
©2026 The Guild of Property Professionals. All rights reserved. Terms and Conditions | Privacy Policy | Cookie Policy | Complaints Policy | Members Login
The Guild of Property Professionals Trading Address: 121 Park Lane, London W1K 7AG. GPEA Limited. Registered in England & Wales.  Company No: 02819824.  Registered Office Address: 2 St. Stephen's Court, St. Stephen's Road, Bournemouth, Dorset, England, BH2 6LA.  VAT Registration No: 576 8795 61
Book a Property Valuation Update Cookies Preferences