South Town, Dartmouth

Guide Price
£1,395,000

4 Bedroom Not Specified for sale in Dartmouth

2 4 4
  • Substantial Grade II Listed House
  • Stunning River Dart Views
  • Gentle Walking Distance Of The Town Centre
  • Home Office Potential
  • 4/5 Bedrooms, 2 En Suites
  • Elegant Well Proportioned Rooms
  • Pretty Low Maintenance Courtyard Garden
  • Garage Nearby Available By Separate Negotiation
  • Mains Electricity, Gas, Water & Drainage
  • Gas Fired Central Heating

An absolutely beautiful, Grade II Listed, double-fronted house situated within a short pleasant walk of the town centre, with a lovely terraced garden and stunning River Dart views.

The finish throughout has created a warm and homely ambience, and the property offers the opportunity to enjoy the wonderful lifestyle available living in this popular South Hams riverside town. The house has been lovingly and sympathetically renovated by the current owners and now represents a wonderful light filled, charming period home with stunning views across the River Dart.

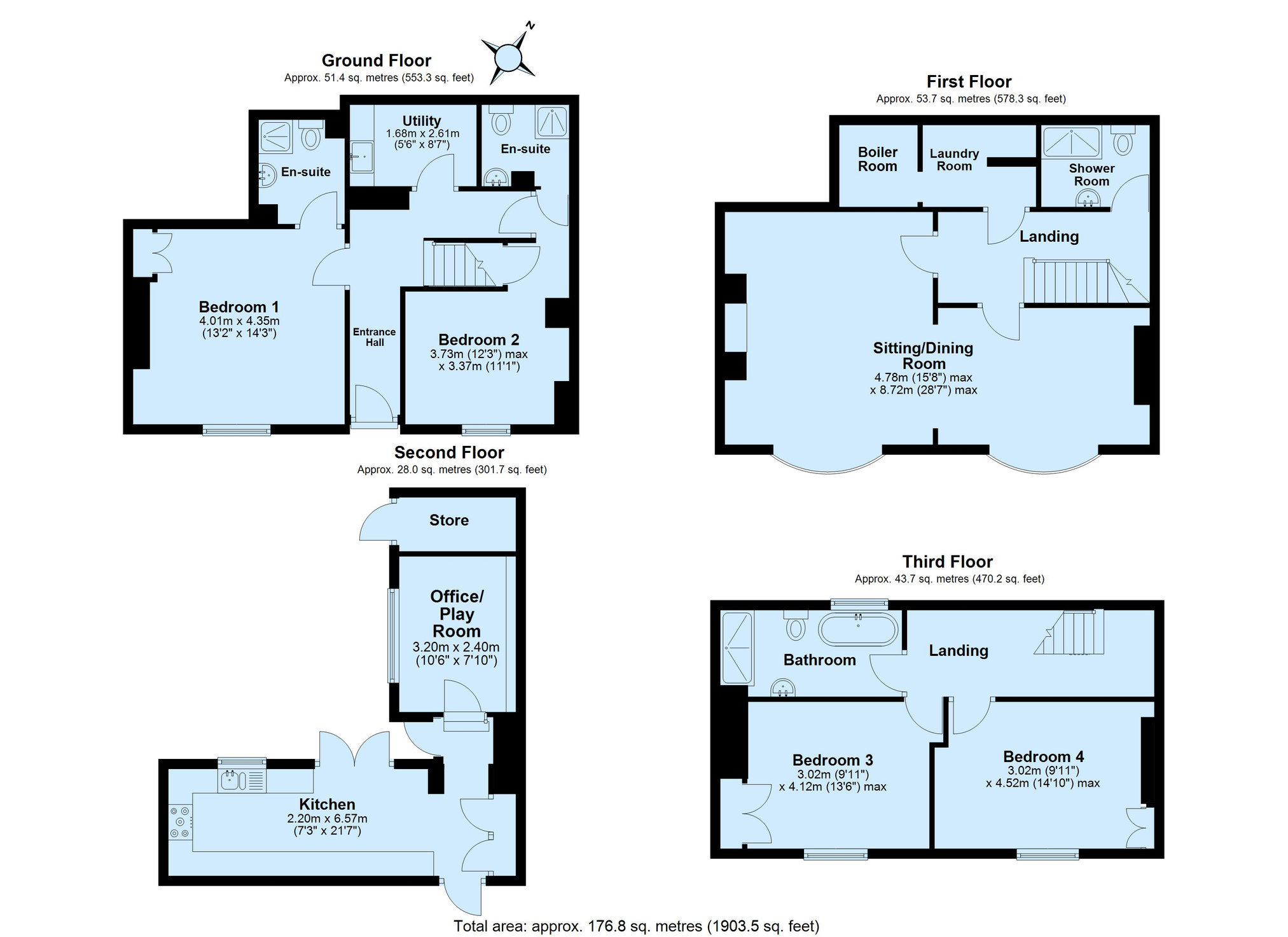
The beautifully proportioned accommodation is arranged over four floors with wonderful uninterrupted river views from each floor and all principal rooms. This graceful home is a real gem, with charming spacious rooms and an abundance of exquisite period features.

On the ground floor is a welcoming entrance hall, two double en-suite bedrooms, a useful utility room and there is a cellar accessed from Bedroom 2. The main living accommodation is on the first floor with a most elegant open-plan living room with a sitting room area and a dining area both with a large bay window and a pretty feature fireplace in the sitting room. Completing this floor is the laundry room and a shower room.

On the second floor is an office/playroom and a store, plus a well fitted and equipped kitchen with a comprehensive range of wall and base units with integrated appliances and double doors leading out to the rear paved terrace. There are two further double bedrooms together with a family bathroom on the second floor.

Outside to the rear is a charming low maintenance garden which provides plenty of opportunity to enjoy alfresco dining and the lovely views.

There is a garage nearby available by separate negotiation.

Dartmouth is a beautiful waterside town, particularly well known as a sailing centre with excellent facilities for yachtsmen and its famous annual Royal Regatta. The town provides a good range of shops, restaurants and galleries and is surrounded by stunning countryside and a short drive from some of the most beautiful beaches in the area. There are several excellent golf courses within easy reach and railway links to London, Paddington, can be made locally at Totnes, about 13 miles to the north. Access to the A38 Devon Expressway at Buckfastleigh is about 19 miles away.

Tenure
Freehold

Services
Mains electricity gas water and drainage. Gas fired central heating

Viewing
Strictly by appointment with the Sole Agents, Marchand Petit, Dartmouth. Telephone: 01803 839190

Fixtures & Fittings
All items in the written text of these sales particulars are included in the sale. Other items are expressly excluded, regardless of inclusion in any photograph. Purchasers must satisfy themselves that any equipment included in the sale of the property is in satisfactory working order.

Important Information

  • This is a Freehold property.

Property Ref: 1357_TSJ725125

Share:

Similar Properties

Yealm Road, Newton Ferrers

4 Bedroom Detached House | Guide Price £1,375,000

An exceptionally well presented property completed to an exceptionally high standard throughout, with panoramic and sout...

Edwards Close, Thurlestone

5 Bedroom Detached House | Guide Price £1,360,000

This impressive five-bedroom detached home is located within the sought-after development of The Mead Estate. The proper...

Thurlestone, Kingsbridge, Devon, TQ7

4 Bedroom Link Detached House | Guide Price £1,350,000

An outstanding beautifully presented detached Grade II listed cottage, set in a secluded private position in the middle...

Lower Contour Road, Kingswear

4 Bedroom Detached House | Guide Price £1,450,000

A wonderful contemporary and beautifully presented detached home which enjoys absolutely gorgeous views of Kingswear Cre...

Above Town, Dartmouth

5 Bedroom Detached House | Guide Price £1,500,000

An elegant and imposing detached period home situated in a wonderful elevated position within a short walk of the town c...

Lydia Bridge, Dartmoor National Park

6 Bedroom Detached House | Guide Price £1,500,000

An exceptional country house within the Dartmoor National Park, believed to be early 1800s. This substantial property is...

Marchand Petit (Kingsbridge)

94 Fore Street, Kingsbridge, Devon, TQ7 1PP

01548 857 588

How much is your home worth?

Use our short form to request a valuation of your property.

Request a Valuation

Mortgage Calculator

Amount Borrowed: £
Total Amount Repayable: £
Total Monthly Payment: £
©2025 The Guild of Property Professionals. All rights reserved. Terms and Conditions | Privacy Policy | Cookie Policy | Complaints Policy | Members Login
The Guild of Property Professionals Trading Address: 121 Park Lane, London W1K 7AG. GPEA Limited. Registered in England & Wales.  Company No: 02819824.  Registered Office Address: 2 St. Stephen's Court, St. Stephen's Road, Bournemouth, Dorset, England, BH2 6LA.  VAT Registration No: 576 8795 61
Book a Property Valuation Update Cookies Preferences