Sydney Road Walmer

Guide Price
£595,000

4 Bedroom Detached House for sale in Deal

4 4 2
  • No onward chain
  • Popular location
  • Close to station
  • Spacious & versatile accommodation
  • Potential to extend into loft
  • West facing garden
  • Off-road parking

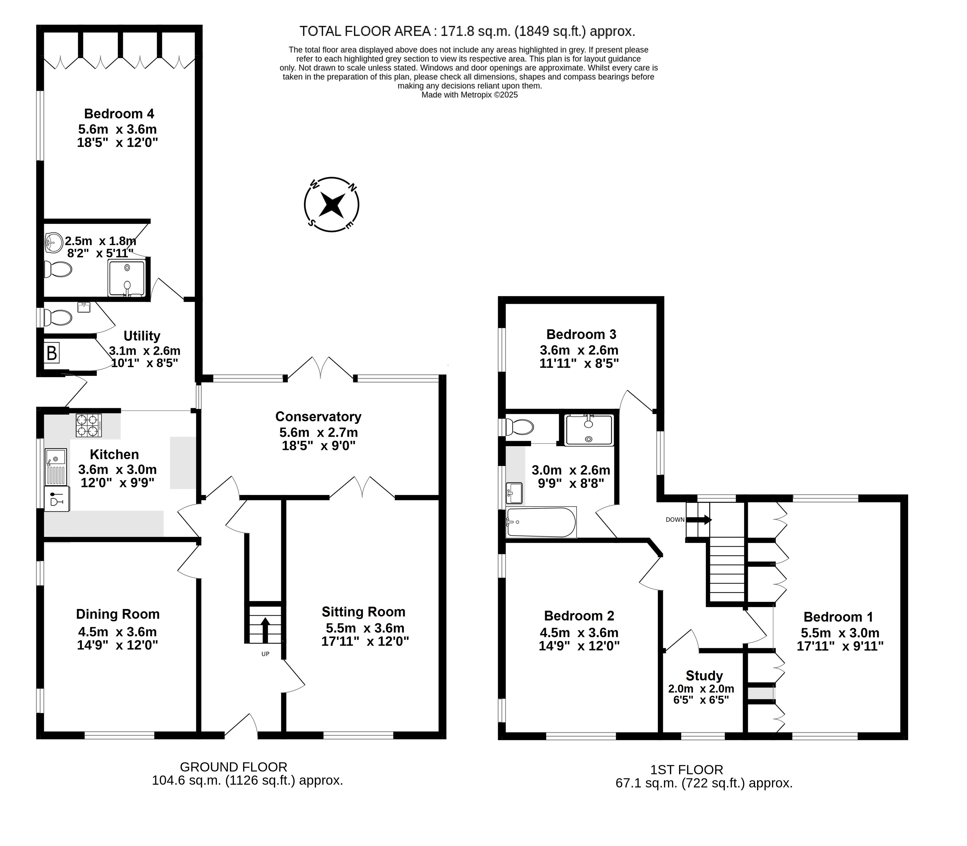
This handsome double fronted detached family home, was built by the reputable Denne builders in the early 1950's and has been subsequently extended to provide spacious and versatile accommodation of approximately 1,850 sq. ft.

It is situated in a popular residential area of Upper Walmer, within walking distance of Walmer station and local amenities.

The property has the benefit of flexible ground floor living, ideal for those seeking single-storey accommodation for an elderly relative or guest suite if required.

On the ground floor, the accommodation offers a welcoming reception hall, two principal reception rooms to the front, a fitted kitchen and a conservatory/dining area, together with a shower room, guest WC and an additional ground floor bedroom.

The main living room measures just under 18ft in length and connects directly to the conservatory, creating a bright and sociable space with access to the rear garden.

On the first floor, all rooms are accessed from a spacious landing area, with further potential to extend into the loft space (subject to the usual consents).

There are three double bedrooms and a study, together with a generous family bathroom. Two of the larger bedrooms are dual aspect, with the principal bedroom benefitting from built-in wardrobes and enjoying views over the rear garden.

OUTSIDE

Externally, the property enjoys a low maintenance rear garden with paved and decked areas, offering a sunny westerly aspect ideal for afternoon and evening sun. To the front, the property is nicely set back from the road and features off-road parking and mature shrub borders.

///what3words
carpets.scariest.protect

For full details, please download our property web brochure document.

Viewings: Strictly by appointment with the agents.

Identification checks: Should a purchaser(s) have an offer accepted on a property marketed by Bright & Bright, they will need to undertake an identification check. This is done to meet our obligation under Anti Money Laundering Regulations (AML) and is a legal requirement. We use a specialist third party service to verify your identity. The cost of these checks is £30 inc. VAT per purchaser, which is paid in advance, when an offer is agreed and prior to a sales memorandum being issued. This charge is non-refundable under any circumstances.

A handsome double fronted detached Denne built family home, with versatile accommodation, in a popular location.

Important Information

  • This is a Freehold property.
  • This Council Tax band for this property is: E
  • EPC Rating is D

Property Ref: BRB_BRB250296

Share:

Similar Properties

The Marina Deal

3 Bedroom Semi-Detached House | Guide Price £595,000

A charming, rarely available three-storey period property, with direct sea views and beach access.

Griffin Street Deal

3 Bedroom End of Terrace House | Guide Price £565,000

A deceptively spacious period townhouse situated in the sought after Conservation Area.

Archery Square Walmer

3 Bedroom Terraced House | Offers in excess of £550,000

8 Archery Square is a handsome and substantial mid terrace period house occupying a prominent position on the “white sid...

Dover Road Walmer

4 Bedroom Detached House | Guide Price £625,000

A detached family home on a generous westerly facing plot in a highly sought after Walmer location, with potential to ex...

London Road Deal

5 Bedroom Semi-Detached House | Guide Price £625,000

An attractive semi-detached period property in popular residential location, offering flexible accommodation.

Blenheim Road Deal

4 Bedroom Semi-Detached House | Guide Price £645,000

A well presented Victorian property in central location, with off-street parking and garage.

Bright & Bright (Deal)

29 Victoria Road, Deal, Kent, CT14 7AS

01304 374071

How much is your home worth?

Use our short form to request a valuation of your property.

Request a Valuation

Mortgage Calculator

Amount Borrowed: £
Total Amount Repayable: £
Total Monthly Payment: £
©2026 The Guild of Property Professionals. All rights reserved. Terms and Conditions | Privacy Policy | Cookie Policy | Complaints Policy | Members Login
The Guild of Property Professionals Trading Address: 121 Park Lane, London W1K 7AG. GPEA Limited. Registered in England & Wales.  Company No: 02819824.  Registered Office Address: 2 St. Stephen's Court, St. Stephen's Road, Bournemouth, Dorset, England, BH2 6LA.  VAT Registration No: 576 8795 61
Book a Property Valuation Update Cookies Preferences