Homelands, Lime Lane, Oakwood, Derby

Offers in region of
£725,000
SSTC
This property listing is now SSTC

4 Bedroom Detached House for sale in Derby

2 4 3
  • Extremely Spacious & Superbly Appointed Accommodation
  • Highly Versatile Living Space
  • Large Plot Measuring Approximately One Third of an Acre
  • Extensive Driveway & Two Detached Double Garages
  • Impressive Rear Garden & Views
  • Superb Entrance Hall with Spacious Sitting Room off
  • Fabulous Open Plan Living Kitchen with Utility
  • Two Ground Floor Bedrooms & Bathroom
  • Two First Floor Bedrooms with En-Suites
  • Rarity on the Market

This is an exciting and rare opportunity to acquire a substantially extended and greatly improved, chalet style residence offering wonderfully appointed accommodation over two floors. The property occupies a fabulous location on Lime Lane affording field views to the front.

The property sits on a large plot measuring just under one third of an acre with a large frontage incorporating a driveway which extends down the side of the property and leads to two separate detached double garages. To the rear of the property is a very impressive rear garden with seating areas, lawn, well-stocked borders, mature trees and shrubs. There is also a small orchard with productive fruit trees.

Internally, the property benefits from an air source heat pump and is double glazed and first impressions are a spacious entrance hall with feature high ceiling and staircase to first floor with oak and glass balustrade, spacious sitting room with feature bay window, stunning open plan living kitchen comprising dining area, lounge area with bifold doors and high specification fitted kitchen with utility off, two ground floor bedrooms and a well-appointed bathroom. The first floor features a semi-galleried landing with views down to the hallway which leads to two generous double bedrooms both having Juliet balconies overlooking the garden and both having superbly appointed en-suite shower rooms.

The Location - The property's location on Lime Lane offers easy access into neighbouring open countryside with some delightful walks. It also provides convenient access into Derby City centre. Locally there is a parade of shops in Oakwood, which offers a varied range of amenities including leisure centre, primary school and a regular bus service into Derby. There are easy access to transport links including the A38 and A52. Other places of interest nearby include golf courses at Morley Hayes, Horsley Lodge and Breadsall.

Accommodation -

Ground Floor -

Entrance Hall - A composite panelled and double glazed entrance door with double glazed sidelights provides access to magnificent entrance hall with feature high ceiling, stylish staircase to first floor with glass and oak balustrade, recessed ceiling LED spotlighting, contemporary floor to ceiling radiator, feature tile floor and two sealed unit double glazed Velux windows to front.

Sitting Room - With two stylish floor to ceiling central heating radiators, recessed ceiling LED spotlighting and double glazed bow bay window to front offering fabulous views.

Stunning Open Plan Living Kitchen -

Dining Area - Having feature tile floor with underfloor heating, central heating radiator, recessed ceiling LED spotlighting and double glazed window to side.

Lounge Area - With continuation of the feature tiled floor with underfloor heating, recessed ceiling LED spotlighting and bifold doors to rear garden.

High Specification Fitted Kitchen - Comprising an extensive range of Silestone preparation surfaces with matching upstands, breakfast island featuring wood effect breakfast bar with LED lighting, inset one and a quarter stainless steel sink unit with mixer tap, two tone storage cupboards with white finish and wood grain effect cupboard and drawers, inset Neff four plate induction hob with extractor hood over, built-in Neff hide and slide oven, combination oven/microwave, warming drawer, fridge freezer, dishwasher, stylish glass shelves again with LED lighting, tile floor with underfloor heating, recessed ceiling LED spotlighting, double glazed window to rear overlooking garden and door to utility room.

Utility Room - Featuring Silestone preparation surfaces with matching upstands, inset stainless steel sink unit with mixer tap, fitted cupboards, appliance spaces suitable for washing machine and tumble dryer, pressurised hot water cylinder, tile flooring, recessed ceiling LED spotlighting, double glazed window to side and panelled and double glazed door to garden.

Bedroom Three - Having a central heating radiator, an extensive range of shaker style wardrobes, recessed ceiling LED spotlighting and double glazed window to front.

Bedroom Four/Office - Having a range of storage furniture with shelving, central heating radiator, oak flooring, recessed ceiling LED spotlighting and double glazed window to side.

Bathroom - Superbly appointed and partly tiled with a white suite comprising low flush WC, vanity unit with wash handbasin and drawers beneath, panelled bath with mixer tap, chrome towel radiator, recessed ceiling LED spotlighting and roof light.

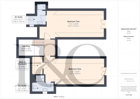
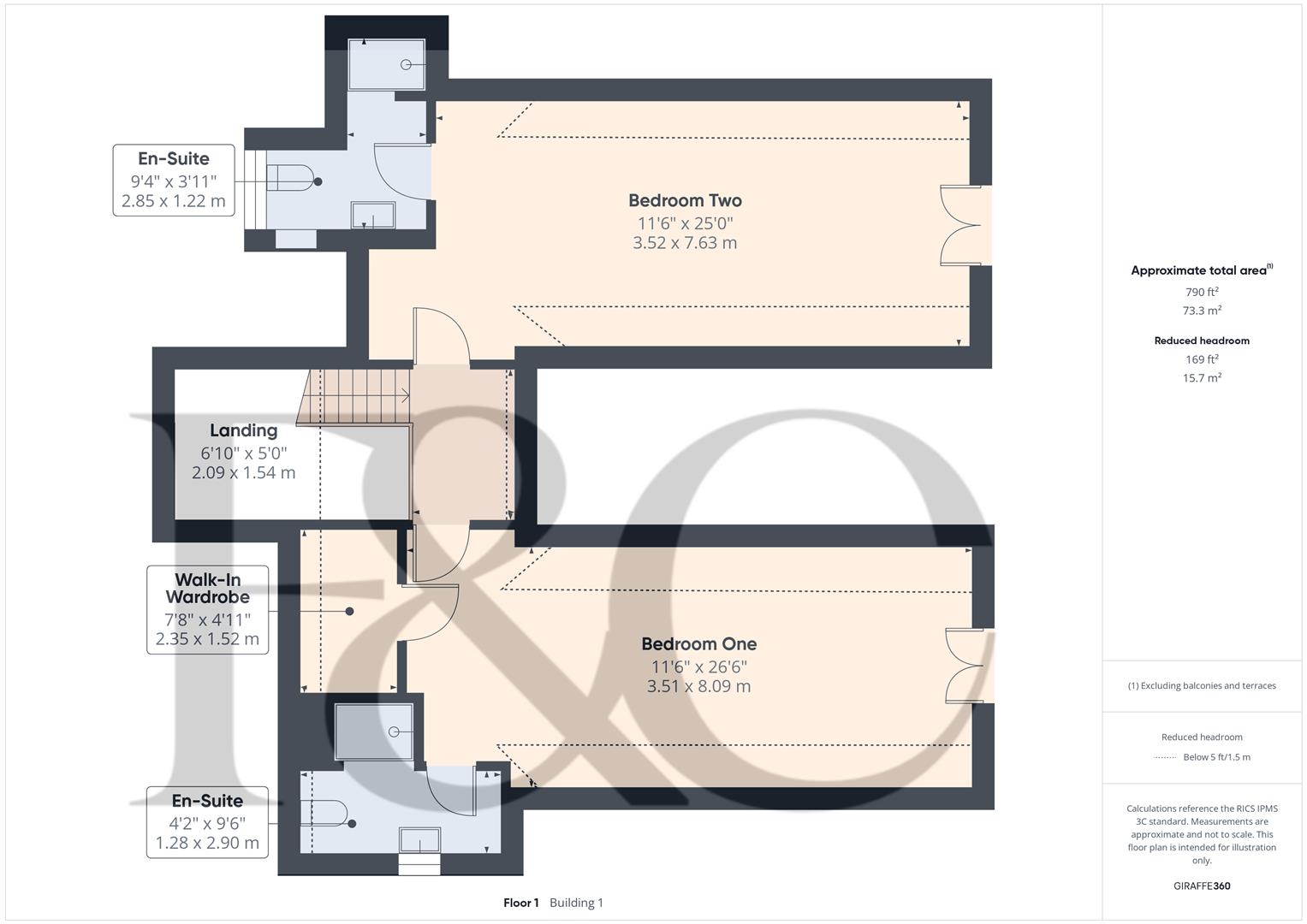
First Floor Landing - A feature semi-galleried landing with continuation of the oak glass balustrade with views down to the hallway.

Double Bedroom One - An extremely spacious room with central heating radiator, TV aerial point, recessed ceiling LED spotlighting, four sealed unit double glazed windows, UPVC double glazed French doors offering fabulous views over the garden and incorporating a glass Juliet balcony and door to walk-in wardrobe.

Superbly Appointed En-Suite Shower Room - Featuring a tiled floor with underfloor heating and appointed with a white suite with low flush WC, vanity unit with wash handbasin and drawer beneath, shower cubicle with digital Aqualisa shower, chrome towel radiator, shaver point, recessed ceiling LED spotlighting and double glazed window to side.

Double Bedroom Two - An extremely spacious room with central heating radiator, double wardrobe with sliding doors, recessed ceiling LED spotlighting, four sealed unit double glazed Velux windows and UPVC double glazed French doors overlooking the garden and incorporating glass Juliet balcony.

Superbly Appointed En-Suite Shower Room - Appointed with a white suite with low flush WC, vanity unit with wash handbasin and drawer beneath, shower cubicle with digital Aqualisa shower, chrome towel radiator, motion sensor mirror with shaver point, recessed ceiling LED spotlighting and double glazed window to front with impressive field views.

Outside - The property occupies a fabulous plot on Lime Lane, measuring just under one third of an acre and features a large frontage with multiple lawn sections, pathway, raised borders, driveway providing off-road parking for several vehicles and access to two detached double garages. To the front there are pleasant views over neighbouring open fields.
To the rear of the property is an equally impressive garden featuring an impressive lawn, decked seating/entertaining area immediately off the dining kitchen, sleeper edged borders containing plants and shrubs and pathway intersecting the lawn leading to a further decked area, with timed lighting, ideal for outdoor dining and entertaining. There is also a summerhouse, outdoor lighting and further well-stocked borders containing shrubs and trees. A small area of the garden is an orchard with productive fruit trees including apple, pear, plum and cherry trees. The outdoor space is a true feature of the sale.

Double Garage One - 5.86 x 5.61 (19'2" x 18'4") - With electric door, power, lighting and an electric vehicle charging point.

Double Garage Two - 5.43 x 4.61 - With power, lighting and manual door.

Council Tax Band E -

Property Ref: 34194826

Share:

Similar Properties

Duffield Road, Darley Abbey, Derby

4 Bedroom Detached House | Offers in region of £725,000

A substantial, four bedroom, traditional, detached residence occupying a fabulous plot measuring approximately one third...

Pastures Avenue, Littleover, Derby

5 Bedroom Detached House | Offers in region of £699,950

This is a spacious, extended, four/five bedroom, traditional, detached residence occupying a quiet cul-de-sac location i...

The Grange, Smalley, Derbyshire

5 Bedroom Detached House | Offers in region of £685,000

The property occupies a fabulous plot measuring just over one fifth of an acre set on a quiet cul-de-sac. It is set down...

Quarndon Heights, Allestree, Derby

4 Bedroom Detached House | Offers Over £850,000

A superbly appointed, four double bedroom, modern, detached residence occupying a sought-after residential location on Q...

Brookfield House, Draycott, Derbyshire DE72 3SD

5 Bedroom Detached House | Offers in excess of £1,000,000

Brookfield House - A unique and extremely spacious five bedroom family home situated within an exclusive gated developme...

Duffield Road, Darley Abbey, Derby

6 Bedroom Detached House | £1,150,000

CLOSE TO DARLEY PARK - This magnificent Edwardian detached residence, built in 1906, offers a splendid blend of classic...

Fletcher & Co (Nottingham)

The Lace Market, Nottingham, Nottinghamshire, NG1 1PS

01332 300558

How much is your home worth?

Use our short form to request a valuation of your property.

Request a Valuation

Mortgage Calculator

Amount Borrowed: £
Total Amount Repayable: £
Total Monthly Payment: £
©2026 The Guild of Property Professionals. All rights reserved. Terms and Conditions | Privacy Policy | Cookie Policy | Complaints Policy | Members Login
The Guild of Property Professionals Trading Address: 121 Park Lane, London W1K 7AG. GPEA Limited. Registered in England & Wales.  Company No: 02819824.  Registered Office Address: 2 St. Stephen's Court, St. Stephen's Road, Bournemouth, Dorset, England, BH2 6LA.  VAT Registration No: 576 8795 61
Book a Property Valuation Update Cookies Preferences