High Street, Great Torrington, Devon

Guide Price
£450,000

Retail Property (High Street) for sale in Devon

  • WITHIN THE TOWN'S CONSERVATION AREA.
  • ICONIC BUILDING
  • SHOP WITH CLOAKROOM AND KITCHEN/REST ROOM.
  • 5 BEDROOMS
  • BATHROOM
  • SHOWER ROOM
  • 3 RECEPTION ROOMS WITH FIREPLACES
  • FIRST FLOOR KITCHEN
  • LOGGIA
  • TALL CEILINGS

WITHIN THE TOWN'S CONSERVATION AREA.
ICONIC BUILDING
SHOP WITH CLOAKROOM AND KITCHEN/REST ROOM.
5 BEDROOMS
BATHROOM
SHOWER ROOM
3 RECEPTION ROOMS WITH FIREPLACES
FIRST FLOOR KITCHEN
LOGGIA
TALL CEILINGS
BASEMENT
GARAGE/FORMER STABLE.
PLENTY OF OFF STREET PARKING
GARDENS

The property with its red former post office windows and shop door, cream coloured brick front with red brick quoins and colour washed rendered elevations under a slate roof with many sliding sash windows, makes quite an imposing statement when you first set eyes on it.
Set back off the pavement tall carriage doors open to the long driveway that culminates in the garage and former stable.
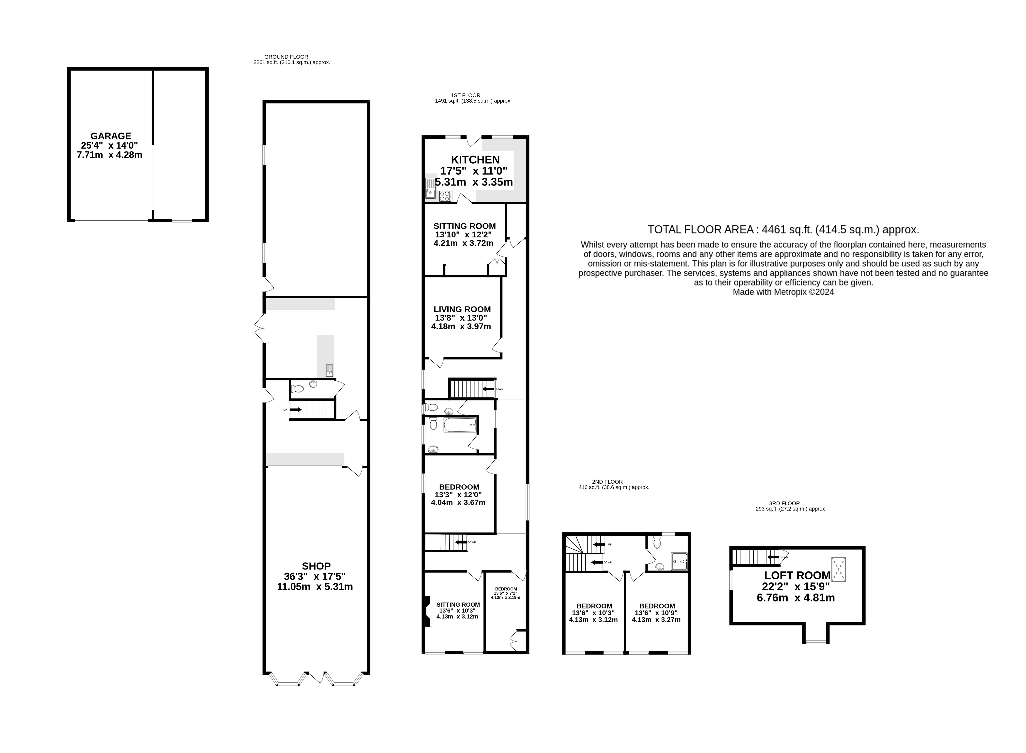
A side door leads into a small lobby which has a door to the former post office counter/office whist ahead a fine set of stairs lead to the first floor split level landing/hall, with its former servants/butler calling box in situ, and you now begin to sense the character and history of the building. Off to the left is found a wonderful sitting room with southerly facing windows having a feature gas coal effect fire inset in a fine black marble fireplace surround with tiled insets and pine cupboards to either side. Continue down the hall you enter the breakfast room which could well have been the former kitchen judging by the large arched recess for a range (now housing a non-working floor standing boiler) and floor to ceiling cupboards to one side. A door from here opens into the 17' split level kitchen having a range of units and work surfaces on four sides with a connecting door leading out into the west facing loggia which, once renovated, would make a lovely spot to al fresco entertain of an evening or just sit and enjoy the setting sun. Steps lead down to the rear.
Coming back into the hall and going up the few steps a bathroom with claw foot roll top bath, wc, wash hand basin, a separate WC and double bedroom are found on the right. Further along is a single bedroom with ornate fireplace built in cupboard and next door is the second sitting room. This is a well proportioned room enjoying an easterly outlook over the square and featuring an open fire grate with cast iron surround, tiled slips all inset in an imposing white marble fireplace and mantel. Stairs with turned spindles and acorn finials lead up to the next floor where there are two more double bedrooms and shower room with WC. From this level another set of stairs lead to an enormous triple aspect bedroom currently set up as a bed/sitting/dressing room and as such works ever so well.

Commercial (can be self contained if required)
The former post office shop is a substantial room being approx. 37' long by 16' wide and having almost floor to ceiling windows, suspended ceiling with recess panel light and beyond is the former counter section being approx. 16' x 8 and having the screens etc still in situ. Beyond is a cloakroom and large kitchen/rest area. As previously mentioned, a door connects to the side entrance.

Basement
This is accessed via its own separate entrance down the side of the drive and a double glazed UPVC door opens into a large room that offers countless possibilities (stp) be it extra accommodation, gym, cinema room or such.

Outside
There is a small outhouse near the back of the property and a substantial garage with former stable adjacent sits at the head of the drive.

Gardens
These could provide a very tranquil space enjoying both a southerly and westerly outlook and are currently neglected. Within is a small pond, terrace, lawns and planting includes camelia, rose, lavender etc.

Services
Mains gas water electricity a and drainage


RATEABLE VALUE   
£8,100 UBR, as of April 2023, 47.9p in the £. Our Rateable Value figure has been obtained from the Business Valuation website at the time of the property detail going to print, however, we would advise all applicants make their own enquiries via the Valuation Office or website regarding this figure.

Small Business Rate relief (100%) may apply as the Rateable Value is below £12,000.

Shop 36'3"x17'5" (11.05mx5.3m).

Kitchen 17'5"x11' (5.3mx3.35m).

Sitting Room 13'10"x12'2" (4.22mx3.7m).

Living Room 13'8"x13' (4.17mx3.96m).

Bedroom 13'3"x12' (4.04mx3.66m).

Sitting Room 13'6"x10'3" (4.11mx3.12m).

Bedroom 13'6"x7'2" (4.11mx2.18m).

Bedroom 13'6"x10'3" (4.11mx3.12m).

Bedroom 13'6"x10'9" (4.11mx3.28m).

Loft Room 22'2"x15'9" (6.76mx4.8m).

Council Tax    Band A - Torridge District Council

Tenure    Freehold

Services    All mains services and drainage connected

Viewing Arrangements    Strictly by appointment only with sole selling agent

EPC    Residential - E

EPC    Commercial - D

From our offices in the centre of the town walk into the square continue into the square passing the Black Horse Pub and the entrance to Tavern Mews on the left and the property will be found a little further on, the entrance being a pair of large timber arched gates.

https://what3words.com/revamped.relief.driveways

Important Information

  • This is a Freehold property.

Property Ref: 55681_COM240039

Share:

Similar Properties

Squires Lane, Shebbear, Beaworthy

3 Bedroom Detached House | Offers Over £450,000

Set amidst 23 acres of land, this part finished home presents a great development opportunity for the new owner to conti...

Frithelstock, Torrington, Devon

3 Bedroom Detached House | Guide Price £450,000

Sat in an ELEVATED position with FAR REACHING VIEWS across the FIELDS towards Monkleigh in the distance, a delightful Gr...

High Street, Great Torrington, Devon

5 Bedroom Terraced House | Guide Price £450,000

Set in a prominent position in the town square, opposite Great Torrington Town Hall, this former post office and shop, o...

Peters Marland, Torrington, Devon

4 Bedroom Detached House | Guide Price £475,000

A charming Grade II listed thatched cottage full of character, set in a third of an acre with beautiful gardens, spaciou...

Eskil Place, Great Torrington, Devon

4 Bedroom Detached Bungalow | Guide Price £475,000

A generous 4 bedroom detached bungalow with double garage, ample parking and wrap around gardens with countryside views...

Iddesleigh, Winkleigh, Devon

4 Bedroom Detached House | Guide Price £490,000

With far reaching views across the Devon rolling countryside to Dartmoor on the horizon, this 4 bedroom, 2 bathroom fami...

Webbers Torrington (Torrington)

Torrington, Devon, EX38 8HN

01805 624334

How much is your home worth?

Use our short form to request a valuation of your property.

Request a Valuation

Mortgage Calculator

Amount Borrowed: £
Total Amount Repayable: £
Total Monthly Payment: £
©2025 The Guild of Property Professionals. All rights reserved. Terms and Conditions | Privacy Policy | Cookie Policy | Complaints Policy | Members Login
The Guild of Property Professionals Trading Address: 121 Park Lane, London W1K 7AG. GPEA Limited. Registered in England & Wales.  Company No: 02819824.  Registered Office Address: 2 St. Stephen's Court, St. Stephen's Road, Bournemouth, Dorset, England, BH2 6LA.  VAT Registration No: 576 8795 61
Book a Property Valuation Update Cookies Preferences